Keplerstraat 2 1171 CD Badhoevedorp

Huurprijs op aanvraag

Omschrijving

Te huur!
Twee naast elkaar gelegen multifunctionele bedrijfsunits aan de Keplerstraat 2 in Badhoevedorp
Deze aan de rand van Badhoevedorp gelegen objecten hebben meerdere bedrijfs- en kantoorruimtes met parkeerplaatsen en zijn bij voorkeur als één geheel maar eventueel ook apart te huur.

Het object ligt aan de rand van een woonwijk, dicht bij Schiphol en Amsterdam en hebben ieder een eigen ingang en beschikken over parkeergelegenheid voor meerdere auto's op eigen terrein.

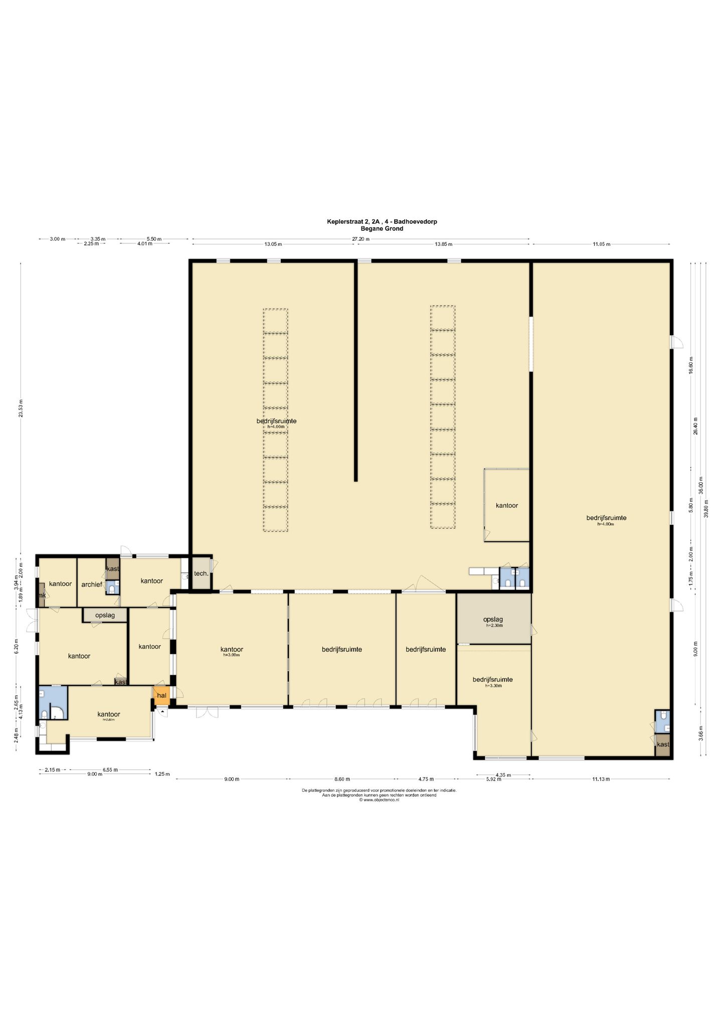
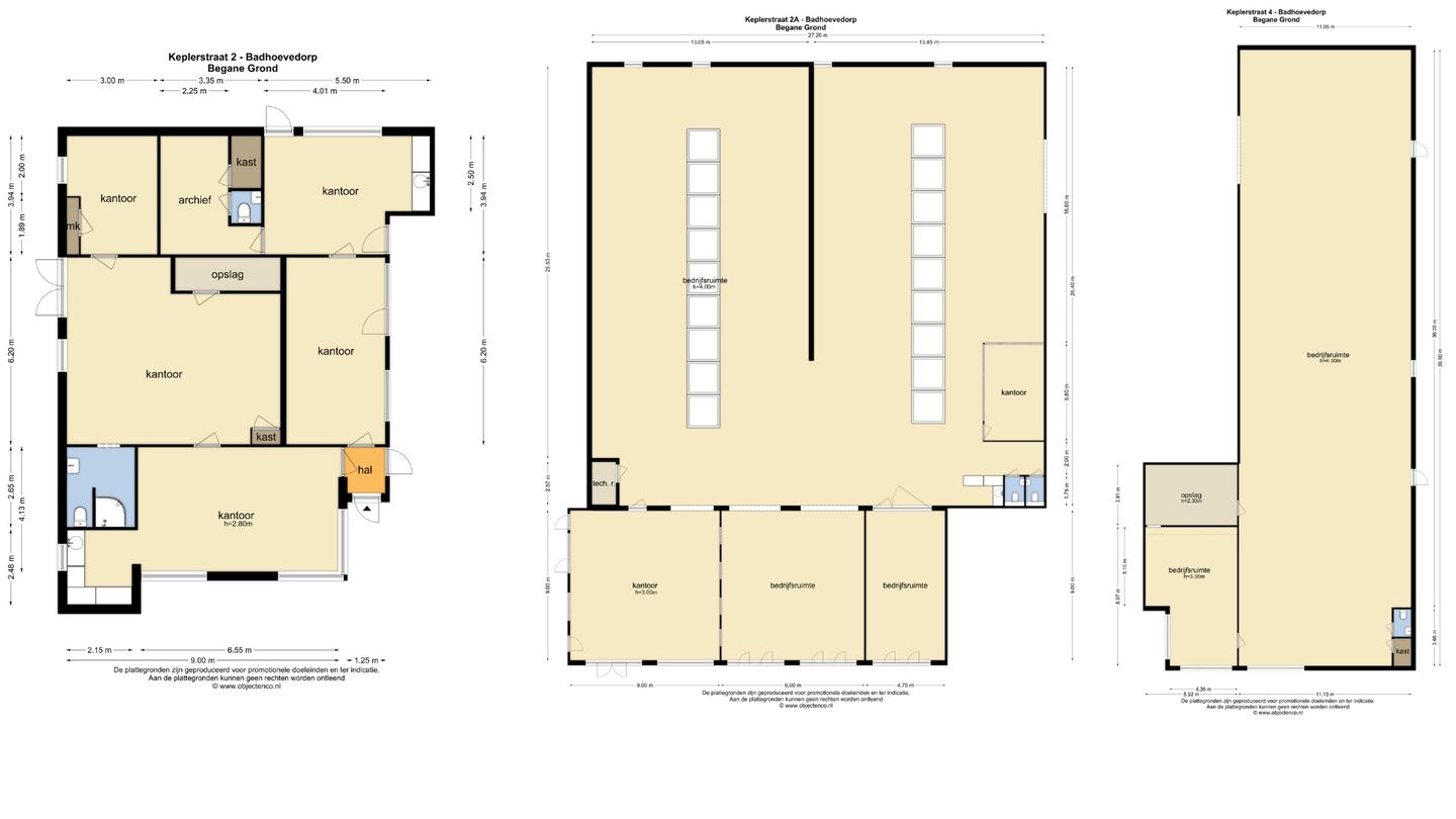
Deze ruimte is als volgend verdeeld:
Bedrijfsruimte Keplerstraat 2 unit 2: circa 522 m² bruto vloeroppervlakte per unit
Bedrijfsruimte Keplerstraat 2 unit 3:circa 421 m² bruto vloeroppervlakte per unit
Units 2 en 3 zijn per unit of als geheel te huur.
Kantoorruimte Keplerstraat 2 unit 1: Verhuurd
Kantoorruimte Keplerstraat 2 unit 4: Verhuurd

Zo goed als mogelijk opgemeten volgens de branche brede meetinstructies van de NVM waarvoor de Nen-2580 norm de basis vormt. Deze maten zijn indicatief.

Indeling
Keplerstraat 2 unit 2:
Het bruto bedrijfsvloeroppervlak van circa 522 m² bestaat onder andere uit circa 157 m² kantoor-/werkruimte verdeeld over 2 kantoorruimtes en een bedrijfsruimte van circa 365 m².

Keplerstraat 2 unit 3:
Het bruto bedrijfsvloeroppervlak van circa 421 m² bestaat onder andere uit circa 43 m² kantoor-/werkruimte en een bedrijfsruimte van circa 378 m².

Parkeerterrein:
Aan de voorzijde van de objecten is gelegenheid om te parkeren.

Bestemming:
Conform het vigerende bestemmingsplan "Badhoevedorp Lijnden-0ost" d.d. 04-07-2013 kent het object de enkelbestemming 'Bedrijf-Garagebedrijf'. De voor "Bedrijf-Garagebedrijf" aangewezen gronden zijn bestemd voor bedrijfsactiviteiten ten behoeve van garagebedrijven die vallen in categorie 2 van de bij deze regels behorende Staat van Bedrijfsactiviteiten. Voor exacte voorwaarden en overige invullingen of een uitgebreide bestemmingsomschrijving verwijzen wij u naar de gemeente Haarlemmermeer, afdeling Ruimtelijke Ordening.
Voor andere activiteiten die in categorie 2 vallen kan een initiatief worden ingediend bij de gemeente Haarlemmermeer. Bewoning van het object is niet toegestaan.

Ligging:
Centraal gelegen tussen Amsterdam, Schiphol, Amstelveen en Haarlem en aan de buitenrand van Badhoevedorp, met goede verbindingen naar de diverse uitvalswegen, liggen deze multifunctionele bedrijfsruimtes. Het centrum van Badhoevedorp ligt op loopafstand waardoor het op alle mogelijke manieren goed bereikbaar is.

Afspraken
U kunt ons mailen voor een afspraak voor een bezichtiging. Onze bezichtigingen proberen we zoveel als mogelijk voor een bepaalde tijd in te plannen. We verzoeken u dan ook op tijd te komen en de geplande tijd niet te overschrijden als er meerdere bezichtigingen ingepland zijn.

Huurprijs:
Keplerstraat 2a unit 2: € 5.500 per maand
Keplerstraat 2a unit 3: € 4.500 per maand

Deze huurprijzen zijn exclusief gas, water en elektra, te vermeerderen met de BTW.
De huur dient bij automatische betaling per maand vooruit te worden voldaan.

Huurprijsaanpassing:
De huurprijs zal jaarlijks worden geïndexeerd op basis van het maandprijsindexcijfer volgens de consumentenprijsindex (CPI) reeks alle huishoudens (2000=100) dan wel de meest recente tijdbasis, gepubliceerd door het CBS plus 5%. De nieuwe huurprijs zal nimmer lager zijn dan de laatst geldende huurprijs.

Huurcontract:
In verband met een mogelijke toekomstige ontwikkeling op deze locatie zal er initieel een overeenkomst worden aangegaan voor een periode van 3 jaar, maar een meerjarig contract is bespreekbaar.
Model: Huurovereenkomst Kantoorruimte ROZ (artikel 7:230a BW).

Waarborgsom:
Drie maanden huur vermeerderd met de BTW te voldoen tezamen met de 1e huurbetaling, voorafgaand aan de start huur.

Oplevering:
Het object is per direct beschikbaar en wordt in de huidige staat opgeleverd.

Kijk voor meer foto's, plattegronden en uitgebreide informatie op onze eigen site!
Op deze transactie zijn onze algemene voorwaarden en de
voorwaarden van de NVM van toepassing, zie onze site.

Bijzonderheden:
- Bouwjaar 1974
- Type Bedrijfsobjecten
- Eigen grond 2.333 m²
- Nabij diverse uitvalswegen
- Per direct beschikbaar

Huurprijsaanpassing:
De huurprijs zal jaarlijks worden aangepast op basis van het maandprijsindexcijfer volgens de consumentenprijsindex (CPI) reeks alle huishoudens (2006=100), dan wel de meest recente tijdbasis, gepubliceerd door het CBS. De nieuwe huurprijs zal nimmer lager zijn dan de laatst geldende huurprijs.

Verhuurbaar vloeroppervlakte BVO (Bruto vloeroppervlakte):
Er zijn meetrapporten en plattegronden aanwezig op onze site. De in de hiervoor beschreven verhuurtekst zijn de genoemde vierkante meters verhuurbaar vloeroppervlak indicatief.

Speciale bepalingen
- Het gehuurde is niet bestemd voor wonen.
- De kosten van gas-, elektriciteit- en waterverbruik zullen evenals de kosten van overige aansluitingen voor rekening van huurder zijn.
- In het gehuurde mogen geen (bederfelijke) levensmiddelen worden opgeslagen.
- Onderhuur is niet toegestaan.
- Het is niet toegestaan om gevelreclame, gevelaanpassingen of verbouwingen te plaatsen/uit te voeren tenzij hier nadrukkelijke schriftelijk vastgelegde toestemming van verhuurder voor aanwezig is.
- De huurder zal het onroerend goed beschikbaar stellen voor bezichtigingen in geval van verkoop of einde van de huur, in overleg met de makelaar.
- De verhuurder zal altijd het onderhoud aan het gehuurde kunnen uitvoeren in overleg met de huurder.
- Verhuurder en huurder zijn uitdrukkelijk overeengekomen dat roken in het object niet is toegestaan.
- Het is de huurder niet toegestaan om wijzigingen aan te brengen aan het pand, noch mogen muren worden verplaatst en mag de vloer niet worden geboord. Tenzij hier nadrukkelijke schriftelijk vastgelegde toestemming van verhuurder voor aanwezig is.
- Op verzoek van en in overleg met de verhuurder zal de huurder de verhuurder toegang geven tot het pand om het pand te inspecteren.
- De huurder zal het gehuurde als een goede huurder gebruiken in overeenstemming met de overeengekomen bestemming.
- De huurder aanvaardt het gehuurde in de staat waarin het zich nu bevindt en verbindt zich ertoe deze in deze staat te houden en bij beëindiging van de huurperiode in deze staat op te leveren.
- Verhuurder is niet verantwoordelijk voor schade aan of diefstal van eigendommen van huurder. Goederen van huurder zijn niet verzekerd door verhuurder.
- Het is de huurder niet toegestaan om voorwerpen, losse afvalstoffen, afval in zakken of afvalcontainers op buitengebieden van het gehuurde of de algemene gebruiksruimten te plaatsen.
- De huurder mag de verhuurder noch de buren overlast van geluid, stank of enige andere vorm van overlast bezorgen.
- De verhuurder is niet aansprakelijk voor schade aan en / of diefstal van de goederen die zijn opgeslagen door de door de huurder gehuurde ruimte.
- De huurder draagt zorg voor het juiste onderhoud van sanitair, leidingen, afvoeren en dergelijke.
- Huurder is verplicht de benodigde verzekeringen te hebben of af te sluiten.
- De huurder dient er rekening mee te houden dat de volgende zaken in elk geval voor rekening van de huurder komen indien deze zich voordoen:
- Schade door bevriezing van leidingen
- Verstopping van riool
- Schoonmaak van eigendom bij vertrek
- De huurder is aansprakelijk voor de tijdige betaling van de huur.
- Drugsgebruik of teelt / delen is ten strengste verboden, de huur kan onmiddellijk worden beëindigd en de huurder is aansprakelijk voor alle kosten.

Voorbehoud:
-Overeenstemming, zal onder voorbehoud van toestemming opdrachtgever zijn.
-Opdrachtgever behoudt zich, zonder opgave van reden, het recht voor een overeenkomst meet een kandidaat te weigeren.
-De informatie in deze brochure is geheel vrijblijvend en de gegeven afmetingen zijn indicatief. Aan de inhoud hiervan kunnen dan ook geen rechten worden ontleend.

De opdracht:
Op deze opdracht zijn de Voorwaarden van de NVM van toepassing. Tevens verwijzen wij hiervoor naar onze eigen website.

Bijzondere en algemene bepalingen op deze verhuur van toepassing:
- Deze brochure is door ons kantoor met de nodige zorgvuldigheid samengesteld aan de hand van de beschikbare gegevens en met de door de verhuurder aan ons ter hand gestelde gegevens en tekeningen. Onzerzijds wordt echter geen enkele aansprakelijkheid aanvaard voor enige onvolledigheid, onjuistheid of anderszins, dan wel de gevolgen daarvan. Alle opgegeven maten en oppervlakten zijn indicatief.
- Op deze verhuur is ook de disclaimer beschreven op onze website van toepassing;
- Tevens verwijzen we met betrekking tot deze verhuur naar de privacyverklaring beschreven op onze website.

Kenmerken

Overdracht

Huurprijs
Huurprijs op aanvraag
Aangeboden sinds
Status
Beschikbaar
Aanvaarding
Per direct beschikbaar

Bouw

Hoofdfunctie
Bedrijfshal
Soort bouw
Bestaande bouw
Bouwjaar
1974

Oppervlakten

Oppervlakte
943 m² (in units vanaf 421 m²)
Bedrijfshal oppervlak
943 m²
Perceel
2.333 m²

Energie

Energielabel
Niet beschikbaar

Omgeving

Ligging
In woonwijk

Kaart

Kaart laden...

Kadastrale grens Bebouwing

Reistijd

Krijg inzicht in de bereikbaarheid van dit object vanuit bijvoorbeeld een openbaar vervoer station of vanuit een adres.

Keplerstraat 2

Huurprijs op aanvraag