Omschrijving
Hier werk je vanuit een MODERNE BEDRIJFSRUIMTE op een centrale en uitstekend bereikbare locatie in Dronten. Aan de Cellenbroederspoort 9C, op het bedrijventerrein ‘Poort van Dronten’, beschik je over circa 100 m² bedrijfsruimte op de begane grond en nog eens circa 100 m² kantoor- of werkruimte op de verdieping. Dankzij de overheaddeur is dit een ideale plek voor uiteenlopende bedrijfsactiviteiten.
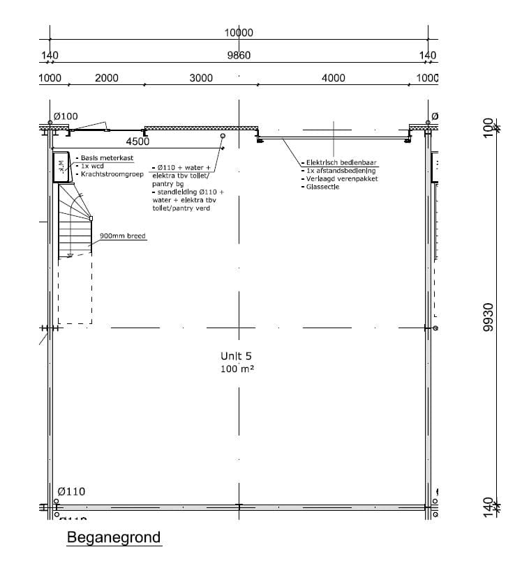
BEGANE GROND:
Via de overheaddeur/loopdeur kom je binnen in de bedrijfsruimte. Hier bevindt zich de trapopgang naar de verdieping. De begane grond is praktisch en ruim opgezet en beschikt over een eigen meterkast met wandcontactdoos en krachtstroomgroep. Water- en afvoeraansluitingen zijn aanwezig, waardoor je eenvoudig een pantry en/of toilet kunt realiseren.
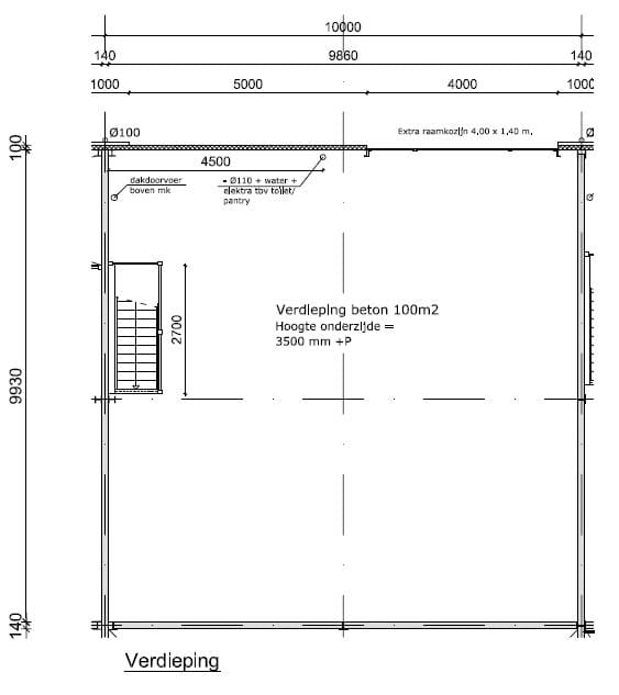
VERDIEPING:
De verdieping heeft een oppervlakte van circa 100 m² en is volledig vrij indeelbaar. Je richt deze ruimte naar wens in als kantoor, opslag of praktijkruimte. Dankzij de goede isolatie, kunststof kozijnen en moderne afwerking werk je hier in een representatieve omgeving met een professionele uitstraling.
BIJZONDERHEDEN & STERKE PUNTEN:
- Nieuwe bedrijfsruimte van circa 200 m² op bedrijventerrein ‘Poort van Dronten’.
- Begane grond circa 100 m² en verdieping circa 100 m².
- Geïsoleerde gevels en dak met hoge Rc-waarden.
- Kunststof kozijnen en deuren met degelijk hang- en sluitwerk.
- Eigen meterkast met wandcontactdoos en krachtstroomgroep.
- Aansluiting voor water en afvoer aanwezig.
- Vloerbelasting begane grond 1000 kg/m2.
- Elektra-aansluiting 3x25 Ampère aanwezig.
- Geschikt voor diverse bedrijfsdoeleinden.
- Twee eigen parkeerplaatsen.
- VvE in oprichting.
- Aanvaarding na oplevering.
- Nog niet in gebruik genomen, waardoor vrijgesteld van overdrachtsbelasting.
- Vraagprijs € 239.000,-- k.k. excl. 21% BTW.
- Alle informatie is geheel vrijblijvend; wijzigingen en afwijkingen voorbehouden.
BEGANE GROND:
Via de overheaddeur/loopdeur kom je binnen in de bedrijfsruimte. Hier bevindt zich de trapopgang naar de verdieping. De begane grond is praktisch en ruim opgezet en beschikt over een eigen meterkast met wandcontactdoos en krachtstroomgroep. Water- en afvoeraansluitingen zijn aanwezig, waardoor je eenvoudig een pantry en/of toilet kunt realiseren.
VERDIEPING:
De verdieping heeft een oppervlakte van circa 100 m² en is volledig vrij indeelbaar. Je richt deze ruimte naar wens in als kantoor, opslag of praktijkruimte. Dankzij de goede isolatie, kunststof kozijnen en moderne afwerking werk je hier in een representatieve omgeving met een professionele uitstraling.
BIJZONDERHEDEN & STERKE PUNTEN:
- Nieuwe bedrijfsruimte van circa 200 m² op bedrijventerrein ‘Poort van Dronten’.
- Begane grond circa 100 m² en verdieping circa 100 m².
- Geïsoleerde gevels en dak met hoge Rc-waarden.
- Kunststof kozijnen en deuren met degelijk hang- en sluitwerk.
- Eigen meterkast met wandcontactdoos en krachtstroomgroep.
- Aansluiting voor water en afvoer aanwezig.
- Vloerbelasting begane grond 1000 kg/m2.
- Elektra-aansluiting 3x25 Ampère aanwezig.
- Geschikt voor diverse bedrijfsdoeleinden.
- Twee eigen parkeerplaatsen.
- VvE in oprichting.
- Aanvaarding na oplevering.
- Nog niet in gebruik genomen, waardoor vrijgesteld van overdrachtsbelasting.
- Vraagprijs € 239.000,-- k.k. excl. 21% BTW.
- Alle informatie is geheel vrijblijvend; wijzigingen en afwijkingen voorbehouden.
Kaart
Kaart laden...
Kadastrale grens
Bebouwing
Reistijd
Krijg inzicht in de bereikbaarheid van dit object vanuit bijvoorbeeld een openbaar vervoer station of vanuit een adres.