Flemingstraat 38 1704 SL Heerhugowaard
- Nieuw
€ 2.500 /mnd

Omschrijving
Moderne bedrijfsruimte met kantoor | Energiezuinig | 6 parkeerplaatsen
Op een zichtlocatie op bedrijventerrein De Zandhorst bieden wij deze moderne bedrijfsruimte met kantoor aan. Het pand is in 2025 technisch geüpgraded en voldoet aan de hedendaagse eisen van duurzaam ondernemen. Met een all-electric installatie, LED-verlichting en zonnepanelen (8.400 Wp / ca. 7.140 kWh per jaar) combineert dit object comfort met energiezuinigheid.
Zowel de bedrijfsruimte als de kantoorverdieping zijn hoogwaardig afgewerkt, waardoor het pand direct in gebruik kan worden genomen. Ideaal voor ondernemingen in de retail-, handels- of dienstensector die op zoek zijn naar een representatieve huisvesting op een goed bereikbare locatie.
Locatie & bereikbaarheid
De ligging op bedrijventerrein De Zandhorst biedt uitstekende bereikbaarheid en zichtbaarheid. Via de N242 zijn Alkmaar, Hoorn en de A9 eenvoudig bereikbaar, terwijl het centrum van Heerhugowaard zich op slechts enkele minuten afstand bevindt. De directe omgeving kenmerkt zich door moderne, representatieve bedrijfsgebouwen met een diversiteit aan ondernemingen.
Oppervlaktes:
Totaal vloeroppervlak: ca. 501 m² bvo
- Begane grond bedrijfsruimte: ca. 288 m² bvo
- Entresolvloer: ca. 102 m² bvo
- Eerste verdieping kantoorruimte: ca. 111 m² bvo
Indeling:
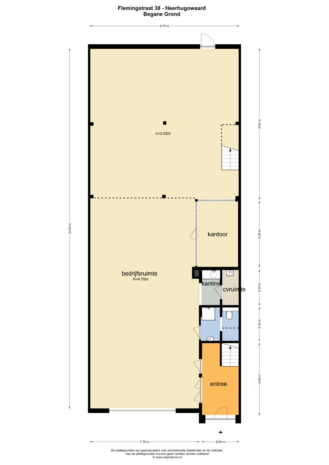
De begane grond is praktisch en functioneel ingericht, met een ruime entree, pantry, toiletruimte en zelfs een douche. Via de elektrisch bedienbare overheaddeur is de hal uitstekend toegankelijk voor goederenontvangst of logistieke activiteiten. De royale entresolvloer biedt extra opslag- of werkruimte en kan flexibel worden ingezet.
Op de eerste verdieping bevindt zich de representatieve kantoorverdieping, bestaande uit drie lichte kantoorruimtes met grote glaspartijen. De moderne afwerking met systeemplafonds, LED-verlichting en airconditioning zorgt voor een prettig werkklimaat gedurende het hele jaar. Daarnaast is er een pantry en een toilet aanwezig.
Het geheel verkeert in uitstekende staat en is direct instapklaar.
Voorzieningen & specificaties
- All-electric: geen gasaansluiting (duurzaam ondernemen);
- Energiezuinig: energielabel A;
- Zonnepanelen: 8.400 Wp (ca. 7.140 kWh per jaar) ten behoeve van huurder;
- 6 parkeerplaatsen op eigen terrein;
- Volledig LED-verlichting;
- Technische installatie vernieuwd in 2025;
Huurcondities
Huurprijs: € 2.500,- per maand exclusief btw.
Servicekosten: € 175,- per maand (onderhoud AC-installatie, gevelglas, overheaddeur)
Huuringangsdatum: In overleg.
Huurbetaling: Per maand vooruit.
Huurtermijn: In overleg, voorkeur verhuurder langere periode.
BTW: Huurder verklaart het gehuurde voor tenminste 90% te zullen gebruiken voor prestaties die recht geven op aftrek van omzetbelasting. Indien huurder op enig moment niet meer aan het criterium voldoet, zal er van rechtswege sprake zijn van omzetbelasting vrijgestelde verhuur. Alsdan wordt overeengekomen kale huurprijs, exclusief omzetbelasting, zodanig verhoogd dat het voor verhuurder ontstane financiële nadeel wordt gecompenseerd.
Zekerheidsstelling: Een bankgarantie/waarborgsom gelijk aan 3 maanden, te vermeerderen met BTW.
Huurovereenkomst: Huurovereenkomst kantoorruimte en andere bedrijfsruimte in de zin van artikel 7:230a BW conform ROZ model.
Voorbehoud: Goedkeuring van de eigenaar/opdrachtgever.
Bestemmingsplan: Bij de gemeente Dijk en Waard valt het perceel binnen het bestemmingsplan “Zandhorst”. Dit houdt in dat het perceel de enkelbestemming Bedrijf-1 geschikt voor bedrijf tot en met bedrijfscategorie 3. Bij twijfel over het toestaan van jouw bedrijfsvoering adviseren wij zelf contact op te nemen met de gemeente Dijk en Waard of Omgevingsloket.
Ondanks dat deze publicatie met de grootst mogelijke zorgvuldigheid is samengesteld is Van Overbeek Makelaars V.O.F. niet aansprakelijk te stellen voor onjuiste of onvolledige informatie die in deze publicatie vermeld staan. Aan deze gegevens kunnen geen rechten worden ontleend.
Op een zichtlocatie op bedrijventerrein De Zandhorst bieden wij deze moderne bedrijfsruimte met kantoor aan. Het pand is in 2025 technisch geüpgraded en voldoet aan de hedendaagse eisen van duurzaam ondernemen. Met een all-electric installatie, LED-verlichting en zonnepanelen (8.400 Wp / ca. 7.140 kWh per jaar) combineert dit object comfort met energiezuinigheid.
Zowel de bedrijfsruimte als de kantoorverdieping zijn hoogwaardig afgewerkt, waardoor het pand direct in gebruik kan worden genomen. Ideaal voor ondernemingen in de retail-, handels- of dienstensector die op zoek zijn naar een representatieve huisvesting op een goed bereikbare locatie.
Locatie & bereikbaarheid
De ligging op bedrijventerrein De Zandhorst biedt uitstekende bereikbaarheid en zichtbaarheid. Via de N242 zijn Alkmaar, Hoorn en de A9 eenvoudig bereikbaar, terwijl het centrum van Heerhugowaard zich op slechts enkele minuten afstand bevindt. De directe omgeving kenmerkt zich door moderne, representatieve bedrijfsgebouwen met een diversiteit aan ondernemingen.
Oppervlaktes:
Totaal vloeroppervlak: ca. 501 m² bvo
- Begane grond bedrijfsruimte: ca. 288 m² bvo
- Entresolvloer: ca. 102 m² bvo
- Eerste verdieping kantoorruimte: ca. 111 m² bvo
Indeling:
De begane grond is praktisch en functioneel ingericht, met een ruime entree, pantry, toiletruimte en zelfs een douche. Via de elektrisch bedienbare overheaddeur is de hal uitstekend toegankelijk voor goederenontvangst of logistieke activiteiten. De royale entresolvloer biedt extra opslag- of werkruimte en kan flexibel worden ingezet.
Op de eerste verdieping bevindt zich de representatieve kantoorverdieping, bestaande uit drie lichte kantoorruimtes met grote glaspartijen. De moderne afwerking met systeemplafonds, LED-verlichting en airconditioning zorgt voor een prettig werkklimaat gedurende het hele jaar. Daarnaast is er een pantry en een toilet aanwezig.
Het geheel verkeert in uitstekende staat en is direct instapklaar.
Voorzieningen & specificaties
- All-electric: geen gasaansluiting (duurzaam ondernemen);
- Energiezuinig: energielabel A;
- Zonnepanelen: 8.400 Wp (ca. 7.140 kWh per jaar) ten behoeve van huurder;
- 6 parkeerplaatsen op eigen terrein;
- Volledig LED-verlichting;
- Technische installatie vernieuwd in 2025;
Huurcondities
Huurprijs: € 2.500,- per maand exclusief btw.
Servicekosten: € 175,- per maand (onderhoud AC-installatie, gevelglas, overheaddeur)
Huuringangsdatum: In overleg.
Huurbetaling: Per maand vooruit.
Huurtermijn: In overleg, voorkeur verhuurder langere periode.
BTW: Huurder verklaart het gehuurde voor tenminste 90% te zullen gebruiken voor prestaties die recht geven op aftrek van omzetbelasting. Indien huurder op enig moment niet meer aan het criterium voldoet, zal er van rechtswege sprake zijn van omzetbelasting vrijgestelde verhuur. Alsdan wordt overeengekomen kale huurprijs, exclusief omzetbelasting, zodanig verhoogd dat het voor verhuurder ontstane financiële nadeel wordt gecompenseerd.
Zekerheidsstelling: Een bankgarantie/waarborgsom gelijk aan 3 maanden, te vermeerderen met BTW.
Huurovereenkomst: Huurovereenkomst kantoorruimte en andere bedrijfsruimte in de zin van artikel 7:230a BW conform ROZ model.
Voorbehoud: Goedkeuring van de eigenaar/opdrachtgever.
Bestemmingsplan: Bij de gemeente Dijk en Waard valt het perceel binnen het bestemmingsplan “Zandhorst”. Dit houdt in dat het perceel de enkelbestemming Bedrijf-1 geschikt voor bedrijf tot en met bedrijfscategorie 3. Bij twijfel over het toestaan van jouw bedrijfsvoering adviseren wij zelf contact op te nemen met de gemeente Dijk en Waard of Omgevingsloket.
Ondanks dat deze publicatie met de grootst mogelijke zorgvuldigheid is samengesteld is Van Overbeek Makelaars V.O.F. niet aansprakelijk te stellen voor onjuiste of onvolledige informatie die in deze publicatie vermeld staan. Aan deze gegevens kunnen geen rechten worden ontleend.
Kenmerken
Overdracht
- Huurprijs
- € 2.500 per maand
- Servicekosten
- € 175 per maand (21% BTW van toepassing)
- Aangeboden sinds
-
- Status
- Beschikbaar
- Aanvaarding
- In overleg
Bouw
- Hoofdfunctie
- Bedrijfshal
- Soort bouw
- Bestaande bouw
- Bouwjaar
- 2002
Oppervlakten
- Oppervlakte
- 501 m²
- Bedrijfshal oppervlak
- 390 m²
- Kantoor oppervlak
- 111 m²
- Vrije hoogte
- 4,7 m
Indeling
- Aantal bouwlagen
- 1 bouwlaag
- Voorzieningen
- Betonvloer, mechanische ventilatie, inbouwarmaturen en te openen ramen
Energie
- Energielabel
- A
Omgeving
- Ligging
- Bedrijventerrein
- Bereikbaarheid
- Bushalte op minder dan 500 m en NS Intercitystation op 2000 m tot 3000 m
Parkeergelegenheid
- Parkeerplaatsen
- 6 niet-overdekte parkeerplaatsen
Foto's


































Plattegrond
BEGANE GROND

TUSSENVERDIEPING

EERSTE VERDIEPING
