Omschrijving
Ter Aar, Hertog van Beijerenstraat 2
Te Huur
Top ruimte voor een productiebedrijf, die behoefte heeft aan assemblagelijn(en), opslag van eindproducten en grondstoffen, kantoorruimte, parkeerruimte, laaddock en een zware elektrische aansluiting (1.600 kVa en een transportvermogen van 1.492 kWh)
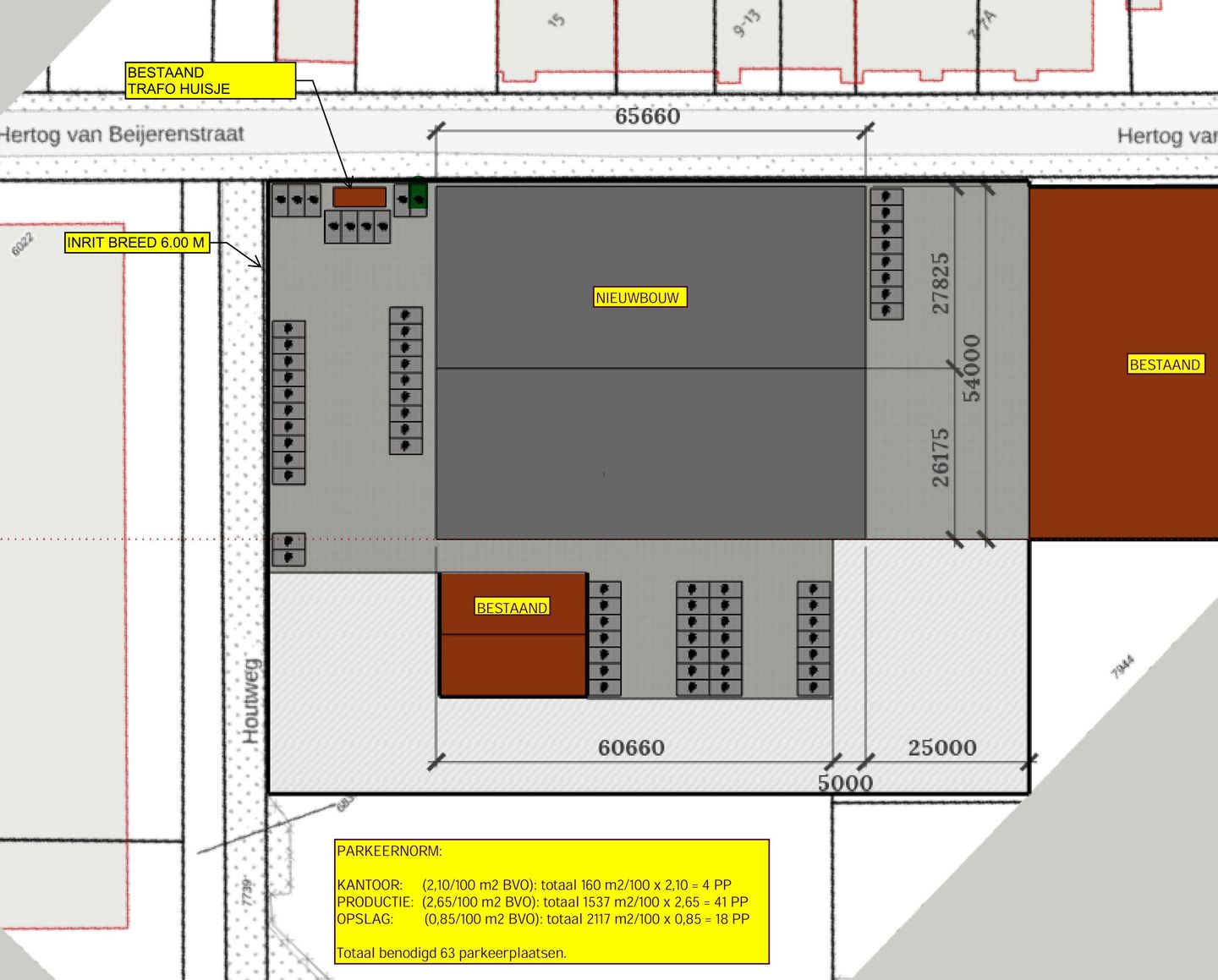
Niet zo maar een bedrijfshal, maar een in aanbouw zijnde modern bedrijfscomplex op 6.992 m2 eigen grond (Ter Aar, sectie A, nummer 8356 groot 6.237 m2 en Ter Aar sectie A, nummer 9506 groot 755 m2). Een ruimte met een bebouwd oppervlakte van 3.654 m2 en een mooie mix aan parkeerruimte (63 parkeerplekken) en buitenruimte.
Inleiding
Na de forse brand, in de nacht van 9 op 10 juni 2023, op het industrieterrein Bovenland in Ter Aar, waren veel ondernemers de dupe. Heel Nederland leefde mee. Maar dankzij het ondernemerschap van velen herrezen op tal van plekken prachtige, nieuwe bedrijfsruimten.
Zo ook aan de Hertog van Beijerenstraat nummer 2, de plek waar vroeger TN Plastics was gevestigd. Hier wordt nu dit nieuwe, prima geïsoleerde, moderne, bedrijfscomplex gerealiseerd.
Ligging
Voor wie Ter Aar wellicht over het hoofd ziet als vestigingsplaats voor zijn bedrijf.
Bovenland, het lokale industrieterrein, is best centraal in de Randstad gelegen.
Afstand tot de N11 - 11 km - 16 minuten met de auto
Afstand tot de A4 - 12 km - 16 minuten met de auto
Afstand tot de A12 - 19 km - 22 minuten met de auto
Afstand tot de A2 - 28 km - 37 minuten met de auto
Niet voor niets dat bedrijven als de Zittmax (grootste woonwinkel van Nederland), Van Hameren Houthandel en Ponton verhuur, Keukenwarenhuis en vele anderen hier zijn gevestigd.
De belangrijkste kenmerken van deze in aanbouw zijnde bedrijfsruimte;
Perceel 6992 m2
Parkeerplekken 63 (20% beschikt over een mantelbuis voor evt. elektrisch laden)
- Terrein wordt voorzien van stelconplaten
Bebouwd oppervlakte - 3.545 m2 (65,66 meter x 54 meter)
- Kantoorruimte incl dienstruimten 160 m2
- Bedrijfsruimte 1.537 m2
- Opslagruimte /bedrijfsruimte 2.117 m2
Laaddock 5.00 x 20.00 met overheaddeur van 3.10 x 3.00 meter
Overheaddeuren - 3 tal deuren afmetingen 4.16 x 5.00 meter
Vrije hoogte - minimaal 8.55 meter, nok bruto 10.55 meter
Vloerbelasting - 4.000 kg/per m2 op de begane grond en 500 kg/per m2 op de verdieping
Elektra aansluiting - 1.600 kVa en een transportvermogen van 1.492 kWh
Breedte van de bedrijfshallen - resp. 25.85 meter en 27.50 meter
Diepte van de bedrijfshallen - 65.66 meter
Isolatie - Gevel, vloer en wanden zijn optimaal geïsoleerd
In de huidige meters zijn nu de volgende ruimten ondergebracht;
- Opslagruimte
- Productie ruimte
- Siloruimte
- Matrijzenkluis
- Werkplaats
- Kantine
- Schoonmaakhok
- Kleedruimte
- Toiletruimte
- Kantoorruimte
- Vacuümruimte
- Compressor ruimte
- Opslag ruimte
- Server/technische ruimte
In deze fase zou er met mogelijk bouwkundige aanpassingen nog rekening kunnen worden gehouden. Of dit nu de indeling aan gaat of het aanbrengen van PV panelen.
We gaan hierover graag met u in gesprek. U kunt hiervoor bellen of mailen met Ger Hukker 06-53916525
Bestemmingsplan
Het complex valt onder het bestemmingsplan Ter Aar Bovenland, 1e herziening
Bedrijven tot en met milieucategorie 3.2 kunnen zich hier vestigen. Lichte industrie valt onder deze bestemmingsactiviteiten. Wij hebben een uitgebreide lijst voor u beschikbaar om dit te toetsen.
Oplevering
Het ligt in de planning dat de ruimte rond de zomer, zeg uiterlijk september 2026 opgeleverd kan worden.
Huurcondities
De vraaghuur voor het gehele complex bedraagt € 400.000 euro exclusief BTW op jaarbasis.
€ 33.333 exclusief BTW per maand.
Mocht u deze ruimte willen huren dan zullen wij een huurovereenkomst opmaken overeenkomstig het ROZ model d.d. 5 maart 2025.
Waarborgsom c.q. bankgarantie - 3 maanden huur
Te Huur
Top ruimte voor een productiebedrijf, die behoefte heeft aan assemblagelijn(en), opslag van eindproducten en grondstoffen, kantoorruimte, parkeerruimte, laaddock en een zware elektrische aansluiting (1.600 kVa en een transportvermogen van 1.492 kWh)
Niet zo maar een bedrijfshal, maar een in aanbouw zijnde modern bedrijfscomplex op 6.992 m2 eigen grond (Ter Aar, sectie A, nummer 8356 groot 6.237 m2 en Ter Aar sectie A, nummer 9506 groot 755 m2). Een ruimte met een bebouwd oppervlakte van 3.654 m2 en een mooie mix aan parkeerruimte (63 parkeerplekken) en buitenruimte.
Inleiding
Na de forse brand, in de nacht van 9 op 10 juni 2023, op het industrieterrein Bovenland in Ter Aar, waren veel ondernemers de dupe. Heel Nederland leefde mee. Maar dankzij het ondernemerschap van velen herrezen op tal van plekken prachtige, nieuwe bedrijfsruimten.
Zo ook aan de Hertog van Beijerenstraat nummer 2, de plek waar vroeger TN Plastics was gevestigd. Hier wordt nu dit nieuwe, prima geïsoleerde, moderne, bedrijfscomplex gerealiseerd.
Ligging
Voor wie Ter Aar wellicht over het hoofd ziet als vestigingsplaats voor zijn bedrijf.
Bovenland, het lokale industrieterrein, is best centraal in de Randstad gelegen.
Afstand tot de N11 - 11 km - 16 minuten met de auto
Afstand tot de A4 - 12 km - 16 minuten met de auto
Afstand tot de A12 - 19 km - 22 minuten met de auto
Afstand tot de A2 - 28 km - 37 minuten met de auto
Niet voor niets dat bedrijven als de Zittmax (grootste woonwinkel van Nederland), Van Hameren Houthandel en Ponton verhuur, Keukenwarenhuis en vele anderen hier zijn gevestigd.
De belangrijkste kenmerken van deze in aanbouw zijnde bedrijfsruimte;
Perceel 6992 m2
Parkeerplekken 63 (20% beschikt over een mantelbuis voor evt. elektrisch laden)
- Terrein wordt voorzien van stelconplaten
Bebouwd oppervlakte - 3.545 m2 (65,66 meter x 54 meter)
- Kantoorruimte incl dienstruimten 160 m2
- Bedrijfsruimte 1.537 m2
- Opslagruimte /bedrijfsruimte 2.117 m2
Laaddock 5.00 x 20.00 met overheaddeur van 3.10 x 3.00 meter
Overheaddeuren - 3 tal deuren afmetingen 4.16 x 5.00 meter
Vrije hoogte - minimaal 8.55 meter, nok bruto 10.55 meter
Vloerbelasting - 4.000 kg/per m2 op de begane grond en 500 kg/per m2 op de verdieping
Elektra aansluiting - 1.600 kVa en een transportvermogen van 1.492 kWh
Breedte van de bedrijfshallen - resp. 25.85 meter en 27.50 meter
Diepte van de bedrijfshallen - 65.66 meter
Isolatie - Gevel, vloer en wanden zijn optimaal geïsoleerd
In de huidige meters zijn nu de volgende ruimten ondergebracht;
- Opslagruimte
- Productie ruimte
- Siloruimte
- Matrijzenkluis
- Werkplaats
- Kantine
- Schoonmaakhok
- Kleedruimte
- Toiletruimte
- Kantoorruimte
- Vacuümruimte
- Compressor ruimte
- Opslag ruimte
- Server/technische ruimte
In deze fase zou er met mogelijk bouwkundige aanpassingen nog rekening kunnen worden gehouden. Of dit nu de indeling aan gaat of het aanbrengen van PV panelen.
We gaan hierover graag met u in gesprek. U kunt hiervoor bellen of mailen met Ger Hukker 06-53916525
Bestemmingsplan
Het complex valt onder het bestemmingsplan Ter Aar Bovenland, 1e herziening
Bedrijven tot en met milieucategorie 3.2 kunnen zich hier vestigen. Lichte industrie valt onder deze bestemmingsactiviteiten. Wij hebben een uitgebreide lijst voor u beschikbaar om dit te toetsen.
Oplevering
Het ligt in de planning dat de ruimte rond de zomer, zeg uiterlijk september 2026 opgeleverd kan worden.
Huurcondities
De vraaghuur voor het gehele complex bedraagt € 400.000 euro exclusief BTW op jaarbasis.
€ 33.333 exclusief BTW per maand.
Mocht u deze ruimte willen huren dan zullen wij een huurovereenkomst opmaken overeenkomstig het ROZ model d.d. 5 maart 2025.
Waarborgsom c.q. bankgarantie - 3 maanden huur
Kaart
Kaart laden...
Kadastrale grens
Bebouwing
Reistijd
Krijg inzicht in de bereikbaarheid van dit object vanuit bijvoorbeeld een openbaar vervoer station of vanuit een adres.