Nieuw Walden 100 1394 PE Nederhorst den Berg
- Verhuurd
€ 1.650 /mnd
Omschrijving
Op het bedrijventerrein ‘Nieuw Walden’ gelegen multifunctioneel bedrijfspand geschikt voor magazijn-, opslag-, en/of productieruimte. Het bedrijfspand kent een vloeroppervlak van 278 m² verdeeld over twee verdiepingen alsmede het gebruik van 3 parkeerplaatsen gelegen op voorgelegen terrein. Op dit moment is de bedrijfsruimte ingericht als zijnde casco bedrijfsruimte ten behoeve van productie/opslagruimte. Kortom een uitstekende vestigingskans voor ondernemers die functionele bedrijfsruimte zoeken op een goed bereikbare locatie op een kleinschalig industrieterrein.
Bereikbaarheid:
Op het bedrijventerrein zijn grotendeels kleinschalige bedrijfsunits gerealiseerd. De bereikbaarheid van het terrein is goed middels de aansluiting N201 richting de Rijksweg A2 (Utrecht – Amsterdam) alsmede de N201 richting Hilversum en omgeving.
Opleveringsniveau:
Het bedrijfspand zal in de huidige staat worden opgeleverd inclusief de navolgende voorzieningen:
– toilet inclusief fontijn;
– voorbereidingen voor pantry/aansluitingen;
– elektrische overheaddeur;
– sparing in de verdieping ten behoeve van bevoorrading;
– basis verlichting;
– betonnen vloer;
– c.v. gas installatie met radiatoren.
- servicekosten € 465, excl. btw per jaar
Parkeergelegenheid:
De bedrijfsunit beschikt over 3 parkeerplaatsen op voorgelegen, aangrenzend terrein. Het overige buitenterrein is openbaar parkeren.
Bestemming:
Voor het bedrijfspand is de bestemming Bedrijf 1 tot en met categorie 3.1 aangewezen. Dit betreft zowel een handelsonderneming als productiebedrijf.
Huurtermijn:
In overleg
Zekerheidsstelling:
Bij ondertekening van de huurovereenkomst wordt een bankgarantie of waarborgsom verlangd ter grootte van drie maanden huurbetalingsverplichting, vermeerderd met de verschuldigde BTW over dit bedrag.
Huurprijsindexering:
Jaarlijks, voor het eerst één jaar na de huuringangsdatum, wordt de laatst geldende huurprijs verhoogd op basis van het maandprijsindexcijfer voor de gezinsconsumptie CPI Alle Huishoudens (2015 = 100), gepubliceerd door het Centraal Bureau voor de Statistiek (CBS). De huurprijs zal géén daling ondergaan.
Huurovereenkomst:
De op te stellen huurovereenkomst is conform de overeenkomst die door de Raad voor Onroerende Zaken in februari 2015 is vastgesteld en zoals gehanteerd door de Nederlandse Vereniging van Makelaars (NVM) met de bijbehorende algemene bepalingen.
BTW-bepaling:
Huurder en verhuurder verklaren uitdrukkelijk dat bij het vaststellen van de huurprijs uitgangspunt is geweest dat huurder blijvend voldoet aan de criteria welke gesteld zijn of worden voor een belaste verhuur ex. Artikel 11, lid 1 letter b, sub 5, Wet op de omzetbelasting 1968. Indien de belaste verhuur beëindigd wordt dan wel een verzoek tot belaste verhuur niet wordt ingewilligd omdat de huurder niet meer c.q. niet aan de gestelde eisen voldoet, wordt de overeengekomen kale huurprijs, exclusief BTW, zodanig verhoogd dat de verhuurder volledig gecompenseerd wordt voor de BTW op de toerekenbare investeringen en kosten welke hij aan de fiscus moet terugbetalen c.q. niet (meer) in aftrek kan brengen.
Bereikbaarheid:
Op het bedrijventerrein zijn grotendeels kleinschalige bedrijfsunits gerealiseerd. De bereikbaarheid van het terrein is goed middels de aansluiting N201 richting de Rijksweg A2 (Utrecht – Amsterdam) alsmede de N201 richting Hilversum en omgeving.
Opleveringsniveau:
Het bedrijfspand zal in de huidige staat worden opgeleverd inclusief de navolgende voorzieningen:
– toilet inclusief fontijn;
– voorbereidingen voor pantry/aansluitingen;
– elektrische overheaddeur;
– sparing in de verdieping ten behoeve van bevoorrading;
– basis verlichting;
– betonnen vloer;
– c.v. gas installatie met radiatoren.
- servicekosten € 465, excl. btw per jaar
Parkeergelegenheid:
De bedrijfsunit beschikt over 3 parkeerplaatsen op voorgelegen, aangrenzend terrein. Het overige buitenterrein is openbaar parkeren.
Bestemming:
Voor het bedrijfspand is de bestemming Bedrijf 1 tot en met categorie 3.1 aangewezen. Dit betreft zowel een handelsonderneming als productiebedrijf.
Huurtermijn:
In overleg
Zekerheidsstelling:
Bij ondertekening van de huurovereenkomst wordt een bankgarantie of waarborgsom verlangd ter grootte van drie maanden huurbetalingsverplichting, vermeerderd met de verschuldigde BTW over dit bedrag.
Huurprijsindexering:
Jaarlijks, voor het eerst één jaar na de huuringangsdatum, wordt de laatst geldende huurprijs verhoogd op basis van het maandprijsindexcijfer voor de gezinsconsumptie CPI Alle Huishoudens (2015 = 100), gepubliceerd door het Centraal Bureau voor de Statistiek (CBS). De huurprijs zal géén daling ondergaan.
Huurovereenkomst:
De op te stellen huurovereenkomst is conform de overeenkomst die door de Raad voor Onroerende Zaken in februari 2015 is vastgesteld en zoals gehanteerd door de Nederlandse Vereniging van Makelaars (NVM) met de bijbehorende algemene bepalingen.
BTW-bepaling:
Huurder en verhuurder verklaren uitdrukkelijk dat bij het vaststellen van de huurprijs uitgangspunt is geweest dat huurder blijvend voldoet aan de criteria welke gesteld zijn of worden voor een belaste verhuur ex. Artikel 11, lid 1 letter b, sub 5, Wet op de omzetbelasting 1968. Indien de belaste verhuur beëindigd wordt dan wel een verzoek tot belaste verhuur niet wordt ingewilligd omdat de huurder niet meer c.q. niet aan de gestelde eisen voldoet, wordt de overeengekomen kale huurprijs, exclusief BTW, zodanig verhoogd dat de verhuurder volledig gecompenseerd wordt voor de BTW op de toerekenbare investeringen en kosten welke hij aan de fiscus moet terugbetalen c.q. niet (meer) in aftrek kan brengen.
Kenmerken
Overdracht
- Laatste huurprijs
- € 1.650 per maand
- Servicekosten
- € 465 per jaar (21% BTW van toepassing)
- Aangeboden sinds
-
- Status
- Verhuurd
Bouw
- Hoofdfunctie
- Bedrijfshal
- Soort bouw
- Bestaande bouw
- Bouwjaar
- 1999
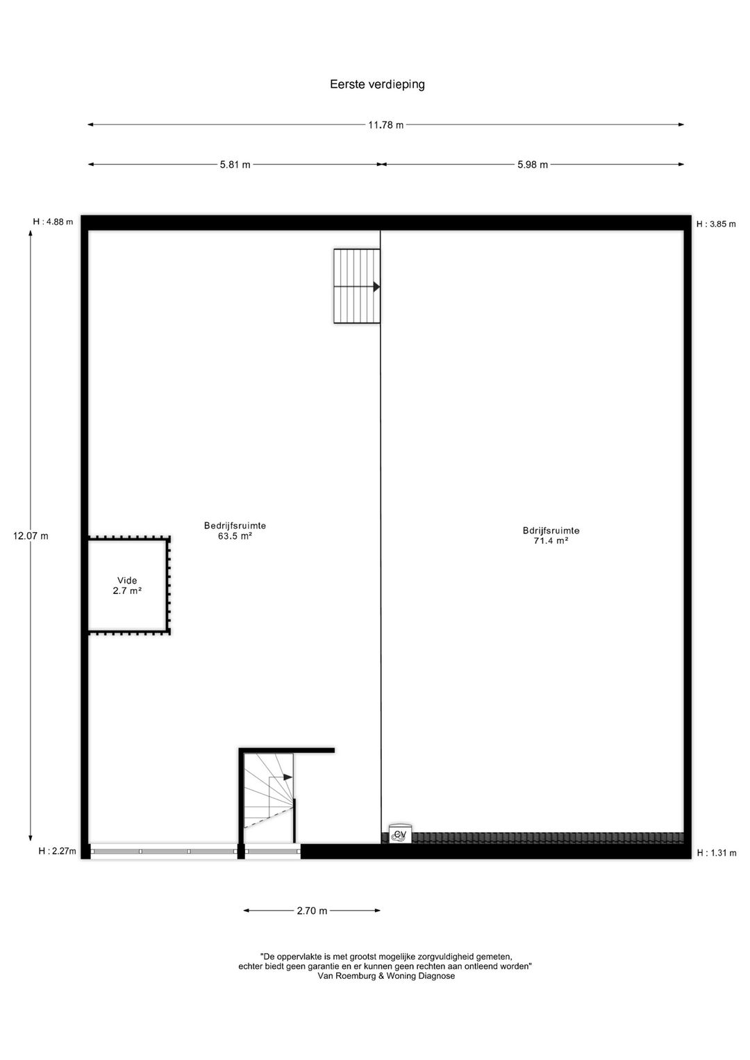
Oppervlakten
- Oppervlakte
- 278 m²
- Bedrijfshal oppervlak
- 278 m²
- Vrije hoogte
- 3,7 m
- Vrije overspanning
- 12 m
- Draagvermogen
- 1.000 kg/m²
Indeling
- Voorzieningen
- Overheaddeuren, krachtstroom, betonvloer, heater en toilet
Energie
- Energielabel
- Niet beschikbaar
Omgeving
- Ligging
- Bedrijventerrein
Foto's