Hastelweg 224 5652 CL Eindhoven
- Verkocht
€ 2.625.000 k.k.
Omschrijving
Hastelweg 224 te Eindhoven (5652 CL).
Op een hoeklocatie gelegen geschakeld bedrijfscomplex bestaande uit ca. 3.849 m² bedrijfs-/opslag-/kantoor- en overige ruimte, met buitenterrein en parkeerplaatsen.
ALGEMEEN
Het deels geschakelde bedrijfscomplex bestaande uit bedrijfs-/opslag-/kantoor- en overige ruimte, alsmede twee buitenterreinen en met aan de voor- en zijkant aangelegde parkeerplaatsen.
Het complex is gebouwd in 1967, echter sindsdien steeds gemoderniseerd en verbeterd. De perceelsgrootte bedraagt ca. 3.368 m².
De vrije hoogte van de twee bouwlagen bedraagt ca. 3.50 meter.
Verdieping Oppervlakte
Begane grond Entree/kleedruimte/cv-ruimte en rookruimte Ca. 86,50 m²
Begane grond Bedrijfs-/opslag-/expeditieruimte Ca. 1.585,00 m²
Begane grond Inbouwen in bedrijfs-/opslagruimte zoals bedrijfskantoren/werkruimte e.d.: Ca. 308,00 m²
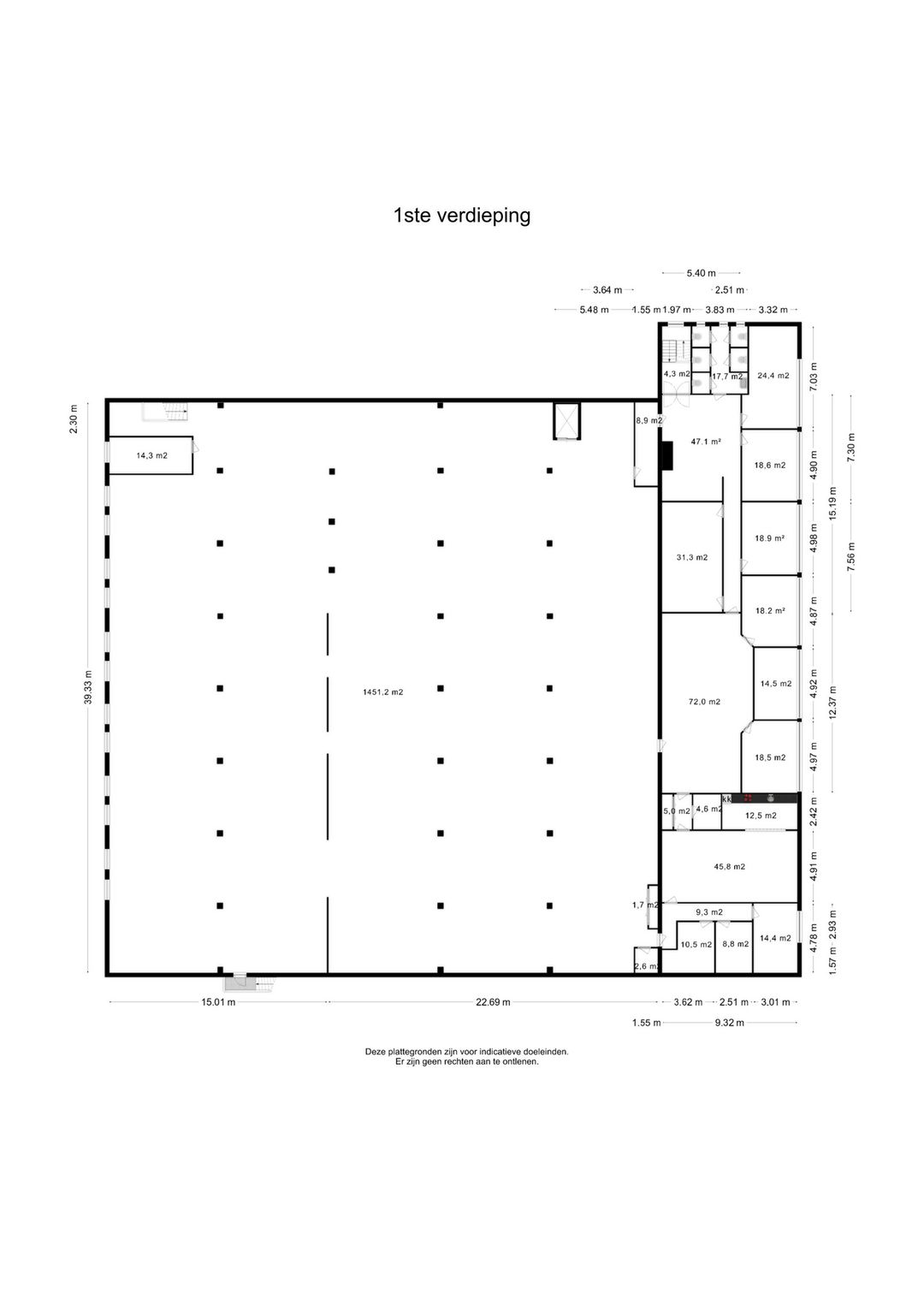
1e etage Bedrijfs-/opslagruimte Ca. 1.477,00 m²
1e etage Kantoor- en overige ruimte Ca. 392,10 m²
Totaal Ca. 3.848,60 m²
Het object beschikt over een energielabel G.
LOCATIE
BEREIKBAARHEID
Per auto
Het bedrijventerrein “De Hurk” is direct gelegen aan de op- en afritten van de randweg N2/A2 (Amsterdam-Maastricht), die een directe verbinding biedt op de A50 (Arnhem-Nijmegen), de A67 (Venlo-Antwerpen) en de A58 (Tilburg-Breda).
Per openbaar vervoer
Het object is goed te bereiken met het openbaar vervoer. De bushaltes van en naar het Centraal Station bevinden zich op 10 minuten loopafstand van het complex. Tevens is het circa een half uur met het OV naar Eindhoven Airport.
PARKEREN
Er bevinden zich 15 parkeerplaatsen gelegen aan de voor- en zijkant van het complex.
OMGEVINGFACTOREN
Het complex is opvallend gelegen op het grootschalige bedrijventerrein “De Hurk” aan de westkant van Eindhoven, ingeklemd tussen enerzijds de rondweg/binnenring aan de oostkant en anderszijds de Rijksweg A2/N2 aan de westkant. Dit bedrijventerrein is van oudsher het meest bekende en meest gewilde bedrijventerrein in de regio Eindhoven. Het kenmerkt zich door een grote verscheidenheid van bedrijven op het gebied van productie, industrie en (groot)handel. Het vormt een gewilde vestigingsplaats voor MKB-bedrijven en (inter)nationaal georiënteerde ondernemingen. De Hastelweg is één van de drukste doorgaande wegen door “De Hurk”. Op korte afstand bevindt zich het centrum van Eindhoven.
“De Hurk” heeft de ambitie om een modern, dynamisch en levensloopbestendig bedrijventerrein te blijven. Onlangs is het terrein omgedoopt tot “Hurk Industry Park – de circulaire hotspot van Nederland”. Onder deze noemer gaan ondernemers op het bedrijventerrein collectief aan de slag met duurzaamheid (bijv. CO2 reductie, zonnepanelen), uitstraling en vergroening van het terrein.
KADASTRALE GEGEVENS
Gemeente: Strijp
Sectie: D
Nummer: 1695
Perceelgrootte: 3.368 m²
OPLEVERINGSNIVEAU KANTOORRUIMTE
De kantoorruimte beschikt thans over o.a. de navolgende voorzieningen:
- systeemplafond met LED inbouwverlichtingsarmaturen en inbouwspots;
- sanitaire voorzieningen op de begane grond en verdieping voorzien van mechanische ventilatie;
- kantine met complete keukeninrichting en airco-unit op de verdieping;
- diverse kantoren voorzien van airco-units;
- overwegend flexibele kunststof scheidingswanden;
- serverruimte op de verdieping;
- was- en kleedruimte op de begane grond;
- diverse brandslanghaspels, handbrandblussers en rookmelders;
- brandmeld-/ontruimings-/alarminstallatie;
- cv-ruimte met gas cv installatie (type Remeha);
- houten kozijnen voorzien van isolerende beglazing.
OPLEVERINGSNIVEAU BEDRIJFSRUIMTE
De bedrijfsruimte beschikt thans over o.a. de navolgende voorzieningen:
- betonvloer begane grond en verdieping;
- LED verlichting;
- goederenlift met een hefvermogen van 1.200 kg;
- compleet vernieuwde elektraruimte;
- het gecontracteerd vermogen bedraagt 126 Kw;
- meerdere brandslanghaspels;
- 10 elektrisch bedienbare overheaddeuren in de zij- en achtergevel;
- bedrijfsruimte is compleet geklimatiseerd en voorzien van 4 nieuwe airco-units;
- meerdere brandslanghaspels;
- kleine “schone” productieruimte in de bedrijfshal;
- gas cv installatie type Remeha (bj 1999) met regelkast;
- twee inpandige bedrijfskantoren met systeemplafond en TL inbouw verlichtingsarmaturen; noodverlichtingsinstallatie;
- hoogspanningsruimte.
OPLEVERINGSNIVEAU BUITENTERREIN
- verhard middels betonklinkers en betonnen stelcon platen;
- stalen elektrisch bedienbare schuifpoort aan één zijde en stalen openslaande poort aan andere zijde;
- luifel tegen de achtergevel.
KOOPGEGEVENS
VRAAGPRIJS
€ 2.625.000,00 kosten koper.
KOSTEN
Het betreft kosten koper. De kosten verbonden aan de eigendomsoverdracht, zijnde de kosten van de akte van levering, de notariskosten met de daarvoor verschuldigde btw en de eventuele financieringskosten (hypotheekakte, afsluitprovisie en taxatiekosten) zijn voor rekening van de koper.
OMZETBELASTING
Omzetbelasting niet van toepassing.
NOTARIS
Instrumenterend notaris door koper te bepalen.
ZEKERHEIDSSTELLING
De koper dient bij ondertekening van de koopovereenkomst aan de verkoper een bankgarantie te overleggen, of bij de notaris een waarborgsom te storten ter grootte van 10% van de koopsom.
AANVAARDING
Aanvaarding in overleg (mogelijk vanaf 1 februari 2026).
LEVERING
Het complex wordt in de huidige staat ‘as is, where is’, doch vrij huur en/of gebruik verkocht en opgeleverd.
BESTEMMING
Het object valt onder het bestemmingsplan ‘bedrijventerrein De Hurk-Croy 2017’ vastgesteld d.d. 19-12-2017 en heeft de bestemming bedrijventerrein -1 (art. 3). Dit impliceert bedrijven tot en met categorie 3.1. De maximale bouwhoogte bedraagt 8 meter. Via omgevingsloket.nl is het gehele bestemmingsplan in te zien.
KOOPOVEREENKOMST
Model koopovereenkomst voor bedrijfs-onroerend goed (model 2019), vastgesteld door de Nederlandse Vereniging van Makelaars in onroerende goederen en vastgoeddeskundigen NVM met de benodigde aanvullingen.
INFORMATIE
Kijk voor meer informatie op Hastelweg224nl
Disclaimer
Deze informatie is door ons kantoor met de meeste zorg samengesteld aan de hand van de door de eigenaar aan ons ter hand gestelde gegevens en tekeningen. Niettemin aanvaarden wij en de opdrachtgever geen enkele aansprakelijkheid voor eventuele onjuistheden. Elke vorm van aansprakelijkheid voor eventuele schade, direct dan wel indirect, als gevolg van de aangeboden informatie, wordt dan ook door ons en de opdrachtgever uitdrukkelijk afgewezen. Het is uitsluitend bedoeld als uitnodiging tot het uitbrengen van een bod c.q. in onderhandeling te treden.
Op een hoeklocatie gelegen geschakeld bedrijfscomplex bestaande uit ca. 3.849 m² bedrijfs-/opslag-/kantoor- en overige ruimte, met buitenterrein en parkeerplaatsen.
ALGEMEEN
Het deels geschakelde bedrijfscomplex bestaande uit bedrijfs-/opslag-/kantoor- en overige ruimte, alsmede twee buitenterreinen en met aan de voor- en zijkant aangelegde parkeerplaatsen.
Het complex is gebouwd in 1967, echter sindsdien steeds gemoderniseerd en verbeterd. De perceelsgrootte bedraagt ca. 3.368 m².
De vrije hoogte van de twee bouwlagen bedraagt ca. 3.50 meter.
Verdieping Oppervlakte
Begane grond Entree/kleedruimte/cv-ruimte en rookruimte Ca. 86,50 m²
Begane grond Bedrijfs-/opslag-/expeditieruimte Ca. 1.585,00 m²
Begane grond Inbouwen in bedrijfs-/opslagruimte zoals bedrijfskantoren/werkruimte e.d.: Ca. 308,00 m²
1e etage Bedrijfs-/opslagruimte Ca. 1.477,00 m²
1e etage Kantoor- en overige ruimte Ca. 392,10 m²
Totaal Ca. 3.848,60 m²
Het object beschikt over een energielabel G.
LOCATIE
BEREIKBAARHEID
Per auto
Het bedrijventerrein “De Hurk” is direct gelegen aan de op- en afritten van de randweg N2/A2 (Amsterdam-Maastricht), die een directe verbinding biedt op de A50 (Arnhem-Nijmegen), de A67 (Venlo-Antwerpen) en de A58 (Tilburg-Breda).
Per openbaar vervoer
Het object is goed te bereiken met het openbaar vervoer. De bushaltes van en naar het Centraal Station bevinden zich op 10 minuten loopafstand van het complex. Tevens is het circa een half uur met het OV naar Eindhoven Airport.
PARKEREN
Er bevinden zich 15 parkeerplaatsen gelegen aan de voor- en zijkant van het complex.
OMGEVINGFACTOREN
Het complex is opvallend gelegen op het grootschalige bedrijventerrein “De Hurk” aan de westkant van Eindhoven, ingeklemd tussen enerzijds de rondweg/binnenring aan de oostkant en anderszijds de Rijksweg A2/N2 aan de westkant. Dit bedrijventerrein is van oudsher het meest bekende en meest gewilde bedrijventerrein in de regio Eindhoven. Het kenmerkt zich door een grote verscheidenheid van bedrijven op het gebied van productie, industrie en (groot)handel. Het vormt een gewilde vestigingsplaats voor MKB-bedrijven en (inter)nationaal georiënteerde ondernemingen. De Hastelweg is één van de drukste doorgaande wegen door “De Hurk”. Op korte afstand bevindt zich het centrum van Eindhoven.
“De Hurk” heeft de ambitie om een modern, dynamisch en levensloopbestendig bedrijventerrein te blijven. Onlangs is het terrein omgedoopt tot “Hurk Industry Park – de circulaire hotspot van Nederland”. Onder deze noemer gaan ondernemers op het bedrijventerrein collectief aan de slag met duurzaamheid (bijv. CO2 reductie, zonnepanelen), uitstraling en vergroening van het terrein.
KADASTRALE GEGEVENS
Gemeente: Strijp
Sectie: D
Nummer: 1695
Perceelgrootte: 3.368 m²
OPLEVERINGSNIVEAU KANTOORRUIMTE
De kantoorruimte beschikt thans over o.a. de navolgende voorzieningen:
- systeemplafond met LED inbouwverlichtingsarmaturen en inbouwspots;
- sanitaire voorzieningen op de begane grond en verdieping voorzien van mechanische ventilatie;
- kantine met complete keukeninrichting en airco-unit op de verdieping;
- diverse kantoren voorzien van airco-units;
- overwegend flexibele kunststof scheidingswanden;
- serverruimte op de verdieping;
- was- en kleedruimte op de begane grond;
- diverse brandslanghaspels, handbrandblussers en rookmelders;
- brandmeld-/ontruimings-/alarminstallatie;
- cv-ruimte met gas cv installatie (type Remeha);
- houten kozijnen voorzien van isolerende beglazing.
OPLEVERINGSNIVEAU BEDRIJFSRUIMTE
De bedrijfsruimte beschikt thans over o.a. de navolgende voorzieningen:
- betonvloer begane grond en verdieping;
- LED verlichting;
- goederenlift met een hefvermogen van 1.200 kg;
- compleet vernieuwde elektraruimte;
- het gecontracteerd vermogen bedraagt 126 Kw;
- meerdere brandslanghaspels;
- 10 elektrisch bedienbare overheaddeuren in de zij- en achtergevel;
- bedrijfsruimte is compleet geklimatiseerd en voorzien van 4 nieuwe airco-units;
- meerdere brandslanghaspels;
- kleine “schone” productieruimte in de bedrijfshal;
- gas cv installatie type Remeha (bj 1999) met regelkast;
- twee inpandige bedrijfskantoren met systeemplafond en TL inbouw verlichtingsarmaturen; noodverlichtingsinstallatie;
- hoogspanningsruimte.
OPLEVERINGSNIVEAU BUITENTERREIN
- verhard middels betonklinkers en betonnen stelcon platen;
- stalen elektrisch bedienbare schuifpoort aan één zijde en stalen openslaande poort aan andere zijde;
- luifel tegen de achtergevel.
KOOPGEGEVENS
VRAAGPRIJS
€ 2.625.000,00 kosten koper.
KOSTEN
Het betreft kosten koper. De kosten verbonden aan de eigendomsoverdracht, zijnde de kosten van de akte van levering, de notariskosten met de daarvoor verschuldigde btw en de eventuele financieringskosten (hypotheekakte, afsluitprovisie en taxatiekosten) zijn voor rekening van de koper.
OMZETBELASTING
Omzetbelasting niet van toepassing.
NOTARIS
Instrumenterend notaris door koper te bepalen.
ZEKERHEIDSSTELLING
De koper dient bij ondertekening van de koopovereenkomst aan de verkoper een bankgarantie te overleggen, of bij de notaris een waarborgsom te storten ter grootte van 10% van de koopsom.
AANVAARDING
Aanvaarding in overleg (mogelijk vanaf 1 februari 2026).
LEVERING
Het complex wordt in de huidige staat ‘as is, where is’, doch vrij huur en/of gebruik verkocht en opgeleverd.
BESTEMMING
Het object valt onder het bestemmingsplan ‘bedrijventerrein De Hurk-Croy 2017’ vastgesteld d.d. 19-12-2017 en heeft de bestemming bedrijventerrein -1 (art. 3). Dit impliceert bedrijven tot en met categorie 3.1. De maximale bouwhoogte bedraagt 8 meter. Via omgevingsloket.nl is het gehele bestemmingsplan in te zien.
KOOPOVEREENKOMST
Model koopovereenkomst voor bedrijfs-onroerend goed (model 2019), vastgesteld door de Nederlandse Vereniging van Makelaars in onroerende goederen en vastgoeddeskundigen NVM met de benodigde aanvullingen.
INFORMATIE
Kijk voor meer informatie op Hastelweg224nl
Disclaimer
Deze informatie is door ons kantoor met de meeste zorg samengesteld aan de hand van de door de eigenaar aan ons ter hand gestelde gegevens en tekeningen. Niettemin aanvaarden wij en de opdrachtgever geen enkele aansprakelijkheid voor eventuele onjuistheden. Elke vorm van aansprakelijkheid voor eventuele schade, direct dan wel indirect, als gevolg van de aangeboden informatie, wordt dan ook door ons en de opdrachtgever uitdrukkelijk afgewezen. Het is uitsluitend bedoeld als uitnodiging tot het uitbrengen van een bod c.q. in onderhandeling te treden.
Kenmerken
Overdracht
- Laatste vraagprijs
- € 2.625.000 kosten koper
- Aangeboden sinds
-
- Status
- Verkocht
Bouw
- Hoofdfunctie
- Bedrijfshal
- Soort bouw
- Bestaande bouw
- Bouwjaar
- 1964
Oppervlakten
- Oppervlakte
- 3.849 m²
- Bedrijfshal oppervlak
- 3.849 m²
- Perceel
- 3.368 m²
Indeling
- Voorzieningen
- Airconditioning, overheaddeuren en betonvloer
Energie
- Energielabel
- G
Omgeving
- Ligging
- Bedrijventerrein
Foto's