Kooijweg 20 8715 EP Stavoren
- Verkocht
Prijs n.o.t.k.
Omschrijving
WERKEN AAN HET IJSSELMEER | HERONTWIKKELINGSLOCATIE
Aan de rand van één van de elf steden van Fryslân bieden wij namens de eigenaar een bijzonder complex te koop aan. Het betreft de locatie van Huberts Stavoren. Huberts Stavoren is al tientallen jaren een belangrijke speler op de wereldmarkt voor waterbehandelingsapparatuur. De eigenaar - Harlingen Holding Industries - heeft besloten om de bedrijfsactiviteiten te verplaatsen naar Sneek waar dochter Landustrie is gevestigd. Door deze strategische keuze komt het grote en zeer fraai gelegen bedrijvencomplex, gelegen op bijna 3 hectare grond te koop.
OBJECTBESCHRIJVING
Het complex bestaat uit de volgende onderdelen:
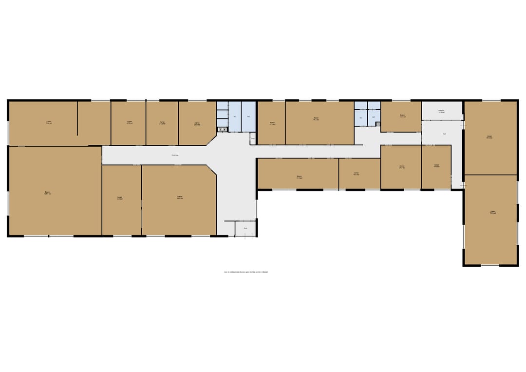
• Vrijstaand kantoorgebouw - BVO 895 m2 en VVO van 814 m2
• Vijf aaneengesloten hoge bedrijfshallen – BVO 5.731 m2 en VVO 5.458 m2
inpandige kantoorruimte – BVO 251 m2 en VVO 239 m2
• Groot buitenterrein van meer dan 10.000 m2
Vrijstaande kantoorgebouw:
Entree met tochthal, centrale hal met gangen naar beide vleugels, toiletgroep en werkkast. Zeven kantoren van wisselende grootte in de zuidvleugel en negen kantoren van wisselende grootte in de noordvleugel. Verwarming middels gasgestookte centrale verwarming.
Bedrijfshallen met inpandige kantine:
Entree aan de westzijde met tochthal die toegang biedt tot de royale kantineruimte met keuken, buffet en zitgedeelte. Diverse bergingen en archiefruimte aan de zuidwestzijde. Aansluitend liggen twee ‘kortere’ bedrijfshallen van elk 15 m x 44 m en daar weer achter liggen drie bedrijfshallen van 20 x 65 m. In de laatste grote hal bevindt zich tevens toiletruimten en een etage met kantoorruimte.
Buitenterrein:
Het buitenterrein is goed ontsloten en is deels verhard. Het terrein is op twee plaatsen ontsloten naar de openbare weg. De hoofdentree aan de noordzijde en een westelijke uitgang die door de huidige eigenaar werd gebruikt om grote producten op transport op schepen te kunnen plaatsen. Het terrein grenst niet rechtstreeks aan het IJsselmeer.
ALGEMEEN
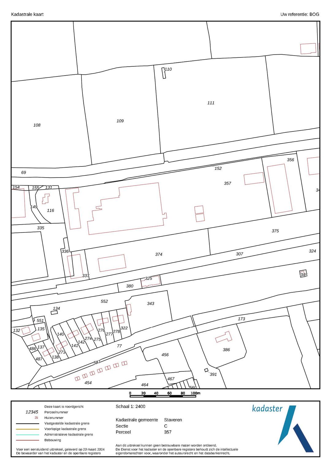
• Eigen grond - 29.171 m2
• Bouwperiode - zestiger jaren
• Energielabel kantoor - label C
• Kantoor - baksteen gevels, plat dak met bitumen
• Hallen - staalbouw met gevelbekleding
BESTEMMINGSPLAN
• Bestemmingsplan Gemeente Súdwest-Fryslân - Stavoren
• Bestemming - Bedrijventerrein
• Zwaarteklasse - Categorie 1, 2 en 3
BIJZONDERHEDEN
• Bodem is deels gesaneerd. Afhankelijk van gebruiksdoel moet verdere sanering worden beoordeeld. Bodemrapportage op aanvraag beschikbaar;
• Aan de zuidgevel van het complex is een zendmast van T-Mobile geplaatst. De huurinkomsten bedragen € 5.000,00 per jaar. Contract is jaarlijks opzegbaar;
LIGGING/OMGEVING
Het bedrijfscomplex is onderdeel van een kleinschalig bedrijventerrein direct ten noorden van het stadje en het station van Stavoren waar het door haar omvang een substantieel deel vanuit maakt. Op dit bedrijventerrein zijn vier bedrijven gevestigd dit tevens de extra bestemming bedrijfswoning hebben. Dit geldt momenteel niet voor het bedrijfscomplex dat hierbij wordt aangeboden.
GEBRUIK- EN ONTWIKKELMOGELIJKHEDEN
• Voortgezet gebruik van de bestaande hallen, kantoor en buitenterrein;
• Voortgezet gebruik van delen van de hallen en herontwikkeling van het kantoor en het grote buitenterrein;
• Volledige sloop en vervangende nieuwbouw;
• De gemeente is bereid om mee te denken over de ontwikkeling van het terrein.
INLICHTINGEN
Bezichtigingen en aanvullende informatie via Hoekstra Bedrijfsmakelaars.
Tel. 058-2337337 | E-mail
Aanvullende informatie is ook te vinden op
DISCLAIMER
Deze aanbieding (inclusief bijlagen) van 'Hoekstra Bedrijfsmakelaars’ is met grote zorgvuldigheid samengesteld. Voor mogelijke onjuistheid en/of onvolledigheid van de hierin verstrekte informatie kan 'Hoekstra Bedrijfsmakelaars’ geen aansprakelijkheid aanvaarden. Evenmin kunnen aan de inhoud van deze aanbieding (inclusief bijlagen) rechten worden ontleend.
Aan de rand van één van de elf steden van Fryslân bieden wij namens de eigenaar een bijzonder complex te koop aan. Het betreft de locatie van Huberts Stavoren. Huberts Stavoren is al tientallen jaren een belangrijke speler op de wereldmarkt voor waterbehandelingsapparatuur. De eigenaar - Harlingen Holding Industries - heeft besloten om de bedrijfsactiviteiten te verplaatsen naar Sneek waar dochter Landustrie is gevestigd. Door deze strategische keuze komt het grote en zeer fraai gelegen bedrijvencomplex, gelegen op bijna 3 hectare grond te koop.
OBJECTBESCHRIJVING
Het complex bestaat uit de volgende onderdelen:
• Vrijstaand kantoorgebouw - BVO 895 m2 en VVO van 814 m2
• Vijf aaneengesloten hoge bedrijfshallen – BVO 5.731 m2 en VVO 5.458 m2
inpandige kantoorruimte – BVO 251 m2 en VVO 239 m2
• Groot buitenterrein van meer dan 10.000 m2
Vrijstaande kantoorgebouw:
Entree met tochthal, centrale hal met gangen naar beide vleugels, toiletgroep en werkkast. Zeven kantoren van wisselende grootte in de zuidvleugel en negen kantoren van wisselende grootte in de noordvleugel. Verwarming middels gasgestookte centrale verwarming.
Bedrijfshallen met inpandige kantine:
Entree aan de westzijde met tochthal die toegang biedt tot de royale kantineruimte met keuken, buffet en zitgedeelte. Diverse bergingen en archiefruimte aan de zuidwestzijde. Aansluitend liggen twee ‘kortere’ bedrijfshallen van elk 15 m x 44 m en daar weer achter liggen drie bedrijfshallen van 20 x 65 m. In de laatste grote hal bevindt zich tevens toiletruimten en een etage met kantoorruimte.
Buitenterrein:
Het buitenterrein is goed ontsloten en is deels verhard. Het terrein is op twee plaatsen ontsloten naar de openbare weg. De hoofdentree aan de noordzijde en een westelijke uitgang die door de huidige eigenaar werd gebruikt om grote producten op transport op schepen te kunnen plaatsen. Het terrein grenst niet rechtstreeks aan het IJsselmeer.
ALGEMEEN
• Eigen grond - 29.171 m2
• Bouwperiode - zestiger jaren
• Energielabel kantoor - label C
• Kantoor - baksteen gevels, plat dak met bitumen
• Hallen - staalbouw met gevelbekleding
BESTEMMINGSPLAN
• Bestemmingsplan Gemeente Súdwest-Fryslân - Stavoren
• Bestemming - Bedrijventerrein
• Zwaarteklasse - Categorie 1, 2 en 3
BIJZONDERHEDEN
• Bodem is deels gesaneerd. Afhankelijk van gebruiksdoel moet verdere sanering worden beoordeeld. Bodemrapportage op aanvraag beschikbaar;
• Aan de zuidgevel van het complex is een zendmast van T-Mobile geplaatst. De huurinkomsten bedragen € 5.000,00 per jaar. Contract is jaarlijks opzegbaar;
LIGGING/OMGEVING
Het bedrijfscomplex is onderdeel van een kleinschalig bedrijventerrein direct ten noorden van het stadje en het station van Stavoren waar het door haar omvang een substantieel deel vanuit maakt. Op dit bedrijventerrein zijn vier bedrijven gevestigd dit tevens de extra bestemming bedrijfswoning hebben. Dit geldt momenteel niet voor het bedrijfscomplex dat hierbij wordt aangeboden.
GEBRUIK- EN ONTWIKKELMOGELIJKHEDEN
• Voortgezet gebruik van de bestaande hallen, kantoor en buitenterrein;
• Voortgezet gebruik van delen van de hallen en herontwikkeling van het kantoor en het grote buitenterrein;
• Volledige sloop en vervangende nieuwbouw;
• De gemeente is bereid om mee te denken over de ontwikkeling van het terrein.
INLICHTINGEN
Bezichtigingen en aanvullende informatie via Hoekstra Bedrijfsmakelaars.
Tel. 058-2337337 | E-mail
Aanvullende informatie is ook te vinden op
DISCLAIMER
Deze aanbieding (inclusief bijlagen) van 'Hoekstra Bedrijfsmakelaars’ is met grote zorgvuldigheid samengesteld. Voor mogelijke onjuistheid en/of onvolledigheid van de hierin verstrekte informatie kan 'Hoekstra Bedrijfsmakelaars’ geen aansprakelijkheid aanvaarden. Evenmin kunnen aan de inhoud van deze aanbieding (inclusief bijlagen) rechten worden ontleend.
Kenmerken
Overdracht
- Laatste vraagprijs
- Prijs nader overeen te komen
- Aangeboden sinds
-
- Status
- Verkocht
Bouw
- Hoofdfunctie
- Bedrijfshal
- Soort bouw
- Bestaande bouw
- Bouwperiode
- 1960-1970
Oppervlakten
- Oppervlakte
- 6.511 m²
- Bedrijfshal oppervlak
- 5.458 m²
- Terrein oppervlak
- 10.000 m²
- Kantoor oppervlak
- 1.053 m²
- Vrije hoogte
- 10 m
- Vrije overspanning
- 20 m
- Perceel
- 29.171 m²
- Uitbreidingsmogelijkheden
- (maximale bouwhoogte: 12 m)
Indeling
- Aantal bouwlagen
- 2 bouwlagen
- Voorzieningen
- Lichtstraten, overheaddeuren, krachtstroom, betonvloer, heater, toilet, pantry, inbouwarmaturen en te openen ramen
Energie
- Energielabel
- C
Omgeving
- Ligging
- Bedrijventerrein, landelijk gebied, stationslocatie en havengebied
- Bereikbaarheid
- Bushalte op minder dan 500 m en NS Intercitystation op minder dan 500 m
Foto's