Handelsweg 5-T 3707 NG Zeist

€ 1.640 /mnd
Blikvanger Multifunctionele bedrijfsunits in Zeist!

Omschrijving

TE HUUR! Direct langs de A28 is aan de Handelsweg in Zeist deze prachtige nieuwbouw bedrijfsunit gerealiseerd. Wij bieden hier een multifunctionele bedrijfsunit aan voor de verhuur.

De bedrijfsunit beschikt over een vloeroppervlakte van circa 124 m² BVO, verdeeld over de begane grond en eerste verdieping. De bedrijfsruimte op de begane grond is voorzien van een overheaddeur, separate toiletruimte met wasbak, krachtstroom, elektrische wandcontactpunten en heeft een vloerbelasting van 1.500 kg/m².

Via een vaste trap is de ruimte op de eerste verdieping bereikbaar. Deze ruimte is voorzien van te openen ramen, een strak afgewerkte systeemplafond met LED-verlichtingsarmaturen en is uitstekend te gebruiken als kantoorruimte. Tevens zijn de voorzieningen getroffen voor een pantry, is er een elektrisch ventilatiesysteem aanwezig en zijn de binnenwanden volledig geïsoleerd.

De bedrijfsunit is op de begane grond en eerste verdieping voorzien van vloerverwarming waarbij wordt verwarmd middels een elektrische C.V.-installatie en beschikken over een energielabel A++.

De bedrijfsunit ligt in een prachtige groene bosrijke omgeving, maar is ook zeer goed bereikbaar vanaf de rijksweg A28 en diverse provinciale wegen. In de nabije omgeving zijn diverse grote kantoorbedrijven gevestigd en een ruime mix aan bedrijfsmatige ondernemers.

Wilt u meer weten over deze prachtige bedrijfsunit?
Neem dan contact met ons op. Wij bieden u graag een vrijblijvende rondleiding aan op deze locatie. Zo kunt u direct beoordelen of uw bedrijf zich kan huisvesten op een nieuwe plek!

Indeling en voorzieningen
De bedrijfsunit wordt standaard opgeleverd voorzien van entreehal met plafondverlichting, deurbel, meterkast, trap en glasvezelaansluiting. Daarnaast zal de bedrijfsunit worden opgeleverd voorzien van:

De bedrijfshal zal worden opgeleverd, onder andere voorzien van:
• Toiletvoorziening met wasbak;
• Krachtstroom aansluiting (5 polig);
• Wandcontactpunten;
• Elektrische C.V. met vloerverwarming en thermostaat;
• Verlichting plafond;
• Elektrische overheaddeur;
• Mantelbuis naar parkeerplek voor EV-laadpaal.

De kantoorruimte zal worden opgeleverd, onder andere voorzien van:
• Vloerverwarming en thermostaat;
• Systeemplafond met LED-verlichtingsarmaturen;
• Voorzieningen voor pantry;
• Elektriciteit (ingebouwd);
• Geïsoleerde binnenwanden;
• Ventilatiesysteem.

Vloeroppervlakte
De totale vloeroppervlakte bedraagt 124 m² BVO, gelijkmatig verdeeld over de begane grond en eerste verdieping.

De genoemde metrages zijn niet bepaald op basis van een NEN-meting en derhalve indicatief en vrijblijvend van aard.

Parkeren
Bij de bedrijfsunit behoren twee (2) parkeerplaatsen.

Bestemmingsplan
De locatie is opgenomen in het bestemmingsplan Zeist Noord en aangeduid met de bestemming Bedrijventerrein met de functieaanduiding tot en met categorie 3.2.

Huurprijs
€ 1.640,00 per maand, exclusief servicekosten en btw.

Btw
Het uitgangspunt is btw belaste verhuur. Indien huurder de btw niet kan verrekenen dan zal de huurprijs met een nader vast te stellen bedrag worden verhoogd.

Huurprijsaanpassing
Jaarlijks, op basis van de wijziging van het maandprijs-indexcijfer volgens de consumentenprijsindex (CPI) reeks CPI-Alle Huishoudens (2015 = 100), gepubliceerd door het Centraal Bureau voor de Statistiek (CBS).

Servicekosten
Een verrekenbaar voorschot van € 134,00 per maand te vermeerderen met btw ten behoeve van de navolgende leveringen en diensten:
• Onderhoud groenvoorzieningen bedrijventerrein;
• Onderhoud daken en overheaddeuren;
• Onderhoud brandblusmiddelen;
• Onderhoud van het mandelig terrein;
• Glasbewassing.

Betaling
Huurpenningen en btw per maand vooruit.

Zekerheidsstelling
Afhankelijk van de financiële gegoedheid van de kandidaat een bankgarantie of waarborgsom ter grootte van minimaal drie (3) maanden huur, inclusief btw.

Aanvaarding
In overleg.

Huurtermijn
5 jaar met verlengingsperioden van telkens 5 jaar.

Opzegtermijn
12 maanden.

Overige condities
Huurovereenkomst op basis van het meest recente standaardmodel van de Raad voor Onroerende Zaken (ROZ).

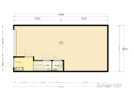
Plattegronden
De in deze projectinformatie opgenomen tekeningen zijn slechts van indicatieve aard. Hieraan kunnen geen rechten worden ontleend.

De vermelde informatie behelst geen aanbod doch globale informatie van algemene aard. De informatie is niet meer dan een uitnodiging om in onderhandeling te treden. CMC Bedrijfsmakelaars staat niet in voor de juistheid en volledigheid van de informatie. Aan de inhoud van deze informatie kunnen geen rechten worden ontleend.

Kenmerken

Overdracht

Huurprijs
€ 1.640 per maand
Servicekosten
€ 134 per maand (21% BTW van toepassing)
Aangeboden sinds
Status
Beschikbaar
Aanvaarding
In overleg

Bouw

Hoofdfunctie
Bedrijfshal
Soort bouw
Bestaande bouw
Bouwjaar
2023

Oppervlakten

Oppervlakte
124 m²
Bedrijfshal oppervlak
62 m²
Kantoor oppervlak
62 m²
Vrije hoogte
3,7 m
Draagvermogen
1.500 kg/m²

Indeling

Aantal bouwlagen
1 bouwlaag
Voorzieningen
Mechanische ventilatie, overheaddeuren, krachtstroom, toilet, inbouwarmaturen en te openen ramen

Energie

Energielabel
A++

Omgeving

Ligging
Bedrijventerrein
Bereikbaarheid
Bushalte op minder dan 500 m, busknooppunt op 5000 m of meer, metrohalte op 5000 m of meer, metroknooppunt op 5000 m of meer, NS Intercitystation op 5000 m of meer, snelwegafrit op minder dan 500 m, Tramhalte op 5000 m of meer en tramknooppunt op 5000 m of meer

Parkeergelegenheid

Parkeerplaatsen
2 niet-overdekte parkeerplaatsen

Kaart

Kaart laden...

Kadastrale grens Bebouwing

Reistijd

Krijg inzicht in de bereikbaarheid van dit object vanuit bijvoorbeeld een openbaar vervoer station of vanuit een adres.

Handelsweg 5-T

€ 1.640 /mnd