• Sold under reservation

Krauwelsgors 2 4772 PE Langeweg

Price on request
Eyecatcher Wilofkwekerij met woning, en diverse bedrijfsgebouwen

Description

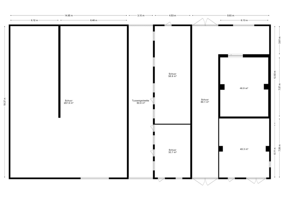
Deze witlofkwekerij vormt een compleet en overzichtelijk geheel, bestaande uit een woning met tuin, een authentieke schuur, een schuur met aanbouw, een bedrijfsloods, erf en omliggende landbouwgrond. Het bedrijf ligt in een open landschap. Je geniet hier van rust, ruimte en vrij uitzicht, terwijl de dorpskern van Langeweg op korte afstand ligt voor de dagelijkse voorzieningen. Daarnaast zijn de uitvalswegen richting omliggende dorpen en steden snel en gemakkelijk bereikbaar, wat zorgt voor een prettige ligging.

Het geheel vormt een uitstekende basis voor een functioneel bedrijf. De locatie biedt mogelijkheden voor voortzetting van de huidige bedrijfsvoering of voor alternatieve (agrarische) activiteiten.

Het object wordt aangeboden op circa 0.90.00 ha grond. De direct aangrenzende landbouwgrond ter grootte van circa 1.60.00 ha is optioneel aan te kopen.

De locatie heeft een agrarische bestemming. Dit betekent dat bewoning uitsluitend is toegestaan wanneer u ter plaatse een volwaardig agrarisch bedrijf exploiteert.

Het bestemmingsplan geeft diverse gebruiks- en omzettingsmogelijkheden. Wij informeren u graag over de mogelijkheden.

Download de brochure voor meer informatie of neem contact op met onze makelaar Bob Michielsen (telefoonnummer 06-30082306)..

Features

Transfer of ownership

Asking price
Price on request
Listed since
Status
Sold under reservation
Acceptance
Available in consultation

Construction

Main use
Other
Building type
Resale property
Constructions
3 constructions (year of construction between 1920 and 2000)

Surface areas

Type of soil
Sandy clay

Living space

Company houses
1
Main residence
Volume
432 m³
Year of construction
1910

Cadastral data

ZEVENBERGEN R 57
Cadastral map
Ownership situation
0 ha 7 a 75 ca (whole parcel)
ZEVENBERGEN R 58
Ownership situation
0 ha 18 a 70 ca (whole parcel)
ZEVENBERGEN R 60
Ownership situation
0 ha 54 a 0 ca (whole parcel)
ZEVENBERGEN R 566
Ownership situation
0 ha 65 a 15 ca (whole parcel)
ZEVENBERGEN R 568
Ownership situation
0 ha 41 a 56 ca (whole parcel)
ZEVENBERGEN R 570
Ownership situation
0 ha 62 a 84 ca (whole parcel)

Map

Map is loading...

Cadastral boundaries Buildings

Travel time

Gain insight into the reachability of this object, for instance from a public transport station or a home address.

Krauwelsgors 2

Price on request