Description
GLOEDNIEUWE BEDRIJFSUNIT TE HUUR IN AALSMEER
Bent u op zoek naar een praktische en compacte nieuwbouw bedrijfsunit in Aalsmeer? In het project Layers Aalsmeer II aan de Samoaweg 45B in Aalsmeer is recent deze moderne bedrijfsunit van ca. 85 m² opgeleverd. De afbouw van de bedrijfsruimte is recent afgerond.
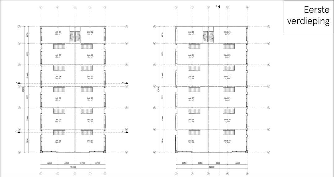
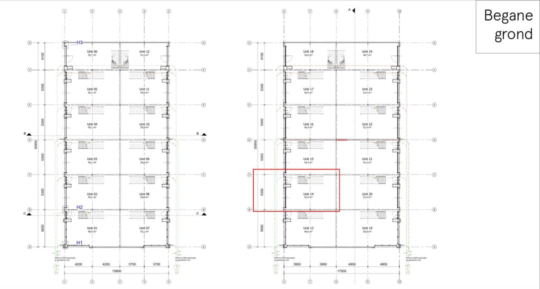
De energiezuinige unit bestaat uit een bedrijfsruimte op de begane grond van ca. 42,4 m² (BVO) en een bedrijfs-/kantoorruimte op de eerste verdieping van ca. 42,4 m² (BVO). De nieuwbouw bedrijfsruimte heeft een diepte van ca. 7,9 meter en een breedte ca. 5,3 meter. Hierdoor is de ruimte voor veel verschillende doeleinden te gebruiken. De unit is voorzien van een elektrische overheaddeur en een separate loopdeur. Door de keuze van veel lichtdoorlatende materialen is zowel de begane grond als de eerste verdieping voorzien van veel daglicht.
KENMERKEN VAN DE UNIT
De unit is afgebouwd en direct gereed voor uw intrek!
Bedrijfsruimte, begane grond:
- Gladde betonvloer met een draagvermogen van 1.000 kg/m².
- Elektrische overheaddeur met loopdeur en veel daglichttoetreding.
- Toilet.
- Led verlichting.
- Trap naar de 1e verdieping.
- Wandcontactdozen.
- Reclamepaneel op de voorgevel.
Bedrijfs-/kantoorruimte, eerste verdieping:
- Verdiepingsvloer is voorzien van een zandcementdekvloer en daarna pvc visgraat vloer. U hoeft alleen nog maar uw spullen neer te zetten!
- Pantry bestaande uit 3 onderkastjes en 2 bovenkasten, inclusief vaatwasser en close-in boiler.
- Natuurlijke toevoer via de ventilatieroosters in de ramen.
- Wandcontactdozen.
- Airco unit t.b.v. verwarmen en koelen.
- Led verlichting.
AANVULLENDE INFORMATIE
- Nutsaansluitingen: het object heeft een elektra- (3*25A), water- en glasvezel internetaansluiting. Een gasaansluiting is niet meer aanwezig bij nieuwbouw. Huurder dient een contract af te sluiten voor elektra en water.
- Parkeerplaats: 2 parkeerplaatsen, direct voor de deur.
- Bereikbaarheid: de Samoaweg 45B in Aalsmeer is zeer goed bereikbaar en bevindt zich op Green Park Aalsmeer. Het bedrijventerrein is gesitueerd langs naast de (nieuwe) Hoogvliet de N201 wat de verbindingsweg is tussen de A2 en de A4. De locatie is gelegen in de directe nabijheid van de bloemenveiling Royal FloraHolland Aalsmeer en op nog geen 10 km afstand van Schiphol.
HUURPRIJS BEDRIJFSUNIT
- Ca. 84,8 m² bedrijfs-/ kantoorruimte, verdeelt over 2 verdiepingen.
- Huur € 1.250,- per maand, excl. btw.
- Vergoeding servicekosten € 50,- per maand, excl. btw.
BESTEMMING
De aangeboden unit heeft bestemming Gemengd – 2. Deze locatie heeft daarmee een zeer ruimte bestemming en is onder andere geschikt ten behoeve van:
- Bedrijven tot en met categorie 2;
- Bedrijfsmatig gebruik voor dienstverlenende bedrijven;
- Gebruik als kantoor;
- Gebruik voor maatschappelijke voorzieningen.
Het een en ander zoals omschreven in het bestemmingsplan "Green Park Aalsmeer deelgebied 2 Oost". Voor meer informatie kunt u contact met ons opnemen en/of het omgevingsloket raadplegen.
HUURVOORWAARDEN
Waar dient u als huurder rekening mee te houden bij het huren van een bedrijfsruimte:
- Bovengenoemde huurprijzen zijn voor de situatie zoals hierboven omschreven. Indien u aanvullende wensen of eisen heeft, kan dit invloed hebben op de huurprijs.
- Servicekosten: € 50,- per maand excl. btw. Dit is voor huurders zaken welke binnen het VvE collectief worden geregeld (zoals groen- en terreinonderhoud).
- Huurtermijn: 3 (drie) of 5 (vijf) jaar met een automatische verlenging van telkens 3 (drie) of 5 (vijf) jaar. Andere termijnen in overleg beschikbaar.
- Waarborgsom: 3 (drie) bruto maandverplichtingen, te weten een bedrag ter grootte van 3 (drie) maanden huur plus servicekosten en de daarover belastte btw. Over de waarborgsom wordt geen rente vergoed. Huurder mag de huur niet verrekenen met de waarborgsom. Na beëindiging van de huurovereenkomst wordt de borg geretourneerd.
- Opzegtermijn: dit bedraagt temminste 6 (zes) of 12 (twaalf) maanden voor het einde van uw huurtermijn.
- Huurprijsaanpassing: jaarlijkse verhoging, voor het eerst een jaar na ingangsdatum van het huurcontract. Dit op basis van de wijziging van het maandprijsindexcijfer volgens de consumentenprijsindex (CPI) “alle huishoudens” (2015 = 100), gepubliceerd door het Centraal Bureau voor de statistiek (CBS).
- Betaling: per maand vooruit.
- BTW: de verhuurder opteert voor een BTW belaste huur.
WILT U DE RUIMTE IN HET ECHT ZIEN?
Bent u overtuigd van de mogelijkheden die de representatieve bedrijfsunit u te bieden heeft? Neem direct contact met ons op voor het inplannen van een afspraak!
Disclaimer
Het gestelde in deze objectinformatie behelst vrijblijvende en globale informatie met betrekking tot het daarbij genoemde onroerend goed. De beschikbaarheid is indicatief en onder uitdrukkelijk voorbehoud goedkeuring en overleg opdrachtgever. Aan de inhoud van deze informatie kunnen geen rechten worden ontleend. Door aanvaarding van de vermelde condities respectievelijk door het doen van een tegenvoorstel, worden onze opdrachtgevers dan wel ons kantoor niet gebonden.
Bent u op zoek naar een praktische en compacte nieuwbouw bedrijfsunit in Aalsmeer? In het project Layers Aalsmeer II aan de Samoaweg 45B in Aalsmeer is recent deze moderne bedrijfsunit van ca. 85 m² opgeleverd. De afbouw van de bedrijfsruimte is recent afgerond.
De energiezuinige unit bestaat uit een bedrijfsruimte op de begane grond van ca. 42,4 m² (BVO) en een bedrijfs-/kantoorruimte op de eerste verdieping van ca. 42,4 m² (BVO). De nieuwbouw bedrijfsruimte heeft een diepte van ca. 7,9 meter en een breedte ca. 5,3 meter. Hierdoor is de ruimte voor veel verschillende doeleinden te gebruiken. De unit is voorzien van een elektrische overheaddeur en een separate loopdeur. Door de keuze van veel lichtdoorlatende materialen is zowel de begane grond als de eerste verdieping voorzien van veel daglicht.
KENMERKEN VAN DE UNIT
De unit is afgebouwd en direct gereed voor uw intrek!
Bedrijfsruimte, begane grond:
- Gladde betonvloer met een draagvermogen van 1.000 kg/m².
- Elektrische overheaddeur met loopdeur en veel daglichttoetreding.
- Toilet.
- Led verlichting.
- Trap naar de 1e verdieping.
- Wandcontactdozen.
- Reclamepaneel op de voorgevel.
Bedrijfs-/kantoorruimte, eerste verdieping:
- Verdiepingsvloer is voorzien van een zandcementdekvloer en daarna pvc visgraat vloer. U hoeft alleen nog maar uw spullen neer te zetten!
- Pantry bestaande uit 3 onderkastjes en 2 bovenkasten, inclusief vaatwasser en close-in boiler.
- Natuurlijke toevoer via de ventilatieroosters in de ramen.
- Wandcontactdozen.
- Airco unit t.b.v. verwarmen en koelen.
- Led verlichting.
AANVULLENDE INFORMATIE
- Nutsaansluitingen: het object heeft een elektra- (3*25A), water- en glasvezel internetaansluiting. Een gasaansluiting is niet meer aanwezig bij nieuwbouw. Huurder dient een contract af te sluiten voor elektra en water.
- Parkeerplaats: 2 parkeerplaatsen, direct voor de deur.
- Bereikbaarheid: de Samoaweg 45B in Aalsmeer is zeer goed bereikbaar en bevindt zich op Green Park Aalsmeer. Het bedrijventerrein is gesitueerd langs naast de (nieuwe) Hoogvliet de N201 wat de verbindingsweg is tussen de A2 en de A4. De locatie is gelegen in de directe nabijheid van de bloemenveiling Royal FloraHolland Aalsmeer en op nog geen 10 km afstand van Schiphol.
HUURPRIJS BEDRIJFSUNIT
- Ca. 84,8 m² bedrijfs-/ kantoorruimte, verdeelt over 2 verdiepingen.
- Huur € 1.250,- per maand, excl. btw.
- Vergoeding servicekosten € 50,- per maand, excl. btw.
BESTEMMING
De aangeboden unit heeft bestemming Gemengd – 2. Deze locatie heeft daarmee een zeer ruimte bestemming en is onder andere geschikt ten behoeve van:
- Bedrijven tot en met categorie 2;
- Bedrijfsmatig gebruik voor dienstverlenende bedrijven;
- Gebruik als kantoor;
- Gebruik voor maatschappelijke voorzieningen.
Het een en ander zoals omschreven in het bestemmingsplan "Green Park Aalsmeer deelgebied 2 Oost". Voor meer informatie kunt u contact met ons opnemen en/of het omgevingsloket raadplegen.
HUURVOORWAARDEN
Waar dient u als huurder rekening mee te houden bij het huren van een bedrijfsruimte:
- Bovengenoemde huurprijzen zijn voor de situatie zoals hierboven omschreven. Indien u aanvullende wensen of eisen heeft, kan dit invloed hebben op de huurprijs.
- Servicekosten: € 50,- per maand excl. btw. Dit is voor huurders zaken welke binnen het VvE collectief worden geregeld (zoals groen- en terreinonderhoud).
- Huurtermijn: 3 (drie) of 5 (vijf) jaar met een automatische verlenging van telkens 3 (drie) of 5 (vijf) jaar. Andere termijnen in overleg beschikbaar.
- Waarborgsom: 3 (drie) bruto maandverplichtingen, te weten een bedrag ter grootte van 3 (drie) maanden huur plus servicekosten en de daarover belastte btw. Over de waarborgsom wordt geen rente vergoed. Huurder mag de huur niet verrekenen met de waarborgsom. Na beëindiging van de huurovereenkomst wordt de borg geretourneerd.
- Opzegtermijn: dit bedraagt temminste 6 (zes) of 12 (twaalf) maanden voor het einde van uw huurtermijn.
- Huurprijsaanpassing: jaarlijkse verhoging, voor het eerst een jaar na ingangsdatum van het huurcontract. Dit op basis van de wijziging van het maandprijsindexcijfer volgens de consumentenprijsindex (CPI) “alle huishoudens” (2015 = 100), gepubliceerd door het Centraal Bureau voor de statistiek (CBS).
- Betaling: per maand vooruit.
- BTW: de verhuurder opteert voor een BTW belaste huur.
WILT U DE RUIMTE IN HET ECHT ZIEN?
Bent u overtuigd van de mogelijkheden die de representatieve bedrijfsunit u te bieden heeft? Neem direct contact met ons op voor het inplannen van een afspraak!
Disclaimer
Het gestelde in deze objectinformatie behelst vrijblijvende en globale informatie met betrekking tot het daarbij genoemde onroerend goed. De beschikbaarheid is indicatief en onder uitdrukkelijk voorbehoud goedkeuring en overleg opdrachtgever. Aan de inhoud van deze informatie kunnen geen rechten worden ontleend. Door aanvaarding van de vermelde condities respectievelijk door het doen van een tegenvoorstel, worden onze opdrachtgevers dan wel ons kantoor niet gebonden.
Map
Map is loading...
Cadastral boundaries
Buildings
Travel time
Gain insight into the reachability of this object, for instance from a public transport station or a home address.