De Stuwdam 53 3815 KM Amersfoort
€ 365,000 k.k.
Description
ALGEMEEN
Op bedrijvenpark De Stuwdam bevindt zich dit moderne en representatieve project, bestaande uit 24 bedrijfsunits. Binnen dit goed onderhouden en hoogwaardig uitgevoerde bedrijvenpark is thans unit 53 beschikbaar voor verkoop. Het project kenmerkt zich door traditionele bouw, hoogwaardige gevelafwerking en een verzorgd terrein, wat resulteert in een duurzame en representatieve uitstraling.
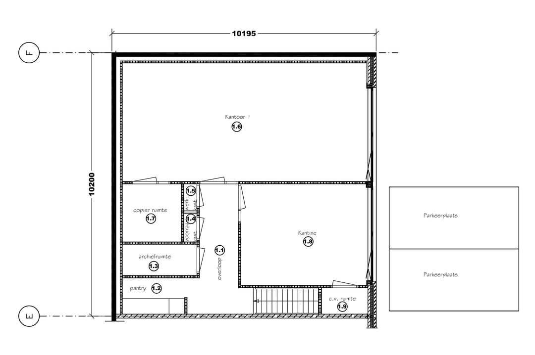
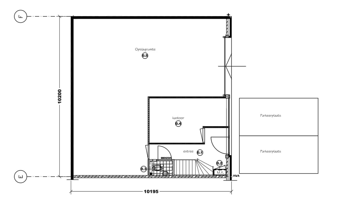
De unit omvat circa 65 m² bedrijfsruimte en circa 107 m² kantoorruimte. De bedrijfsruimte is uitsluitend in gebruik geweest als opslag en verkeert, evenals de rest van de unit, in een schone en nette staat. Deze unit beschikt naast deze grote bedrijfsruimte ook over vier afsluitbare kantoorruimten, een keuken en toilet.
De unit is voorzien van 36 zonnepanelen, wat resulteert in een lage energierekening. Het gehele dak is 3 jaar geleden vernieuwd. Direct voor de unit bevinden zich vier parkeerplaatsen, waaronder parkeergelegenheid met aansluiting voor elektrisch laden.
Dankzij de centrale ligging nabij knooppunt Hoevelaken en de snelwegen A1 en A28 is sprake van een uitstekend bereikbare locatie. De bedrijfsunit is zowel geschikt voor eigen gebruik als voor belegging.
LOCATIE
Het pand is gelegen op het representatieve bedrijventerrein Wieken Vinkenhoef te Amersfoort. Het bedrijventerrein bevindt zich in de zuidoostelijke oksel van het verkeersknooppunt Hoevelaken, de kruising van de rijkswegen A1 (Amsterdam- Amersfoort-Apeldoorn) en A28 (Utrecht-Amersfoort- Zwolle). Een uitstekende plek voor een bedrijvenpark dat logistiek en bereikbaarheid hoog in het vaandel heeft staan. De aanwezigheid van vele hoogwaardige kantoren en bedrijven en een mooie veelzijdige architectuur maken het bedrijvenpark tot een zeer representatief gebied met een uitstekend imago.
De locatie is uitstekend te bereiken met eigen vervoer en het Openbaar Vervoer.
- 200 m tot de bus;
- 0-1 km tot de A1;
- 0-1 km tot de A28;
- 2-3 km tot stadscentrum Amersfoort;
- 4-5 km tot station Amersfoort.
OPPERVLAKTE
De totale gebruiksoppervlakte van de Stuwdam 53 bedraagt circa 200 m², verdeeld over:
• Begane grond: ca. 100 m²
• Verdieping: ca. 100 m²
OPLEVERING / VOORZIENINGEN
De oplevering omvat onder meer:
• Overheaddeur
• Separate loopdeur
• Aansluitpunten voor water en elektra (NUTS-aansluitingen)
• Meterkast met basisvoorzieningen
• Airco
• 36 zonnepanelen
• toilet
• Pantry
• laminaat vloerbekleding in de kantoorruimten
• Goede isolatie (vloer, gevel en dak)
• Betonvloer begane grond, geschikt voor zwaar gebruik
• 1 laadpaal van walbox
Het buitenterrein, inclusief bestrating en groenvoorziening, wordt vanuit de VvE verzorgd.
KOOPPRIJS
De koopprijs bedraagt € 365.000,- k.k.
PARKEREN
Er zijn 2 parkeerplaatsen voor het pand en mogelijkheden voor vrij parkeren op de openbare weg.
SERVICEKOSTEN
De bijdrage voor de VVE: €148,79 per half jaar.
BTW
Uitgangspunt is een niet met btw belaste koopprijs.
HUURSITUATIE
De unit is vrij van huur.
KADASTER
Amersfoort R 878
Perceelgrootte: 104 m²
BOUWJAAR
2006
ZEKERHEIDSTELLING
Waarborgsom of bankgarantie van 10% van de overeengekomen koopprijs. Deze moet binnen twee weken na ondertekening van de koopakte worden voldaan bij de notaris.
AANVAARDING
In overleg.
Over Comma Vastgoed:
Comma Vastgoed is dé makelaar voor woningen en commercieel vastgoed in de regio Amersfoort, waaronder Soest, Soesterberg, Leusden, Nijkerk en Bunschoten-Spakenburg. Met een jarenlange ervaring en een uitgebreide kennis van zowel de particuliere als commerciële vastgoedmarkt, staan wij klaar om u te helpen bij het kopen, verkopen, of verhuren van uw woning of bedrijfspand. Of u nu op zoek bent naar een appartement, eengezinswoning, winkelruimte of kantoor, bij Comma Vastgoed krijgt u deskundig advies en persoonlijke begeleiding. Neem vandaag nog contact met ons op voor meer informatie over ons aanbod in de regio Amersfoort.
Op bedrijvenpark De Stuwdam bevindt zich dit moderne en representatieve project, bestaande uit 24 bedrijfsunits. Binnen dit goed onderhouden en hoogwaardig uitgevoerde bedrijvenpark is thans unit 53 beschikbaar voor verkoop. Het project kenmerkt zich door traditionele bouw, hoogwaardige gevelafwerking en een verzorgd terrein, wat resulteert in een duurzame en representatieve uitstraling.
De unit omvat circa 65 m² bedrijfsruimte en circa 107 m² kantoorruimte. De bedrijfsruimte is uitsluitend in gebruik geweest als opslag en verkeert, evenals de rest van de unit, in een schone en nette staat. Deze unit beschikt naast deze grote bedrijfsruimte ook over vier afsluitbare kantoorruimten, een keuken en toilet.
De unit is voorzien van 36 zonnepanelen, wat resulteert in een lage energierekening. Het gehele dak is 3 jaar geleden vernieuwd. Direct voor de unit bevinden zich vier parkeerplaatsen, waaronder parkeergelegenheid met aansluiting voor elektrisch laden.
Dankzij de centrale ligging nabij knooppunt Hoevelaken en de snelwegen A1 en A28 is sprake van een uitstekend bereikbare locatie. De bedrijfsunit is zowel geschikt voor eigen gebruik als voor belegging.
LOCATIE
Het pand is gelegen op het representatieve bedrijventerrein Wieken Vinkenhoef te Amersfoort. Het bedrijventerrein bevindt zich in de zuidoostelijke oksel van het verkeersknooppunt Hoevelaken, de kruising van de rijkswegen A1 (Amsterdam- Amersfoort-Apeldoorn) en A28 (Utrecht-Amersfoort- Zwolle). Een uitstekende plek voor een bedrijvenpark dat logistiek en bereikbaarheid hoog in het vaandel heeft staan. De aanwezigheid van vele hoogwaardige kantoren en bedrijven en een mooie veelzijdige architectuur maken het bedrijvenpark tot een zeer representatief gebied met een uitstekend imago.
De locatie is uitstekend te bereiken met eigen vervoer en het Openbaar Vervoer.
- 200 m tot de bus;
- 0-1 km tot de A1;
- 0-1 km tot de A28;
- 2-3 km tot stadscentrum Amersfoort;
- 4-5 km tot station Amersfoort.
OPPERVLAKTE
De totale gebruiksoppervlakte van de Stuwdam 53 bedraagt circa 200 m², verdeeld over:
• Begane grond: ca. 100 m²
• Verdieping: ca. 100 m²
OPLEVERING / VOORZIENINGEN
De oplevering omvat onder meer:
• Overheaddeur
• Separate loopdeur
• Aansluitpunten voor water en elektra (NUTS-aansluitingen)
• Meterkast met basisvoorzieningen
• Airco
• 36 zonnepanelen
• toilet
• Pantry
• laminaat vloerbekleding in de kantoorruimten
• Goede isolatie (vloer, gevel en dak)
• Betonvloer begane grond, geschikt voor zwaar gebruik
• 1 laadpaal van walbox
Het buitenterrein, inclusief bestrating en groenvoorziening, wordt vanuit de VvE verzorgd.
KOOPPRIJS
De koopprijs bedraagt € 365.000,- k.k.
PARKEREN
Er zijn 2 parkeerplaatsen voor het pand en mogelijkheden voor vrij parkeren op de openbare weg.
SERVICEKOSTEN
De bijdrage voor de VVE: €148,79 per half jaar.
BTW
Uitgangspunt is een niet met btw belaste koopprijs.
HUURSITUATIE
De unit is vrij van huur.
KADASTER
Amersfoort R 878
Perceelgrootte: 104 m²
BOUWJAAR
2006
ZEKERHEIDSTELLING
Waarborgsom of bankgarantie van 10% van de overeengekomen koopprijs. Deze moet binnen twee weken na ondertekening van de koopakte worden voldaan bij de notaris.
AANVAARDING
In overleg.
Over Comma Vastgoed:
Comma Vastgoed is dé makelaar voor woningen en commercieel vastgoed in de regio Amersfoort, waaronder Soest, Soesterberg, Leusden, Nijkerk en Bunschoten-Spakenburg. Met een jarenlange ervaring en een uitgebreide kennis van zowel de particuliere als commerciële vastgoedmarkt, staan wij klaar om u te helpen bij het kopen, verkopen, of verhuren van uw woning of bedrijfspand. Of u nu op zoek bent naar een appartement, eengezinswoning, winkelruimte of kantoor, bij Comma Vastgoed krijgt u deskundig advies en persoonlijke begeleiding. Neem vandaag nog contact met ons op voor meer informatie over ons aanbod in de regio Amersfoort.
Features
Transfer of ownership
- Asking price
- € 365,000 kosten koper
- Listed since
-
- Status
- Available
- Acceptance
- Available in consultation
Construction
- Main use
- Industrial unit
- Building type
- Resale property
- Year of construction
- 2006
Surface areas
- Area
- 200 m²
- Industrial unit area
- 100 m²
- Office area
- 100 m²
- Plot size
- 105 m²
Layout
- Number of floors
- 2 floors
- Facilities
- Air conditioning, overhead doors, concrete floor, toilet and pantry
Energy
- Energy label
- A
Surroundings
- Location
- Business park
Parking
- Parking spaces
- 2 uncovered parking spaces
Real estate agent
Photos