Description
Volledig gemoderniseerde en verduurzaamde werkruimte van ca. 50 m² met 2 parkeerplaatsen en separate berging van ca. 5 m².
Een plek met geschiedenis krijgt een nieuw leven! Aan de Orderparkweg in Apeldoorn wordt op dit moment een voormalige autogarage getransformeerd tot een unieke woonlocatie en een commerciële ruimte. Waar vroeger auto’s werden gerepareerd, banden werden opgeslagen en nieuwe modellen in de showroom stonden, verrijzen binnenkort negen moderne en comfortabele appartementen en een fraaie lichte commerciële ruimte aan de zichtzijde van het project.
De bestaande gebouwen – de werkplaats, de showroom en de bandenopslag – vormen de basis voor een eigentijdse woon-/werkomgeving met karakter. Door het industriële verleden te combineren met een frisse, moderne uitstraling, ontstaat een bijzonder woon-/werkconcept dat historie en nieuwbouw samenbrengt.
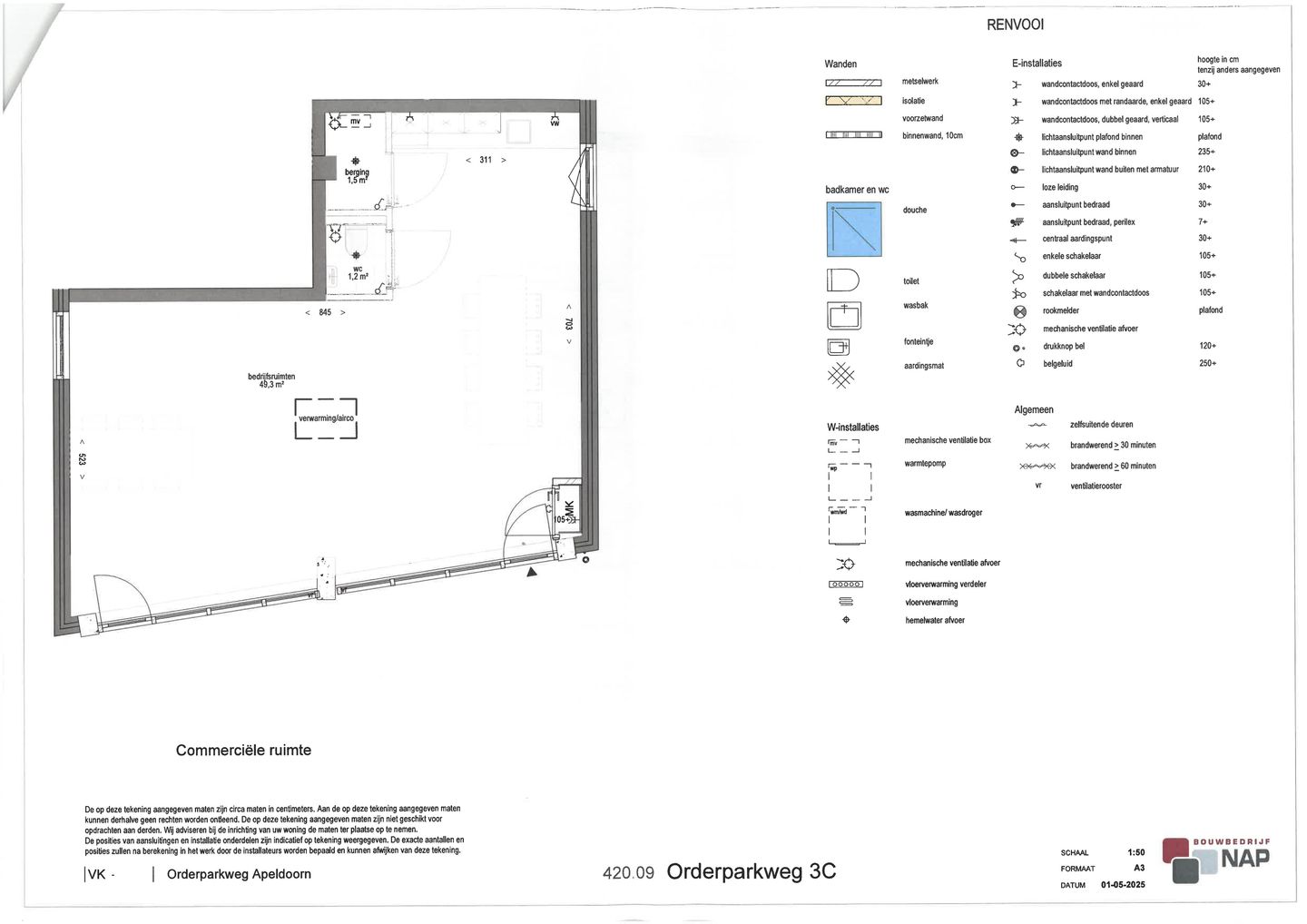
De voormalige werkplaats wordt getransformeerd tot commerciële ruimte. De oppervlakte bedraagt ca. 50 m² + een separate berging van ca. 5 m². De voorzijde wordt geheel voorzien van een nieuwe pui met dubbele beglazing en 2 entrees waardoor opdelen in 2 units voor 2 gebruikers ook een mogelijkheid is. Prognose oplevering ca. april.
De ruimte heeft een vrije hoogte van ca 3.80 m (!) en een frontbreedte van bijna 9.00 meter. De hoge raampartij aan de voorzijde zorgen voor een prachtige lichtinval. De originele betonnen constructie van de verdiepingsvloer geven de ruimte een "industriële look". De ruimte wordt uitgevoerd met een nieuwe voorpui met isolatieglas, een geïsoleerde betonnen begane grondvloer, airconditioning voor koeling en verwarming, een toilet en een pantry. Voor de deur zijn 2 eigen parkeerplaatsen.
- Lichte kantoor- werkruimte
- Twee entrees
- Twee parkeerplaatsen voor de deur
- Separate berging van circa 5 m²
- Verwarming en koeling d.m.v. airco
- Eigen elektra en watermeter
- Gasloos
Bestemming:
Bedrijfsactiviteiten in categorie 1 van de bij de regels horende Lijst van toegelaten bedrijfsactiviteiten zoals kappers, schoonheidsinstituten en overige persoonlijke dienstverlening, reparatiebedrijven t.b.v. particulieren (geen auto's en motoren), computerservice en informatietechnologische bedrijven en dergelijken.
Huurprijs
€ 1.295,- per maand, exclusief BTW.
Omzetbelasting
Er is sprake van een BTW-belaste verhuur.
Servicekosten
Niet van toepassing, het gehuurde is voorzien van eigen verbruiksmeters ten behoeve van water en elektra.
Huurprijsaanpassing
De huurprijs zal jaarlijks worden aangepast overeenkomstig de maandprijsindexering volgens de CBS-cijfers ‘’alle huishoudens’’, voor het eerst 1 jaar na huuringangsdatum.
Zekerheidsstelling
Bankgarantie/waarborgsom ter grootte van een bruto betalingsverplichting van drie maanden huur inclusief servicekosten en BTW.
Huurovereenkomst
De te sluiten huurovereenkomst zal worden opgemaakt met als basis het model dat door de Raad van Onroerende Zaken (ROZ) is vastgesteld, met bijbehorende Algemene Bepalingen, met aanvullende bepalingen door verhuurder.
Huurtermijn
5 + 5 jaar.
Een plek met geschiedenis krijgt een nieuw leven! Aan de Orderparkweg in Apeldoorn wordt op dit moment een voormalige autogarage getransformeerd tot een unieke woonlocatie en een commerciële ruimte. Waar vroeger auto’s werden gerepareerd, banden werden opgeslagen en nieuwe modellen in de showroom stonden, verrijzen binnenkort negen moderne en comfortabele appartementen en een fraaie lichte commerciële ruimte aan de zichtzijde van het project.
De bestaande gebouwen – de werkplaats, de showroom en de bandenopslag – vormen de basis voor een eigentijdse woon-/werkomgeving met karakter. Door het industriële verleden te combineren met een frisse, moderne uitstraling, ontstaat een bijzonder woon-/werkconcept dat historie en nieuwbouw samenbrengt.
De voormalige werkplaats wordt getransformeerd tot commerciële ruimte. De oppervlakte bedraagt ca. 50 m² + een separate berging van ca. 5 m². De voorzijde wordt geheel voorzien van een nieuwe pui met dubbele beglazing en 2 entrees waardoor opdelen in 2 units voor 2 gebruikers ook een mogelijkheid is. Prognose oplevering ca. april.
De ruimte heeft een vrije hoogte van ca 3.80 m (!) en een frontbreedte van bijna 9.00 meter. De hoge raampartij aan de voorzijde zorgen voor een prachtige lichtinval. De originele betonnen constructie van de verdiepingsvloer geven de ruimte een "industriële look". De ruimte wordt uitgevoerd met een nieuwe voorpui met isolatieglas, een geïsoleerde betonnen begane grondvloer, airconditioning voor koeling en verwarming, een toilet en een pantry. Voor de deur zijn 2 eigen parkeerplaatsen.
- Lichte kantoor- werkruimte
- Twee entrees
- Twee parkeerplaatsen voor de deur
- Separate berging van circa 5 m²
- Verwarming en koeling d.m.v. airco
- Eigen elektra en watermeter
- Gasloos
Bestemming:
Bedrijfsactiviteiten in categorie 1 van de bij de regels horende Lijst van toegelaten bedrijfsactiviteiten zoals kappers, schoonheidsinstituten en overige persoonlijke dienstverlening, reparatiebedrijven t.b.v. particulieren (geen auto's en motoren), computerservice en informatietechnologische bedrijven en dergelijken.
Huurprijs
€ 1.295,- per maand, exclusief BTW.
Omzetbelasting
Er is sprake van een BTW-belaste verhuur.
Servicekosten
Niet van toepassing, het gehuurde is voorzien van eigen verbruiksmeters ten behoeve van water en elektra.
Huurprijsaanpassing
De huurprijs zal jaarlijks worden aangepast overeenkomstig de maandprijsindexering volgens de CBS-cijfers ‘’alle huishoudens’’, voor het eerst 1 jaar na huuringangsdatum.
Zekerheidsstelling
Bankgarantie/waarborgsom ter grootte van een bruto betalingsverplichting van drie maanden huur inclusief servicekosten en BTW.
Huurovereenkomst
De te sluiten huurovereenkomst zal worden opgemaakt met als basis het model dat door de Raad van Onroerende Zaken (ROZ) is vastgesteld, met bijbehorende Algemene Bepalingen, met aanvullende bepalingen door verhuurder.
Huurtermijn
5 + 5 jaar.
Map
Map is loading...
Cadastral boundaries
Buildings
Travel time
Gain insight into the reachability of this object, for instance from a public transport station or a home address.