Weg en Bos 80 2661 GZ Bergschenhoek

€ 4,499,500 k.k.

Description

TE KOOP
Weg en Bos 80 te Bergschenhoek (2661 GZ)

ALGEMEEN
Een uniek en representatief bedrijfspand van in totaal ca. 3.900 m² (waarvan ca. 1.490 m² kantoorruimte op verdiepingsvloer) gelegen op bedrijventerrein ‘Weg en Bos’ te Bergschenhoek.

De bedrijfsruimte van het onroerend goed beschikt onder andere over een vrije hoogte van grotendeels ca. 10 meter alsmede een betonnen vloer met zware vloerbelasting (2.000 kg/m²). De kantoorruimte op de verdieping beschikt over een ‘turn key’ opleveringsniveau. Verder beschikt de onroerende zaak over ongeveer 25 parkeerplaatsen.

Het object is momenteel gedeeltelijk verhuurd en kan op relatief korte termijn vrij van huur en gebruik worden opgeleverd. Verdere actuele huurinformatie is beschikbaar op aanvraag.

Bouwjaar: omstreeks 2009.

BEREIKBAARHEID
Het object is gelegen op bedrijventerrein Weg en Land te Bergschenhoek. Het complex is gelegen op een uitstekende locatie, dichtbij de provinciale weg N209 (Leeuwenakkerweg). Deze weg vormt de verbinding tussen de Rijksweg A12 (Den Haag-Utrecht) en de A13 (Utrecht-Rotterdam-Europoort).

LOCATIE / LIGGING
Bedrijventerrein

LOCATIE / VOORZIENINGEN
Snelwegafrit
Op 500 m tot 1000 m

Winkel voorziening
Op 500 m tot 1000 m

Restaurant
Op 500 m tot 1000 m

Winkel voorziening
Op 500 m tot 1000 m

Bushalte
Op minder dan 500 m

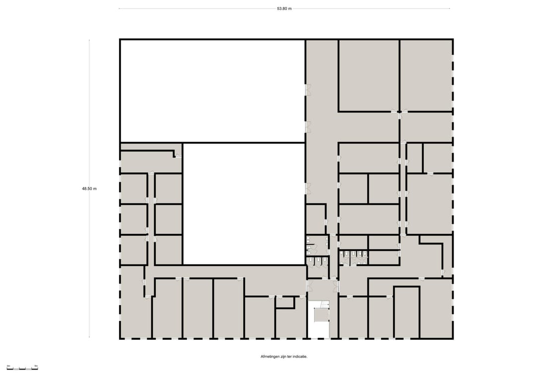
OPPERVLAKTE / INDELING
Het onroerend goed heeft in totaal een oppervlakte van ca. 3.900 m² en is als volgt ingedeeld:
Begane grond: ca. 2.410 m² bedrijfsruimte;
1e verdieping: ca. 1.490 m² kantoorruimte.

PARKEERMOGELIJKHEDEN
De onroerende zaak beschikt over 25 parkeerplaatsen op eigen terrein.
Vrij parkeren op openbaar terrein in de directe omgeving.

OPLEVERINGSNIVEAU
Het onroerend goed wordt opgeleverd in de huidige staat ‘as is where is’

KOOPSOM
€ 4.499.500,00 k.k.

OMZETBELASTING
Het betreft hier een niet met BTW belaste verkoop.

AANVAARDING
In overleg met verkoper.

COURTAGE
Mocht door bemiddeling van Basis Bedrijfshuisvesting B.V. een transactie tot stand komen, zult u hiervoor geen kosten of courtage verschuldigd zijn.

KADASTRALE GEGEVENS
Gemeente: Bergschenhoek
Sectie: B
Nummer: 7736
Grootte: 3.915 m²

BIJZONDERHEDEN
Elke transactie behoeft de nadrukkelijke goedkeuring van eigenaar.

OVERIG
Bezichtigingen uitsluitend op een daartoe afgesproken tijdstip met Basis Bedrijfshuisvesting B.V.

Collegiaal met: Basis Bedrijfshuisvesting Gouda B.V.

Features

Transfer of ownership

Asking price
€ 4,499,500 kosten koper
Listed since
Status
Available
Acceptance
Available in consultation

Construction

Main use
Industrial unit
Building type
Resale property
Construction period
2001-2010

Surface areas

Area
3,900 m²
Industrial unit area
3,900 m²
Maximum load
2,000 kg/m²
Plot size
3,915 m²

Layout

Facilities
Overhead doors, concrete floor, toilet and pantry

Energy

Energy label
Not available

Surroundings

Location
Business park
Accessibility
Bus stop in less than 500 m and motorway exit in 500 m to 1000 m

Map

Map is loading...

Cadastral boundaries Buildings

Travel time

Gain insight into the reachability of this object, for instance from a public transport station or a home address.