Description
FRAAIE REPRESENTATIEVE HOEKUNIT TE HUUR!
Deze representatieve showroom- en kantoorunit beschikt over een royale bedrijfs- en magazijnruimte en is gelegen op het moderne bedrijventerrein “Achter Emer”, in de wijk Haagse Beemden. De unit maakt deel uit van een verzorgd bedrijfsverzamelgebouw bestaande uit tien zelfstandige eenheden, wat zorgt voor een professionele en overzichtelijke werkomgeving.
Het bedrijventerrein kenmerkt zich door een uitstekende bereikbaarheid. Zowel de A27 (richting Breda en Utrecht) als de A16 (richting Antwerpen, Breda en Rotterdam) zijn binnen enkele minuten bereikbaar. Daarnaast biedt de nabijgelegen Terheijdenseweg een directe en vlotte aansluiting op de A59 (Maasroute richting ’s-Hertogenbosch), waardoor ook regionale verbindingen optimaal zijn.
OPPERVLAKTE
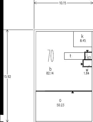
Totaal: ca. 300 m²
Begane grond:
Bedrijfsruimte met showroom ca. 150 m²
Verdieping:
Kantoor/showroom ca. 150 m²
PARKEREN
Aan de voorzijde en in de directe nabijheid zijn voldoende parkeerfaciliteiten aanwezig.
OPLEVERINGSNIVEAU
Het geheel zal worden opgeleverd voorzien van o.a. de volgende aspecten:
Kantoor/showroom
- scheidingswanden;
- pantry met close-in boiler;
- airco;
- systeemplafonds met verlichtingsarmaturen;
- toilet.
Bedrijfsruimte/magazijn
- glad afgewerkte betonvloeren;
- overheaddeur 4x4 meter;
- geïsoleerde gevels en daken;
- vrije doorrijhoogte circa 4.00 meter;
- opbouwverlichting;
HUURPRIJS
€ 29.000,-- per jaar, exclusief BTW
SERVICEKOSTEN
€ 4,- -per m² per jaar te vermeerderen met BTW. De servicekosten hebben betrekking op:
- onderhoud buitenterrein;
- periodieke controle overheaddeur;
- periodieke controle verwarmingsinstallatie;
- onderhoud brandblussers;
- schoonhouden van het dak;
- administratiekosten ad 5% over de hierboven genoemde diensten.
BETALINGEN
Per maand
HUURTERMIJN
5 + 5 jaar, een kortere huurperiode is in overleg bespreekbaar
INDEXERING
Jaarlijks, op basis van de wijziging van het maandprijsindexcijfer volgens de consumentenprijsindex (CPI), reeks CPI alle huishoudens (2015=100), gepubliceerd door het Centraal Bureau voor de Statistiek (CBS).
WAARBORGSOM / BANKGARANTIE
Ter grootte van 3 maanden huur inclusief bijkomende kosten te vermeerderen met BTW.
AANVAARDING
In overleg.
Deze representatieve showroom- en kantoorunit beschikt over een royale bedrijfs- en magazijnruimte en is gelegen op het moderne bedrijventerrein “Achter Emer”, in de wijk Haagse Beemden. De unit maakt deel uit van een verzorgd bedrijfsverzamelgebouw bestaande uit tien zelfstandige eenheden, wat zorgt voor een professionele en overzichtelijke werkomgeving.
Het bedrijventerrein kenmerkt zich door een uitstekende bereikbaarheid. Zowel de A27 (richting Breda en Utrecht) als de A16 (richting Antwerpen, Breda en Rotterdam) zijn binnen enkele minuten bereikbaar. Daarnaast biedt de nabijgelegen Terheijdenseweg een directe en vlotte aansluiting op de A59 (Maasroute richting ’s-Hertogenbosch), waardoor ook regionale verbindingen optimaal zijn.
OPPERVLAKTE
Totaal: ca. 300 m²
Begane grond:
Bedrijfsruimte met showroom ca. 150 m²
Verdieping:
Kantoor/showroom ca. 150 m²
PARKEREN
Aan de voorzijde en in de directe nabijheid zijn voldoende parkeerfaciliteiten aanwezig.
OPLEVERINGSNIVEAU
Het geheel zal worden opgeleverd voorzien van o.a. de volgende aspecten:
Kantoor/showroom
- scheidingswanden;
- pantry met close-in boiler;
- airco;
- systeemplafonds met verlichtingsarmaturen;
- toilet.
Bedrijfsruimte/magazijn
- glad afgewerkte betonvloeren;
- overheaddeur 4x4 meter;
- geïsoleerde gevels en daken;
- vrije doorrijhoogte circa 4.00 meter;
- opbouwverlichting;
HUURPRIJS
€ 29.000,-- per jaar, exclusief BTW
SERVICEKOSTEN
€ 4,- -per m² per jaar te vermeerderen met BTW. De servicekosten hebben betrekking op:
- onderhoud buitenterrein;
- periodieke controle overheaddeur;
- periodieke controle verwarmingsinstallatie;
- onderhoud brandblussers;
- schoonhouden van het dak;
- administratiekosten ad 5% over de hierboven genoemde diensten.
BETALINGEN
Per maand
HUURTERMIJN
5 + 5 jaar, een kortere huurperiode is in overleg bespreekbaar
INDEXERING
Jaarlijks, op basis van de wijziging van het maandprijsindexcijfer volgens de consumentenprijsindex (CPI), reeks CPI alle huishoudens (2015=100), gepubliceerd door het Centraal Bureau voor de Statistiek (CBS).
WAARBORGSOM / BANKGARANTIE
Ter grootte van 3 maanden huur inclusief bijkomende kosten te vermeerderen met BTW.
AANVAARDING
In overleg.
Map
Map is loading...
Cadastral boundaries
Buildings
Travel time
Gain insight into the reachability of this object, for instance from a public transport station or a home address.