Steenen Hoofd 58 4825 AK Breda
Rental price on request
Description
DC THE BAY, BREDA
- GECONTRACTEERD TRANSPORTVERMORGEN VAN 396 kVA PER UNIT + 170 PARKEERPLAATSEN OP EIGEN TERREIN -
DC The Bay is een state-of-the-art warehouse en is gelegen aan het Steenen Hoofd in Breda op bedrijventerrein ‘Krogten’.
DC The Bay biedt alle ruimte voor toekomstbestendige logistiek. Vanwege het gebruik van duurzame materialen, elektrische installaties en zonnepanelen is dit warehouse honderd procent energieneutraal.
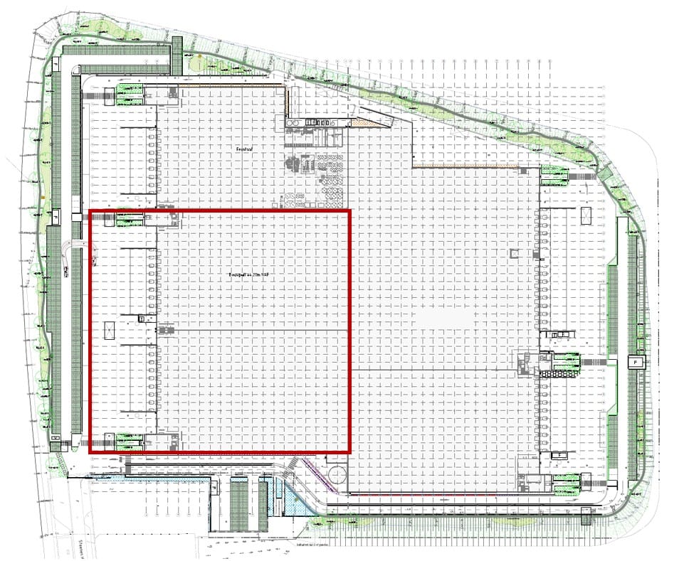
Voor onderverhuur komt ca. 12.404 m² beschikbaar, verdeeld over bedrijfsruimte, mezzanine en kantoorruimte. Deelverhuur van de beschikbare ruimte is mogelijk vanaf circa 3.500m² bedrijfsruimte.
Een deel van de bedrijfsruimte is tevens voorzien van koel- en vriesruimte, in totaal circa 2.700m².
LOCATIE
Bedrijventerrein ‘De Krogten’ is gelegen aan de noordzijde van Breda en vormt hiermee het centrum van de West-Brabantse regio met de strategische ligging tussen de Antwerpse en Rotterdamse haven. Dit grote bedrijventerrein huisvest meer dan 400 midden- en klein- alsmede groothandelsbedrijven. Dit zijn voornamelijk bedrijven in de retail, industrie en logistiek alsmede zakelijke dienstverlening.
Onder andere VDL, Strukton, Hiram Transport, Dynalogic, Makro, Mammoet Global Services en Hornbach hebben bedrijventerrein ‘De Krogten’ gekozen als vestigingslocatie.
Eigen vervoer
Het warehouse is goed bereikbaar vanwege de op korte afstand gelegen Rijksweg A27 (Breda – Utrecht), de A59 (Breda – Den Bosch), de A16 (Antwerpen – Breda – Rotterdam) en de A58 (Bergen op Zoom – Eindhoven).
Openbaar vervoer
Op circa 15 minuten loopafstand zijn meerdere bushaltes gelegen met frequente verbindingen van en naar het Centraal Station van Breda.
BESCHIKBAARHEID
Circa 12.404 m² is beschikbaar voor verhuur en is als volgt verdeeld:
Bedrijfsruimte 1B: 3.500 m²
Kantoorruimte 1B: 235 m²
Bedrijfsruimte 1C: 7.330 m²
Mezzanine 1C: 720 m²
Kantoorruimte 1C: 619 m²
Onderdeel van Bedrijfsruimte 1B is onderstaande koel-/ vriesruimte:
Koelcel (1-4 graden): 1.653 m²
Vriescel ( -18 - -24 graden): 1.000 m²
AGF-cel: (12 -15 graden): 74 m²
PARKEREN
Het complex beschikt over 170 parkeerplaatsen op eigen terrein.
OPLEVERINGSNIVEAU
Bedrijfsruimte
- Vrije hoogte van 12,20 meter;
- 16 loading docks met levellers;
- 2 overheaddeuren op maaiveld niveau;
- Maximale vloerbelasting 5.000 kg/m²;
- Koel- en vriesruimte;
- Sprinklerinstallatie;
- LED verlichting;
- WIFI 7 geïnstalleerd door de gehele bedrijfsruimte.
Kantoorruimte
- Representatieve gemeenschappelijke entree;
- Hoogwaardige klimaatinstallatie;
- Verlichting;
- Vergaderruimte;
- Veel daglichttoetreding.
Buitenterrein
- Verlichting ter hoogte van de loading docks;
- Ruim voldoende parkeergelegenheid.
Specificaties koel- en vriesruimte
AGF-cel
- 9 kW koelvermogen met één condensingunit.
Koelcel
- 205 kW koelvermogen;
- 3 verdampers / 3 compressoren.
Vriescel
- 113 kW koelvermogen;
- 2 verdampers / 4 compressoren.
HUURPRIJS
Op aanvraag.
SERVICEKOSTEN
Nader te bepalen.
HUURINGANGSDATUM
Per direct beschikbaar.
HUURTERMIJN
In overleg, flexibele huurtermijnen zijn bespreekbaar.
HUURBETALING
Per kwartaal vooruit.
HUURINDEXERING
Jaarlijks, voor het eerst 1 (één) jaar na huuringangsdatum, op basis van het maandprijsindexcijfer volgens de consumentenprijsindex CPI reeks CPI alle huishoudens (2015=100, dan wel meest recente tijdsbasis), gepubliceerd door het CBS.
HUUROVEREENKOMST
Huurovereenkomst is gebaseerd op ROZ model 2015.
ZEKERHEIDSSTELLING
Bankgarantie of waarborgsom ter grootte van tenminste drie maanden huur inclusief servicekosten en BTW.
BTW
Verhuurder wenst te opteren voor BTW-belaste huur en verhuur. Ingeval huurder de BTW niet kan verrekenen, zal de huurprijs in overleg met huurder worden verhoogd ter compensatie van de gevolgen van het vervallen van de mogelijkheid om te opteren voor BTW-belaste huur.
- GECONTRACTEERD TRANSPORTVERMORGEN VAN 396 kVA PER UNIT + 170 PARKEERPLAATSEN OP EIGEN TERREIN -
DC The Bay is een state-of-the-art warehouse en is gelegen aan het Steenen Hoofd in Breda op bedrijventerrein ‘Krogten’.
DC The Bay biedt alle ruimte voor toekomstbestendige logistiek. Vanwege het gebruik van duurzame materialen, elektrische installaties en zonnepanelen is dit warehouse honderd procent energieneutraal.
Voor onderverhuur komt ca. 12.404 m² beschikbaar, verdeeld over bedrijfsruimte, mezzanine en kantoorruimte. Deelverhuur van de beschikbare ruimte is mogelijk vanaf circa 3.500m² bedrijfsruimte.
Een deel van de bedrijfsruimte is tevens voorzien van koel- en vriesruimte, in totaal circa 2.700m².
LOCATIE
Bedrijventerrein ‘De Krogten’ is gelegen aan de noordzijde van Breda en vormt hiermee het centrum van de West-Brabantse regio met de strategische ligging tussen de Antwerpse en Rotterdamse haven. Dit grote bedrijventerrein huisvest meer dan 400 midden- en klein- alsmede groothandelsbedrijven. Dit zijn voornamelijk bedrijven in de retail, industrie en logistiek alsmede zakelijke dienstverlening.
Onder andere VDL, Strukton, Hiram Transport, Dynalogic, Makro, Mammoet Global Services en Hornbach hebben bedrijventerrein ‘De Krogten’ gekozen als vestigingslocatie.
Eigen vervoer
Het warehouse is goed bereikbaar vanwege de op korte afstand gelegen Rijksweg A27 (Breda – Utrecht), de A59 (Breda – Den Bosch), de A16 (Antwerpen – Breda – Rotterdam) en de A58 (Bergen op Zoom – Eindhoven).
Openbaar vervoer
Op circa 15 minuten loopafstand zijn meerdere bushaltes gelegen met frequente verbindingen van en naar het Centraal Station van Breda.
BESCHIKBAARHEID
Circa 12.404 m² is beschikbaar voor verhuur en is als volgt verdeeld:
Bedrijfsruimte 1B: 3.500 m²
Kantoorruimte 1B: 235 m²
Bedrijfsruimte 1C: 7.330 m²
Mezzanine 1C: 720 m²
Kantoorruimte 1C: 619 m²
Onderdeel van Bedrijfsruimte 1B is onderstaande koel-/ vriesruimte:
Koelcel (1-4 graden): 1.653 m²
Vriescel ( -18 - -24 graden): 1.000 m²
AGF-cel: (12 -15 graden): 74 m²
PARKEREN
Het complex beschikt over 170 parkeerplaatsen op eigen terrein.
OPLEVERINGSNIVEAU
Bedrijfsruimte
- Vrije hoogte van 12,20 meter;
- 16 loading docks met levellers;
- 2 overheaddeuren op maaiveld niveau;
- Maximale vloerbelasting 5.000 kg/m²;
- Koel- en vriesruimte;
- Sprinklerinstallatie;
- LED verlichting;
- WIFI 7 geïnstalleerd door de gehele bedrijfsruimte.
Kantoorruimte
- Representatieve gemeenschappelijke entree;
- Hoogwaardige klimaatinstallatie;
- Verlichting;
- Vergaderruimte;
- Veel daglichttoetreding.
Buitenterrein
- Verlichting ter hoogte van de loading docks;
- Ruim voldoende parkeergelegenheid.
Specificaties koel- en vriesruimte
AGF-cel
- 9 kW koelvermogen met één condensingunit.
Koelcel
- 205 kW koelvermogen;
- 3 verdampers / 3 compressoren.
Vriescel
- 113 kW koelvermogen;
- 2 verdampers / 4 compressoren.
HUURPRIJS
Op aanvraag.
SERVICEKOSTEN
Nader te bepalen.
HUURINGANGSDATUM
Per direct beschikbaar.
HUURTERMIJN
In overleg, flexibele huurtermijnen zijn bespreekbaar.
HUURBETALING
Per kwartaal vooruit.
HUURINDEXERING
Jaarlijks, voor het eerst 1 (één) jaar na huuringangsdatum, op basis van het maandprijsindexcijfer volgens de consumentenprijsindex CPI reeks CPI alle huishoudens (2015=100, dan wel meest recente tijdsbasis), gepubliceerd door het CBS.
HUUROVEREENKOMST
Huurovereenkomst is gebaseerd op ROZ model 2015.
ZEKERHEIDSSTELLING
Bankgarantie of waarborgsom ter grootte van tenminste drie maanden huur inclusief servicekosten en BTW.
BTW
Verhuurder wenst te opteren voor BTW-belaste huur en verhuur. Ingeval huurder de BTW niet kan verrekenen, zal de huurprijs in overleg met huurder worden verhoogd ter compensatie van de gevolgen van het vervallen van de mogelijkheid om te opteren voor BTW-belaste huur.
Features
Transfer of ownership
- Rental price
- Rental price on request
- Listed since
-
- Status
- Available
- Acceptance
- Available immediately
Construction
- Main use
- Industrial unit
- Building type
- Resale property
- Year of construction
- 2022
Surface areas
- Area
- 12,404 m²
- Industrial unit area
- 11,550 m²
- Office area
- 854 m²
- Clearance
- 12.2 m
- Maximum load
- 5,000 kg/m²
Layout
- Number of floors
- 1 floor
- Facilities
- Loading bays and overhead doors
Energy
- Energy label
- Not required
Surroundings
- Location
- Business park
NVM real estate agent
Photos
Floorplan
First floor