Description
TE KOOP
Karakteristiek pand met onherroepelijke vergunning voor transformatie naar 3 moderne appartementen.
Het plan voorziet in de transformatie van het bestaande pand naar drie zelfstandige appartementen met een moderne uitstraling en optimale benutting van de ligging aan de haven.
De constructietekeningen en benodigde onderzoeken zijn reeds afgerond en de bouwleges betaald. Met de door de gemeente afgegeven onherroepelijke vergunning is dit project geheel klaar voor uitvoering.
De huidige foto's in de brochure tonen de bestaande situatie, die met name dient ter illustratie van de transformatie die mogelijk is. De waarde van dit aanbod ligt dan ook niet in de huidige staat, maar in de ontwikkelpotentie die door de omgevingsvergunning volledig is veiliggesteld.
De waardering van deze 3 te transformeren appartementen zijn op te vragen bij de makelaar.
Locatie en bereikbaarheid
Het pand aan de Scheldekade 10 ligt op een centrale locatie aan de haven van Breskens, op loopafstand van winkels, horeca, de boulevard en het strand. De veerverbinding naar Vlissingen bevindt zich eveneens in de directe nabijheid.
Via de regionale uitvalswegen zijn Oostburg, Terneuzen en de rest van Zeeuws-Vlaanderen goed bereikbaar. Bushaltes liggen op korte loopafstand, waardoor ook openbaar vervoer eenvoudig ontsloten is.
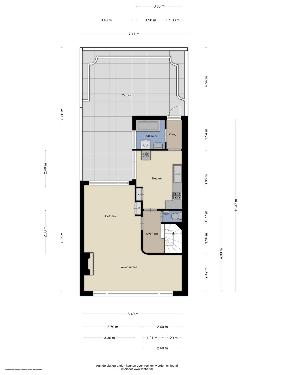
Huidige oppervlaktes en indeling
- Ca. 118,6 m² GO wonen
- Ca. 88,5 m² GO overige inpandige ruimte
- Ca. 59,2 m² gebouw gebonden buitenruimte.
Bestemming
Het object ligt in het omgevingsplan 'kom Breskens' van de gemeente Sluis dat onherroepelijk is vastgesteld op 23 juni 2011 en heeft de bestemming 'Wonen -6'.
De voor 'Wonen -6' aangewezen gronden zijn bestemd voor:
a.wonen met aan-huis-gebonden beroepen en kleinschalige beroeps- en bedrijfsmatige activiteiten;
Meer informatie vindt u op
Kadastrale gegevens:
Gemeente Oostburg, sectie EB, nummer 403, grootte 257 m2
Vraagprijs
€ 449.000,-- k.k.
Energielabel
Thans beschikt het object over energielabel G, geldig tot 14-07-2032.
Zekerheidsstelling
Een garantie ter grootte van 10% van de koopsom.
Overdrachtsbelasting
Bij de aankoop van het pand is overdrachtsbelasting verschuldigd. Het toepasselijke tarief is afhankelijk van het profiel van de koper en het beoogde gebruik van het pand na aankoop.
Oplevering
Moment van oplevering in onderling overleg.
Opleveringsniveau
Het pand zal in de huidige staat worden opgeleverd (as is, where is).
Bezichtigingen
Uitsluitend op afspraak is het mogelijk om het pand te bezichtigen. Voor het plannen van een afspraak kan contact worden opgenomen met ons kantoor.
Algemeen
Al het bovenstaande betreft informatie omtrent de verkoop van "Scheldekade 10 te Breskens" De informatie is met zorg samengesteld, maar voor de juistheid ervan kan door Faasse & Fermont geen aansprakelijkheid worden aanvaard, noch aan de vermelde gegevens enig recht worden ontleend. Nadrukkelijk is vermeld dat deze informatieverstrekking niet als aanbieding of offerte mag worden beschouwd.
Karakteristiek pand met onherroepelijke vergunning voor transformatie naar 3 moderne appartementen.
Het plan voorziet in de transformatie van het bestaande pand naar drie zelfstandige appartementen met een moderne uitstraling en optimale benutting van de ligging aan de haven.
De constructietekeningen en benodigde onderzoeken zijn reeds afgerond en de bouwleges betaald. Met de door de gemeente afgegeven onherroepelijke vergunning is dit project geheel klaar voor uitvoering.
De huidige foto's in de brochure tonen de bestaande situatie, die met name dient ter illustratie van de transformatie die mogelijk is. De waarde van dit aanbod ligt dan ook niet in de huidige staat, maar in de ontwikkelpotentie die door de omgevingsvergunning volledig is veiliggesteld.
De waardering van deze 3 te transformeren appartementen zijn op te vragen bij de makelaar.
Locatie en bereikbaarheid
Het pand aan de Scheldekade 10 ligt op een centrale locatie aan de haven van Breskens, op loopafstand van winkels, horeca, de boulevard en het strand. De veerverbinding naar Vlissingen bevindt zich eveneens in de directe nabijheid.
Via de regionale uitvalswegen zijn Oostburg, Terneuzen en de rest van Zeeuws-Vlaanderen goed bereikbaar. Bushaltes liggen op korte loopafstand, waardoor ook openbaar vervoer eenvoudig ontsloten is.
Huidige oppervlaktes en indeling
- Ca. 118,6 m² GO wonen
- Ca. 88,5 m² GO overige inpandige ruimte
- Ca. 59,2 m² gebouw gebonden buitenruimte.
Bestemming
Het object ligt in het omgevingsplan 'kom Breskens' van de gemeente Sluis dat onherroepelijk is vastgesteld op 23 juni 2011 en heeft de bestemming 'Wonen -6'.
De voor 'Wonen -6' aangewezen gronden zijn bestemd voor:
a.wonen met aan-huis-gebonden beroepen en kleinschalige beroeps- en bedrijfsmatige activiteiten;
Meer informatie vindt u op
Kadastrale gegevens:
Gemeente Oostburg, sectie EB, nummer 403, grootte 257 m2
Vraagprijs
€ 449.000,-- k.k.
Energielabel
Thans beschikt het object over energielabel G, geldig tot 14-07-2032.
Zekerheidsstelling
Een garantie ter grootte van 10% van de koopsom.
Overdrachtsbelasting
Bij de aankoop van het pand is overdrachtsbelasting verschuldigd. Het toepasselijke tarief is afhankelijk van het profiel van de koper en het beoogde gebruik van het pand na aankoop.
Oplevering
Moment van oplevering in onderling overleg.
Opleveringsniveau
Het pand zal in de huidige staat worden opgeleverd (as is, where is).
Bezichtigingen
Uitsluitend op afspraak is het mogelijk om het pand te bezichtigen. Voor het plannen van een afspraak kan contact worden opgenomen met ons kantoor.
Algemeen
Al het bovenstaande betreft informatie omtrent de verkoop van "Scheldekade 10 te Breskens" De informatie is met zorg samengesteld, maar voor de juistheid ervan kan door Faasse & Fermont geen aansprakelijkheid worden aanvaard, noch aan de vermelde gegevens enig recht worden ontleend. Nadrukkelijk is vermeld dat deze informatieverstrekking niet als aanbieding of offerte mag worden beschouwd.
Map
Map is loading...
Cadastral boundaries
Buildings
Travel time
Gain insight into the reachability of this object, for instance from a public transport station or a home address.