Toermalijnring 916 3316 LC Dordrecht
€ 1,750 p/mo.
Description
Algemeen:
Het betreft een bedrijfsruimte die deel uitmaakt van een bedrijfsverzamelgebouw. De bedrijfsruimte is verdeeld over twee bouwlagen met parkeerplaatsen aan de voorzijde. De bedrijfsruimte is gelegen op de begane grond en voorzien van een overheaddeur en de kantoorruimte is gelegen op de verdieping. De ruimte is multifunctioneel te gebruiken en voor diverse doeleinden geschikt.
Afmetingen:
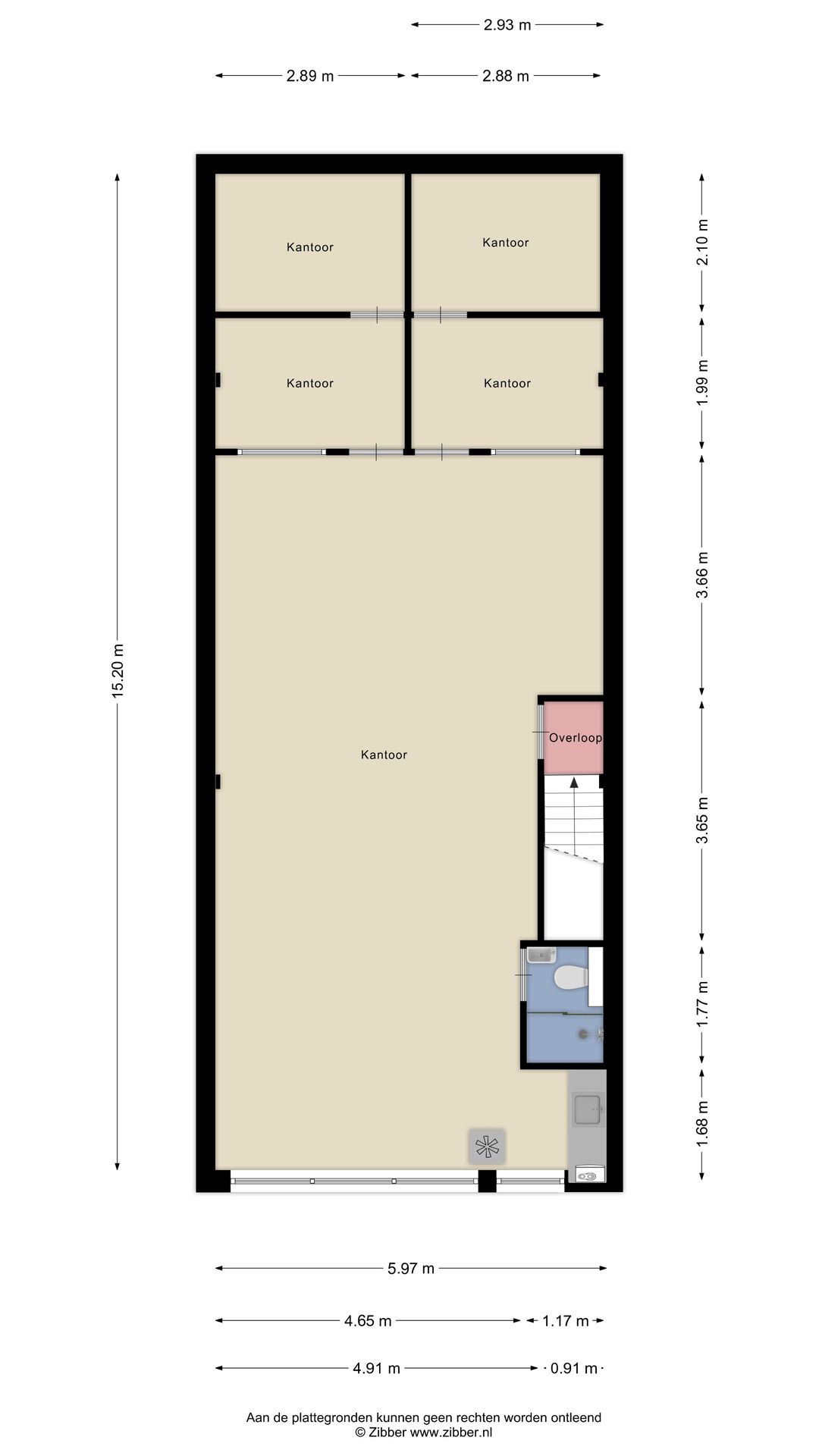
Bedrijfsruimte circa 89 m² VVO
Kantoorruimte circa 88 m² VVO
Parkeren:
4 parkeerplaatsen aan de voorzijde van de unit.
Huurprijs:
€ 1.750,-- per maand exclusief BTW.
Opleveringsniveau:
- Onderheide betonnen fundering;
- Oderheide betonnen begane grond vloer met een nuttige vloerbelasting van 1.000 kg/m²;
- Betonnen kanaalplaat verdiepingsvloer met een nuttige vloerbelasting van 250 kg/m²;
- Opgebouwd uit een staalconstructie;
- Gevels gevelbeplating in combinatie met metselwerk;
- Dak van staal met isolatie en bitumineuze dakbedekking;
- Kozijnen van hout met dubbele beglazing;
- Scheidingswanden van vellingkant blokken.
- Entree met trap naar verdieping;
- Toilet en douchecabine;
- Pantry;
- Bedrijfsruimte met verlichting, diverse stroompunten, verwarming (heater), handbedienbare overheaddeur, vrije hoogte circa 4 meter;
- Kantoorruimte met systeemplafond met verlichting, kabelgoten met bekabeling, verwarming met radiatoren;
- Elektrisch bediende overheaddeur (afmeting 3,75m B x 3,40m H).
Bouwjaar:
2015.
Verwarming:
Verwarming door middel van een CV installatie.
Warm watervoorziening:
CV Installatie.
Elektrische installatie:
Standaard ten behoeve van normaal gebruik.
Energielabel:
A+ geldig tot 14 januari 2032.
Aanvaarding:
In overleg.
Informatie gemeente:
Dordrecht wordt door velen gezien als oudste stad van Holland. Dordrecht maakt deel uit van de grootstedelijke agglomeratie Drechtsteden en heeft ongeveer 119.000 inwoners (Bron: CBS). De stad ligt op de plaats waar rivier de Merwede zich splitst in de rivier de Noord en de Oude Maas. De economische kansen groeien hier, waardoor ondernemerschap en bedrijvigheid gestimuleerd blijven. Het eiland van Dordrecht heeft een oppervlakte van 79,01 km².
Locatie:
Het object is zeer gunstig gelegen op bedrijventerrein Dordtse Kil III. Dit terrein biedt uitstekende verbindingsmogelijkheden van en naar de rijksweg A16 en via de provinciale weg N3 naar de rijksweg A15.
Bestemming:
Thans is van toepassing het vigerende bestemmingsplan ‘Dordtse Kil’ vastgesteld op 25 juni 2013 waaruit blijkt dat onderhavige locatie de bestemming ‘Bedrijf’ heeft. De voor ‘Bedrijf’ aangewezen gronden zijn bestemd voor: a. bedrijven; b. bedrijfswoningen behorende bij de onder a. bedoelde bedrijven; c. horeca; d. detailhandel; e. verkooppunt motorbrandstoffen; voor zover het de gronden ten zuiden van de N217 (Dordtse Kil III) betreft, tevens voor: f. verkeer; alsmede voor: g. bij de bestemming behorende voorzieningen, zoals verhardingen, groen, water, parkeervoorzieningen en nutsvoorzieningen, een en ander met inachtneming van het bepaalde in lid 4.4 van het bestemmingsplan.
Het betreft een bedrijfsruimte die deel uitmaakt van een bedrijfsverzamelgebouw. De bedrijfsruimte is verdeeld over twee bouwlagen met parkeerplaatsen aan de voorzijde. De bedrijfsruimte is gelegen op de begane grond en voorzien van een overheaddeur en de kantoorruimte is gelegen op de verdieping. De ruimte is multifunctioneel te gebruiken en voor diverse doeleinden geschikt.
Afmetingen:
Bedrijfsruimte circa 89 m² VVO
Kantoorruimte circa 88 m² VVO
Parkeren:
4 parkeerplaatsen aan de voorzijde van de unit.
Huurprijs:
€ 1.750,-- per maand exclusief BTW.
Opleveringsniveau:
- Onderheide betonnen fundering;
- Oderheide betonnen begane grond vloer met een nuttige vloerbelasting van 1.000 kg/m²;
- Betonnen kanaalplaat verdiepingsvloer met een nuttige vloerbelasting van 250 kg/m²;
- Opgebouwd uit een staalconstructie;
- Gevels gevelbeplating in combinatie met metselwerk;
- Dak van staal met isolatie en bitumineuze dakbedekking;
- Kozijnen van hout met dubbele beglazing;
- Scheidingswanden van vellingkant blokken.
- Entree met trap naar verdieping;
- Toilet en douchecabine;
- Pantry;
- Bedrijfsruimte met verlichting, diverse stroompunten, verwarming (heater), handbedienbare overheaddeur, vrije hoogte circa 4 meter;
- Kantoorruimte met systeemplafond met verlichting, kabelgoten met bekabeling, verwarming met radiatoren;
- Elektrisch bediende overheaddeur (afmeting 3,75m B x 3,40m H).
Bouwjaar:
2015.
Verwarming:
Verwarming door middel van een CV installatie.
Warm watervoorziening:
CV Installatie.
Elektrische installatie:
Standaard ten behoeve van normaal gebruik.
Energielabel:
A+ geldig tot 14 januari 2032.
Aanvaarding:
In overleg.
Informatie gemeente:
Dordrecht wordt door velen gezien als oudste stad van Holland. Dordrecht maakt deel uit van de grootstedelijke agglomeratie Drechtsteden en heeft ongeveer 119.000 inwoners (Bron: CBS). De stad ligt op de plaats waar rivier de Merwede zich splitst in de rivier de Noord en de Oude Maas. De economische kansen groeien hier, waardoor ondernemerschap en bedrijvigheid gestimuleerd blijven. Het eiland van Dordrecht heeft een oppervlakte van 79,01 km².
Locatie:
Het object is zeer gunstig gelegen op bedrijventerrein Dordtse Kil III. Dit terrein biedt uitstekende verbindingsmogelijkheden van en naar de rijksweg A16 en via de provinciale weg N3 naar de rijksweg A15.
Bestemming:
Thans is van toepassing het vigerende bestemmingsplan ‘Dordtse Kil’ vastgesteld op 25 juni 2013 waaruit blijkt dat onderhavige locatie de bestemming ‘Bedrijf’ heeft. De voor ‘Bedrijf’ aangewezen gronden zijn bestemd voor: a. bedrijven; b. bedrijfswoningen behorende bij de onder a. bedoelde bedrijven; c. horeca; d. detailhandel; e. verkooppunt motorbrandstoffen; voor zover het de gronden ten zuiden van de N217 (Dordtse Kil III) betreft, tevens voor: f. verkeer; alsmede voor: g. bij de bestemming behorende voorzieningen, zoals verhardingen, groen, water, parkeervoorzieningen en nutsvoorzieningen, een en ander met inachtneming van het bepaalde in lid 4.4 van het bestemmingsplan.
Features
Transfer of ownership
- Rental price
- € 1,750 per month
- Listed since
-
- Status
- Available
- Acceptance
- Available in consultation
Construction
- Main use
- Industrial unit
- Building type
- Resale property
- Year of construction
- 2015
Surface areas
- Area
- 177 m²
- Industrial unit area
- 89 m²
- Office area
- 88 m²
- Maximum load
- 1,000 kg/m²
Layout
- Number of floors
- 1 floor
- Facilities
- Overhead doors, concrete floor, toilet and pantry
Energy
- Energy label
- A+
Surroundings
- Location
- Business park
Parking
- Parking spaces
- 4 uncovered parking spaces
NVM real estate agent
Photos