Voorwillenseweg 63 2806 ZD Gouda

€ 24,115 v.o.n.

Description

Betreft
Nieuwbouw moderne en duurzame opslagruimtes gelegen op de 1e en 2e verdieping aan de Voorwillenseweg 63 te Gouda.

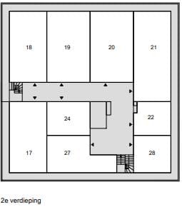
De opslagunits op de begane grond zijn inmiddels allemaal verkocht. Op de 1e en 2e verdieping zijn 18 diverse functionele opslagunits beschikbaar in afmeting variërend van vanaf 18,5 m² tot 68,5 m². Deze units zijn bereikbaar middels een goederenlift. Het combineren van units is mogelijk. Het bestemmingsplan biedt ruimte aan bedrijven in milieu categorie 1 en 2.

Kadastrale gegevens
Gemeente : Gouda
Sectie : K
Nummer : 5820
Grootte : 1.669 m²

Oplevering
De oplevering staat gepland voor het 1e kwartaal van 2026

Indeling/koopsom
Unit Netto oppervlakte m² Verdieping Koopsom* Status
25 39 m² 1e verdieping € 67.841,= Beschikbaar
8 55 m² 1e verdieping € 95.673,= Beschikbaar
9 55 m² 1e verdieping € 95.673,= Beschikbaar
10 53 m² 1e verdieping € 92.194,= Beschikbaar
11 53 m² 1e verdieping € 92.194,= Beschikbaar
12 68,5 m² 1e verdieping € 119.156,= Beschikbaar
13 23 m² 1e verdieping € 40.009,= Beschikbaar
26 31 m² 1e verdieping € 53.925,= Beschikbaar
15 22,5 m² 1e verdieping € 39.139,= Beschikbaar

27 29,5 m² 2e verdieping € 38.453,= Beschikbaar
17 39 m² 2e verdieping € 50.837,= Beschikbaar
18 39 m² 2e verdieping € 50.837,= Beschikbaar
19 47 m² 2e verdieping € 61.265,= Beschikbaar
20 47 m² 2e verdieping € 61.265,= Beschikbaar
21 50 m² 2e verdieping € 65.175,= Beschikbaar
22 18,5 m² 2e verdieping € 24.115,= Beschikbaar
28 20,5 m² 2e verdieping € 26.722,= Beschikbaar
24 22,5 m² 2e verdieping € 29.329,= Beschikbaar

*de koopsom is V.O.N. en exclusief BTW

Opleveringsniveau
De opslagunits op de 1e en 2e verdieping worden opgeleverd inclusief de navolgende voorzieningen:
- Gezamenlijk entree op de begane grond middels een elektrisch bedienbare overheaddeur (3,30 breed x 3,35 hoog);
- Separate loopdeur;
- Goederenlift met een maximale belasting van 2.000 kg;
- Stalen trappen naar verdiepingen;
- Algemeen toilet voorzien van wateraansluiting en afvoer op de begane grond;
- Hoofdaansluitingen voor elektra per verdieping;
- Verwarming en koeling middels een luchtbehandelingskast;
- Betonvloer met een vloerbelasting van 500 kg/m²;
- Vrije hoogte 2,90 m.

Vereniging van eigenaren
Er zal een Vereniging van Eigenaren worden opgericht. De periodieke bijdrage en de opstartkosten voor de VVE zullen nog worden vastgesteld.

Parkeren
De bij het object behorende parkeerplaatsen zijn voor algemeen gebruik.

Huur
Huur behoort tot de mogelijkheden, voorwaarden in overleg.

Algemeen
Ondanks de zorg en aandacht die wordt besteed aan de samenstelling van deze projectinformatie en de hierin opgenomen gegevens, kan Goud Bedrijfshuisvesting niet instaan voor de volledigheid, juistheid of voortdurende actualiteit van de gegevens en wijst iedere vorm van aansprakelijkheid van de hand voor onvolkomenheden, onvolledigheden, dan wel onjuistheden in de weergegeven informatie. Nadrukkelijk is vermeld dat deze informatie niet als een aanbieding of offerte mag worden beschouwd.

Features

Transfer of ownership

Asking price
€ 24,115 vrij op naam
Original asking price
€ 121,900 vrij op naam
Listed since
Status
Available
Acceptance
Available in consultation

Construction

Main use
Industrial unit
Building type
Resale property
Year of construction
2025

Surface areas

Area
1,289 m² (units from 18 m²)
Industrial unit area
1,289 m²
Clearance
2.9 m
Maximum load
500 kg/m²
Plot size
1,669 m²

Layout

Facilities
Overhead doors and concrete floor

Energy

Energy label
Not required

Surroundings

Location
In residential district
Accessibility
Bus stop in 3000 m to 4000 m and Dutch Railways Intercity station in 2000 m to 3000 m

Map

Map is loading...

Cadastral boundaries Buildings

Travel time

Gain insight into the reachability of this object, for instance from a public transport station or a home address.

Voorwillenseweg 63

€ 24,115 v.o.n.