Description
Multifunctional commercial property with upstairs apartment and 6 parking spaces in a prime location in Heerhugowaard.
This versatile property is for sale at Deimoslaan 2a–6 in Heerhugowaard: a representative commercial space of approx. 270 m² combined with a surprisingly spacious upstairs apartment of approx. 530 m³. Ideal for entrepreneurs who want to combine living and working, or for companies looking for a neat commercial space with additional accommodation options.
Commercial space (approx. 270 m²)
The commercial space is located on an easily accessible industrial estate and is divided into a workshop of approx. 179 m² and office/showroom spaces of approx. 91 m².
Concrete floor
Representative entrance, hall, and showroom
Two offices and a separate workspace
Toilet facilities
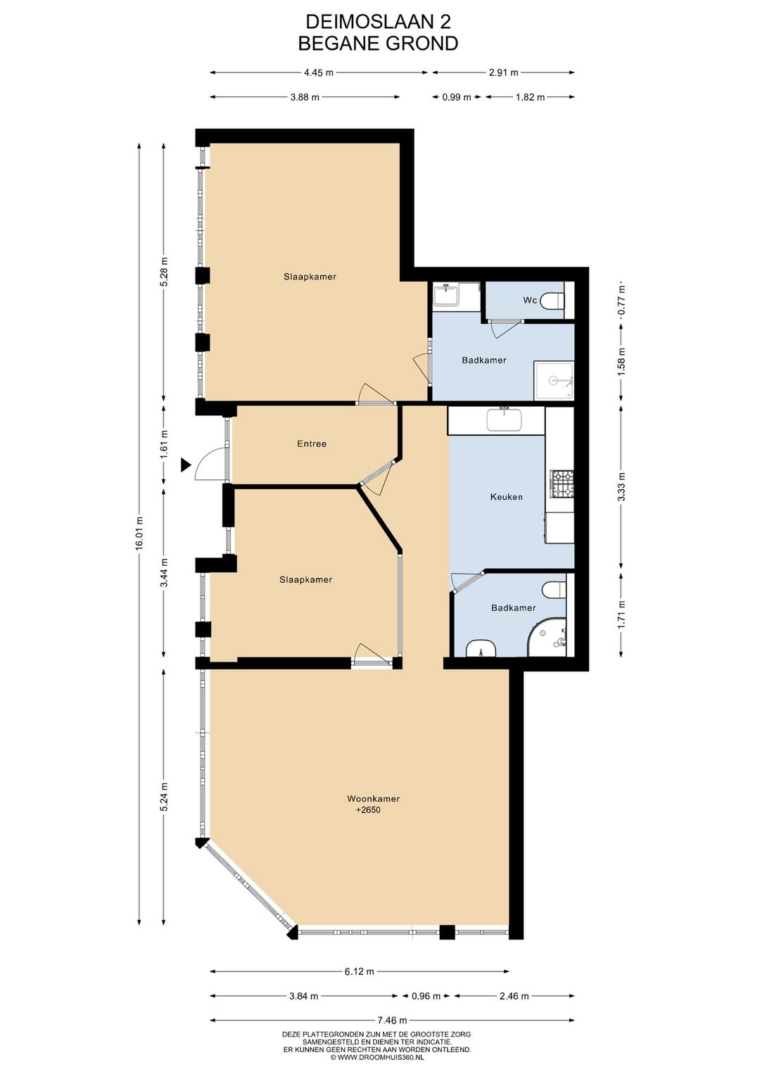
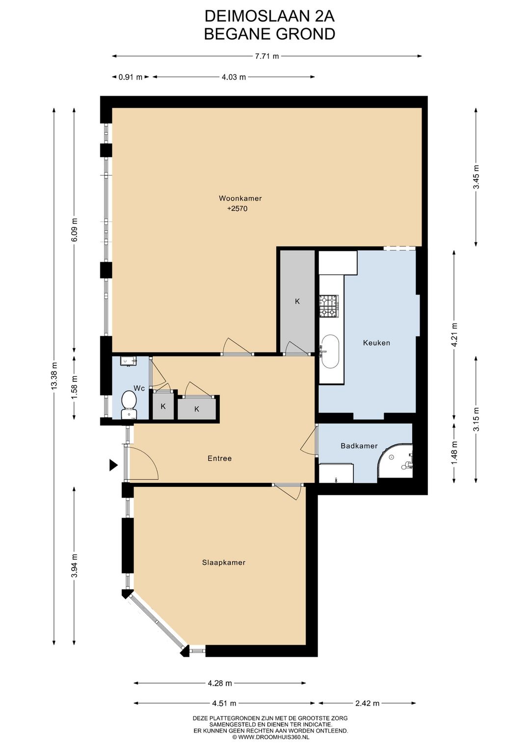
Upper floor apartment (approx. 530 m³)
The upper floor apartment is spacious and has a bright living room with open kitchen, two bedrooms, and a large upper floor with a kitchen area. The living room provides access to a lovely roof terrace of approx. 70 m². The apartment has energy label B and also has an indoor garage.
Outdoor area
There are six private parking spaces directly in front of the door, making parking for employees and visitors no problem at all.
In short: a complete, multifunctional property in a strategic location, perfect for entrepreneurs who appreciate space, comfort, and prestige.
This versatile property is for sale at Deimoslaan 2a–6 in Heerhugowaard: a representative commercial space of approx. 270 m² combined with a surprisingly spacious upstairs apartment of approx. 530 m³. Ideal for entrepreneurs who want to combine living and working, or for companies looking for a neat commercial space with additional accommodation options.
Commercial space (approx. 270 m²)
The commercial space is located on an easily accessible industrial estate and is divided into a workshop of approx. 179 m² and office/showroom spaces of approx. 91 m².
Concrete floor
Representative entrance, hall, and showroom
Two offices and a separate workspace
Toilet facilities
Upper floor apartment (approx. 530 m³)
The upper floor apartment is spacious and has a bright living room with open kitchen, two bedrooms, and a large upper floor with a kitchen area. The living room provides access to a lovely roof terrace of approx. 70 m². The apartment has energy label B and also has an indoor garage.
Outdoor area
There are six private parking spaces directly in front of the door, making parking for employees and visitors no problem at all.
In short: a complete, multifunctional property in a strategic location, perfect for entrepreneurs who appreciate space, comfort, and prestige.
Map
Map is loading...
Cadastral boundaries
Buildings
Travel time
Gain insight into the reachability of this object, for instance from a public transport station or a home address.