Description
TE KOOP | PRINS CLAUSSTRAAT 112-114-114A | HOENSBROEK
Aan de Prins Clausstraat 112-114-114a te Hoensbroek bieden wij dit veelzijdige bedrijfsobject aan, bestaande uit een showroom, magazijn/opslagruimte en kantoren op zowel de begane grond als de verdieping. Het object is in 1960 gebouwd en ligt in de wijk Nieuw Lotbroek, recht tegenover het treinstation van Hoensbroek en nabij bedrijventerrein De Koumen. Het pand is momenteel nog in gebruik als winkel/showroom ten behoeve van veiligheidsartikelen.
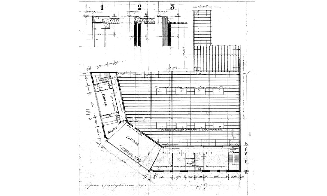
Op de begane grond bevindt zich een representatieve showroom van circa 110 m², ideaal voor productpresentatie of klantontvangst. Aansluitend ligt het magazijn van circa 265 m², voorzien van een overheaddeur. Het magazijn heeft een vrije hoogte van circa 3,8 meter en een doorrijhoogte van 1,9 meter. De eerste verdieping omvat circa 125 m² kantoorruimte, met aansluitend een extra ruimte van circa 93 m² die in het verleden als appartement is gebruikt. Deze ruimte biedt mogelijkheden voor uitbreiding of herindeling, afhankelijk van de behoefte van de gebruiker.
Het object beschikt over betonnen verdiepingsvloeren, aluminium kozijnen en dubbel glas, wat bijdraagt aan een solide en onderhoudsvriendelijke constructie. Verwarming en klimaatbeheersing zijn uitstekend geregeld middels een Cv-installatie, luchtverwarming en airconditioning.
Dankzij de veelzijdige indeling en de gunstige ligging biedt dit object uiteenlopende gebruiksmogelijkheden. Het is uitermate geschikt voor ondernemers die een combinatie van showroom, opslag en kantoorruimte zoeken. Daarnaast is het object ook interessant voor herontwikkelingsdoeleinden
BASISKENMERKEN
Adres: Prins Clausstraat 112-114 6433JR Hoensbroek
Bouwjaar: 1960
Gebruik: Detailhandel, dienstverlening
Perceeloppervlakte: 745 m2
Vraagprijs: € 395.000,- k.k.
Aanvaarding: In overleg.
LOCATIE
Het object is gelegen in de wijk Nieuw Lotbroek, direct grenzend aan het bedrijventerrein De Koumen. Dit bedrijventerrein biedt ruimte aan breed scala aan bedrijven en is uitstekend ontwikkeld, waardoor het een professionele en toegankelijke werkomgeving biedt voor verschillende sectoren.
Bereikbaarheid:Per auto: Het object nabij de N281 en de A76 met een snelwegverbinding naar de A2..Per openbaar vervoer: Het treinstation van Hoensbroek met verbindingen naar Heerlen en Sittard ligt direct tegenover het object.
OBJECTINFORMATIE
Het gebouw bestaat uit:Bouwlaag - Omschrijving – Oppervlakte (v.v.o.)
Begane grond - bedrijfsruimte - ca. 265 m²
Begane grond – showroom - ca. 110 m²
Eerste verdieping – kantoorruimte - ca. 125 m²
Eerste verdieping – woonruimte - ca. 93 m²
Totaal ca. 593 m²
Parkeren:
De openbare weg en de parkeerplaats aan de overzijde bieden voldoende gratis parkeermogelijkheden.
Bestemming:
Als ruimtelijk kader geldt het Omgevingsplan ‘Gemeente Heerlen’, met specifiek voor dit object het bestemmingsplan ‘Hoensbroek Zuid’. Op basis van dit plan is het object bestemd als ‘Wonen (aaneengesloten woningen)’ met de volgende aanduidingen: detailhandel en dienstverlening. Het Omgevingsplan is op eerste aanvraag beschikbaar via ons kantoor.
Opleveringsniveau:
Het object wordt in huidige staat (´as-is, where-is´) opgeleverd.
KOOPGEGEVENS
Vraagprijs: € 395.000,- kosten koper.
Aanvaarding: In overleg.
Kadastrale info: het object is kadastraal bekend:
Gemeente Heerlen, sectie V, nummers 450
Totaal groot: 745 m2
Eigendom soort: Volle eigendom.
Oplevering: In huidige staat, vrij van huur en bezemschoon.
Verkoop of verhuur van dit object is te allen tijde onder voorbehoud van schriftelijke goedkeuring door eigenaar.
Alle maten en afmetingen zijn bij benadering weergegeven. Deze aanbieding mag slechts worden gezien als een uitnodiging tot bezichtiging. Een afspraak hiertoe kunt u maken bij ons kantoor.
Hoewel de grootst mogelijke zorgvuldigheid bij de samenstelling van deze informatie is betracht, aanvaarden wij geen aansprakelijkheid voor de juistheid van de vermelde gegevens.
Aan de Prins Clausstraat 112-114-114a te Hoensbroek bieden wij dit veelzijdige bedrijfsobject aan, bestaande uit een showroom, magazijn/opslagruimte en kantoren op zowel de begane grond als de verdieping. Het object is in 1960 gebouwd en ligt in de wijk Nieuw Lotbroek, recht tegenover het treinstation van Hoensbroek en nabij bedrijventerrein De Koumen. Het pand is momenteel nog in gebruik als winkel/showroom ten behoeve van veiligheidsartikelen.
Op de begane grond bevindt zich een representatieve showroom van circa 110 m², ideaal voor productpresentatie of klantontvangst. Aansluitend ligt het magazijn van circa 265 m², voorzien van een overheaddeur. Het magazijn heeft een vrije hoogte van circa 3,8 meter en een doorrijhoogte van 1,9 meter. De eerste verdieping omvat circa 125 m² kantoorruimte, met aansluitend een extra ruimte van circa 93 m² die in het verleden als appartement is gebruikt. Deze ruimte biedt mogelijkheden voor uitbreiding of herindeling, afhankelijk van de behoefte van de gebruiker.
Het object beschikt over betonnen verdiepingsvloeren, aluminium kozijnen en dubbel glas, wat bijdraagt aan een solide en onderhoudsvriendelijke constructie. Verwarming en klimaatbeheersing zijn uitstekend geregeld middels een Cv-installatie, luchtverwarming en airconditioning.
Dankzij de veelzijdige indeling en de gunstige ligging biedt dit object uiteenlopende gebruiksmogelijkheden. Het is uitermate geschikt voor ondernemers die een combinatie van showroom, opslag en kantoorruimte zoeken. Daarnaast is het object ook interessant voor herontwikkelingsdoeleinden
BASISKENMERKEN
Adres: Prins Clausstraat 112-114 6433JR Hoensbroek
Bouwjaar: 1960
Gebruik: Detailhandel, dienstverlening
Perceeloppervlakte: 745 m2
Vraagprijs: € 395.000,- k.k.
Aanvaarding: In overleg.
LOCATIE
Het object is gelegen in de wijk Nieuw Lotbroek, direct grenzend aan het bedrijventerrein De Koumen. Dit bedrijventerrein biedt ruimte aan breed scala aan bedrijven en is uitstekend ontwikkeld, waardoor het een professionele en toegankelijke werkomgeving biedt voor verschillende sectoren.
Bereikbaarheid:Per auto: Het object nabij de N281 en de A76 met een snelwegverbinding naar de A2..Per openbaar vervoer: Het treinstation van Hoensbroek met verbindingen naar Heerlen en Sittard ligt direct tegenover het object.
OBJECTINFORMATIE
Het gebouw bestaat uit:Bouwlaag - Omschrijving – Oppervlakte (v.v.o.)
Begane grond - bedrijfsruimte - ca. 265 m²
Begane grond – showroom - ca. 110 m²
Eerste verdieping – kantoorruimte - ca. 125 m²
Eerste verdieping – woonruimte - ca. 93 m²
Totaal ca. 593 m²
Parkeren:
De openbare weg en de parkeerplaats aan de overzijde bieden voldoende gratis parkeermogelijkheden.
Bestemming:
Als ruimtelijk kader geldt het Omgevingsplan ‘Gemeente Heerlen’, met specifiek voor dit object het bestemmingsplan ‘Hoensbroek Zuid’. Op basis van dit plan is het object bestemd als ‘Wonen (aaneengesloten woningen)’ met de volgende aanduidingen: detailhandel en dienstverlening. Het Omgevingsplan is op eerste aanvraag beschikbaar via ons kantoor.
Opleveringsniveau:
Het object wordt in huidige staat (´as-is, where-is´) opgeleverd.
KOOPGEGEVENS
Vraagprijs: € 395.000,- kosten koper.
Aanvaarding: In overleg.
Kadastrale info: het object is kadastraal bekend:
Gemeente Heerlen, sectie V, nummers 450
Totaal groot: 745 m2
Eigendom soort: Volle eigendom.
Oplevering: In huidige staat, vrij van huur en bezemschoon.
Verkoop of verhuur van dit object is te allen tijde onder voorbehoud van schriftelijke goedkeuring door eigenaar.
Alle maten en afmetingen zijn bij benadering weergegeven. Deze aanbieding mag slechts worden gezien als een uitnodiging tot bezichtiging. Een afspraak hiertoe kunt u maken bij ons kantoor.
Hoewel de grootst mogelijke zorgvuldigheid bij de samenstelling van deze informatie is betracht, aanvaarden wij geen aansprakelijkheid voor de juistheid van de vermelde gegevens.
Map
Map is loading...
Cadastral boundaries
Buildings
Travel time
Gain insight into the reachability of this object, for instance from a public transport station or a home address.