Description
Vrijstaand bedrijfspand met inpandige kantoorruimte
Locatie
Gelegen op goede locatie centraal op bedrijventerrein 'De Wieken'. Het bedrijfsobject is gelegen aan de Siemensstraat pal tegenover de Dieselstraat. De Siemensstraat is een zijweg van de Edisonstraat, welke deel uitmaakt van de ring rondom het bedrijventerrein en op ongeveer 2½ kilometer afstand van de op- en afritten van de autosnelweg A28 (Zwolle - Groningen).
Bouwjaar
Oorspronkelijk gerealiseerd in 1996. In 2009 is ingrijpend verbouwd en uitgebreid.
Oppervlakte
De totale bedrijfsoppervlakte bedraagt circa 850 m² VVO, waarvan ca. 310 m² kantoorruimte (verdeeld over begane grond en verdieping) en ca. 540 m² magazijnruimte.
Indeling
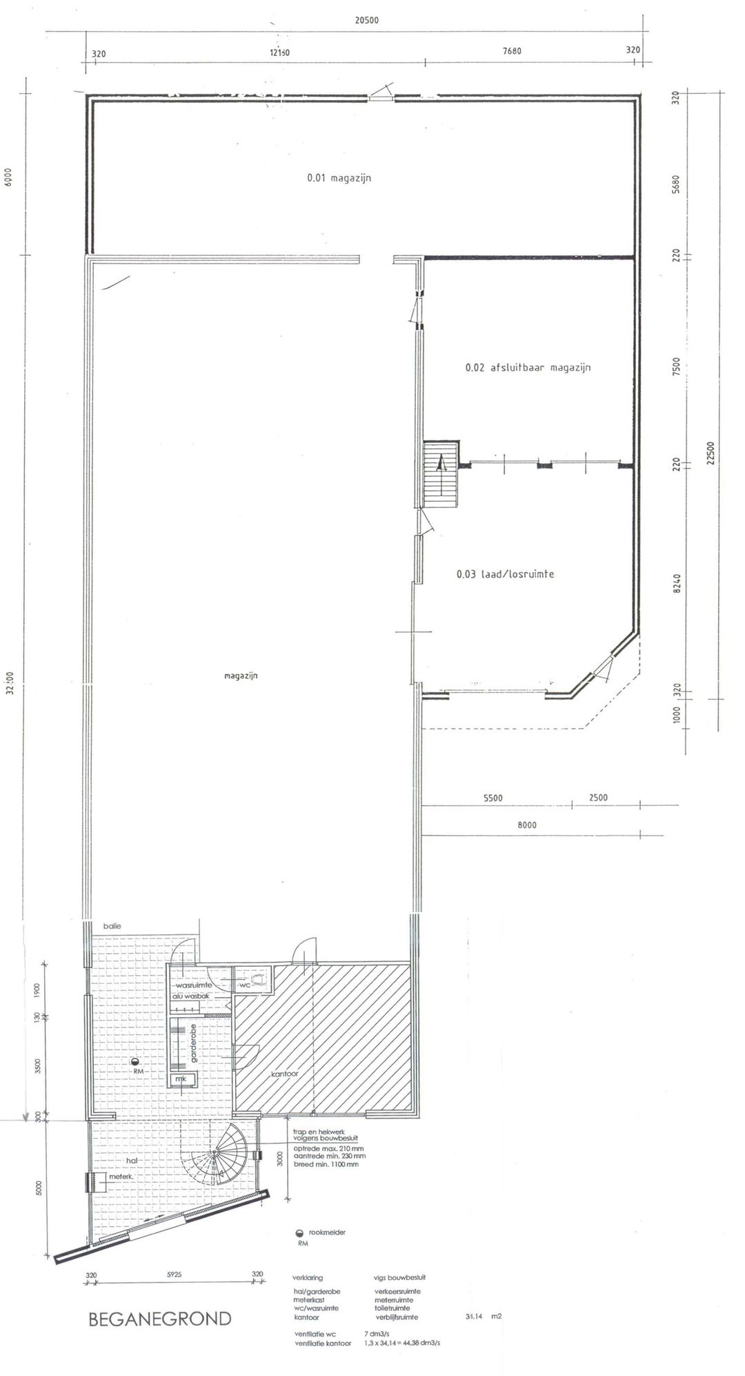
Begane grond kantoorgedeelte: centrale hal met fraaie trappartij, ontvangstruimte met balie, receptiekantoor, garderobe, was/toiletruimte.
Begane grond bedrijfsgedeelte: laad/losruimte, afsluitbaar magazijn, 2 magazijnruimten (± 370 m² ruim 5 meter hoog, ± 170 m² circa 2½ meter hoog).
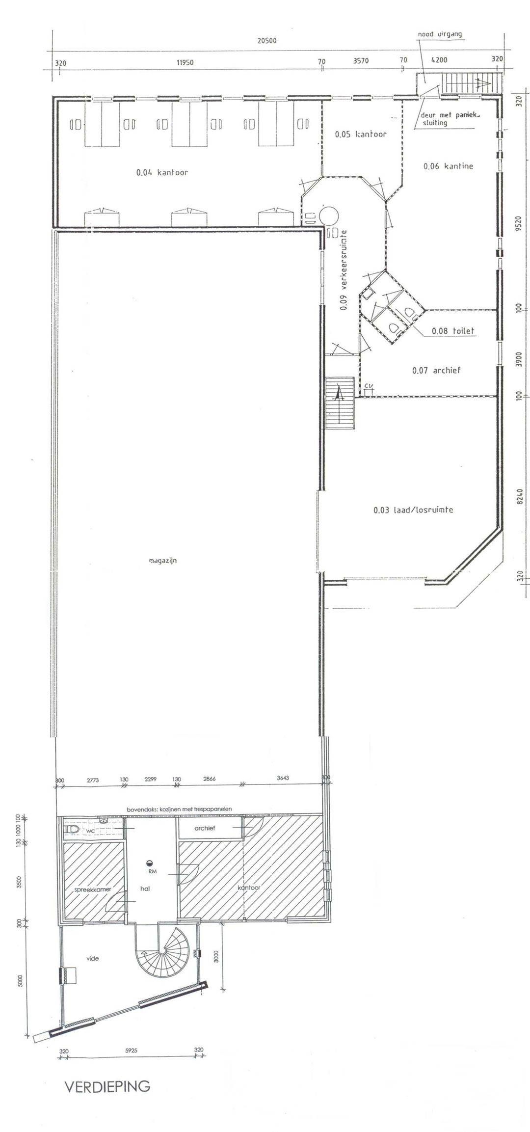
Verdieping kantoorgedeelte voorzijde: vide met centrale hal, kantoor, spreekkamer met kitchenette, archiefruimte, toiletruimte.
Verdieping kantoorgedeelte achterzijde: centrale gang, 2 kantoorruimten (waarvan 1 zeer royaal), kantine met keuken, toiletruimte (dames, heren), archiefruimte.
Uitvoering
Algemeen:
- elektrische installatie (230 en 400 Volt);
- gasgestookte verwarmingsinstallatie (deels vloerverwarming, deels radiatoren);
- alarminstallatie en Octro hang- en sluitwerk;
- brandblussers en brandslanghaspels.
- het gebouw beschikt over energielabel B.
Kantoorgedeelte:
- automatische schuifdeuren bij de entree;
- systeemplafonds met armaturen;
- 5 airconditioningunits;
- mechanische ventilatie;
- royale keuken voorzien van spoelbak, kookplaat, koelkast en vaatwasser.
Bedrijfshal:
- gietvloer en gevlinderde vloer;
- 2 elektrisch bediende overheaddeuren, 1 handbediende overheaddeur;
- diverse elektrische aansluitingen;
- verlichting;
- voorzien van nieuwe dakbedekking met een 10 cm dik isolatiepakket alsmede een nieuwe geïsoleerde lichtstraat.
Buitenterrein:
Het buitenterrein is voorzien van klinkerverharding, tuinaanleg en verlichting en is rondom voorzien van B&G hekwerk voorzien van een elektrisch bediende schuifpoort met afstandsbediening en sleutelschakelaars. Het terrein biedt parkeerruimte voor 12 auto’s.
Bestemming
Bestemmingsplan Industrieterrein De Wieken 2010, vastgesteld op 12 december 2013. Bestemming Bedrijventerrein-5, bouwklasse 3; ten behoeve van de vestiging van bedrijven binnen de categorie 1 t/m 4.2 alsmede o.a. praktijkopleidingen ten behoeve van bovengenoemde bedrijvigheid (maximaal 1.500 m²), detailhandel in auto's, motoren, boten, caravans, keukens, sanitair, buitenmeubilair, campingartikelen, woninginrichting en (grove) bouwmaterialen, kringloopwinkels, e-commerce, kantoren (maximaal 1.500 m²), sociale werkvoorzieningen.
Bijzonderheden
In opdracht van verhuurder wordt ten behoeve van de huurder o.a. uitgevoerd het onderhoud en keuring van de aanwezige installaties, onderhoud groenvoorziening en parkeerterrein, bladvrij houden van daken en afvoeren. De kosten hiervan zullen worden doorbelast aan de huurder.
Huurvoorwaarden:
- huurprijs: € 4.975,- per maand, excl. BTW;
- servicekosten: nader te bepalen;
- aanvaarding: in overleg;
- betaling: huur en voorschot servicekosten per maand vooruit te voldoen;
- huurtermijnen: 5 jaren + 5 optiejaren, afwijkende huurperiode in overleg;
- opzegtermijn: 12 maanden;
- huurovereenkomst: conform model ROZ;
- indexering: jaarlijks op basis van de CPI-index van het CBS;
- zekerheidstelling: borg ter grootte van 3 maanden huur alsmede servicekosten, vermeerderd met de verschuldigde omzetbelasting.
Omzetbelasting
Verhuurder wenst te opteren voor een met BTW-belaste huur/verhuur. Ingeval huurder de BTW niet kan verrekenen zal de huurprijs met een nader vast te stellen bedrag worden verhoogd ter compensatie van de gevolgen van het vervallen van de mogelijkheden om te opteren voor BTW-belaste verhuur.
Aansprakelijkheid
Vorenstaande behelst vrijblijvende informatie. Alle verstrekte informatie moet worden beschouwd als een uitnodiging tot het doen van een bod of om in onderhandeling te treden. Wij kunnen niet instaan voor de juistheid of volledigheid van deze gegevens.
Locatie
Gelegen op goede locatie centraal op bedrijventerrein 'De Wieken'. Het bedrijfsobject is gelegen aan de Siemensstraat pal tegenover de Dieselstraat. De Siemensstraat is een zijweg van de Edisonstraat, welke deel uitmaakt van de ring rondom het bedrijventerrein en op ongeveer 2½ kilometer afstand van de op- en afritten van de autosnelweg A28 (Zwolle - Groningen).
Bouwjaar
Oorspronkelijk gerealiseerd in 1996. In 2009 is ingrijpend verbouwd en uitgebreid.
Oppervlakte
De totale bedrijfsoppervlakte bedraagt circa 850 m² VVO, waarvan ca. 310 m² kantoorruimte (verdeeld over begane grond en verdieping) en ca. 540 m² magazijnruimte.
Indeling
Begane grond kantoorgedeelte: centrale hal met fraaie trappartij, ontvangstruimte met balie, receptiekantoor, garderobe, was/toiletruimte.
Begane grond bedrijfsgedeelte: laad/losruimte, afsluitbaar magazijn, 2 magazijnruimten (± 370 m² ruim 5 meter hoog, ± 170 m² circa 2½ meter hoog).
Verdieping kantoorgedeelte voorzijde: vide met centrale hal, kantoor, spreekkamer met kitchenette, archiefruimte, toiletruimte.
Verdieping kantoorgedeelte achterzijde: centrale gang, 2 kantoorruimten (waarvan 1 zeer royaal), kantine met keuken, toiletruimte (dames, heren), archiefruimte.
Uitvoering
Algemeen:
- elektrische installatie (230 en 400 Volt);
- gasgestookte verwarmingsinstallatie (deels vloerverwarming, deels radiatoren);
- alarminstallatie en Octro hang- en sluitwerk;
- brandblussers en brandslanghaspels.
- het gebouw beschikt over energielabel B.
Kantoorgedeelte:
- automatische schuifdeuren bij de entree;
- systeemplafonds met armaturen;
- 5 airconditioningunits;
- mechanische ventilatie;
- royale keuken voorzien van spoelbak, kookplaat, koelkast en vaatwasser.
Bedrijfshal:
- gietvloer en gevlinderde vloer;
- 2 elektrisch bediende overheaddeuren, 1 handbediende overheaddeur;
- diverse elektrische aansluitingen;
- verlichting;
- voorzien van nieuwe dakbedekking met een 10 cm dik isolatiepakket alsmede een nieuwe geïsoleerde lichtstraat.
Buitenterrein:
Het buitenterrein is voorzien van klinkerverharding, tuinaanleg en verlichting en is rondom voorzien van B&G hekwerk voorzien van een elektrisch bediende schuifpoort met afstandsbediening en sleutelschakelaars. Het terrein biedt parkeerruimte voor 12 auto’s.
Bestemming
Bestemmingsplan Industrieterrein De Wieken 2010, vastgesteld op 12 december 2013. Bestemming Bedrijventerrein-5, bouwklasse 3; ten behoeve van de vestiging van bedrijven binnen de categorie 1 t/m 4.2 alsmede o.a. praktijkopleidingen ten behoeve van bovengenoemde bedrijvigheid (maximaal 1.500 m²), detailhandel in auto's, motoren, boten, caravans, keukens, sanitair, buitenmeubilair, campingartikelen, woninginrichting en (grove) bouwmaterialen, kringloopwinkels, e-commerce, kantoren (maximaal 1.500 m²), sociale werkvoorzieningen.
Bijzonderheden
In opdracht van verhuurder wordt ten behoeve van de huurder o.a. uitgevoerd het onderhoud en keuring van de aanwezige installaties, onderhoud groenvoorziening en parkeerterrein, bladvrij houden van daken en afvoeren. De kosten hiervan zullen worden doorbelast aan de huurder.
Huurvoorwaarden:
- huurprijs: € 4.975,- per maand, excl. BTW;
- servicekosten: nader te bepalen;
- aanvaarding: in overleg;
- betaling: huur en voorschot servicekosten per maand vooruit te voldoen;
- huurtermijnen: 5 jaren + 5 optiejaren, afwijkende huurperiode in overleg;
- opzegtermijn: 12 maanden;
- huurovereenkomst: conform model ROZ;
- indexering: jaarlijks op basis van de CPI-index van het CBS;
- zekerheidstelling: borg ter grootte van 3 maanden huur alsmede servicekosten, vermeerderd met de verschuldigde omzetbelasting.
Omzetbelasting
Verhuurder wenst te opteren voor een met BTW-belaste huur/verhuur. Ingeval huurder de BTW niet kan verrekenen zal de huurprijs met een nader vast te stellen bedrag worden verhoogd ter compensatie van de gevolgen van het vervallen van de mogelijkheden om te opteren voor BTW-belaste verhuur.
Aansprakelijkheid
Vorenstaande behelst vrijblijvende informatie. Alle verstrekte informatie moet worden beschouwd als een uitnodiging tot het doen van een bod of om in onderhandeling te treden. Wij kunnen niet instaan voor de juistheid of volledigheid van deze gegevens.
Map
Map is loading...
Cadastral boundaries
Buildings
Travel time
Gain insight into the reachability of this object, for instance from a public transport station or a home address.