Eckertstraat 52 8263 CB Kampen
Rental price on request
Description
OMSCHRIJVING & LIGGING
Verken de zakelijke kansen in Kampen met dit toekomstige bedrijfspand, gepland voor 2024. Gelegen aan de rand van het industrieterrein van Kampen, biedt deze locatie uitstekende verbindingen met de snelweg en bevindt zich te midden van een dynamische mix van industrie en kantoren. Deze strategische positie verzekert optimale bereikbaarheid en zichtbaarheid voor je onderneming.
OBJECT
Dit ruime bedrijfspand met een robuuste stalen spantconstructie biedt in totaal 864 m² aan bedrijfsruimte, aangevuld met
152 m² kantoorruimte en een 30 m² kantine. Het design is gericht op het creëren van een veelzijdige werkomgeving die functionaliteit bied.
INDELING EN CONSTRUCTIE
Zo lang het pand nog niet gerealiseerd, is er een mogelijkheid voor inspraak qua indeling en voorzieningen, zoals bijvoorbeeld de indeling van de kantoren.
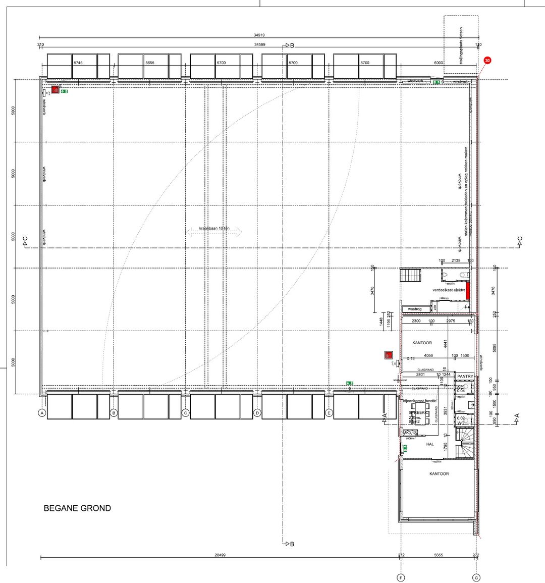
Begane grond:
De entreehal met meterkast leidt naar twee royale kantoorruimtes, compleet met toilettengroep en berging. Verder biedt de hal toegang tot de trap naar boven. De bedrijfshal is toegankelijk via 2 loopdeuren en 10 overheaddeuren en bevat een toilettengroep met wastrog, toilet en een douche.
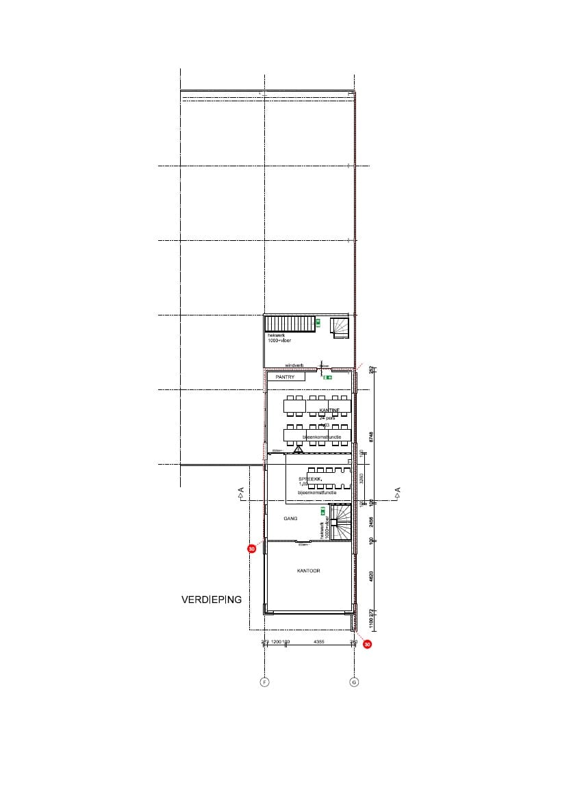
Verdieping:
De eerste verdieping bevat een gang die leidt naar een extra kantoor, een spreekkamer en de kantine. Deze verdieping biedt flexibele ruimte voor diverse zakelijke doeleinden.
VOORZIENINGEN/INSTALLATIES
Uitgerust met hedendaagse kantoren, een kantine, toilettengroepen, en een douche.
Additionele functionaliteiten omvatten 180 zonnepanelen die de ecologische en economische duurzaamheid van het pand benadrukken.
Er is een mogelijkheid voor een 10-tons bovenloopkraan, dit kan in overleg worden gerealiseerd.
DUURZAAMHEID EN KWALITEIT:
Dit pand is ontworpen met aandacht voor zowel esthetiek als functionaliteit. De constructie maakt volledig gebruik van geavanceerde isolatietechnieken, van de kunststof kozijnen tot het dak, wat de energie-efficiëntie maximaliseert. Deze uitgebreide isolatie vermindert de energiekosten aanzienlijk en draagt bij aan een duurzaam gebruik van hulpbronnen. Het gebouw voldoet aan de huidige strenge milieunormen, waardoor het niet alleen kostenbesparend is, maar ook minder impact heeft op het milieu. Dit resulteert in een werkomgeving die zowel economisch als ecologisch verantwoord is.
Verken de zakelijke kansen in Kampen met dit toekomstige bedrijfspand, gepland voor 2024. Gelegen aan de rand van het industrieterrein van Kampen, biedt deze locatie uitstekende verbindingen met de snelweg en bevindt zich te midden van een dynamische mix van industrie en kantoren. Deze strategische positie verzekert optimale bereikbaarheid en zichtbaarheid voor je onderneming.
OBJECT
Dit ruime bedrijfspand met een robuuste stalen spantconstructie biedt in totaal 864 m² aan bedrijfsruimte, aangevuld met
152 m² kantoorruimte en een 30 m² kantine. Het design is gericht op het creëren van een veelzijdige werkomgeving die functionaliteit bied.
INDELING EN CONSTRUCTIE
Zo lang het pand nog niet gerealiseerd, is er een mogelijkheid voor inspraak qua indeling en voorzieningen, zoals bijvoorbeeld de indeling van de kantoren.
Begane grond:
De entreehal met meterkast leidt naar twee royale kantoorruimtes, compleet met toilettengroep en berging. Verder biedt de hal toegang tot de trap naar boven. De bedrijfshal is toegankelijk via 2 loopdeuren en 10 overheaddeuren en bevat een toilettengroep met wastrog, toilet en een douche.
Verdieping:
De eerste verdieping bevat een gang die leidt naar een extra kantoor, een spreekkamer en de kantine. Deze verdieping biedt flexibele ruimte voor diverse zakelijke doeleinden.
VOORZIENINGEN/INSTALLATIES
Uitgerust met hedendaagse kantoren, een kantine, toilettengroepen, en een douche.
Additionele functionaliteiten omvatten 180 zonnepanelen die de ecologische en economische duurzaamheid van het pand benadrukken.
Er is een mogelijkheid voor een 10-tons bovenloopkraan, dit kan in overleg worden gerealiseerd.
DUURZAAMHEID EN KWALITEIT:
Dit pand is ontworpen met aandacht voor zowel esthetiek als functionaliteit. De constructie maakt volledig gebruik van geavanceerde isolatietechnieken, van de kunststof kozijnen tot het dak, wat de energie-efficiëntie maximaliseert. Deze uitgebreide isolatie vermindert de energiekosten aanzienlijk en draagt bij aan een duurzaam gebruik van hulpbronnen. Het gebouw voldoet aan de huidige strenge milieunormen, waardoor het niet alleen kostenbesparend is, maar ook minder impact heeft op het milieu. Dit resulteert in een werkomgeving die zowel economisch als ecologisch verantwoord is.
Features
Transfer of ownership
- Rental price
- Rental price on request
- Listed since
-
- Status
- Available
- Acceptance
- Available in consultation
Construction
- Main use
- Industrial unit
- Building type
- New property
- Year of construction
- 2024
Surface areas
- Area
- 1,016 m²
- Industrial unit area
- 864 m²
- Office area
- 152 m²
- Plot size
- 3,492 m²
Layout
- Number of floors
- 1 floor
- Facilities
- Overhead doors, toilet, pantry, mechanical ventilation and windows can be opened
Energy
- Energy label
- Not required
Surroundings
- Location
- Business park
- Accessibility
- Bus stop in 3000 m to 4000 m, Dutch Railways Intercity station in 5000 m or more and motorway exit in 2000 m to 3000 m
NVM real estate agent
Photos