Plantageweg 23-b 3833 AZ Leusden
- Rented under reservation
€ 2,500 p/mo.
Description
Te huur: representatief bedrijfspand aan de Plantageweg 23B te Leusden.
Aan de Plantageweg 23B in Leusden bieden wij een modern en instapklaar bedrijfspand met kantoor op de verdiepingaan met een uitstekende afwerking en duurzame voorzieningen.
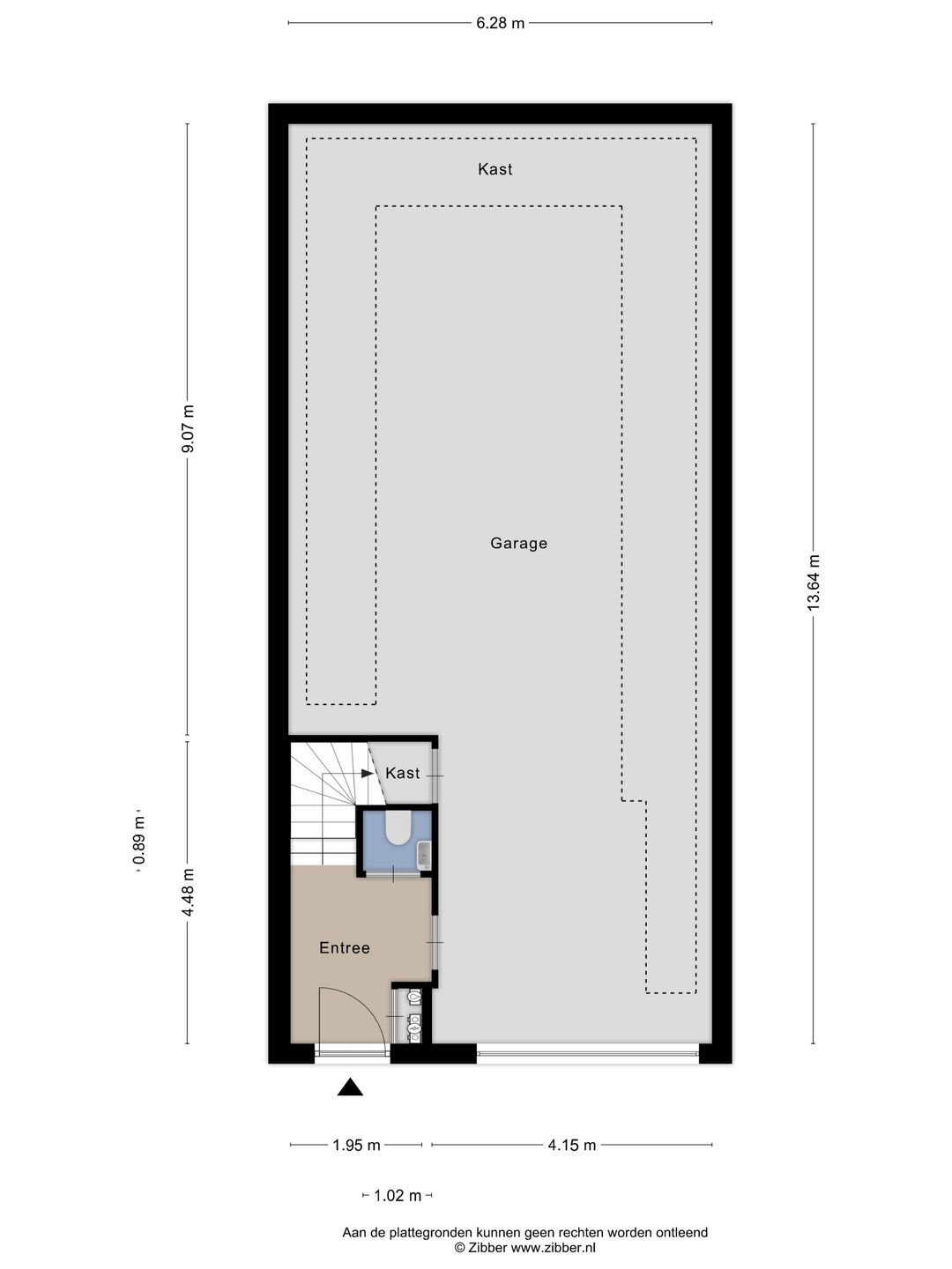
Het pand bestaat uit circa 90 m² bedrijfsruimte op de begane gronden circa 23,5 m² kantoorruimte op de verdieping.
Het geheel is ideaal geschikt voor ondernemers die een combinatie zoeken van werkplaats, opslag en kantoor op één locatie.
Begane grond:
- Entree met hal, toilet en trapopgang
- Bedrijfsruimte met elektrische overheaddeur
- Vloerverwarming en volledige LED-verlichting
- Alarminstallatie met 7 camera’s
- Circa 10-15 zonnepanelen (lage energiekosten)
- Geen energielabel vereist
Verdieping:
Kantoorruimte van ca. 6,5 x 3,6 meter
Pantry voorzien van Quooker, vaatwasser, koelkast en combimagnetron.
3 eigen parkeerplaatsen, 2 naast het pand en 1 voor de overheaddeur
Glasvezelinternet beschikbaar (ca. € 90,- per maand)
Representatieve uitstraling, instapklaar en energiezuinig
Gelegen op een goed bereikbare locatie in Leusden, met snelle verbinding naar Amersfoort en de A28.
Huurtermijn in overleg.
Opzegtermijn 6 maanden
Borgsom ter grootte van drie maanden bruto huur.
Aan de Plantageweg 23B in Leusden bieden wij een modern en instapklaar bedrijfspand met kantoor op de verdiepingaan met een uitstekende afwerking en duurzame voorzieningen.
Het pand bestaat uit circa 90 m² bedrijfsruimte op de begane gronden circa 23,5 m² kantoorruimte op de verdieping.
Het geheel is ideaal geschikt voor ondernemers die een combinatie zoeken van werkplaats, opslag en kantoor op één locatie.
Begane grond:
- Entree met hal, toilet en trapopgang
- Bedrijfsruimte met elektrische overheaddeur
- Vloerverwarming en volledige LED-verlichting
- Alarminstallatie met 7 camera’s
- Circa 10-15 zonnepanelen (lage energiekosten)
- Geen energielabel vereist
Verdieping:
Kantoorruimte van ca. 6,5 x 3,6 meter
Pantry voorzien van Quooker, vaatwasser, koelkast en combimagnetron.
3 eigen parkeerplaatsen, 2 naast het pand en 1 voor de overheaddeur
Glasvezelinternet beschikbaar (ca. € 90,- per maand)
Representatieve uitstraling, instapklaar en energiezuinig
Gelegen op een goed bereikbare locatie in Leusden, met snelle verbinding naar Amersfoort en de A28.
Huurtermijn in overleg.
Opzegtermijn 6 maanden
Borgsom ter grootte van drie maanden bruto huur.
Features
Transfer of ownership
- Rental price
- € 2,500 per month
- Service charges
- € 225 per month (21% VAT applies)
- Listed since
-
- Status
- Rented under reservation
- Acceptance
- Available in consultation
Construction
- Main use
- Industrial unit
- Building type
- Resale property
- Year of construction
- 2022
Surface areas
- Area
- 114 m²
- Industrial unit area
- 114 m²
Energy
- Energy label
- Not required
NVM real estate agent
Photos
Floorplan
Begane Grond
Eerste Verdieping