Description
De genoemde vraagprijs is inclusief btw. Zeer riante ruimtes, divers te gebruiken met aanvullend bedrijfsruimten en weiland. Thans in gebruik als hondenfokkerij alsmede klein zakelijke bedrijven.
Ook zeer geschikt voor zorgdoeleinden.
Speciaal voor liefhebbers van rust, ruimte en stijl hebben we een pracht van een vrijstaande verbouwde boerderij met bijzondere bijgebouwen! Een prachtige plek met heerlijk weids uitzicht en in een groene omgeving.
Deze met historische bouwmaterialen volledig gerestaureerde Betuwse herenboerderij (circa 1670, volledig ver- en aanbouw tot en met 2023) met aanbouw, is gelegen net buiten de bebouwde kom van Neerijnen. In het hoofdgebouw bevindt zich naast een meer dan riante woning, een ruim kantoor, een tweede royale woonruimte met aparte opgang, welke in gebruik kan worden genomen als gastenverblijf of dubbele bewoning. Dit object biedt u veel privacy, middels een oprijlaan. Een ideale combinatie van woongenot en het houden van paarden, zowel voor professioneel gebruik als privé-doeleinden in combinatie met bijvoorbeeld een kantoorfunctie.
De boerderij is gesitueerd op een kavel van maar liefst 16.609 m2 en is onder andere voorzien van stallen, diverse kantoren, een riante tuin en een paardenbak. Het betreft een zeer bijzondere woning op een hele bijzondere, niet alledaagse locatie. Een bezoek ter plaatse zal een goed beeld geven van de prachtige sfeer, de rust, de ruimte en het genot.
Het landhuis bereikt u via een imposante oprijlaan, waar de bijzonderheid van deze locatie al direct waar te nemen en te “voelen” is.
Bijzonderheden van de woning:
- Woonoppervlakte 1250 m2
- Inhoud van de woning 5.044 m3
- Een woning met diverse mogelijkheden, zoals dubbele bewoning, kantoor en/of praktijk aan huis, b&b (goedkeuring gemeente vereist);
- Om in de inrit in- en uit te rijden is er een elektrische toegangspoort aanwezig;
- Een deel in het originele woonhuis en in de tweede woning is vloerverwarming aanwezig;
- Airconditioning;
- Het rieten dak is jaarlijks onderhouden;
- Een unieke, niet alle daagse woning op een geweldige groene locatie.
INDELING VAN DE WONING
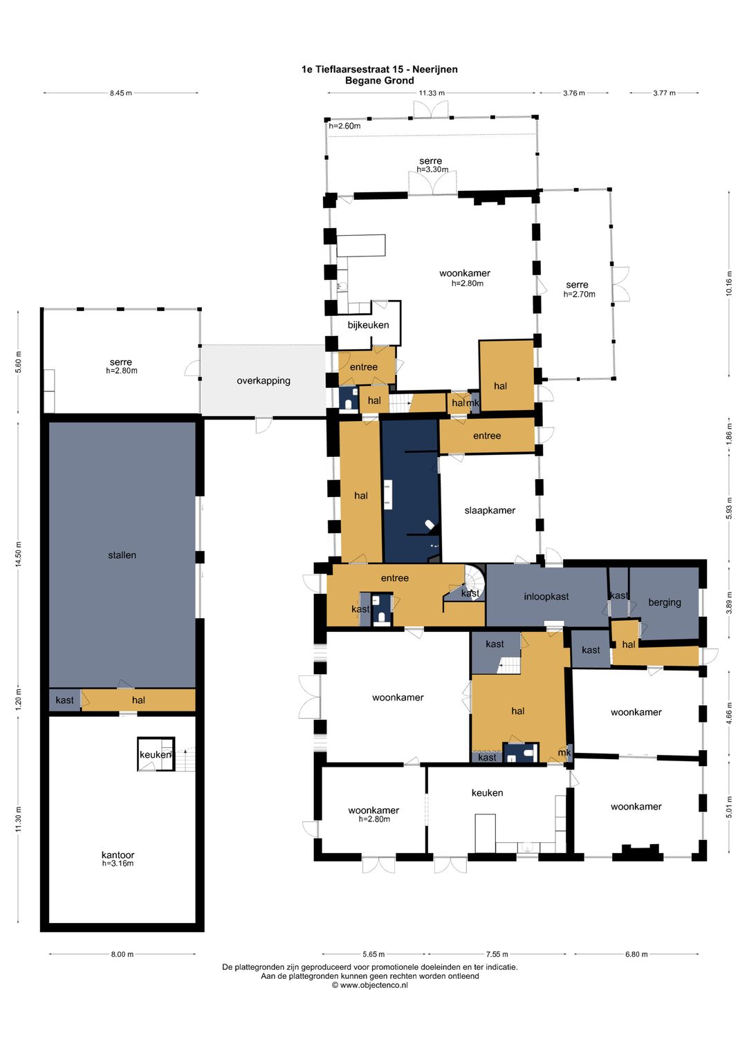
BEGANE GROND
De entree van de woning is aan de zijkant van de woning. De centrale hal geeft toegang naar de living, trapopgang naar de eerste verdieping, toiletruimte, een kast en de doorgang naar de achtergelegen aanbouw met woonkamer, keuken en twee grote serres.
Woonkamer
De woonkamer bevindt zich in de originele woning aan de voorzijde en is een gezellige, ruime kamer met uitslaande deuren. Aansluitend is de tweede woonkamer met de royaal opgezette keuken met uitzicht op groen. Via de keuken is de derde en vierde woonkamer bereikbaar met een sfeervolle open haard. Ook vanuit deze ruimten is er een mooi zicht op de tuin rondom de woning.
Keuken
De landelijke keuken is aan de voorzijde gelegen en is in een hoek geplaatst en beschikt over diverse inbouwapparatuur, waaronder een landelijke oven (merk AGA) met schouw, vaatwasser, dubbele spoelbak en is zeer ruim opgezet. De authentieke balken in het zicht zorgen voor een aangename sfeer.
Aansluitend is het portaal met een grote inloopkast, slaapkamer en badkamer. Ook vanuit deze ruimte is het achterhuis met de serres bereikbaar.
Slaapkamer en badkamer begane grond
De slaapkamer op de begane grond is zeer royaal en heeft zicht op de tuin. Verder is hier ook de badkamer met inloopdouche, dubbele wastafel en toilet. Ook de badkamer op de begane grond is zeer royaal opgezet. Hier zijn de aansluitingen voor de was- en droogapparatuur.
Tweede woning
De tweede woning is inpandig vanuit het voorste gedeelte van de boerderij bereikbaar, maar heeft ook een eigen entree aan de linker- en rechterzijde van de woning. Hierdoor is de woning zeer makkelijk te splitsen in twee aparte woningen.
De woning heeft een ruime woonkamer, een in een hoek geplaatste keuken, een bijkeuken en twee royale serres.
EERSTE VERDIEPING
Ruime overloop met toegang naar alle ruimtes op deze verdieping. Er bevinden zich hier drie, momenteel als kantoor ingerichte ruimten. Waarvan twee ruimten met een badkamer.
Achterhuis
Het achterhuis heeft twee eigen trapopgangen naar de eerste verdieping en de eerste verdieping is ook inpandig vanuit het voorhuis bereikbaar.
Op de eerste verdieping bevinden zich twee toiletruimten, kastruimten, vier kantoorruimten met vier grote bergingen.
BIJGEBOUW
Het royale bijgebouw is tevens met riet gedekt en op de begane grond voorzien van drie paardenboxen, een grote serre en een grote kantoorruimten en een keuken.
De tweede verdieping is voorzien van vier kantoorruimten, maar is uiteraard in te richten zoals u dat wilt!
BUITEN DE WONING
Heerlijk ruim is het perceel met een royale oprit. Om de woning heen is gazon, plantenborders, terrassen (met overkapping) en hagen. Liefhebbers van paarden kunnen hier hun hart ophalen met een paardenbak en weilanden.
LIGGING VAN DE WONING
Neerijnen is een klein dorp centraal in Nederland gelegen. Je kan er heerlijk wandelen in het bos of de uiterwaarden van rivier de Waal en loop dan gelijk even langs kasteel Neerijnen. De dichtstbijzijnde supermarkt, bakker en slager zijn te vinden in Waardenburg op een paar autominuten rijden. Snelwegen A2 en A15 zijn op korte afstand gelegen, waardoor steden als Utrecht (+/- 30 min) en ’s-Hertogenbosch (+/- 20 min) snel te bereiken zijn.
Enthousiast geworden van deze unieke verbouwde boerderij? Neem dan contact met ons op voor het plannen van een bezichtiging! Wij leiden u graag met trots rond.
Ook zeer geschikt voor zorgdoeleinden.
Speciaal voor liefhebbers van rust, ruimte en stijl hebben we een pracht van een vrijstaande verbouwde boerderij met bijzondere bijgebouwen! Een prachtige plek met heerlijk weids uitzicht en in een groene omgeving.
Deze met historische bouwmaterialen volledig gerestaureerde Betuwse herenboerderij (circa 1670, volledig ver- en aanbouw tot en met 2023) met aanbouw, is gelegen net buiten de bebouwde kom van Neerijnen. In het hoofdgebouw bevindt zich naast een meer dan riante woning, een ruim kantoor, een tweede royale woonruimte met aparte opgang, welke in gebruik kan worden genomen als gastenverblijf of dubbele bewoning. Dit object biedt u veel privacy, middels een oprijlaan. Een ideale combinatie van woongenot en het houden van paarden, zowel voor professioneel gebruik als privé-doeleinden in combinatie met bijvoorbeeld een kantoorfunctie.
De boerderij is gesitueerd op een kavel van maar liefst 16.609 m2 en is onder andere voorzien van stallen, diverse kantoren, een riante tuin en een paardenbak. Het betreft een zeer bijzondere woning op een hele bijzondere, niet alledaagse locatie. Een bezoek ter plaatse zal een goed beeld geven van de prachtige sfeer, de rust, de ruimte en het genot.
Het landhuis bereikt u via een imposante oprijlaan, waar de bijzonderheid van deze locatie al direct waar te nemen en te “voelen” is.
Bijzonderheden van de woning:
- Woonoppervlakte 1250 m2
- Inhoud van de woning 5.044 m3
- Een woning met diverse mogelijkheden, zoals dubbele bewoning, kantoor en/of praktijk aan huis, b&b (goedkeuring gemeente vereist);
- Om in de inrit in- en uit te rijden is er een elektrische toegangspoort aanwezig;
- Een deel in het originele woonhuis en in de tweede woning is vloerverwarming aanwezig;
- Airconditioning;
- Het rieten dak is jaarlijks onderhouden;
- Een unieke, niet alle daagse woning op een geweldige groene locatie.
INDELING VAN DE WONING
BEGANE GROND
De entree van de woning is aan de zijkant van de woning. De centrale hal geeft toegang naar de living, trapopgang naar de eerste verdieping, toiletruimte, een kast en de doorgang naar de achtergelegen aanbouw met woonkamer, keuken en twee grote serres.
Woonkamer
De woonkamer bevindt zich in de originele woning aan de voorzijde en is een gezellige, ruime kamer met uitslaande deuren. Aansluitend is de tweede woonkamer met de royaal opgezette keuken met uitzicht op groen. Via de keuken is de derde en vierde woonkamer bereikbaar met een sfeervolle open haard. Ook vanuit deze ruimten is er een mooi zicht op de tuin rondom de woning.
Keuken
De landelijke keuken is aan de voorzijde gelegen en is in een hoek geplaatst en beschikt over diverse inbouwapparatuur, waaronder een landelijke oven (merk AGA) met schouw, vaatwasser, dubbele spoelbak en is zeer ruim opgezet. De authentieke balken in het zicht zorgen voor een aangename sfeer.
Aansluitend is het portaal met een grote inloopkast, slaapkamer en badkamer. Ook vanuit deze ruimte is het achterhuis met de serres bereikbaar.
Slaapkamer en badkamer begane grond
De slaapkamer op de begane grond is zeer royaal en heeft zicht op de tuin. Verder is hier ook de badkamer met inloopdouche, dubbele wastafel en toilet. Ook de badkamer op de begane grond is zeer royaal opgezet. Hier zijn de aansluitingen voor de was- en droogapparatuur.
Tweede woning
De tweede woning is inpandig vanuit het voorste gedeelte van de boerderij bereikbaar, maar heeft ook een eigen entree aan de linker- en rechterzijde van de woning. Hierdoor is de woning zeer makkelijk te splitsen in twee aparte woningen.
De woning heeft een ruime woonkamer, een in een hoek geplaatste keuken, een bijkeuken en twee royale serres.
EERSTE VERDIEPING
Ruime overloop met toegang naar alle ruimtes op deze verdieping. Er bevinden zich hier drie, momenteel als kantoor ingerichte ruimten. Waarvan twee ruimten met een badkamer.
Achterhuis
Het achterhuis heeft twee eigen trapopgangen naar de eerste verdieping en de eerste verdieping is ook inpandig vanuit het voorhuis bereikbaar.
Op de eerste verdieping bevinden zich twee toiletruimten, kastruimten, vier kantoorruimten met vier grote bergingen.
BIJGEBOUW
Het royale bijgebouw is tevens met riet gedekt en op de begane grond voorzien van drie paardenboxen, een grote serre en een grote kantoorruimten en een keuken.
De tweede verdieping is voorzien van vier kantoorruimten, maar is uiteraard in te richten zoals u dat wilt!
BUITEN DE WONING
Heerlijk ruim is het perceel met een royale oprit. Om de woning heen is gazon, plantenborders, terrassen (met overkapping) en hagen. Liefhebbers van paarden kunnen hier hun hart ophalen met een paardenbak en weilanden.
LIGGING VAN DE WONING
Neerijnen is een klein dorp centraal in Nederland gelegen. Je kan er heerlijk wandelen in het bos of de uiterwaarden van rivier de Waal en loop dan gelijk even langs kasteel Neerijnen. De dichtstbijzijnde supermarkt, bakker en slager zijn te vinden in Waardenburg op een paar autominuten rijden. Snelwegen A2 en A15 zijn op korte afstand gelegen, waardoor steden als Utrecht (+/- 30 min) en ’s-Hertogenbosch (+/- 20 min) snel te bereiken zijn.
Enthousiast geworden van deze unieke verbouwde boerderij? Neem dan contact met ons op voor het plannen van een bezichtiging! Wij leiden u graag met trots rond.
Map
Map is loading...
Cadastral boundaries
Buildings
Travel time
Gain insight into the reachability of this object, for instance from a public transport station or a home address.