Description
TE HUUR BEDRIJFSPAND MET KANTOORRUIMTE TE NIEUWEGEIN
ADRES
Brabanthaven 11 te Nieuwegein.
ALGEMEEN
Het betreft hier een representatief en vrijstaand bedrijfsgebouw bestaande uit bedrijfsruimte met kantoorruimte op de begane grond, gelegen op het bedrijventerrein ‘Plettenburg-De Wiers’. ‘Plettenburg-De Wiers’ is een gemengd bedrijventerrein met een strategische ligging in de regio Utrecht. Bekende ondernemingen zoals Brouwer Zwaar en Speciaal Transport B.V., Heveck Vriesvers B.V., Nefkens Nieuwegein, RDW Keuringsstation en Metabo zijn hier gevestigd.
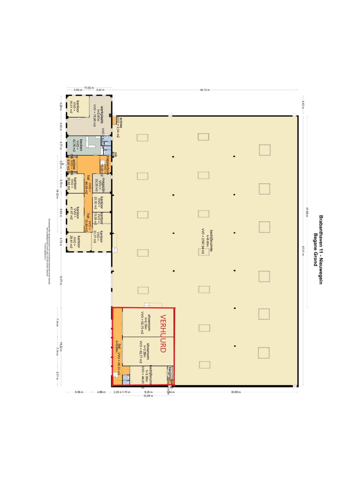
De showroom op de begane grond en de kantoorruimte op de 1e verdieping zijn verhuurd.
BEREIKBAARHEID
Bedrijventerrein ‘Plettenburg-De Wiers’ ligt op een steenworp afstand van Utrecht. Kenmerkend aan dit terrein is dat het een centrale ligging heeft en goed bereikbaar is met zowel eigen vervoer als met openbaar vervoer. De op- en
afritten van de rijkswegen A12, A27 en A28 zijn binnen 5 autominuten te bereiken.
Het openbaar vervoer ter plaatse wordt verzorgd door diverse busdiensten die onder andere goede verbindingen onderhouden met het centrum van Nieuwegein en Utrecht CS. Een bushalte bevindt zich op ongeveer 5 minuten loopafstand.
VLOEROPPERVLAK
Totaal circa 3.204,89 m² verhuurbaar vloeroppervlak als volgt verdeeld:
- 2.787,54 m² bedrijfsruimte gelegen op de begane grond;
- 417,35 m² kantoorruimte gelegen op de begane grond.
Deelverhuur bespreekbaar vanaf circa 750 m².
OPLEVERINGSNIVEAU EN VOORZIENINGEN
De bedrijfsruimte wordt in de huidige staat opgeleverd met de volgende voorzieningen:
Bedrijfsruimte:
- vrije hoogte circa 6,6 m¹;
- vloerbelasting circa 1.500 kg/m²;
- beton vloer;
- 2 elektrisch bedienbare overheaddeuren;
- heater(s);
- zonnepanelen (2026).
Kantoorruimte op de begane grond:
- te openen ramen;
- cv middels radiatoren;
- kabelgoten voorzien van bekabeling;
- systeemplafonds voorzien van LED-verlichting;
- keuken voorzien van kookplaat en diverse apparatuur.
Buitenterrein:
- vlaggenmasten;
- buitenverlichting;
- parkeerplaatsen;
- afsluitbaar hek.
PARKEREN
Er zijn voldoende parkeerplaatsen op eigen terrein aanwezig.
ENERGIELABEL
Volgt.
HUURPRIJS
Bedrijfsruimte:
EUR 85,- per m² per jaar, te vermeerderen met BTW.
Kantoorruimte:
EUR 135,- per m² per jaar, te vermeerderen met BTW.
Parkeerplaats:
EUR 350,- per parkeerplaats per jaar, te vermeerderen met BTW.
HUURPRIJSAANPASSING
Jaarlijks, op basis van de wijziging van het maandprijsindexcijfer, volgens de consumenten-prijsindex “alle huishoudens” (2015 = 100), gepubliceerd door het Centraal Bureau voor de Statistiek (CBS).
HUURTERMIJN
5 jaar met aansluitende verlengingsperioden van telkens 5 jaar. Kortere periode is bespreekbaar.
BETALINGEN
Per maand/kwartaal vooruit.
BTW
Indien huurder niet aan het “90% criterium” voldoet, zal er van rechtswege sprake zijn van omzetbelasting vrijgestelde verhuur. Alsdan wordt de overeengekomen kale huurprijs, exclusief omzetbelasting, zodanig verhoogd dat het voor verhuurder ontstane financiële nadeel wordt gecompenseerd.
VERREKENBAAR VOORSCHOT SERVICEKOSTEN
Een nader overeen te komen bedrag per jaar, te vermeerderen met omzetbelasting, op basis van daadwerkelijk verbruik.
ZEKERHEIDSTELLING
Bankgarantie of waarborgsom ter grootte van drie maanden huur inclusief servicekosten en BTW.
AANVAARDING
In overleg.
BESTEMMING EN GEBRUIK
Huurder dient zich ervan te vergewissen dat het object de eigenschappen bezit, benodigd voor het door hem beoogde gebruik en dat het beoogde gebruik past binnen het vigerende bestemmingsplan. Een bestemming kan aan verandering onderhevig zijn. Raadpleeg derhalve voor de actuele gegevens de website omgevingswet.overheid.nl, de website van de betreffende gemeente of neem contact op met de betreffende gemeente.
OVERIGE CONDITIES
Gebaseerd op het model huurovereenkomst kantoorruimte en andere bedrijfsruimte in de zin van artikel 7:230a BW, zoals is vastgesteld door de Raad voor Onroerende Zaken (ROZ) op 30 januari 2015. Van deze overeenkomst maken deel uit de bijbehorende “Algemene bepalingen huurovereenkomst kantoorruimte en andere bedrijfsruimte in de zin van artikel 7:230a BW”.
VOORBEHOUD
Verhuurder behoudt zich alle rechten voor en heeft op geen enkele wijze verplichtingen jegens een gegadigde die in de gelegenheid is gesteld om een voorstel uit brengen. Verhuurder is derhalve ook vrij om zonder opgaaf van redenen de verhuurprocedure te wijzigen dan wel te beëindigen en/of niet op een voorstel in te gaan en/of een voorstel wel of niet te accepteren, ongeacht of het evalueren c.q. beoordelen van condities en voorwaarden van enig voorstel.
PLATTEGRONDTEKENINGEN
De in deze brochure opgenomen
plattegrondtekening zijn van indicatieve aard. Hieraan kunnen geen rechten worden ontleend.
VOOR NADERE INLICHTINGEN EN/OF BEZICHTIGING
STATEMENT real estate
Maliebaan 50, 3581 CS Utrecht
Tel. 030 - 267 06 02
De vermelde informatie is van algemene aard en is niet meer dan een uitnodiging om in onderhandeling te treden. Aan de inhoud van deze informatie kunnen geen rechten worden ontleend.
ADRES
Brabanthaven 11 te Nieuwegein.
ALGEMEEN
Het betreft hier een representatief en vrijstaand bedrijfsgebouw bestaande uit bedrijfsruimte met kantoorruimte op de begane grond, gelegen op het bedrijventerrein ‘Plettenburg-De Wiers’. ‘Plettenburg-De Wiers’ is een gemengd bedrijventerrein met een strategische ligging in de regio Utrecht. Bekende ondernemingen zoals Brouwer Zwaar en Speciaal Transport B.V., Heveck Vriesvers B.V., Nefkens Nieuwegein, RDW Keuringsstation en Metabo zijn hier gevestigd.
De showroom op de begane grond en de kantoorruimte op de 1e verdieping zijn verhuurd.
BEREIKBAARHEID
Bedrijventerrein ‘Plettenburg-De Wiers’ ligt op een steenworp afstand van Utrecht. Kenmerkend aan dit terrein is dat het een centrale ligging heeft en goed bereikbaar is met zowel eigen vervoer als met openbaar vervoer. De op- en
afritten van de rijkswegen A12, A27 en A28 zijn binnen 5 autominuten te bereiken.
Het openbaar vervoer ter plaatse wordt verzorgd door diverse busdiensten die onder andere goede verbindingen onderhouden met het centrum van Nieuwegein en Utrecht CS. Een bushalte bevindt zich op ongeveer 5 minuten loopafstand.
VLOEROPPERVLAK
Totaal circa 3.204,89 m² verhuurbaar vloeroppervlak als volgt verdeeld:
- 2.787,54 m² bedrijfsruimte gelegen op de begane grond;
- 417,35 m² kantoorruimte gelegen op de begane grond.
Deelverhuur bespreekbaar vanaf circa 750 m².
OPLEVERINGSNIVEAU EN VOORZIENINGEN
De bedrijfsruimte wordt in de huidige staat opgeleverd met de volgende voorzieningen:
Bedrijfsruimte:
- vrije hoogte circa 6,6 m¹;
- vloerbelasting circa 1.500 kg/m²;
- beton vloer;
- 2 elektrisch bedienbare overheaddeuren;
- heater(s);
- zonnepanelen (2026).
Kantoorruimte op de begane grond:
- te openen ramen;
- cv middels radiatoren;
- kabelgoten voorzien van bekabeling;
- systeemplafonds voorzien van LED-verlichting;
- keuken voorzien van kookplaat en diverse apparatuur.
Buitenterrein:
- vlaggenmasten;
- buitenverlichting;
- parkeerplaatsen;
- afsluitbaar hek.
PARKEREN
Er zijn voldoende parkeerplaatsen op eigen terrein aanwezig.
ENERGIELABEL
Volgt.
HUURPRIJS
Bedrijfsruimte:
EUR 85,- per m² per jaar, te vermeerderen met BTW.
Kantoorruimte:
EUR 135,- per m² per jaar, te vermeerderen met BTW.
Parkeerplaats:
EUR 350,- per parkeerplaats per jaar, te vermeerderen met BTW.
HUURPRIJSAANPASSING
Jaarlijks, op basis van de wijziging van het maandprijsindexcijfer, volgens de consumenten-prijsindex “alle huishoudens” (2015 = 100), gepubliceerd door het Centraal Bureau voor de Statistiek (CBS).
HUURTERMIJN
5 jaar met aansluitende verlengingsperioden van telkens 5 jaar. Kortere periode is bespreekbaar.
BETALINGEN
Per maand/kwartaal vooruit.
BTW
Indien huurder niet aan het “90% criterium” voldoet, zal er van rechtswege sprake zijn van omzetbelasting vrijgestelde verhuur. Alsdan wordt de overeengekomen kale huurprijs, exclusief omzetbelasting, zodanig verhoogd dat het voor verhuurder ontstane financiële nadeel wordt gecompenseerd.
VERREKENBAAR VOORSCHOT SERVICEKOSTEN
Een nader overeen te komen bedrag per jaar, te vermeerderen met omzetbelasting, op basis van daadwerkelijk verbruik.
ZEKERHEIDSTELLING
Bankgarantie of waarborgsom ter grootte van drie maanden huur inclusief servicekosten en BTW.
AANVAARDING
In overleg.
BESTEMMING EN GEBRUIK
Huurder dient zich ervan te vergewissen dat het object de eigenschappen bezit, benodigd voor het door hem beoogde gebruik en dat het beoogde gebruik past binnen het vigerende bestemmingsplan. Een bestemming kan aan verandering onderhevig zijn. Raadpleeg derhalve voor de actuele gegevens de website omgevingswet.overheid.nl, de website van de betreffende gemeente of neem contact op met de betreffende gemeente.
OVERIGE CONDITIES
Gebaseerd op het model huurovereenkomst kantoorruimte en andere bedrijfsruimte in de zin van artikel 7:230a BW, zoals is vastgesteld door de Raad voor Onroerende Zaken (ROZ) op 30 januari 2015. Van deze overeenkomst maken deel uit de bijbehorende “Algemene bepalingen huurovereenkomst kantoorruimte en andere bedrijfsruimte in de zin van artikel 7:230a BW”.
VOORBEHOUD
Verhuurder behoudt zich alle rechten voor en heeft op geen enkele wijze verplichtingen jegens een gegadigde die in de gelegenheid is gesteld om een voorstel uit brengen. Verhuurder is derhalve ook vrij om zonder opgaaf van redenen de verhuurprocedure te wijzigen dan wel te beëindigen en/of niet op een voorstel in te gaan en/of een voorstel wel of niet te accepteren, ongeacht of het evalueren c.q. beoordelen van condities en voorwaarden van enig voorstel.
PLATTEGRONDTEKENINGEN
De in deze brochure opgenomen
plattegrondtekening zijn van indicatieve aard. Hieraan kunnen geen rechten worden ontleend.
VOOR NADERE INLICHTINGEN EN/OF BEZICHTIGING
STATEMENT real estate
Maliebaan 50, 3581 CS Utrecht
Tel. 030 - 267 06 02
De vermelde informatie is van algemene aard en is niet meer dan een uitnodiging om in onderhandeling te treden. Aan de inhoud van deze informatie kunnen geen rechten worden ontleend.
Map
Map is loading...
Cadastral boundaries
Buildings
Travel time
Gain insight into the reachability of this object, for instance from a public transport station or a home address.