Description
Op een fantastische gelegen locatie op bedrijventerrein Donkersloot-Zuid in Ridderkerk wordt een hoogwaardig afgewerkt bedrijfsverzamelcomplex ontwikkeld. Het complex wordt gesitueerd op zichtlocatie vanaf de Rotterdamseweg. Op dit moment zijn de units 25 (17c-11) en 26 (17c-12) beschikbaar voor verkoop.
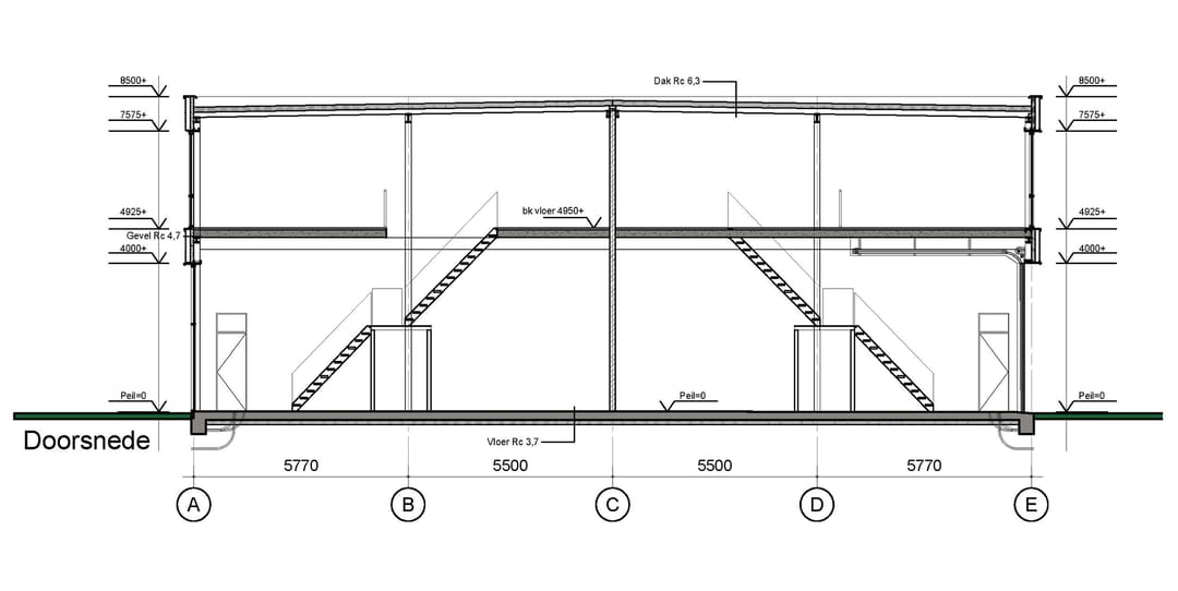
De aangeboden units, waarvan één op de kop is gelegen, worden opgeleverd met een functionele bedrijfsruimte op de begane grond net een vrije hoogte van maar liefst 4,70 meter en een afgewerkte betonnen verdiepingsvloer met veel daglichttoetreding. De verdieping is geschikt om eventueel als kantoor af te bouwen.
Locatie:
Bedrijventerrein Donkersloot-Zuid is uitstekend bereikbaar via de rijkswegen A15 (Europoort-Rotterdam-Gorinchem) en A16 (Rotterdam-Dordrecht-Breda). Tevens is het bedrijventerrein goed bereikbaar middels openbaar vervoer, het centrum ligt op 10 minuten loopafstand.
Afmetingen per unit:
- begane grond : ca. 63 m²;
- verdieping : ca. 63 m²;
- totaal : ca. 126 m².
Parkeerplaatsen per unit:
2 eigen parkeerplaatsen.
Bestemming:
Bedrijfsdoeleinden t/m categorie 3.2.
Verwachte start bouw:
Reeds gestart.
Bouwaard/algemeen:
- onderheide betonfundering;
- onderheide en geïsoleerde betonvloer (Rc-3,7);
- opbouw staalconstructie;
- gasbeton unitscheidende wanden;
- gevels begane grond metselwerk met daarboven sandwichpanelen, geïsoleerde gevelbeplating (Rc-4,7) en deels hout sierelementen;
- hardhouten kozijnen, voorzien van draai-/kiepramen en HR++ beglazing;
- geïsoleerd staaldak (Rc-6,3) voorzien van PVC dakbedekking en drie dak doorvoeren per unit;
- meterkast t.b.v. elektra (3x25A), water en glasvezel;
- brandblusmiddelen.
De units worden gasloos uitgevoerd conform de huidige regelgeving.
Voorzieningen/specificatie:
- monoliet afgewerkte betonvloer met een maximale vloerbelasting van 1.000 kg/m²;
- betonnen verdiepingsvloer met een maximale vloerbelasting van 350 kg/m² afgewerkt met zandcement deklaag;
- elektrisch bedienbare overheaddeur, ca. 3,00 meter breed en ca. 4,00 meter hoog;
- vrije hoogte begane grond ca. 4,65 meter;
- vrije hoogte op de verdiepingsvloer ca. 3,25 meter;
- toiletruimte en fonteintje;
- houten trapopgang.
Voorzieningen/specificatie buitenterrein:
- gevelverlichting;
- verhard met betonklinkers;
- terreinriolering.
Kadastrale gegevens:
- gemeente : Ridderkerk;
- sectie : B;
- nummer : 3206;
- appartementsindex : A25 en A26.
Koopprijs per unit:
€ 299.500,- v.o.n. exclusief BTW.
De notariskosten zijn voor rekening van koper.
Vereniging van Eigenaren (VvE):
Voor het onderhoud en beheer van de gemeenschappelijke delen, waaronder het gemeenschappelijke buitenterrein, wordt van rechtswege een Vereniging van Eigenaren (kortweg VvE) opgericht waarvoor thans een beheerder is aangesteld. De eerste storting van € 1.000,- (per unit) voor de kas van de VvE dient koper aan verkoper te vergoeden.
Appartementsrechten:
De grond en de daarop te realiseren bebouwing wordt gesplitst in appartementsrechten. Elke koper wordt eigenaar van een appartementsrecht, welk het recht geeft op het uitsluitende gebruik van de unit met bijbehorende parkeerplaatsen. Elke unit is separaat met een hypotheek te belasten en/of te verkopen/verhuren. Dit houdt onder meer in dat elke koper afzonderlijk wordt aangeslagen voor onroerend zaakbelasting, waterschapslasten, rioolrecht alsmede vastrecht voor diverse nutsvoorzieningen (water en elektriciteit).
Verwachte oplevering:
Eind Q3 2026.
Deze informatie is door ons met de nodige zorgvuldigheid samengesteld. Onzerzijds wordt echter geen enkele aansprakelijkheid aanvaard voor enige onvolledigheid, onjuistheid of anderszins, dan wel de gevolgen daarvan. Alle opgegeven maten en oppervlakten zijn indicatief.
De aangeboden units, waarvan één op de kop is gelegen, worden opgeleverd met een functionele bedrijfsruimte op de begane grond net een vrije hoogte van maar liefst 4,70 meter en een afgewerkte betonnen verdiepingsvloer met veel daglichttoetreding. De verdieping is geschikt om eventueel als kantoor af te bouwen.
Locatie:
Bedrijventerrein Donkersloot-Zuid is uitstekend bereikbaar via de rijkswegen A15 (Europoort-Rotterdam-Gorinchem) en A16 (Rotterdam-Dordrecht-Breda). Tevens is het bedrijventerrein goed bereikbaar middels openbaar vervoer, het centrum ligt op 10 minuten loopafstand.
Afmetingen per unit:
- begane grond : ca. 63 m²;
- verdieping : ca. 63 m²;
- totaal : ca. 126 m².
Parkeerplaatsen per unit:
2 eigen parkeerplaatsen.
Bestemming:
Bedrijfsdoeleinden t/m categorie 3.2.
Verwachte start bouw:
Reeds gestart.
Bouwaard/algemeen:
- onderheide betonfundering;
- onderheide en geïsoleerde betonvloer (Rc-3,7);
- opbouw staalconstructie;
- gasbeton unitscheidende wanden;
- gevels begane grond metselwerk met daarboven sandwichpanelen, geïsoleerde gevelbeplating (Rc-4,7) en deels hout sierelementen;
- hardhouten kozijnen, voorzien van draai-/kiepramen en HR++ beglazing;
- geïsoleerd staaldak (Rc-6,3) voorzien van PVC dakbedekking en drie dak doorvoeren per unit;
- meterkast t.b.v. elektra (3x25A), water en glasvezel;
- brandblusmiddelen.
De units worden gasloos uitgevoerd conform de huidige regelgeving.
Voorzieningen/specificatie:
- monoliet afgewerkte betonvloer met een maximale vloerbelasting van 1.000 kg/m²;
- betonnen verdiepingsvloer met een maximale vloerbelasting van 350 kg/m² afgewerkt met zandcement deklaag;
- elektrisch bedienbare overheaddeur, ca. 3,00 meter breed en ca. 4,00 meter hoog;
- vrije hoogte begane grond ca. 4,65 meter;
- vrije hoogte op de verdiepingsvloer ca. 3,25 meter;
- toiletruimte en fonteintje;
- houten trapopgang.
Voorzieningen/specificatie buitenterrein:
- gevelverlichting;
- verhard met betonklinkers;
- terreinriolering.
Kadastrale gegevens:
- gemeente : Ridderkerk;
- sectie : B;
- nummer : 3206;
- appartementsindex : A25 en A26.
Koopprijs per unit:
€ 299.500,- v.o.n. exclusief BTW.
De notariskosten zijn voor rekening van koper.
Vereniging van Eigenaren (VvE):
Voor het onderhoud en beheer van de gemeenschappelijke delen, waaronder het gemeenschappelijke buitenterrein, wordt van rechtswege een Vereniging van Eigenaren (kortweg VvE) opgericht waarvoor thans een beheerder is aangesteld. De eerste storting van € 1.000,- (per unit) voor de kas van de VvE dient koper aan verkoper te vergoeden.
Appartementsrechten:
De grond en de daarop te realiseren bebouwing wordt gesplitst in appartementsrechten. Elke koper wordt eigenaar van een appartementsrecht, welk het recht geeft op het uitsluitende gebruik van de unit met bijbehorende parkeerplaatsen. Elke unit is separaat met een hypotheek te belasten en/of te verkopen/verhuren. Dit houdt onder meer in dat elke koper afzonderlijk wordt aangeslagen voor onroerend zaakbelasting, waterschapslasten, rioolrecht alsmede vastrecht voor diverse nutsvoorzieningen (water en elektriciteit).
Verwachte oplevering:
Eind Q3 2026.
Deze informatie is door ons met de nodige zorgvuldigheid samengesteld. Onzerzijds wordt echter geen enkele aansprakelijkheid aanvaard voor enige onvolledigheid, onjuistheid of anderszins, dan wel de gevolgen daarvan. Alle opgegeven maten en oppervlakten zijn indicatief.
Map
Map is loading...
Cadastral boundaries
Buildings
Travel time
Gain insight into the reachability of this object, for instance from a public transport station or a home address.