Leerlooiersstraat 8-H 8601 WK Sneek
- New
€ 850 p/mo.
Description
Deze handige bedrijfsruimte van totaal ca. 155 m² (62 m² b.g. en 31 m² verdieping en 62 m² op de zolder) wordt te huur aangeboden. Een prima bedrijfsruimte voor een zzp-er, klus- of schildersbedrijf. Deze bedrijfsruimte maakt deel uit van een verzamelgebouw. Strategisch gelegen nabij de (auto)snelweg N7/A7 en de kop van de Afsluitdijk op bedrijventerrein De Hemmen.
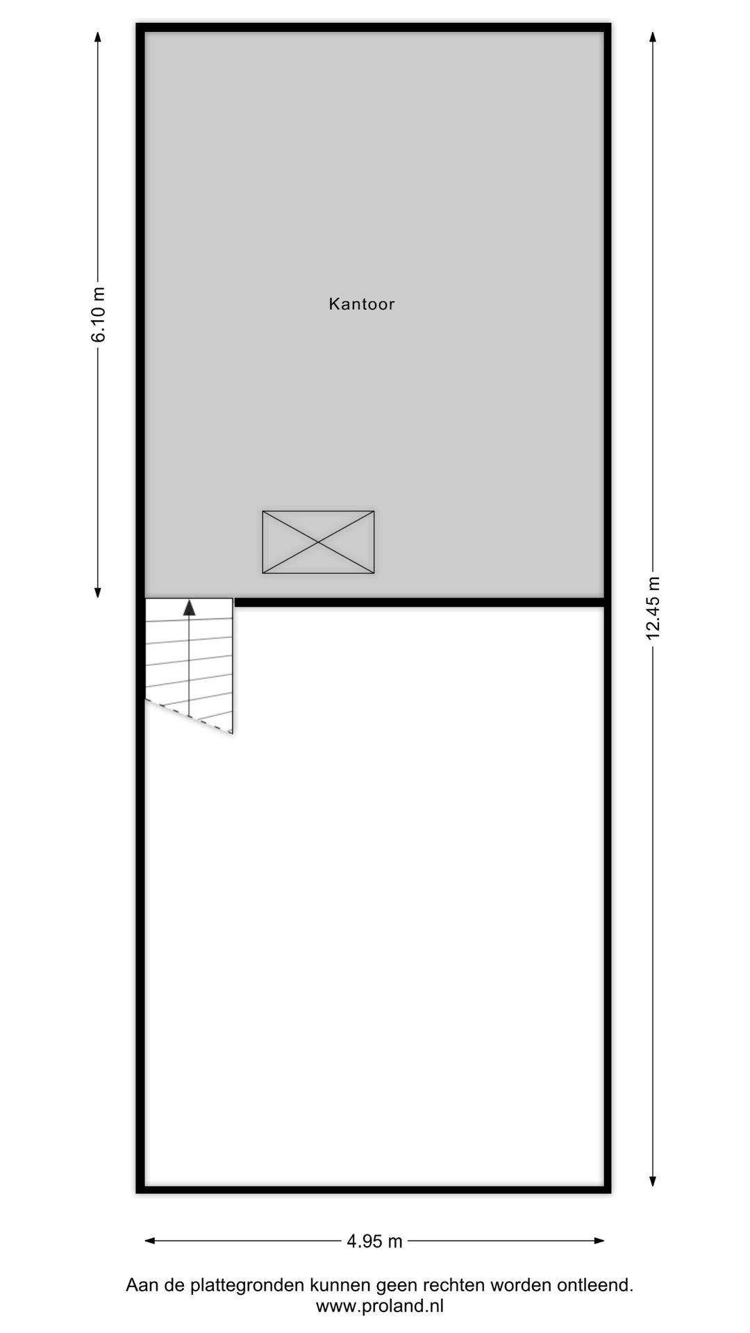
De unit heeft een stramienmaat van 5,00 meter en is voorzien van een eigen entree en een elektrisch bedienbare overheaddeur, meterkast, toilet, diverse wandcontactdozen, een betonvloer en houten verdiepingsvloeren.
De stahoogte op de zoldervloer is beperkt (ca. 2m1) maar door o.a. de aanwezigheid van een luik met takel uitermate schikt voor opslagdoeleinden.
BEKNOPTE TECHNISCHE GEGEVENS
- vloerbelasting begane grond maximaal 1.250 kg/m²
- stramienmaat 5,00 m¹
- wanden van geïsoleerde sandwichpanelen (Rc-waarde van 3,5 m² k/W)
- onderhoudsarme houten buitenkozijnen v.v. isolerende beglazing
- separate loopdeur naast elektrisch bedienbare overheaddeur (ca. 3,2 m1 breed en 4,2 m1 hoog)
VOORWAARDEN
- per direct beschikbaar
- huurperiode minimaal 1 jaar
- brandgevaarlijke werkzaamheden (lassen/slijpen) zijn niet toegestaan.
- huur wordt met btw belast
- waarborgsom/bankgarantie 3 maanden huur
- huur per maand vooraf te voldoen
- verhuurder krijgt het recht om het pand in overleg periodiek te inspecteren
- jaarlijkse indexering huurprijs
- huurcontract laatste model ROZ
Voor nadere informatie:
Makelaardij Jan de Lange B.V.
Manfred de Wolff, bedrijfs- en woningmakelaar
Tel. 0515-412345
E-mail: info @ makelaardij-delange.nl.
De unit heeft een stramienmaat van 5,00 meter en is voorzien van een eigen entree en een elektrisch bedienbare overheaddeur, meterkast, toilet, diverse wandcontactdozen, een betonvloer en houten verdiepingsvloeren.
De stahoogte op de zoldervloer is beperkt (ca. 2m1) maar door o.a. de aanwezigheid van een luik met takel uitermate schikt voor opslagdoeleinden.
BEKNOPTE TECHNISCHE GEGEVENS
- vloerbelasting begane grond maximaal 1.250 kg/m²
- stramienmaat 5,00 m¹
- wanden van geïsoleerde sandwichpanelen (Rc-waarde van 3,5 m² k/W)
- onderhoudsarme houten buitenkozijnen v.v. isolerende beglazing
- separate loopdeur naast elektrisch bedienbare overheaddeur (ca. 3,2 m1 breed en 4,2 m1 hoog)
VOORWAARDEN
- per direct beschikbaar
- huurperiode minimaal 1 jaar
- brandgevaarlijke werkzaamheden (lassen/slijpen) zijn niet toegestaan.
- huur wordt met btw belast
- waarborgsom/bankgarantie 3 maanden huur
- huur per maand vooraf te voldoen
- verhuurder krijgt het recht om het pand in overleg periodiek te inspecteren
- jaarlijkse indexering huurprijs
- huurcontract laatste model ROZ
Voor nadere informatie:
Makelaardij Jan de Lange B.V.
Manfred de Wolff, bedrijfs- en woningmakelaar
Tel. 0515-412345
E-mail: info @ makelaardij-delange.nl.
Features
Transfer of ownership
- Rental price
- € 850 per month
- Listed since
-
- Status
- Available
- Acceptance
- Available immediately
Construction
- Main use
- Industrial unit
- Building type
- Resale property
- Year of construction
- 2024
Surface areas
- Area
- 155 m²
- Industrial unit area
- 155 m²
- Clear span
- 5 m
- Maximum load
- 1,250 kg/m²
Layout
- Facilities
- Overhead doors, three-phase electric power, concrete floor and toilet
Energy
- Energy label
- Not required
Surroundings
- Location
- Business park
- Accessibility
- Motorway exit in less than 500 m
NVM real estate agent
Photos
Floorplan
Begane Grond
1e Verdieping
2e Verdieping