Latensteinse Rondweg 4-11 4005 EH Tiel
€ 2,850 p/mo.
Description
In bedrijfsverzamelcomplex op bedrijventerrein 'Latenstein' gelegen bedrijfsruimte en kantoorruimte met moderne uitstraling. Door de mooie oppervlakte van circa 320 m² en de hoeveelheid raampartijen in het gebouw is de bedrijfshal goed als werkplaats te gebruiken, maar ook als showroom. Tevens zijn er twee kantoorruimtes aanwezig, waarvan één op de begane grond. Deze ruimte kan naast kantoorruimte ideaal worden gebruikt als ontvangstruimte. Omheind buitenterrein van tenminste 165 m².
Bedrijventerrein 'Latenstein' vormt één van de oudere bedrijventerreinen in het Rivierenland en kent een grote diversiteit aan bedrijven.
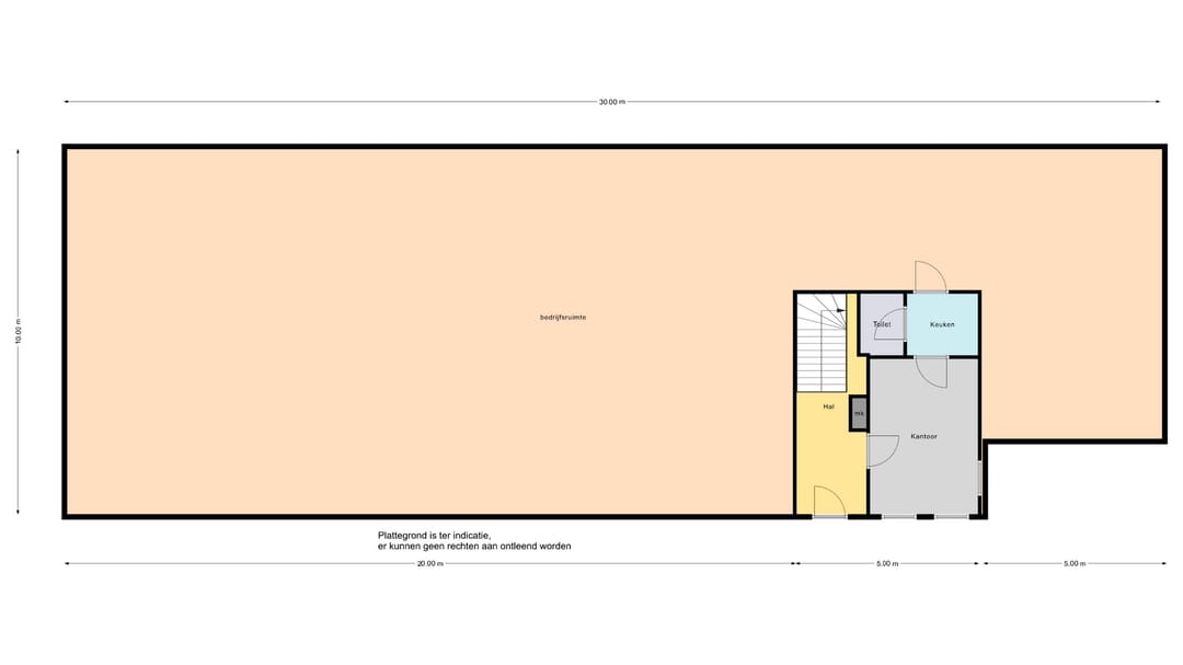
INDELING:
Begane grond: entree met meterkast en trapopgang, ontvangst/kantoorruimte, pantry, toilet en de grote bedrijfsruimte en entresolvloer welke ter overname word aangeboden
1e verdieping: kantoor
ALGEMENE INFORMATIE:
- oppervlakte werkplaats / showroom ca. 320 m² v.v.o.
- vloerbelasting ca. 2.000 kg/ m²
- vrije hoogte 6.00 meter
- oppervlakte kantoorruimte ca. 60 m² v.v.o.
- energielabel A
- oppervlakte omheind buitenterrein ruim 165 m²
- ter overname een entresolvloer van circa 50 m² v.v.o. met trap à € 1.500,- excl. BTW
- er zijn voor deze advertentie oudere foto's gebruikt van de bedrijfsruimte waar de entresol vloer nog niet geplaatst was.
BESTEMMINGSPLAN:
Voor deze bedrijfsruimte geldt een bestemming 'Bedrijventerrein' t/m categorie 3.2. Deze bestemming is bestemd voor:
- handel en bedrijf in de categorieën 1, 2, 3.1 en 3.2 deeluitmakende van de Staat van bedrijfsactiviteiten. Deze Staat van bedrijfsactiviteiten is te raadplegen via o.a.
Twijfelt u of de bestemming voldoet bij uw ondernemingsplannen? Neemt u dan contact op met het omgevingsloket van de gemeente Tiel.
PARKEREN: op het gezamenlijke terrein zijn drie bijbehorende parkeerplaatsen aanwezig.
BEREIKBAARHEID: Tiel is centraal gelegen in de Betuwe en kent een uitstekende bereikbaarheid. Er zijn goede verbindingen naar diverse grote steden. Zo bereikt u binnen enkele autominuten de snelweg A15 (Rotterdam - Keulen) en is knooppunt Deil en de A2 binnen ca. 15 autominuten aan te rijden.
HUURPRIJS EN HUURPERIODE:
- huurprijs € 2.850,- per maand excl. BTW (€ 34.200,- per jaar)
- servicekosten € 1.200,- per jaar excl. BTW t.b.v. onderhoud CV, gasheater, overheaddeur en tuin/verharding
- huurperiode tenminste vijf jaar met vijf optiejaren
- opzegtermijn à 12 maanden
- waarborgsom of bankgarantie ter grootte van drie maanden huur te verhogen met omzetbelasting
BIJZONDERHEDEN:
- aanvaarding vanaf circa april 2026 mogelijk
- ter overname een entresolvloer van circa 50 m² v.v.o. met trap à € 1.500,- excl. BTW
- er zijn voor deze advertentie oudere foto's gebruikt van de bedrijfsruimte waar de entresol vloer nog niet geplaatst was.
Bedrijventerrein 'Latenstein' vormt één van de oudere bedrijventerreinen in het Rivierenland en kent een grote diversiteit aan bedrijven.
INDELING:
Begane grond: entree met meterkast en trapopgang, ontvangst/kantoorruimte, pantry, toilet en de grote bedrijfsruimte en entresolvloer welke ter overname word aangeboden
1e verdieping: kantoor
ALGEMENE INFORMATIE:
- oppervlakte werkplaats / showroom ca. 320 m² v.v.o.
- vloerbelasting ca. 2.000 kg/ m²
- vrije hoogte 6.00 meter
- oppervlakte kantoorruimte ca. 60 m² v.v.o.
- energielabel A
- oppervlakte omheind buitenterrein ruim 165 m²
- ter overname een entresolvloer van circa 50 m² v.v.o. met trap à € 1.500,- excl. BTW
- er zijn voor deze advertentie oudere foto's gebruikt van de bedrijfsruimte waar de entresol vloer nog niet geplaatst was.
BESTEMMINGSPLAN:
Voor deze bedrijfsruimte geldt een bestemming 'Bedrijventerrein' t/m categorie 3.2. Deze bestemming is bestemd voor:
- handel en bedrijf in de categorieën 1, 2, 3.1 en 3.2 deeluitmakende van de Staat van bedrijfsactiviteiten. Deze Staat van bedrijfsactiviteiten is te raadplegen via o.a.
Twijfelt u of de bestemming voldoet bij uw ondernemingsplannen? Neemt u dan contact op met het omgevingsloket van de gemeente Tiel.
PARKEREN: op het gezamenlijke terrein zijn drie bijbehorende parkeerplaatsen aanwezig.
BEREIKBAARHEID: Tiel is centraal gelegen in de Betuwe en kent een uitstekende bereikbaarheid. Er zijn goede verbindingen naar diverse grote steden. Zo bereikt u binnen enkele autominuten de snelweg A15 (Rotterdam - Keulen) en is knooppunt Deil en de A2 binnen ca. 15 autominuten aan te rijden.
HUURPRIJS EN HUURPERIODE:
- huurprijs € 2.850,- per maand excl. BTW (€ 34.200,- per jaar)
- servicekosten € 1.200,- per jaar excl. BTW t.b.v. onderhoud CV, gasheater, overheaddeur en tuin/verharding
- huurperiode tenminste vijf jaar met vijf optiejaren
- opzegtermijn à 12 maanden
- waarborgsom of bankgarantie ter grootte van drie maanden huur te verhogen met omzetbelasting
BIJZONDERHEDEN:
- aanvaarding vanaf circa april 2026 mogelijk
- ter overname een entresolvloer van circa 50 m² v.v.o. met trap à € 1.500,- excl. BTW
- er zijn voor deze advertentie oudere foto's gebruikt van de bedrijfsruimte waar de entresol vloer nog niet geplaatst was.
Features
Transfer of ownership
- Rental price
- € 2,850 per month
- Service charges
- € 100 per month (21% VAT applies)
- Listed since
-
- Status
- Available
- Acceptance
- Available in consultation
Construction
- Main use
- Industrial unit
- Building type
- Resale property
- Year of construction
- 1998
Surface areas
- Area
- 380 m²
- Industrial unit area
- 320 m²
- Office area
- 60 m²
- Clearance
- 6 m
- Clear span
- 20 m
- Maximum load
- 2,000 kg/m²
Layout
- Number of floors
- 2 floors
- Facilities
- Mechanical ventilation, overhead doors, three-phase electric power, concrete floor, heater, toilet, pantry, built-in fittings and windows can be opened
Energy
- Energy label
- A
Surroundings
- Location
- Business park
- Accessibility
- Bus stop in 1000 m to 1500 m, Dutch Railways Intercity station in 3000 m to 4000 m and motorway exit in 1500 m to 2000 m
Parking
- Parking spaces
- 3 covered parking spaces
NVM real estate agent
Photos
Floorplan
begane grond
verdieping