Zwarte Woud 232 3524 SL Utrecht

€ 277,500 k.k.

Description

Het geheime ingrediënt van geslaagde kantoorlunches, beurzen, congressen, bruiloften, wijnproeverijen en evenementen? Dat is de catering van Broodje Gesmeerd: rijkelijk belegd, goed verzorgd en vanuit het hoofdkwartier aan het Zwarte Woud in Utrecht zó bezorgd. En nu beschikbaar voor een nieuwe ondernemer.

De verkoop omvat zowel de bedrijfsexploitatie als het vastgoed. Het pand, sinds 2008 in gebruik en in goede staat, biedt volop mogelijkheden. De huidige bestemming is breed, waardoor de ruimte niet alleen geschikt is als productiekeuken of cateringlocatie, maar ook kan worden ingericht of verbouwd tot bijvoorbeeld kantoor, bedrijfshal, opslagruimte of andere commerciële activiteiten.

Gelegen op een goed bereikbare locatie in Utrecht, met uitstekende verbindingen naar de snelweg, is dit een aantrekkelijke plek voor ondernemers met uiteenlopende plannen. De ligging is strategisch voor zowel zakelijke klanten als lokale bezoekers.

Een interessante kans voor ondernemers die willen profiteren van de bestaande reputatie van Broodje Gesmeerd, maar ook voor ondernemers die een veelzijdige ruimte zoeken voor een ander concept.

Geïnteresseerd? Neem contact op met Cas Meuleman voor meer informatie of een bezichtiging.

Features

Transfer of ownership

Asking price
€ 277,500 kosten koper
Listed since
Status
Available
Acceptance
Available in consultation

Construction

Main use
Industrial unit
Building type
Resale property
Year of construction
2007

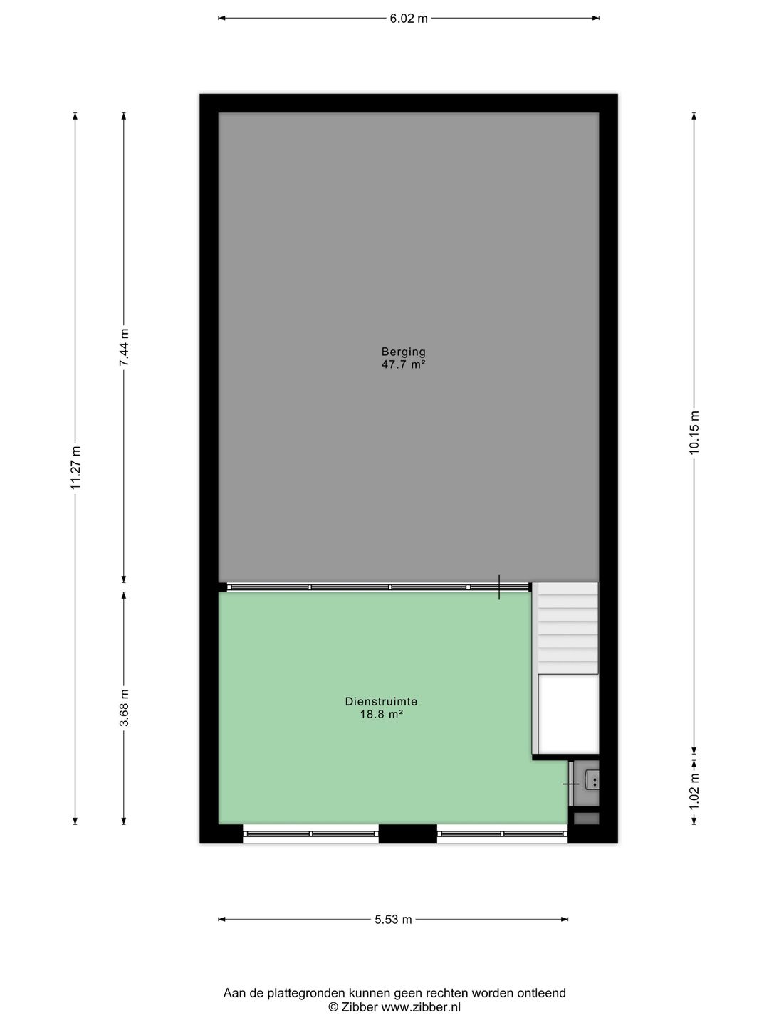
Surface areas

Area
180 m²
Industrial unit area
132 m²
Office area
48 m²

Layout

Number of floors
2 floors
Facilities
Air conditioning, mechanical ventilation, three-phase electric power, concrete floor, toilet and windows can be opened

Energy

Energy label
Not available

Surroundings

Accessibility
Bus stop in 1000 m to 1500 m, bus junction in 1000 m to 1500 m, subway station in 5000 m or more, subway junction in 5000 m or more, Dutch Railways Intercity station in 1000 m to 1500 m, motorway exit in less than 500 m, Tram stop in 2000 m to 3000 m and tram junction in 2000 m to 3000 m
Local facilities
Bank in 1000 m to 1500 m, recreation in 1000 m to 1500 m, restaurant in 500 m to 1000 m and retail outlet in 500 m to 1000 m

Map

Map is loading...

Cadastral boundaries Buildings

Travel time

Gain insight into the reachability of this object, for instance from a public transport station or a home address.

Zwarte Woud 232

€ 277,500 k.k.