Edelgasstraat 250 2718 TC Zoetermeer
€ 14,167 p/mo.
Description
Te huur bedrijfsruimte
Edelgasstraat 240, 2718 TC Zoetermeer
ALGEMEEN
Bedrijvencomplex Elephant Parc is gelegen op het bedrijventerrein Lansinghage. Lansinghage huisvest méér dan 1.300 bedrijven, variërend van productie en handel tot bouw, reparatie en zakelijke dienstverlening. Het complex is uitstekend te bereiken vanaf de Oostweg en de Rijksweg A-12. De unieke ligging, het hoge opleveringsniveau en de ruime parkeergelegenheid maken dit object (bouwjaar 2001) tot een uitstekend huisvestingsalternatief. Op korte termijn komen 2 ruimtes in het bedrijvencomplex voor verhuur beschikbaar, welke zowel separaat als gezamenlijk te huur zijn!
KADASTRALE GEGEVENS
Gemeente : Zegwaard
Sectie : D
Nummer : 2217 (gedeeltelijk)
Bouwjaar: 1992
BESTEMMING
De bestemming van de Edelgasstraat 240 is "bedrijventerrein".
Bestemmingsplan : Kwadrant/vanTuyll sportpark/Brinkhage/Lansinghage
Planstatus : onherroepelijk 16-08-2013
Overheid: gemeente Zoetermeer
Enkelbestemming : bedrijventerrein
Categorie : functieaanduiding bedrijf tot en met categorie 4,1
Maatvoering : maximum bebouwingspercentage terrein (%): 80 / maximum bouwhoogte (m): 14
INDELING + OPLEVERINGSNIVEAU
De beschikbare ruimte aan de Edelgasstraat 240 is als volgt ingedeeld:
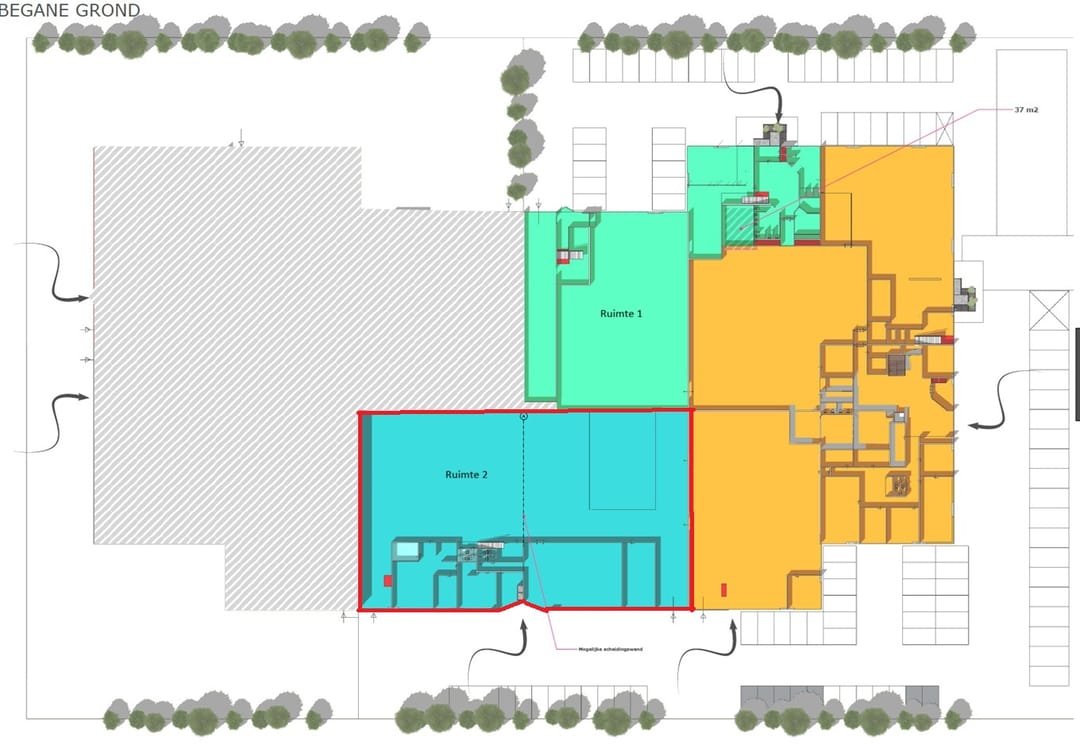
Ruimte 2 (op de plattegrond):
- ca. 1.090 m² b.v.o. bedrijfsruimte hoog
- ca. 434 m² b.v.o. bedrijfsruimte laag
- ca. 417 m² b.v.o. kantoorruimte op de eerste verdieping
Desgewenst kan ruimte 1, aan de Kryptonstraat 15, erbij gehuurd worden:
Ruimte 1 (op de plattegrond):
- ca. 750 m² b.v.o. bedrijfsruimte
- ca. 294 m² b.v.o. kantoorruimte begane grond (kan deels door als lage bedrijfsruimte)
- ca. 380 m² b.v.o. kantoorruimte op de eerste verdieping
Het object wordt opgeleverd met onder andere de volgende voorzieningen:
Bedrijfsruimte
- vrije hoogte onder de spant ca. 6.9 m¹
- 2 elektrische overheaddeuren
- verlichting
- heater
- krachtstroom
- betonvloer (gecoat)
- vloerbelasting 2.000 kg/m²
Kantoorruimte
- systeemplafond + verlichting
- kabelgoten
- huidige vloerbedekking *
- cv-installatie + radiatoren
- huidige scheidingswanden
- representatieve entree
- wandcontactdozen
- airconditioning (gedeeltelijk)
De met een * aangegeven voorziening wordt éénmalig ter beschikking gesteld. Onderhoud, reparatie en vervanging is voor rekening van huurder.
HUURCONDITIES
Huurprijs : € 14.167,- per maand excl. BTW
(Huurprijs : € 170.000,- per jaar excl. BTW)
Huurprijs ruimte 1+ 2 : € 310.000,- per jaar excl. BTW
Huurtermijn : in overleg
Huuringangsdatum : in overleg
Huurprijsindexatie : de huurprijs wordt jaarlijks geïndexeerd op basis van het Consumenten Prijsindexcijfer (CPI), reeks Alle huishoudens (2015=100) van het CBS. Voor het eerst een jaar na de huuringangsdatum
Huurprijsbetaling : per maand vooruit
Servicekosten : voorschot levering gas, water en elektra. Kosten nader te bepalen
Bankgarantie : gelijk aan 3 maanden huur + 3 maanden servicekosten + BTW
Diversen : huurder dient zich te confirmeren aan het huishoudelijk reglement en de akte van splitsing
Contract : model door de Raad voor Onroerende Zaken (ROZ) op 5 maart 2025 vastgesteld en het model is tevens gepubliceerd op de website inclusief aanvullende bepalingen verhuurder. Daarnaast is het huishoudelijk reglement en de akte van splitsing van toepassing.
Voorbehoud : goedkeuring directie verhuurder/ positief bedrijfsinformatierapport; ter beoordeling van verhuurder.
BTW
Verhuurder wenst te opteren voor BTW-belaste huur en verhuur. Ingeval huurder de BTW niet kan verrekenen zal de huurprijs worden verhoogd ter compensatie van de gevolgen van het vervallen van de mogelijkheid om te opteren voor BTW-belaste huur.
Energielabel : A++
Algemeen : de informatie betreffende de bedrijfsruimte aan de Edelgasstraat 240 te Zoetermeer is met zorg samengesteld. Voor de juistheid daarvan kan door Hopman en Schreuder Bedrijfshuisvesting BV geen aansprakelijkheid worden aanvaard, noch kan aan de vermelde gegevens enig recht worden ontleend. Alle opgegeven oppervlakten en afmetingen zijn indicatief. Deze informatie dient slechts als uitnodiging om in onderhandeling te treden en kan derhalve niet worden beschouwd als een aanbod of offerte. Van toepassing zijn de NVM voorwaarden.
Edelgasstraat 240, 2718 TC Zoetermeer
ALGEMEEN
Bedrijvencomplex Elephant Parc is gelegen op het bedrijventerrein Lansinghage. Lansinghage huisvest méér dan 1.300 bedrijven, variërend van productie en handel tot bouw, reparatie en zakelijke dienstverlening. Het complex is uitstekend te bereiken vanaf de Oostweg en de Rijksweg A-12. De unieke ligging, het hoge opleveringsniveau en de ruime parkeergelegenheid maken dit object (bouwjaar 2001) tot een uitstekend huisvestingsalternatief. Op korte termijn komen 2 ruimtes in het bedrijvencomplex voor verhuur beschikbaar, welke zowel separaat als gezamenlijk te huur zijn!
KADASTRALE GEGEVENS
Gemeente : Zegwaard
Sectie : D
Nummer : 2217 (gedeeltelijk)
Bouwjaar: 1992
BESTEMMING
De bestemming van de Edelgasstraat 240 is "bedrijventerrein".
Bestemmingsplan : Kwadrant/vanTuyll sportpark/Brinkhage/Lansinghage
Planstatus : onherroepelijk 16-08-2013
Overheid: gemeente Zoetermeer
Enkelbestemming : bedrijventerrein
Categorie : functieaanduiding bedrijf tot en met categorie 4,1
Maatvoering : maximum bebouwingspercentage terrein (%): 80 / maximum bouwhoogte (m): 14
INDELING + OPLEVERINGSNIVEAU
De beschikbare ruimte aan de Edelgasstraat 240 is als volgt ingedeeld:
Ruimte 2 (op de plattegrond):
- ca. 1.090 m² b.v.o. bedrijfsruimte hoog
- ca. 434 m² b.v.o. bedrijfsruimte laag
- ca. 417 m² b.v.o. kantoorruimte op de eerste verdieping
Desgewenst kan ruimte 1, aan de Kryptonstraat 15, erbij gehuurd worden:
Ruimte 1 (op de plattegrond):
- ca. 750 m² b.v.o. bedrijfsruimte
- ca. 294 m² b.v.o. kantoorruimte begane grond (kan deels door als lage bedrijfsruimte)
- ca. 380 m² b.v.o. kantoorruimte op de eerste verdieping
Het object wordt opgeleverd met onder andere de volgende voorzieningen:
Bedrijfsruimte
- vrije hoogte onder de spant ca. 6.9 m¹
- 2 elektrische overheaddeuren
- verlichting
- heater
- krachtstroom
- betonvloer (gecoat)
- vloerbelasting 2.000 kg/m²
Kantoorruimte
- systeemplafond + verlichting
- kabelgoten
- huidige vloerbedekking *
- cv-installatie + radiatoren
- huidige scheidingswanden
- representatieve entree
- wandcontactdozen
- airconditioning (gedeeltelijk)
De met een * aangegeven voorziening wordt éénmalig ter beschikking gesteld. Onderhoud, reparatie en vervanging is voor rekening van huurder.
HUURCONDITIES
Huurprijs : € 14.167,- per maand excl. BTW
(Huurprijs : € 170.000,- per jaar excl. BTW)
Huurprijs ruimte 1+ 2 : € 310.000,- per jaar excl. BTW
Huurtermijn : in overleg
Huuringangsdatum : in overleg
Huurprijsindexatie : de huurprijs wordt jaarlijks geïndexeerd op basis van het Consumenten Prijsindexcijfer (CPI), reeks Alle huishoudens (2015=100) van het CBS. Voor het eerst een jaar na de huuringangsdatum
Huurprijsbetaling : per maand vooruit
Servicekosten : voorschot levering gas, water en elektra. Kosten nader te bepalen
Bankgarantie : gelijk aan 3 maanden huur + 3 maanden servicekosten + BTW
Diversen : huurder dient zich te confirmeren aan het huishoudelijk reglement en de akte van splitsing
Contract : model door de Raad voor Onroerende Zaken (ROZ) op 5 maart 2025 vastgesteld en het model is tevens gepubliceerd op de website inclusief aanvullende bepalingen verhuurder. Daarnaast is het huishoudelijk reglement en de akte van splitsing van toepassing.
Voorbehoud : goedkeuring directie verhuurder/ positief bedrijfsinformatierapport; ter beoordeling van verhuurder.
BTW
Verhuurder wenst te opteren voor BTW-belaste huur en verhuur. Ingeval huurder de BTW niet kan verrekenen zal de huurprijs worden verhoogd ter compensatie van de gevolgen van het vervallen van de mogelijkheid om te opteren voor BTW-belaste huur.
Energielabel : A++
Algemeen : de informatie betreffende de bedrijfsruimte aan de Edelgasstraat 240 te Zoetermeer is met zorg samengesteld. Voor de juistheid daarvan kan door Hopman en Schreuder Bedrijfshuisvesting BV geen aansprakelijkheid worden aanvaard, noch kan aan de vermelde gegevens enig recht worden ontleend. Alle opgegeven oppervlakten en afmetingen zijn indicatief. Deze informatie dient slechts als uitnodiging om in onderhandeling te treden en kan derhalve niet worden beschouwd als een aanbod of offerte. Van toepassing zijn de NVM voorwaarden.
Features
Transfer of ownership
- Rental price
- € 14,167 per month
- Listed since
-
- Status
- Available
- Acceptance
- Available in consultation
Construction
- Main use
- Industrial unit
- Building type
- Resale property
- Year of construction
- 1992
Surface areas
- Area
- 1,941 m²
- Industrial unit area
- 1,524 m²
- Office area
- 417 m²
- Clearance
- 6.9 m
- Maximum load
- 2,000 kg/m²
Layout
- Number of floors
- 1 floor
- Facilities
- Overhead doors, three-phase electric power, concrete floor, heater, air conditioning and built-in fittings
Energy
- Energy label
- A++
Surroundings
- Location
- Business park
- Accessibility
- Bus stop in less than 500 m, Dutch Railways Intercity station in 1000 m to 1500 m and motorway exit in 500 m to 1000 m
NVM real estate agent
Photos
Floorplan
First floor