Description
TE HUUR
Representatieve nieuwbouw bedrijfsunit (nr. 17) gelegen in bedrijfsverzamelgebouw “Businesspark Marconistraat”. De begane grond is ideaal voor een showroom en/of is te gebruiken als opslagruimte. De 1e verdieping betreft kantoorruimte en is dan ook als zodanig turn-key ingericht en voorzien van: airconditioning, dubbele toiletten, pantry en een systeemplafond.
De unit is strategisch op de kop gelegen met uitstekende zichtbaarheid en is qua duurzaamheid gebouwd naar de eisen van deze tijd met onder meer geïsoleerde vloeren, gevels, beglazing en dak.
Er horen vijf (5 )eigen parkeerplaatsen bij het gehuurde.
OPPERVLAKTE
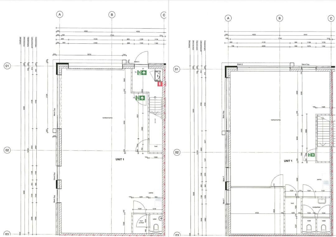
Bedrijfsruimte / showroom b.g.g. ca. 109 m²
Kantoorruimte 1e verdieping ca. 109 m²
Totaal BVO ca. 218 m²
HUURCONDITIES
Huurprijs: € 33.600,00 per jaar exclusief BTW
Servicekosten: eigen meters voor water en elektra
Aanvaarding: 5 + 5 jaar
Waarborgsom: ter grootte van 3 maanden huur inclusief servicekosten en BTW
Opzegtermijn: twaalf maanden
Indexering: jaarlijks o.b.v. CPI-alle huishoudens
PARKEREN
Vijf(5) eigen parkeerplaatsen.
BESTEMMINGSPLAN
Hoofdfunctie De voor ‘Bedrijf’ aangewezen gronden alsmede specifieke vorm van bedrijf - zone 4 zoals aangegeven op:
Categorie: Bedrijven in de milieu-categorieën 1 tot en met 4
OPLEVERINGSNIVEAU
Bedrijfsruimte /showroom begane grond
- elektrische overheaddeur, v.v. glasstroken, 3.500 mm x 3.210 mm (b x h)
- vrije hoogte circa 3.630 mm
- monoliet afgewerkte betonvloer maximale vloerbelasting 1.250 kg/m2
- toilet
- LED verlichting
- pantry met vaatwasmachine merk Etna
- elektrische luchtverwarming merk Qwikshift
- alarminstallatie
- circulatie unit
Kantoorruimte 1e verdieping
- pantry v.v. vaatwasmachine merk Etna
- wanden (sausklaar)
- mechanische ventilatie
- LED-armaturen
- kabelgoten met elektrapunten
- spit-unit airconditioning voor koelen & verwarmen
- vergaderruimte (optioneel, zie plattegrond)
- voorbereiding/dakdoorvoer t.b.v. zonnepanelen
Eventuele aanvullende wensen over het opleveringsniveau zijn in overleg met de verhuurder bespreekbaar.
Interesse?
Neem vandaag nog contact met ons op voor meer informatie of om een bezichtiging te plannen.
Voor meer informatie:
10HOOG Bedrijfsmakelaars BV
038-4552700
Representatieve nieuwbouw bedrijfsunit (nr. 17) gelegen in bedrijfsverzamelgebouw “Businesspark Marconistraat”. De begane grond is ideaal voor een showroom en/of is te gebruiken als opslagruimte. De 1e verdieping betreft kantoorruimte en is dan ook als zodanig turn-key ingericht en voorzien van: airconditioning, dubbele toiletten, pantry en een systeemplafond.
De unit is strategisch op de kop gelegen met uitstekende zichtbaarheid en is qua duurzaamheid gebouwd naar de eisen van deze tijd met onder meer geïsoleerde vloeren, gevels, beglazing en dak.
Er horen vijf (5 )eigen parkeerplaatsen bij het gehuurde.
OPPERVLAKTE
Bedrijfsruimte / showroom b.g.g. ca. 109 m²
Kantoorruimte 1e verdieping ca. 109 m²
Totaal BVO ca. 218 m²
HUURCONDITIES
Huurprijs: € 33.600,00 per jaar exclusief BTW
Servicekosten: eigen meters voor water en elektra
Aanvaarding: 5 + 5 jaar
Waarborgsom: ter grootte van 3 maanden huur inclusief servicekosten en BTW
Opzegtermijn: twaalf maanden
Indexering: jaarlijks o.b.v. CPI-alle huishoudens
PARKEREN
Vijf(5) eigen parkeerplaatsen.
BESTEMMINGSPLAN
Hoofdfunctie De voor ‘Bedrijf’ aangewezen gronden alsmede specifieke vorm van bedrijf - zone 4 zoals aangegeven op:
Categorie: Bedrijven in de milieu-categorieën 1 tot en met 4
OPLEVERINGSNIVEAU
Bedrijfsruimte /showroom begane grond
- elektrische overheaddeur, v.v. glasstroken, 3.500 mm x 3.210 mm (b x h)
- vrije hoogte circa 3.630 mm
- monoliet afgewerkte betonvloer maximale vloerbelasting 1.250 kg/m2
- toilet
- LED verlichting
- pantry met vaatwasmachine merk Etna
- elektrische luchtverwarming merk Qwikshift
- alarminstallatie
- circulatie unit
Kantoorruimte 1e verdieping
- pantry v.v. vaatwasmachine merk Etna
- wanden (sausklaar)
- mechanische ventilatie
- LED-armaturen
- kabelgoten met elektrapunten
- spit-unit airconditioning voor koelen & verwarmen
- vergaderruimte (optioneel, zie plattegrond)
- voorbereiding/dakdoorvoer t.b.v. zonnepanelen
Eventuele aanvullende wensen over het opleveringsniveau zijn in overleg met de verhuurder bespreekbaar.
Interesse?
Neem vandaag nog contact met ons op voor meer informatie of om een bezichtiging te plannen.
Voor meer informatie:
10HOOG Bedrijfsmakelaars BV
038-4552700
Map
Map is loading...
Cadastral boundaries
Buildings
Travel time
Gain insight into the reachability of this object, for instance from a public transport station or a home address.