Description
Op een zeer goed bereikbare locatie in Almere bieden wij dit representatieve en langdurig verhuurde beleggingsobject aan. Het geheel bestaat uit een ruime bedrijfsruimte op de begane grond en moderne kantoorruimte verdeeld over de begane grond en eerste verdieping. Met een solide huurder, een aantrekkelijk bruto aanvangsrendement en uitbreidingsmogelijkheden op aangrenzend terrein is dit een bijzonder interessante belegging. Het pand bestaat uit een bedrijfsruimte van 1.913 m² op de begane grond en een kantoor van 980 m² verdeeld over de begane grond en op de verdieping.
HET PAND IS VERHUURD ONDER DE VOLGENDE VOORWAARDEN:
Ingangsdatum: 1 november 2025
Expiratiedatum: 31 oktober 2035
Huidige huursom: € 195.000,-- per jaar exclusief BTW.
KOOPPRIJS
€ 2.550.000,-- K.K. VRIJ van BTW.
Of wel een bruto rendement van 7,8 %
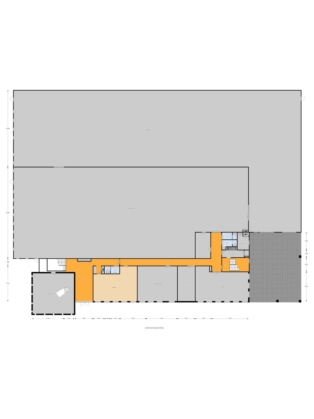
Vloeroppervlak indeling:
- Begane grond: circa 1.913 m² b.v.o. bedrijfsruimte.
- Verdieping: circa 980 m² b.v.o. kantoorruimte.
- Entree/trappenhuis: ongeveer 106 m² b.v.o.
- Slurf naar ander pand 133 m² b.v.o.
OPLEVERINGSNIVEAU
Het object wordt in de huidige staat aangeboden met o.a. de volgende voorzieningen:
Bedrijfsruimte (begane grond)
- Hoogte hal van circa 8.15 meter;
- C.V. gestookte heaters;
- Stadsverwarming;
- Gecoate vloer;
- Dockshelter met leveler;
- Een normale overheaddeur;
- Loopdeur;
- Verlichtingsarmaturen;
Kantoorruimte (begane grond en 1e verdieping)
- Vloerbedekking;
- Systeemplanfonds;
- Draai/kiep ramen, van binnen voorzien van zonnewering;
- Topkoeling;
- Toiletgroep met dames en heren toilet;
PARKERKEN
Op het terrein zijn er 12 parkeerplaatsen voor de deur (omheind)
ENERGIELABEL
C
OPLEVERING
In overleg
LOS EN IN COMBINATIE TE KOOP MET
Antennestraat 40 - naast gelegen.
- Begane grond: circa 1.350 m² b.v.o. bedrijfsruimte.
- Verdieping: circa 450 m² b.v.o. kantoorruimte.
- Parkeren 17 parkeerplaatsen.
€ 2.150.000,-- K.K. VRIJ van BTW.
BIJZONDERHEDEN
Het naastgelegen stuk perceel van ca. 730 m² kan in combinatie van die stuk pand gekocht worden voor € 200.000,-- K.K. vrij van BTW. Op het naast gelegen stuk zit een slurf richting het naast gelegen pand. Deze 133 vierkante meter is ook ideaal voor opslag.
BEREIKBAARHEID
Auto:
De A6 richting Amsterdam en Lelystad is binnen enkele minuten bereikbaar. Vanaf hier kunt u doorrijden naar de A1 richting Amsterdam of Amersfoort of de A27 richting Utrecht.
Het centrum van Almere-Stad is zowel met het openbaar vervoer als met het eigen vervoer goed te bereiken.
Openbaar vervoer:
Een bushalte is op korte afstand bereikbaar. Deze heeft een verbinding naar NS-Station Poort en Muziekwijk.
Bent u geïnteresseerd, neem dan gerust telefonisch contact met ons op dan gaan we het pand samen met u bezichtigen.
Wij kunnen dit vaak al op korte termijn realiseren.
Voor meer informatie:
Siewe Bedrijfsmakelaars
tel. 036-3030994
HET PAND IS VERHUURD ONDER DE VOLGENDE VOORWAARDEN:
Ingangsdatum: 1 november 2025
Expiratiedatum: 31 oktober 2035
Huidige huursom: € 195.000,-- per jaar exclusief BTW.
KOOPPRIJS
€ 2.550.000,-- K.K. VRIJ van BTW.
Of wel een bruto rendement van 7,8 %
Vloeroppervlak indeling:
- Begane grond: circa 1.913 m² b.v.o. bedrijfsruimte.
- Verdieping: circa 980 m² b.v.o. kantoorruimte.
- Entree/trappenhuis: ongeveer 106 m² b.v.o.
- Slurf naar ander pand 133 m² b.v.o.
OPLEVERINGSNIVEAU
Het object wordt in de huidige staat aangeboden met o.a. de volgende voorzieningen:
Bedrijfsruimte (begane grond)
- Hoogte hal van circa 8.15 meter;
- C.V. gestookte heaters;
- Stadsverwarming;
- Gecoate vloer;
- Dockshelter met leveler;
- Een normale overheaddeur;
- Loopdeur;
- Verlichtingsarmaturen;
Kantoorruimte (begane grond en 1e verdieping)
- Vloerbedekking;
- Systeemplanfonds;
- Draai/kiep ramen, van binnen voorzien van zonnewering;
- Topkoeling;
- Toiletgroep met dames en heren toilet;
PARKERKEN
Op het terrein zijn er 12 parkeerplaatsen voor de deur (omheind)
ENERGIELABEL
C
OPLEVERING
In overleg
LOS EN IN COMBINATIE TE KOOP MET
Antennestraat 40 - naast gelegen.
- Begane grond: circa 1.350 m² b.v.o. bedrijfsruimte.
- Verdieping: circa 450 m² b.v.o. kantoorruimte.
- Parkeren 17 parkeerplaatsen.
€ 2.150.000,-- K.K. VRIJ van BTW.
BIJZONDERHEDEN
Het naastgelegen stuk perceel van ca. 730 m² kan in combinatie van die stuk pand gekocht worden voor € 200.000,-- K.K. vrij van BTW. Op het naast gelegen stuk zit een slurf richting het naast gelegen pand. Deze 133 vierkante meter is ook ideaal voor opslag.
BEREIKBAARHEID
Auto:
De A6 richting Amsterdam en Lelystad is binnen enkele minuten bereikbaar. Vanaf hier kunt u doorrijden naar de A1 richting Amsterdam of Amersfoort of de A27 richting Utrecht.
Het centrum van Almere-Stad is zowel met het openbaar vervoer als met het eigen vervoer goed te bereiken.
Openbaar vervoer:
Een bushalte is op korte afstand bereikbaar. Deze heeft een verbinding naar NS-Station Poort en Muziekwijk.
Bent u geïnteresseerd, neem dan gerust telefonisch contact met ons op dan gaan we het pand samen met u bezichtigen.
Wij kunnen dit vaak al op korte termijn realiseren.
Voor meer informatie:
Siewe Bedrijfsmakelaars
tel. 036-3030994
Map
Map is loading...
Cadastral boundaries
Buildings
Travel time
Gain insight into the reachability of this object, for instance from a public transport station or a home address.