Tuinstraat 53 5038 DA Tilburg
€ 1,100,000 k.k.
Description
DE ACTIEVE MAKELAARS VAN RE/MAX TOONAANGEVEND MAKELAARDIJ HEBBEN WEER EEN UNIEK BELEGGINGSOBJECT TE KOOP!
BEN JE OP ZOEK NAAR EEN PRIMA BELEGGINGS OF UITPONDINGSOBJECT OP EEN TOP LOCATIE?
DAN HEEFT REMAX TOONAANGEVEND MAKELAARIJ DEZE VOOR JOU.
INSTAPKLAAR BELEGGINGSPAND MET EEN HORECA (BTW) GEDEELTE OP BEGANE GROND EN 3 APPARTEMENTEN DIE IN VERHUURDE STAAT WORDEN VERKOCHT MET POTENTIE VOOR WAARDEGROEI IN DE TOEKOMST EN MOGELIJKHEID VOOR UITPONDING.
WIL JE EEN VERRASSENDE BEZICHTIGING, VUL DAN HET CONTACTFORMULIER IN OP REMAXTOONAANGEVEND.NL!
Gelegen in het centrum en dwaalgebied van Tilburg , aan de Tuinstraat 53 (horeca) en Antoniusstraat 42, 44 & 46 (appartementen) vind je dit aantrekkelijke beleggingsobject.
Gebouwd in 1905 en appartementen gerenoveerd in 2012, biedt dit object een solide basis voor zowel verhuur als investering.
Met een perceeloppervlakte van 140 m² en een energielabel A (voorlopig), combineert dit object ruimte en energie-efficiëntie.
Het object is verhuurd wat het een stabiele en lucratieve investering maakt en is instapklaar.
De ligging in het populaire dwaalgebied nabij het centraal station en centrum draagt bij aan de verhuurbaarheid en waarde van het pand.
Kortom, de Tuinstraat 53 (horeca) en Antoniusstraat 42, 44 & 46 bieden een geweldige kans voor beleggers die op zoek zijn naar een stabiele verhuur met potentieel voor waardegroei in de toekomst.
Deze woning combineert een uitstekende locatie met praktische voordelen, waardoor het een waardevolle toevoeging is aan elke vastgoedportefeuille.
Bijzonderheden
Dit beleggingsobject genereert een netto huurinkomsten van € 49.039,56 per jaar.
De verhuurder brengt jaarlijks € 1.146,-- in rekening voor servicekosten, waaronder internet/tv, en € 7.020,-- voorschot voor gas, water en elektriciteit.
-De Tuinstraat is een met btw verhuurd object; waardoor het onderhoud btw aftrekbaar is.
-Huurwaarde upgrading mogelijk bij de 3 appartementen.
-Permanente bewoning.
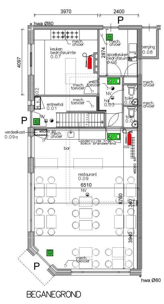
-Horeca op begane grond Tuinstraat 53 (ca. 123 m²), energielabel A
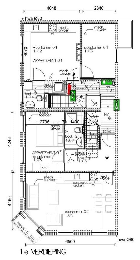
-Appartement eerste verdieping Antoniusstraat nr. 42 (ca. 31 m²), energielabel F
-Appartement eerste verdieping Antoniusstraat nr. 44 met balkon aan voorzijde (ca. 47 m²), energielabel A
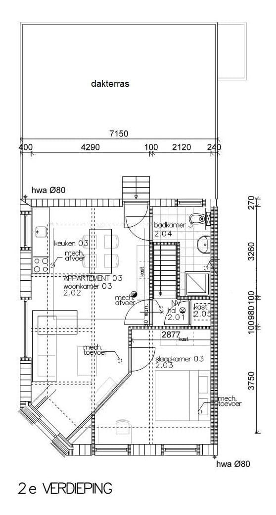
-Appartement tweede verdieping Antoniusstraat nr. 46 met groot dakterras (ca. 57 m²), energielabel C
-Wordt in verhuurde staat verkocht.
-Mogelijkheid om in de toekomst per huisnummer uit te ponden!!
-Object is voor onbepaalde tijd verhuurd.
-Goed onderhouden object
Genoemde maten en plattegronden zijn ter indicatie en daaraan kunnen geen rechten aan verbonden worden.
Aanvaarding: per direct, in overleg.
Neem snel contact met ons op en wellicht wordt dit jouw nieuwe droombelegging!
Vul het contactformulier in voor een vrijblijvende bezichtiging: RE/MAX TOONaangevend makelaardij
BEN JE OP ZOEK NAAR EEN PRIMA BELEGGINGS OF UITPONDINGSOBJECT OP EEN TOP LOCATIE?
DAN HEEFT REMAX TOONAANGEVEND MAKELAARIJ DEZE VOOR JOU.
INSTAPKLAAR BELEGGINGSPAND MET EEN HORECA (BTW) GEDEELTE OP BEGANE GROND EN 3 APPARTEMENTEN DIE IN VERHUURDE STAAT WORDEN VERKOCHT MET POTENTIE VOOR WAARDEGROEI IN DE TOEKOMST EN MOGELIJKHEID VOOR UITPONDING.
WIL JE EEN VERRASSENDE BEZICHTIGING, VUL DAN HET CONTACTFORMULIER IN OP REMAXTOONAANGEVEND.NL!
Gelegen in het centrum en dwaalgebied van Tilburg , aan de Tuinstraat 53 (horeca) en Antoniusstraat 42, 44 & 46 (appartementen) vind je dit aantrekkelijke beleggingsobject.
Gebouwd in 1905 en appartementen gerenoveerd in 2012, biedt dit object een solide basis voor zowel verhuur als investering.
Met een perceeloppervlakte van 140 m² en een energielabel A (voorlopig), combineert dit object ruimte en energie-efficiëntie.
Het object is verhuurd wat het een stabiele en lucratieve investering maakt en is instapklaar.
De ligging in het populaire dwaalgebied nabij het centraal station en centrum draagt bij aan de verhuurbaarheid en waarde van het pand.
Kortom, de Tuinstraat 53 (horeca) en Antoniusstraat 42, 44 & 46 bieden een geweldige kans voor beleggers die op zoek zijn naar een stabiele verhuur met potentieel voor waardegroei in de toekomst.
Deze woning combineert een uitstekende locatie met praktische voordelen, waardoor het een waardevolle toevoeging is aan elke vastgoedportefeuille.
Bijzonderheden
Dit beleggingsobject genereert een netto huurinkomsten van € 49.039,56 per jaar.
De verhuurder brengt jaarlijks € 1.146,-- in rekening voor servicekosten, waaronder internet/tv, en € 7.020,-- voorschot voor gas, water en elektriciteit.
-De Tuinstraat is een met btw verhuurd object; waardoor het onderhoud btw aftrekbaar is.
-Huurwaarde upgrading mogelijk bij de 3 appartementen.
-Permanente bewoning.
-Horeca op begane grond Tuinstraat 53 (ca. 123 m²), energielabel A
-Appartement eerste verdieping Antoniusstraat nr. 42 (ca. 31 m²), energielabel F
-Appartement eerste verdieping Antoniusstraat nr. 44 met balkon aan voorzijde (ca. 47 m²), energielabel A
-Appartement tweede verdieping Antoniusstraat nr. 46 met groot dakterras (ca. 57 m²), energielabel C
-Wordt in verhuurde staat verkocht.
-Mogelijkheid om in de toekomst per huisnummer uit te ponden!!
-Object is voor onbepaalde tijd verhuurd.
-Goed onderhouden object
Genoemde maten en plattegronden zijn ter indicatie en daaraan kunnen geen rechten aan verbonden worden.
Aanvaarding: per direct, in overleg.
Neem snel contact met ons op en wellicht wordt dit jouw nieuwe droombelegging!
Vul het contactformulier in voor een vrijblijvende bezichtiging: RE/MAX TOONaangevend makelaardij
Features
Transfer of ownership
- Asking price
- € 1,100,000 kosten koper
- Listed since
-
- Status
- Available
- Acceptance
- Available in consultation
Construction
- Main use
- Investment
- Building type
- Resale property
- Year of construction
- 1905
Surface areas
- Area
- 255 m²
- Plot size
- 140 m²
Layout
- Living space
- Present (built-in, 135 m²)
Energy
- Energy label
- Not available
Surroundings
- Location
- Town center, in residential district and railway station site
- Accessibility
- Bus stop in less than 500 m and Dutch Railways Intercity station in less than 500 m
- Local facilities
- Bank in less than 500 m, restaurant in less than 500 m and retail outlet in less than 500 m
Investment property
- Gross rental income
- € 57,205 per year
- Tenants
- 4 tenants
Real estate agent
Photos