Loperweg 10 6101 AE Echt
Price on request
Description
Gelegen nabij het centrum van Echt bieden wij u dit multifunctionele woon-werkpand te koop aan.
Het bouwjaar van het object is omstreeks 1932 en het is gelegen op een ruim perceel van ca. 1.519 m². De bovenwoning heeft een woonoppervlakte van 130 m² gelegen op de eerste verdieping. Het bedrijfsgedeelte heeft een VVO van ca. 71 m², de zaal heeft een VVO van ca. 150 m². De inhoud van het gehele pand bedraagt ca. 1.232 m³. Het object beschikt over 2 energielabels. Café: G, geldig tot 07-08-2034. Appartement: E, geldig tot 07-08-2034.
Het object is goed bereikbaar. Op ca. 1 km afstand bevinden zich diverse dagelijkse voorzieningen, waaronder een supermarkt, restaurant, huisarts, basisschool etc. Op ca. 100 m afstand bevindt zich de oprit voor de autosnelweg A2 richting Eindhoven, Maastricht, Venlo en Nijmegen.
Parkeren:
Voor het pand is voldoende parkeermogelijkheid.
Opleveringsniveau:
- Hardhouten kozijnen met dubbele beglazing;
- Dakisolatie;
- Cv-ketel (2017);
- 2 volwaardige keukens;
- 2 volwaardige badkamers.
Bestemmingsplan:
Huidige bestemming: Horeca (cat. 2 en 3) met bedrijfswoning.
Indeling:
Souterrain:
Kelder (126 m²).
Begane grond:
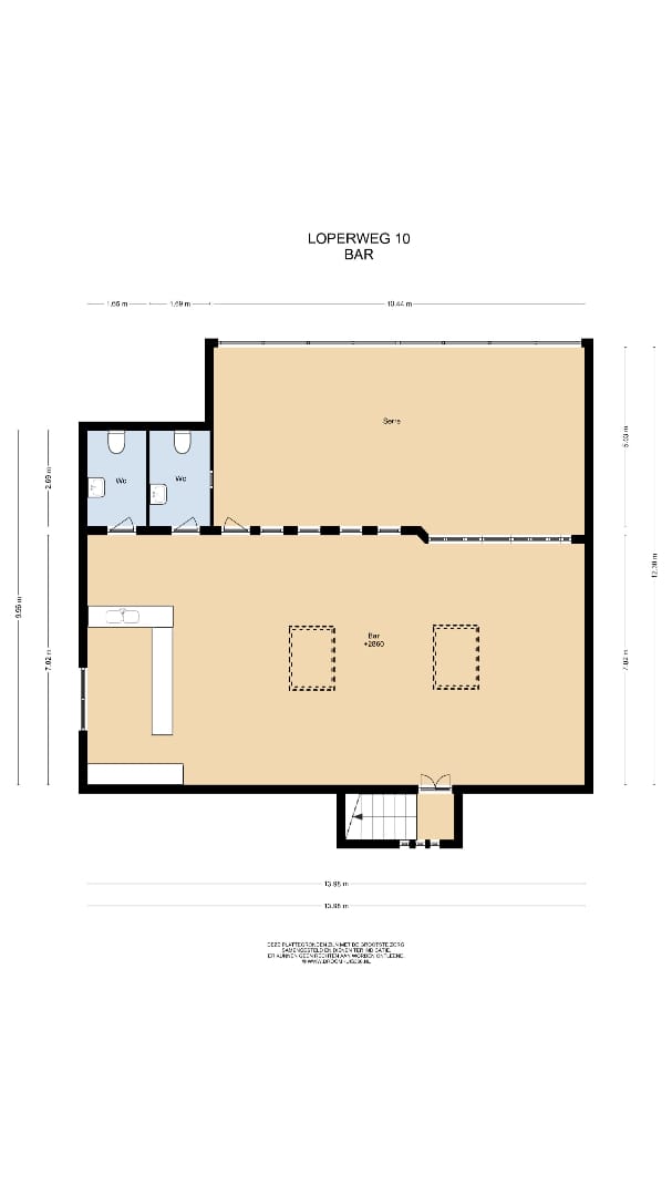
Café (72 m²), toiletten (dames- en heren: 13 m²), kantoor (14 m²), kamer (19 m²), keuken (27 m²), badkamer (5 m²), garage/schuur (43 m²).
Achter het pand bevindt zich een terras. Vanuit het terras bereik je de zaal met bar, separate toiletten en serre (150 m²). Het perceel is tevens vanuit de achterzijde toegankelijk.
Eerste verdieping:
Overloop met toegang tot de keuken, 2 slaapkamers en badkamer. De dichte keuken is 16 m² en voorzien van inbouwapparatuur, zoals een gaskookplaat, afzuigkap, combimagnetron, vaatwasser en koelkast. Vanuit de keuken bereik je de woonkamer (39 m²). Naast de woonkamer bevindt zich een gang waar eventueel een toegang tot de tweede verdieping gemaakt kan worden.
2 ruime slaapkamers (22 m² en 16 m²) en een badkamer (11 m²) met douche, ligbad, wastafel met meubel en een zwevend toilet. Tevens bevindt de witgoedaansluiting zich in de badkamer.
Tweede verdieping:
Bereikbaar middels een vlizo trap en toegang tot de opslagzolder.
Aanvaarding:
In overleg.
Bezichtiging:
Uitsluitend na afspraak met ons kantoor.
Informatie:
Wij hebben getracht middels deze zorgvuldig samengestelde documentatie u zo uitgebreid mogelijk te informeren. Desondanks kunnen hieraan geen rechten worden ontleend. Slechts de feitelijke situatie geeft u een juist beeld.
Kadastrale gegevens:
Kadastrale gemeente : Echt
Sectie : K
Nummer : 1478 – 3366 - 5855
Perceeloppervlak : 1.519 m²
Prijs: op aanvraag
Bij meerdere reacties voor de vraagprijs behoudt de verkoper zich het recht voor i.v.m. het recht van gelijke kansen het object via inschrijving/anders geprijsd te verkopen.
Zie publiciteitsvoorbehoud voorin de brochure.
Het bouwjaar van het object is omstreeks 1932 en het is gelegen op een ruim perceel van ca. 1.519 m². De bovenwoning heeft een woonoppervlakte van 130 m² gelegen op de eerste verdieping. Het bedrijfsgedeelte heeft een VVO van ca. 71 m², de zaal heeft een VVO van ca. 150 m². De inhoud van het gehele pand bedraagt ca. 1.232 m³. Het object beschikt over 2 energielabels. Café: G, geldig tot 07-08-2034. Appartement: E, geldig tot 07-08-2034.
Het object is goed bereikbaar. Op ca. 1 km afstand bevinden zich diverse dagelijkse voorzieningen, waaronder een supermarkt, restaurant, huisarts, basisschool etc. Op ca. 100 m afstand bevindt zich de oprit voor de autosnelweg A2 richting Eindhoven, Maastricht, Venlo en Nijmegen.
Parkeren:
Voor het pand is voldoende parkeermogelijkheid.
Opleveringsniveau:
- Hardhouten kozijnen met dubbele beglazing;
- Dakisolatie;
- Cv-ketel (2017);
- 2 volwaardige keukens;
- 2 volwaardige badkamers.
Bestemmingsplan:
Huidige bestemming: Horeca (cat. 2 en 3) met bedrijfswoning.
Indeling:
Souterrain:
Kelder (126 m²).
Begane grond:
Café (72 m²), toiletten (dames- en heren: 13 m²), kantoor (14 m²), kamer (19 m²), keuken (27 m²), badkamer (5 m²), garage/schuur (43 m²).
Achter het pand bevindt zich een terras. Vanuit het terras bereik je de zaal met bar, separate toiletten en serre (150 m²). Het perceel is tevens vanuit de achterzijde toegankelijk.
Eerste verdieping:
Overloop met toegang tot de keuken, 2 slaapkamers en badkamer. De dichte keuken is 16 m² en voorzien van inbouwapparatuur, zoals een gaskookplaat, afzuigkap, combimagnetron, vaatwasser en koelkast. Vanuit de keuken bereik je de woonkamer (39 m²). Naast de woonkamer bevindt zich een gang waar eventueel een toegang tot de tweede verdieping gemaakt kan worden.
2 ruime slaapkamers (22 m² en 16 m²) en een badkamer (11 m²) met douche, ligbad, wastafel met meubel en een zwevend toilet. Tevens bevindt de witgoedaansluiting zich in de badkamer.
Tweede verdieping:
Bereikbaar middels een vlizo trap en toegang tot de opslagzolder.
Aanvaarding:
In overleg.
Bezichtiging:
Uitsluitend na afspraak met ons kantoor.
Informatie:
Wij hebben getracht middels deze zorgvuldig samengestelde documentatie u zo uitgebreid mogelijk te informeren. Desondanks kunnen hieraan geen rechten worden ontleend. Slechts de feitelijke situatie geeft u een juist beeld.
Kadastrale gegevens:
Kadastrale gemeente : Echt
Sectie : K
Nummer : 1478 – 3366 - 5855
Perceeloppervlak : 1.519 m²
Prijs: op aanvraag
Bij meerdere reacties voor de vraagprijs behoudt de verkoper zich het recht voor i.v.m. het recht van gelijke kansen het object via inschrijving/anders geprijsd te verkopen.
Zie publiciteitsvoorbehoud voorin de brochure.
Features
Transfer of ownership
- Asking price
- Price on request
- Listed since
-
- Status
- Available
- Acceptance
- Available in consultation
Transfer of ownership
- Staff
- No
Construction
- Main use
- Catering establishment
- Type of catering establishment
- Catering establishment
- Building type
- Resale property
- Year of construction
- 1932
Surface areas
- Area
- 299 m²
- Sales floor area
- 299 m²
- Plot size
- 1,519 m²
Layout
- Number of floors
- 1 floor
- Located at
- Ground floor
Energy
- Energy label
- G
Surroundings
- Location
- Business park
VastgoedPRO real estate agent
Photos
Floorplan
Berging
Kelder
Bar
Begane grond
1E Verdieping
Vliering
Situatie