Description
Omschrijving
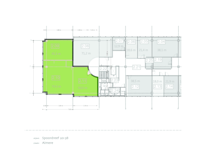
Spoordreef 20-38 betreft een kantoorgebouw gelegen in het centrum van Almere, op loopafstand van station Almere Centrum. Hierdoor is de bereikbaarheid met het openbaar vervoer uitstekend. Ook met de auto is de locatie goed bereikbaar via de nabijgelegen uitvalswegen. Op de 2e verdieping komt circa 200 m² beschikb
Ligging
Het gebouw bevindt zich aan de Spoordreef, midden in het stadshart van Almere. In de directe omgeving bevinden zich diverse winkels, horeca en andere voorzieningen. Dankzij de centrale ligging en het nabijgelegen treinstation is dit een aantrekkelijke locatie voor bedrijven die zowel medewerkers als bezoekers optimaal willen faciliteren.
Bereikbaarheid
De ligging nabij station Almere Centrum maakt het pand uitstekend bereikbaar per trein en bus. Het station is binnen enkele minuten te voet bereikbaar. Met de auto is de Spoordreef goed verbonden met de rijkswegen A6 en A27, waardoor Amsterdam, ’t Gooi en Lelystad snel te bereiken zijn.
Oppervlakte
De oppervlakte bedraagt circa 200 m², gelegen op de 2e verdieping.
Voorzieningen
Het kantoorgebouw is onder andere voorzien van:
- Entree;
- Systeemplafonds met verlichtingsarmaturen;
- Afgewerkte wanden en vloer;
- Liftinstallatie;
- Topkoeling;
- Pantry;
- Toiletten.
Opleveringsniveau
Het object wordt 'as is' opgeleverd.
Huurprijs
De huurprijs bedraagt € 95,- per m² per jaar exclusief servicekosten en btw.
Servicekosten
De vaste servicekosten bedragen € 250,- per maand exclusief btw.
Huurtermijn
1 jaar, met verlenging voor onbepaalde tijd.
Betalingen
Huur, servicekosten en btw per maand vooruit.
Huurprijsindexering
Jaarlijks, op basis van de wijziging van het maandprijsindexcijfer volgens de consumentenprijsindex (CPI) reeks Alle huishoudens (2015 = 100), gepubliceerd door het Centraal Bureau voor de Statistiek (CBS).
Zekerheidstelling
Bij ondertekening van de huurovereenkomst wordt een bankgarantie of waarborgsom verlangd ter grootte van drie maanden huurbetalingsverplichting, vermeerderd met de servicekosten en btw.
Huurovereenkomst
De huurovereenkomst wordt opgesteld conform het model van de Raad voor Onroerende Zaken (ROZ), vastgesteld in februari 2015, zoals gehanteerd door de NVM, inclusief de bijbehorende algemene bepalingen.
Btw-bepaling
Huurder en verhuurder verklaren dat bij het vaststellen van de huurprijs is uitgegaan van een btw-belaste verhuur. Indien dit wijzigt of niet wordt toegestaan doordat huurder niet (meer) aan de criteria voldoet, wordt de kale huurprijs verhoogd om verhuurder volledig te compenseren voor niet-aftrekbare of terug te betalen btw.
Aanvaarding
Per direct.
Gunning
De verhuurder behoudt zich het recht van gunning voor.
Spoordreef 20-38 betreft een kantoorgebouw gelegen in het centrum van Almere, op loopafstand van station Almere Centrum. Hierdoor is de bereikbaarheid met het openbaar vervoer uitstekend. Ook met de auto is de locatie goed bereikbaar via de nabijgelegen uitvalswegen. Op de 2e verdieping komt circa 200 m² beschikb
Ligging
Het gebouw bevindt zich aan de Spoordreef, midden in het stadshart van Almere. In de directe omgeving bevinden zich diverse winkels, horeca en andere voorzieningen. Dankzij de centrale ligging en het nabijgelegen treinstation is dit een aantrekkelijke locatie voor bedrijven die zowel medewerkers als bezoekers optimaal willen faciliteren.
Bereikbaarheid
De ligging nabij station Almere Centrum maakt het pand uitstekend bereikbaar per trein en bus. Het station is binnen enkele minuten te voet bereikbaar. Met de auto is de Spoordreef goed verbonden met de rijkswegen A6 en A27, waardoor Amsterdam, ’t Gooi en Lelystad snel te bereiken zijn.
Oppervlakte
De oppervlakte bedraagt circa 200 m², gelegen op de 2e verdieping.
Voorzieningen
Het kantoorgebouw is onder andere voorzien van:
- Entree;
- Systeemplafonds met verlichtingsarmaturen;
- Afgewerkte wanden en vloer;
- Liftinstallatie;
- Topkoeling;
- Pantry;
- Toiletten.
Opleveringsniveau
Het object wordt 'as is' opgeleverd.
Huurprijs
De huurprijs bedraagt € 95,- per m² per jaar exclusief servicekosten en btw.
Servicekosten
De vaste servicekosten bedragen € 250,- per maand exclusief btw.
Huurtermijn
1 jaar, met verlenging voor onbepaalde tijd.
Betalingen
Huur, servicekosten en btw per maand vooruit.
Huurprijsindexering
Jaarlijks, op basis van de wijziging van het maandprijsindexcijfer volgens de consumentenprijsindex (CPI) reeks Alle huishoudens (2015 = 100), gepubliceerd door het Centraal Bureau voor de Statistiek (CBS).
Zekerheidstelling
Bij ondertekening van de huurovereenkomst wordt een bankgarantie of waarborgsom verlangd ter grootte van drie maanden huurbetalingsverplichting, vermeerderd met de servicekosten en btw.
Huurovereenkomst
De huurovereenkomst wordt opgesteld conform het model van de Raad voor Onroerende Zaken (ROZ), vastgesteld in februari 2015, zoals gehanteerd door de NVM, inclusief de bijbehorende algemene bepalingen.
Btw-bepaling
Huurder en verhuurder verklaren dat bij het vaststellen van de huurprijs is uitgegaan van een btw-belaste verhuur. Indien dit wijzigt of niet wordt toegestaan doordat huurder niet (meer) aan de criteria voldoet, wordt de kale huurprijs verhoogd om verhuurder volledig te compenseren voor niet-aftrekbare of terug te betalen btw.
Aanvaarding
Per direct.
Gunning
De verhuurder behoudt zich het recht van gunning voor.
Map
Map is loading...
Cadastral boundaries
Buildings
Travel time
Gain insight into the reachability of this object, for instance from a public transport station or a home address.