Description
- Hypermodern
- Recentelijk nieuw opgeleverd
- Zeer representatief
- Duurzaam / energiezuining
- Energielabel A++++
- Direct beschikbaar
- Uitstekend bereikbaar
- Zichtlocatie
- Uitstekende parkeermogelijkheden
- Flexibel indeelbaar
- Circa 736 m2 beschikbaar per verdieping van circa 368 m2.
Bent u op zoek naar een kantoor dat professionaliteit, duurzaamheid en bereikbaarheid combineert? Aan de Gouwelandenlaan 5 in Alphen aan den Rijn staat een uniek kleinschalig nieuwbouwkantoor te huur. Gebouw Rothorn biedt een inspirerende en toekomstbestendige werkomgeving met energielabel A++++, een hoogwaardige uitstraling en uitstekende voorzieningen.
Alphen aan den Rijn is een uitstekende vestigingslocatie voor ondernemers. Het ligt centraal in het Groene Hart en vormt een uitstekend bereikbaar middelpunt van de Randstad. De stad staat bekend om haar ondernemersvriendelijke beleid, centrale ligging en aantrekkelijke woon- en werkomgeving. Voor bedrijven die zich landelijk willen profileren én hun medewerkers een fijne werkplek willen bieden, is dit een ideale keuze!
Gebouw Rothorn ligt op bedrijventerrein "De Schans I", direct aan de N11, de belangrijkste verkeersverbinding tussen Alphen aan den Rijn, Leiden, Utrecht en de A4/A12. Dagelijks passeren hier duizenden automobilisten – een perfecte kans om uw bedrijf zichtbaar te maken. Uniek is bovendien de mogelijkheid om in overleg met de eigenaar / medegebruiker gebruik te maken van het grote LED-scherm op het dak. Hiermee kunt u uw bedrijfsnaam of boodschap rechtstreeks onder de aandacht brengen van het vele verkeer op de N11. Kortom, Een ware eyecatcher als gebouw en een absolute zichtlocatie met maximale exposure voor uw bedrijf!
Bezoekers en medewerkers parkeren op het fraaie aangelegde afsluitbare parkeerterrein rondom het gebouw en worden vervolgens op de begane grond verwelkomd in een zeer representatieve entree, waar gebruik is gemaakt van hoogwaardige en warme materialen. Dit zorgt voor een uitnodigende sfeer en een professionele eerste indruk – precies de uitstraling die u als organisatie wilt neerzetten. Hier bevindt zich tevens een representatieve vergader- / trainingsruimte die bij beschikbaarheid flexibel kan worden gehuurd. De lift en het fraaie trappenhuis bieden toegang tot de eigen kantoorverdieping(en).
Op de kantoorverdieping aangekomen wordt u verrast door de royale verdiepingshoge raampartijen die zorgen voor een overvloed aan daglicht en een fraai groen uitzicht bieden. De verdiepingen beschikken over zelfstandige voorzieningen, zoals een toiletgroep en pantry en zijn zeer flexibel indeelbaar, waarbij zowel open werkvloeren als aparte kantoren en vergaderruimtes gerealiseerd kunnen worden.
BESCHIKBAARHEID
Het betreft een kleinschalig gebouw met een vloeroppervlak van in totaal circa 1.474 m2 verdeeld over de begane grond en drie verdiepingen. Voor verhuur is beschikbaar:
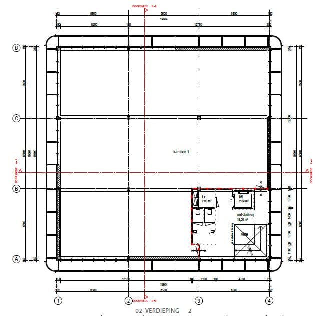
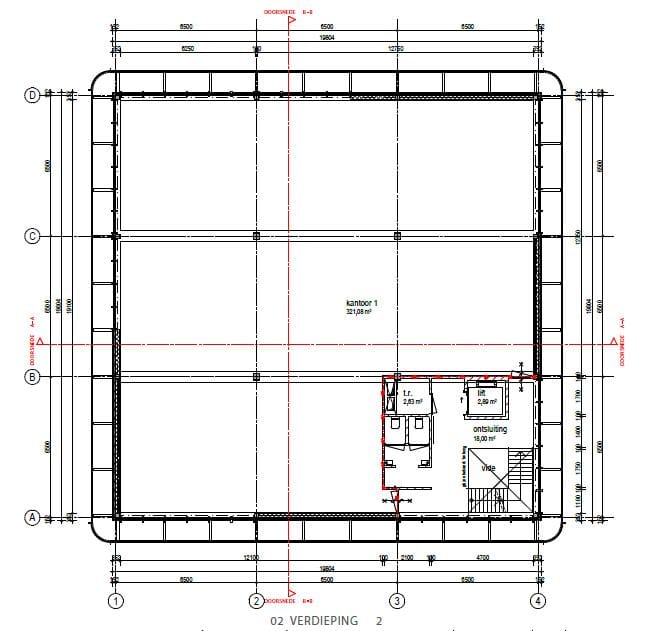
1e verdieping: circa 368 m²
2e verdieping: circa 368 m²
PARKEREN
Het gebouw beschikt over 30 exclusief aangewezen parkeerplaatsen op eigen terrein, afgesloten met een schuifhek voorzien van kentekenherkenning. Parkeerplaatsen worden verhoudingsgewijs toegewezen bij een te huren verdieping.
OPLEVERINGSNIVEAU
Het opleveringsniveau is casco plus, reeds voorzien van de navolgende zaken:
- glad afgewerkte vloeren en plafonds;
- tussenmeters openbaar nut;
- een eigen pantry;
- toiletgroep;
- lift;
- warmtepomp;
- airconditioning;
- luchtkoeling;
- ventilatie via een warmteterugwinsysteem;
- schuifhek met kentekencontrole;
- pakketbox voor pakketbezorging;
- keyless toegangssysteem;
- buitenterras met overkapping voor gemeenschappelijk gebruik;
- trainingsruimte begane grond.
Het is mogelijk om in overleg en tegen meerprijs het gehuurde turn-key te laten afbouwen. Vraag ons naar de mogelijkheden.
HUURPRIJS
Kantoorruimte: € 175,- per m² te vermeerderen met BTW
Parkeren: € 500,- per parkeerplaats per jaar, te vermeerderen met BTW
VOORSCHOT SERVICEKOSTEN
indicatief € 40,- per vierkante meter per jaar te vermeerderen met btw. Op aanvraag informeren wij u over het pakket van door of vanwege verhuurder te verzorgen bijkomende leveringen en diensten.
HUURPRIJSAANPASSING
Jaarlijks, voor het eerst één jaar na ingangsdatum van de huurovereenkomst, op basis van de wijziging van het maandindexcijfer volgens de consumentenprijsindex (CPI) reeks “alle huishoudens” (2015=100), gepubliceerd door het Centraal Bureau voor de Statistiek (CBS).
ZEKERHEIDSTELLING
Een bankgarantie ter grootte van een betalingsverplichting van 3 maanden huur te vermeerderen met de wettelijke omzetbelasting en servicekosten.
HUUROVEREENKOMST
Huurovereenkomst conform het standaardmodel van de Raad voor Onroerende Zaken (ROZ) model 2015.
BTW:
Huurder garandeert aan verhuurder dat hij het huurobject per datum van ingang van de huurovereenkomst voor tenminste het bij de wet vastgestelde minimumpercentage blijvend zal gebruiken voor doeleinden die recht geven op aftrek van BTW.
Indien huurderechter niet (meer) voldoet aan de wettelijke criteria voor belaste verhuur of een optieverzoek tot belaste verhuur niet (meer) door de inspecteur der belastingen wordt gehonoreerd, dan zal huurder het gehele daardoor financieel te lijden nadeel voor verhuurder aan verhuurder vergoeden, overeenkomstig de ter zake op te nemen bijzondere bepalingen van de huurovereenkomst.
HUURTERMIJN
5 jaar met aansluitend een optietermijn van telkens 5 jaar.
HUURBETALINGEN
Per maand vooruit.
BIJZONDERHEDEN
Elke transactie behoeft de nadrukkelijke goedkeuring van eigenaar.
DISCLAIMER
Er kunnen op geen enkele wijze rechten worden ontleend aan, noch aanspraak gemaakt worden op de inhoud van deze website. De verstrekte informatie is van algemene aard en uitsluitend bedoeld ter indicatie. Hoewel deze informatie met de grootst mogelijke zorgvuldigheid is samengesteld, aanvaarden wij geen aansprakelijkheid voor mogelijke onjuistheden of onvolledigheden. Alle informatie op deze website is onder voorbehoud en kan zonder nadere aankondiging worden gewijzigd. Wij raden geïnteresseerden aan om bij concrete interesse de juistheid van de informatie zelf te verifiëren en adviseren om juridisch advies in te winnen alvorens over te gaan tot een huurovereenkomst.
- Recentelijk nieuw opgeleverd
- Zeer representatief
- Duurzaam / energiezuining
- Energielabel A++++
- Direct beschikbaar
- Uitstekend bereikbaar
- Zichtlocatie
- Uitstekende parkeermogelijkheden
- Flexibel indeelbaar
- Circa 736 m2 beschikbaar per verdieping van circa 368 m2.
Bent u op zoek naar een kantoor dat professionaliteit, duurzaamheid en bereikbaarheid combineert? Aan de Gouwelandenlaan 5 in Alphen aan den Rijn staat een uniek kleinschalig nieuwbouwkantoor te huur. Gebouw Rothorn biedt een inspirerende en toekomstbestendige werkomgeving met energielabel A++++, een hoogwaardige uitstraling en uitstekende voorzieningen.
Alphen aan den Rijn is een uitstekende vestigingslocatie voor ondernemers. Het ligt centraal in het Groene Hart en vormt een uitstekend bereikbaar middelpunt van de Randstad. De stad staat bekend om haar ondernemersvriendelijke beleid, centrale ligging en aantrekkelijke woon- en werkomgeving. Voor bedrijven die zich landelijk willen profileren én hun medewerkers een fijne werkplek willen bieden, is dit een ideale keuze!
Gebouw Rothorn ligt op bedrijventerrein "De Schans I", direct aan de N11, de belangrijkste verkeersverbinding tussen Alphen aan den Rijn, Leiden, Utrecht en de A4/A12. Dagelijks passeren hier duizenden automobilisten – een perfecte kans om uw bedrijf zichtbaar te maken. Uniek is bovendien de mogelijkheid om in overleg met de eigenaar / medegebruiker gebruik te maken van het grote LED-scherm op het dak. Hiermee kunt u uw bedrijfsnaam of boodschap rechtstreeks onder de aandacht brengen van het vele verkeer op de N11. Kortom, Een ware eyecatcher als gebouw en een absolute zichtlocatie met maximale exposure voor uw bedrijf!
Bezoekers en medewerkers parkeren op het fraaie aangelegde afsluitbare parkeerterrein rondom het gebouw en worden vervolgens op de begane grond verwelkomd in een zeer representatieve entree, waar gebruik is gemaakt van hoogwaardige en warme materialen. Dit zorgt voor een uitnodigende sfeer en een professionele eerste indruk – precies de uitstraling die u als organisatie wilt neerzetten. Hier bevindt zich tevens een representatieve vergader- / trainingsruimte die bij beschikbaarheid flexibel kan worden gehuurd. De lift en het fraaie trappenhuis bieden toegang tot de eigen kantoorverdieping(en).
Op de kantoorverdieping aangekomen wordt u verrast door de royale verdiepingshoge raampartijen die zorgen voor een overvloed aan daglicht en een fraai groen uitzicht bieden. De verdiepingen beschikken over zelfstandige voorzieningen, zoals een toiletgroep en pantry en zijn zeer flexibel indeelbaar, waarbij zowel open werkvloeren als aparte kantoren en vergaderruimtes gerealiseerd kunnen worden.
BESCHIKBAARHEID
Het betreft een kleinschalig gebouw met een vloeroppervlak van in totaal circa 1.474 m2 verdeeld over de begane grond en drie verdiepingen. Voor verhuur is beschikbaar:
1e verdieping: circa 368 m²
2e verdieping: circa 368 m²
PARKEREN
Het gebouw beschikt over 30 exclusief aangewezen parkeerplaatsen op eigen terrein, afgesloten met een schuifhek voorzien van kentekenherkenning. Parkeerplaatsen worden verhoudingsgewijs toegewezen bij een te huren verdieping.
OPLEVERINGSNIVEAU
Het opleveringsniveau is casco plus, reeds voorzien van de navolgende zaken:
- glad afgewerkte vloeren en plafonds;
- tussenmeters openbaar nut;
- een eigen pantry;
- toiletgroep;
- lift;
- warmtepomp;
- airconditioning;
- luchtkoeling;
- ventilatie via een warmteterugwinsysteem;
- schuifhek met kentekencontrole;
- pakketbox voor pakketbezorging;
- keyless toegangssysteem;
- buitenterras met overkapping voor gemeenschappelijk gebruik;
- trainingsruimte begane grond.
Het is mogelijk om in overleg en tegen meerprijs het gehuurde turn-key te laten afbouwen. Vraag ons naar de mogelijkheden.
HUURPRIJS
Kantoorruimte: € 175,- per m² te vermeerderen met BTW
Parkeren: € 500,- per parkeerplaats per jaar, te vermeerderen met BTW
VOORSCHOT SERVICEKOSTEN
indicatief € 40,- per vierkante meter per jaar te vermeerderen met btw. Op aanvraag informeren wij u over het pakket van door of vanwege verhuurder te verzorgen bijkomende leveringen en diensten.
HUURPRIJSAANPASSING
Jaarlijks, voor het eerst één jaar na ingangsdatum van de huurovereenkomst, op basis van de wijziging van het maandindexcijfer volgens de consumentenprijsindex (CPI) reeks “alle huishoudens” (2015=100), gepubliceerd door het Centraal Bureau voor de Statistiek (CBS).
ZEKERHEIDSTELLING
Een bankgarantie ter grootte van een betalingsverplichting van 3 maanden huur te vermeerderen met de wettelijke omzetbelasting en servicekosten.
HUUROVEREENKOMST
Huurovereenkomst conform het standaardmodel van de Raad voor Onroerende Zaken (ROZ) model 2015.
BTW:
Huurder garandeert aan verhuurder dat hij het huurobject per datum van ingang van de huurovereenkomst voor tenminste het bij de wet vastgestelde minimumpercentage blijvend zal gebruiken voor doeleinden die recht geven op aftrek van BTW.
Indien huurderechter niet (meer) voldoet aan de wettelijke criteria voor belaste verhuur of een optieverzoek tot belaste verhuur niet (meer) door de inspecteur der belastingen wordt gehonoreerd, dan zal huurder het gehele daardoor financieel te lijden nadeel voor verhuurder aan verhuurder vergoeden, overeenkomstig de ter zake op te nemen bijzondere bepalingen van de huurovereenkomst.
HUURTERMIJN
5 jaar met aansluitend een optietermijn van telkens 5 jaar.
HUURBETALINGEN
Per maand vooruit.
BIJZONDERHEDEN
Elke transactie behoeft de nadrukkelijke goedkeuring van eigenaar.
DISCLAIMER
Er kunnen op geen enkele wijze rechten worden ontleend aan, noch aanspraak gemaakt worden op de inhoud van deze website. De verstrekte informatie is van algemene aard en uitsluitend bedoeld ter indicatie. Hoewel deze informatie met de grootst mogelijke zorgvuldigheid is samengesteld, aanvaarden wij geen aansprakelijkheid voor mogelijke onjuistheden of onvolledigheden. Alle informatie op deze website is onder voorbehoud en kan zonder nadere aankondiging worden gewijzigd. Wij raden geïnteresseerden aan om bij concrete interesse de juistheid van de informatie zelf te verifiëren en adviseren om juridisch advies in te winnen alvorens over te gaan tot een huurovereenkomst.
Surroundings
Bedrijventerrein De Schans II, Alphen aan den Rijn
Discover locations in the neighborhoodMap
Map is loading...
Cadastral boundaries
Buildings
Travel time
Gain insight into the reachability of this object, for instance from a public transport station or a home address.