Bergstraat 18 3811 NH Amersfoort
€ 35,000 /yr
Description
ALGEMEEN
Werkcomfort, eigen identiteit, perfecte bereikbaarheid en volop parkeren, u vindt het in deze charmante kantoorvilla in het zakelijke hart van Amersfoort. Het pand is bij uitstek geschikt voor zakelijke dienstverlening, balie-houdende organisaties en medische praktijkhouders. Maak kennis met deze representatieve en veelzijdig inzetbare locatie.
LOCATIE
De kantoorvilla bevindt zich op loopafstand van het centraal station en de middeleeuwse binnenstad en is razendsnel bereikbaar vanaf de snelweg en de Stadsring. De Bergstraat is ruim honderd jaar geleden aangelegd en kenmerkt zich door authentieke architectuur en een moderne combinatie van particuliere en ‘zakelijke bewoners’. Het resultaat is een levendige en leefbare omgeving.
BEREIKBAARHEID
Zowel voor openbaar vervoer als de auto is Amersfoort hét knooppunt van midden-Nederland. De Amersfoortse Stadsring en het centraal trein en -busstation bevinden zich op enkele honderden meters afstand. Mede dankzij de exclusief voor autoverkeer aangelegde ‘Kersenbaan’ is het pand direct bereikbaar vanaf de nabijgelegen snelweg A28.
VLOEROPPERVLAKTE
Voor verhuur is beschikbaar een totale oppervlakte van circa 179 m².
Verdiepingen m²
Begane grond 75
1ste verdieping 59
Zolder 36
Kelder 9
Totaal 179
De eigenaar staat tevens open voor deelverhuur. In dat geval zijn de volgende units beschikbaar:
Unit 1 – Begane grond: circa 75 m²
Unit 2 – 1e verdieping + zolder: circa 95 m²
Het bovenvermelde metrage is ingemeten conform NEN 2580, meetcertificaat c.o. 88308, 2-2-2022
INDELING
Het object is als volgt ingedeeld:
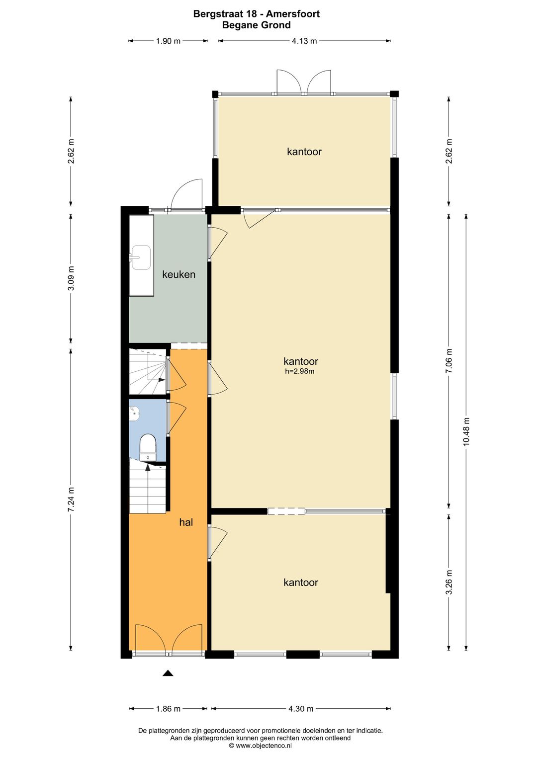
De karakteristieke entreehal op de begane grond biedt toegang tot een ruimte die bruikbaar is als werkkamer of ontvangstruimte. Deze sluit direct en via een gang aan op een grote en zonnige werkruimte. De vriendelijke serre leent zich uitstekend voor vergaderen of als private werkruimte. Aansluitend aan de gang zijn de gemoderniseerde pantry en een toilet.
Op de eerste etage vindt u twee ruime en zonnige werkkamers en het tweede toilet. Aan de achterzijde is een klein dakterras. De multifunctionele zolder leent zich goed voor grotere vergaderingen of flexwerkplekken.
Zie verder de plattegrondtekeningen in de bijlagen.
OPLEVERINGSNIVEAU
De ruimte zal in huidige staat worden opgeleverd.
• Pantry;
• Projecttapijt;
• Alarminstallatie-infrastructuur;
• Bekabeling;
• Gedeeltelijke zonwering.
PARKEREN
Op eigen terrein zijn tot negen parkeerplaatsen beschikbaar. Het huuraanbod gaat uit van vijf toegewezen parkeerplaatsen, maar andere aantallen zijn bespreekbaar. Op de openbare weg is betaald parkeren mogelijk.
BESTEMMING
Kantoorruimte
Informatie inzake gebruiksmogelijkheden en voorschriften is te verkrijgen via ons kantoor, bij de gemeente of via de website van ruimtelijke plannen.
HUURPRIJS
Gehele object
€ 35.000,- per jaar, te vermeerderen met de geldende BTW.
Unit 1 – Begane grond
€ 15.000,- per jaar, te vermeerderen met de geldende BTW.
Unit 2 – 1e verdieping + zolder
€ 14.000,- per jaar, te vermeerderen met de geldende BTW.
BTW
Uitgangspunt is een met BTW belaste huurprijs. Indien een huurder niet voldoet aan de voor belaste verhuur gestelde criteria zal de huurprijs zodanig worden verhoogd dat het voor verhuurder ontstane financiële nadeel volledig wordt gecompenseerd.
SERVICEKOSTEN
Geen servicekosten.
Huurder zal voor eigen rekening en risico contracten met de nutsbedrijven afsluiten voor de levering en het verbruik van gas, water en elektriciteit.
ENERGIELABEL
De kantooretages zijn in 2022 geheel in lijn gebracht met de energienormen. Afhankelijk van het gewenste gebruik zal dit ook in overleg plaatsvinden voor de zolderetage.
HUURTERMIJN
Huurperiode van 5 jaar gevolgd door verlengingstermijnen van telkens 5 jaar.
OPZEGTERMIJN
12 maanden.
ZEKERHEIDSTELLING
Een bankgarantie ter grootte van drie maanden huur en servicekosten te vermeerderen met de geldende BTW.
HUURINDEXATIE
De huurprijs zal jaarlijks, voor het eerst 1 jaar na de huuringangsdatum, worden verhoogd op basis van de consumentenprijsindex (CPI) zoals wordt gepubliceerd door het Centraal Bureau voor de Statistiek (CBS).
HUUROVEREENKOMST
De huurovereenkomst zal zijn gebaseerd op het model zoals is vastgesteld door de Raad voor Onroerende Zaken (ROZ) 2025, inclusief de algemene bepalingen.
AANVAARDING
In overleg.
Werkcomfort, eigen identiteit, perfecte bereikbaarheid en volop parkeren, u vindt het in deze charmante kantoorvilla in het zakelijke hart van Amersfoort. Het pand is bij uitstek geschikt voor zakelijke dienstverlening, balie-houdende organisaties en medische praktijkhouders. Maak kennis met deze representatieve en veelzijdig inzetbare locatie.
LOCATIE
De kantoorvilla bevindt zich op loopafstand van het centraal station en de middeleeuwse binnenstad en is razendsnel bereikbaar vanaf de snelweg en de Stadsring. De Bergstraat is ruim honderd jaar geleden aangelegd en kenmerkt zich door authentieke architectuur en een moderne combinatie van particuliere en ‘zakelijke bewoners’. Het resultaat is een levendige en leefbare omgeving.
BEREIKBAARHEID
Zowel voor openbaar vervoer als de auto is Amersfoort hét knooppunt van midden-Nederland. De Amersfoortse Stadsring en het centraal trein en -busstation bevinden zich op enkele honderden meters afstand. Mede dankzij de exclusief voor autoverkeer aangelegde ‘Kersenbaan’ is het pand direct bereikbaar vanaf de nabijgelegen snelweg A28.
VLOEROPPERVLAKTE
Voor verhuur is beschikbaar een totale oppervlakte van circa 179 m².
Verdiepingen m²
Begane grond 75
1ste verdieping 59
Zolder 36
Kelder 9
Totaal 179
De eigenaar staat tevens open voor deelverhuur. In dat geval zijn de volgende units beschikbaar:
Unit 1 – Begane grond: circa 75 m²
Unit 2 – 1e verdieping + zolder: circa 95 m²
Het bovenvermelde metrage is ingemeten conform NEN 2580, meetcertificaat c.o. 88308, 2-2-2022
INDELING
Het object is als volgt ingedeeld:
De karakteristieke entreehal op de begane grond biedt toegang tot een ruimte die bruikbaar is als werkkamer of ontvangstruimte. Deze sluit direct en via een gang aan op een grote en zonnige werkruimte. De vriendelijke serre leent zich uitstekend voor vergaderen of als private werkruimte. Aansluitend aan de gang zijn de gemoderniseerde pantry en een toilet.
Op de eerste etage vindt u twee ruime en zonnige werkkamers en het tweede toilet. Aan de achterzijde is een klein dakterras. De multifunctionele zolder leent zich goed voor grotere vergaderingen of flexwerkplekken.
Zie verder de plattegrondtekeningen in de bijlagen.
OPLEVERINGSNIVEAU
De ruimte zal in huidige staat worden opgeleverd.
• Pantry;
• Projecttapijt;
• Alarminstallatie-infrastructuur;
• Bekabeling;
• Gedeeltelijke zonwering.
PARKEREN
Op eigen terrein zijn tot negen parkeerplaatsen beschikbaar. Het huuraanbod gaat uit van vijf toegewezen parkeerplaatsen, maar andere aantallen zijn bespreekbaar. Op de openbare weg is betaald parkeren mogelijk.
BESTEMMING
Kantoorruimte
Informatie inzake gebruiksmogelijkheden en voorschriften is te verkrijgen via ons kantoor, bij de gemeente of via de website van ruimtelijke plannen.
HUURPRIJS
Gehele object
€ 35.000,- per jaar, te vermeerderen met de geldende BTW.
Unit 1 – Begane grond
€ 15.000,- per jaar, te vermeerderen met de geldende BTW.
Unit 2 – 1e verdieping + zolder
€ 14.000,- per jaar, te vermeerderen met de geldende BTW.
BTW
Uitgangspunt is een met BTW belaste huurprijs. Indien een huurder niet voldoet aan de voor belaste verhuur gestelde criteria zal de huurprijs zodanig worden verhoogd dat het voor verhuurder ontstane financiële nadeel volledig wordt gecompenseerd.
SERVICEKOSTEN
Geen servicekosten.
Huurder zal voor eigen rekening en risico contracten met de nutsbedrijven afsluiten voor de levering en het verbruik van gas, water en elektriciteit.
ENERGIELABEL
De kantooretages zijn in 2022 geheel in lijn gebracht met de energienormen. Afhankelijk van het gewenste gebruik zal dit ook in overleg plaatsvinden voor de zolderetage.
HUURTERMIJN
Huurperiode van 5 jaar gevolgd door verlengingstermijnen van telkens 5 jaar.
OPZEGTERMIJN
12 maanden.
ZEKERHEIDSTELLING
Een bankgarantie ter grootte van drie maanden huur en servicekosten te vermeerderen met de geldende BTW.
HUURINDEXATIE
De huurprijs zal jaarlijks, voor het eerst 1 jaar na de huuringangsdatum, worden verhoogd op basis van de consumentenprijsindex (CPI) zoals wordt gepubliceerd door het Centraal Bureau voor de Statistiek (CBS).
HUUROVEREENKOMST
De huurovereenkomst zal zijn gebaseerd op het model zoals is vastgesteld door de Raad voor Onroerende Zaken (ROZ) 2025, inclusief de algemene bepalingen.
AANVAARDING
In overleg.
Features
Transfer of ownership
- Rental price
- € 35,000 per year
- Service charges
- No service charges known
- Listed since
-
- Status
- Available
- Acceptance
- Available in consultation
Construction
- Main use
- Office
- Building type
- Resale property
- Year of construction
- 1920
Surface areas
- Area
- 179 m²
Layout
- Number of floors
- 4 floors
- Facilities
- Windows can be opened
Energy
- Energy label
- Not available
Surroundings
- Location
- Town center
- Accessibility
- Dutch Railways Intercity station in 500 m to 1000 m and motorway exit in 500 m to 1000 m
NVM real estate agent
Photos