Description
Op een uitstekende ZICHTLOCATIE aan de rand van de gewilde wijk ‘Keizer Karelpark’ bieden wij een VRIJSTAAND, multifunctioneel BEDRIJFS-/KANTOORGEBOUW met dubbele entree en royaal op het zuiden geleden dakterras ter grootte van ca. 557 m² BVO TE KOOP aan.
Algemeen:
Het object biedt een unieke mogelijkheid tot het vestigen van een eigen onderneming t.bv. een representatief kantoor met uitstekende parkeermogelijkheden.
Qua ligging is er een ideale combinatie van zichtbaarheid en bereikbaarheid, maar is het object tegelijkertijd rustig gelegen met goede parkeergelegenheid direct voor de deur.
Naast de voorzieningen van het Stadshart en het wijkwinkelcentrum aan de van der Hooplaan, bevinden zich ook de winkels, gezellige terrassen en horecagelegenheden in het Oude Dorp van Amstelveen in directe nabijheid.
Het object is verdeeld over twee appartementsrechten met de verdeling enerzijds begane grond + 1e verdieping en anderzijds 2e verdieping inclusief dakterras. Het object is toegankelijk zowel via de entree aan de straatzijde, alsmede via de entree aan de achterkant van het complex.
Hoewel het object momenteel de enkelbestemming kantoor heeft, is er veel potentie om na toestemming van de gemeente het object in een maatschappelijk functie te gebruiken, bijvoorbeeld ten behoeve van (para-)medici.
Oppervlakte:
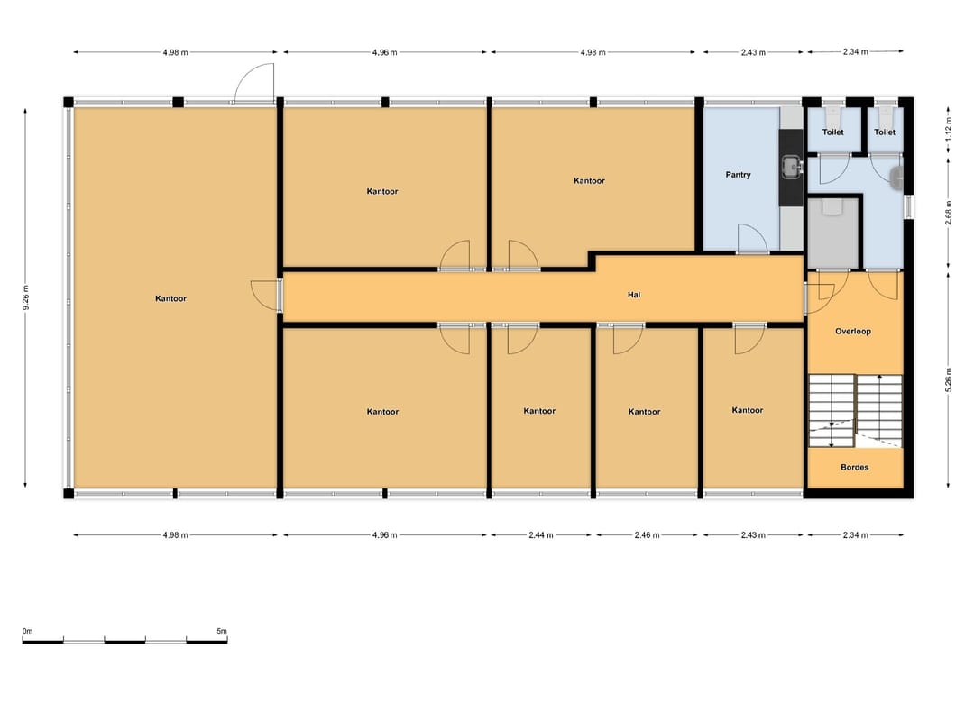
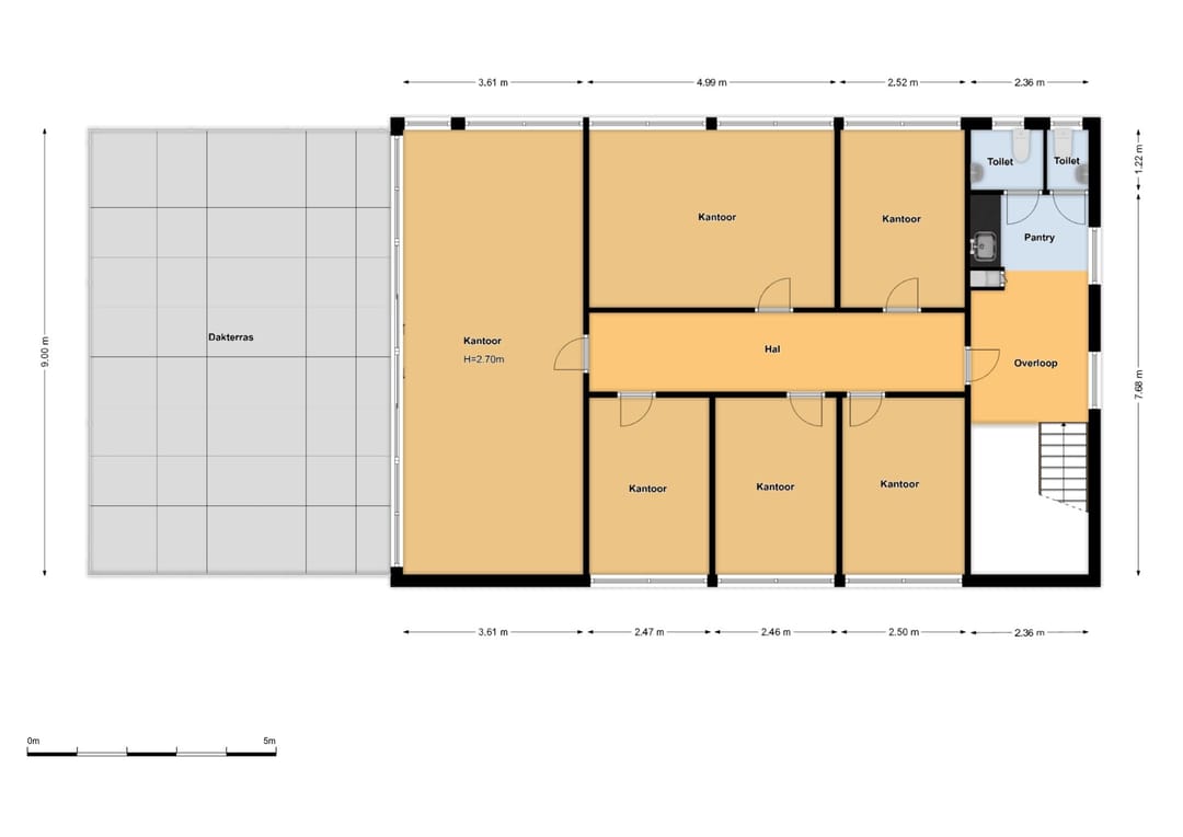
Het object heeft in totaal een oppervlakte van ca. 557 m² BVO / 490 m² VVO met daarbij een royaal dakterras verdeeld over:
- Begane grond: ca. 199 m² VVO;
- 1e verdieping: ca. 174 m² VVO;
- 2e verdieping: ca. 117 m² VVO en ca. 62 m² terras.
Bestemming:
Conform het vigerende bestemmingsplan “Amstelveen Midden West 2022” d.d. 14 december 2022 kent het object de enkelbestemming ‘Kantoor’.
Voor actuele informatie, een uitgebreide bestemmingsomschrijving en het nagaan of het object voor koper geschikt is qua bestemming, verwijzen wij u naar de gemeente Amstelveen, afdeling Ruimtelijke Ordening.
Bereikbaarheid:
Komt u met de auto?
Het object kent een uitstekende ligging nabij het Stadshart en winkelcentrum van Amstelveen en vlakbij de op- en afrit van A9 Amstelveen centrum alsmede de nabij gelegen “Beneluxbaan” en daarmee op minder dan 15 minuten rijden van Amsterdam Zuidas en Luchthaven Schiphol.
Komt u met het OV?
Op zo’n 2 minuten lopen bevindt zich bushalte ‘Handweg’ en hier vandaan verbindt de buslijn 171 u in ca. 5 minuten met Amstelveen Stadshart en in ca. 20 minuten met NS-Station Amsterdam-Zuidoost. Ook via tram 5 (Amstelveen Binnenhof, via Amsterdam-Zuid naar Amsterdam CS), heeft het kantoorgebouw een goede bereikbaarheid.
Door de centrale ligging in Amstelveen is het pand ook goed te voet of met de fiets bereikbaar.
Parkeergelegenheid:
Er is voldoende (gratis) parkeergelegenheid in de omgeving, op de openbare weg.
Bouwjaar:
Omstreeks 1967.
Energielabel gebouw:
Het gehuurde beschikt over een EPA-certificaat labelklasse: F
EP1: 205,45 kWh (energiebehoefte – schil object)
EP2: 281,33 kWh (primair fossiel energiegebruik)
EP3: 0,0 % (hernieuwbare energie)
Geldig t/m 04-12-2035
Kadastrale gegevens:
Kantoorruimte plaatselijk bekend gemeente Amstelveen, sectie M, nummer 6012 A1 en A2.
Bankgarantie/waarborgsom:
Waarborgsom/bankgarantie: 10% van de koopsom, door koper te voldoen uiterlijk 2 weken na ondertekenen koopakte.
BTW:
Niet van toepassing.
Oplevering:
Oplevering en aanvaarding in overleg, kan spoedig.
Huursituatie:
Het pand wordt vrij van huur en gebruik opgeleverd.
Procedure verkoop:
Deze brochure dient als informatieve propositie en zal als uitgangspunt dienen ten behoeve van gegadigden.
Bezichtigingen
Blauwman Bedrijfsmakelaars zal het informatie-, biedings-, koop- en leveringsproces begeleiden en gegadigden, op afspraak, in de gelegenheid stellen het object te bezichtigen.
Biedingen
Graag ontvangen wij biedingen met de eventueel daaraan verbonden voorwaarden schriftelijk, waarna beoordeling en een beslissing vanuit verkoper zal plaatsvinden.
Verkoper behoudt zich het recht voor de procedure tussentijds te wijzigen en zal in dat geval bekende partijen op de hoogte stellen. Dat betekent dat afhankelijk van de uitkomst van het verkoopproces, opdrachtgever ervoor kan kiezen het object (alsnog) openbaar op de markt aan te melden.
Bijzonderheden:
Definitieve gunning eigenaar voorbehouden.
Het koopcontract wordt gemaakt door de notaris, gevestigd in Amsterdam, Amstelveen, Diemen, Uithoorn, Badhoevedorp, Mijdrecht, Abcoude of Aalsmeer. Het koopcontract dat gebruikt wordt is het model Ring Amsterdam. De keuze van het notariskantoor is aan de koper, tenzij anders aangegeven in deze brochure.
Koper dient binnen twee werkdagen na het bereiken van de mondelinge overeenstemming inzake de koopsom en de voorwaarden een notaris aan te wijzen. Indien koper binnen deze periode geen notaris heeft aangewezen heeft verkoper het recht deze aan te wijzen.
Deze informatie is door ons met de nodige zorgvuldigheid samengesteld. Onzerzijds wordt echter geen enkele aansprakelijkheid aanvaard voor enige onvolledigheid, onjuistheid of anderszins, dan wel de gevolgen daarvan.
Alle vermelde omschrijvingen, afmetingen, beschrijvingen van de toestand, vergunningen die eventueel voor gebruik of uitvoering benodigd zijn, en de overige informatie en specificaties zijn te goeder trouw vermeld. Een (aanstaande) koper kan en mag echter niet op de juistheid en volledigheid van die informatie vertrouwen en dient door eigen onderzoek zichzelf ervan te vergewissen dat die vermelde informatie juist en volledig is.
De oppervlakte is met grootst mogelijke zorgvuldigheid gemeten, maar biedt geen garantie en er kunnen geen rechten aan worden ontleend.
Erfdienstbaarheden/bijzondere bepalingen: zoals vermeld in de akte van levering, op aanvraag verkrijgbaar.
Clausules:
Bij verkoop zullen o.a. de navolgende extra bepalingen in de koopakte worden opgenomen.
As-is-where-is
Levering en aanvaarding vindt plaats op basis van ‘as-is-where-is’.
De koper aanvaardt het registergoed in alle opzichten op basis van het ‘as-is-where-is’ principe, waaronder onder meer bedoeld de bouwkundige, juridische, milieukundige, technische en feitelijke toestand waarin het registergoed zich bevindt en de koper heeft terzake van deze staat van het registergoed geen enkele aanspraak, hoe ook genaamd, jegens verkoper. In aanvulling op het vorenstaande geeft verkoper geen garantie en aanvaarden geen aansprakelijkheid omtrent datgene wat zij terzake juistheid en van het registergoed mededelen, of waarvan mededeling achterwege blijft.
Niet zelf-bewoningsclausule
Koper is ermee bekend dat verkoper het verkochte nooit zelf feitelijk heeft gebruikt en dat verkoper derhalve koper niet kan informeren over eigenschappen respectievelijk gebreken aan het verkochte waarvan verkoper op de hoogte zou kunnen zijn geweest als hij het verkochte zelf feitelijk had gebruikt. In verband hiermee zijn partijen, in afwijking van artikel 7:17 lid 1 en 2 BW, overeengekomen dat dergelijke eigenschappen respectievelijk gebreken voor rekening en risico van koper komen en dat hier bij de vaststelling van de koopsom rekening mee is gehouden. Koper vrijwaart verkoper voor alle eventuele aanspraken van derden.
Asbest
In de onroerende zaak kunnen asbesthoudende stoffen en/of materialen aanwezig zijn. Indien deze worden verwijderd dienen door koper maatregelen en voorzieningen te worden getroffen die de wetgeving voorschrijft. Koper verklaart met deze wetgeving bekend te zijn en aanvaardt alle aansprakelijkheid en gevolgen die uit de aanwezigheid van asbest en/of de verwijdering van asbest uit de onroerende zaak kan voortvloeien. Het geheel of ten dele ontbreken van één of meer eigenschappen van de onroe¬rende zaak voor normaal en bijzonder gebruik en het eventueel anderszins niet-beantwoorden van de zaak aan de overeenkomst als gevolg van de aanwezigheid van enig asbest in welke samenstelling en/of op welke plaats dan ook voor rekening en risico van koper. Bij het vaststellen van de koopsom is hier rekening mee gehouden.
Voor meer informatie kunt u contact opnemen met Blauwman Bedrijfsmakelaars, tel.: 020-215 8800.
Algemeen:
Het object biedt een unieke mogelijkheid tot het vestigen van een eigen onderneming t.bv. een representatief kantoor met uitstekende parkeermogelijkheden.
Qua ligging is er een ideale combinatie van zichtbaarheid en bereikbaarheid, maar is het object tegelijkertijd rustig gelegen met goede parkeergelegenheid direct voor de deur.
Naast de voorzieningen van het Stadshart en het wijkwinkelcentrum aan de van der Hooplaan, bevinden zich ook de winkels, gezellige terrassen en horecagelegenheden in het Oude Dorp van Amstelveen in directe nabijheid.
Het object is verdeeld over twee appartementsrechten met de verdeling enerzijds begane grond + 1e verdieping en anderzijds 2e verdieping inclusief dakterras. Het object is toegankelijk zowel via de entree aan de straatzijde, alsmede via de entree aan de achterkant van het complex.
Hoewel het object momenteel de enkelbestemming kantoor heeft, is er veel potentie om na toestemming van de gemeente het object in een maatschappelijk functie te gebruiken, bijvoorbeeld ten behoeve van (para-)medici.
Oppervlakte:
Het object heeft in totaal een oppervlakte van ca. 557 m² BVO / 490 m² VVO met daarbij een royaal dakterras verdeeld over:
- Begane grond: ca. 199 m² VVO;
- 1e verdieping: ca. 174 m² VVO;
- 2e verdieping: ca. 117 m² VVO en ca. 62 m² terras.
Bestemming:
Conform het vigerende bestemmingsplan “Amstelveen Midden West 2022” d.d. 14 december 2022 kent het object de enkelbestemming ‘Kantoor’.
Voor actuele informatie, een uitgebreide bestemmingsomschrijving en het nagaan of het object voor koper geschikt is qua bestemming, verwijzen wij u naar de gemeente Amstelveen, afdeling Ruimtelijke Ordening.
Bereikbaarheid:
Komt u met de auto?
Het object kent een uitstekende ligging nabij het Stadshart en winkelcentrum van Amstelveen en vlakbij de op- en afrit van A9 Amstelveen centrum alsmede de nabij gelegen “Beneluxbaan” en daarmee op minder dan 15 minuten rijden van Amsterdam Zuidas en Luchthaven Schiphol.
Komt u met het OV?
Op zo’n 2 minuten lopen bevindt zich bushalte ‘Handweg’ en hier vandaan verbindt de buslijn 171 u in ca. 5 minuten met Amstelveen Stadshart en in ca. 20 minuten met NS-Station Amsterdam-Zuidoost. Ook via tram 5 (Amstelveen Binnenhof, via Amsterdam-Zuid naar Amsterdam CS), heeft het kantoorgebouw een goede bereikbaarheid.
Door de centrale ligging in Amstelveen is het pand ook goed te voet of met de fiets bereikbaar.
Parkeergelegenheid:
Er is voldoende (gratis) parkeergelegenheid in de omgeving, op de openbare weg.
Bouwjaar:
Omstreeks 1967.
Energielabel gebouw:
Het gehuurde beschikt over een EPA-certificaat labelklasse: F
EP1: 205,45 kWh (energiebehoefte – schil object)
EP2: 281,33 kWh (primair fossiel energiegebruik)
EP3: 0,0 % (hernieuwbare energie)
Geldig t/m 04-12-2035
Kadastrale gegevens:
Kantoorruimte plaatselijk bekend gemeente Amstelveen, sectie M, nummer 6012 A1 en A2.
Bankgarantie/waarborgsom:
Waarborgsom/bankgarantie: 10% van de koopsom, door koper te voldoen uiterlijk 2 weken na ondertekenen koopakte.
BTW:
Niet van toepassing.
Oplevering:
Oplevering en aanvaarding in overleg, kan spoedig.
Huursituatie:
Het pand wordt vrij van huur en gebruik opgeleverd.
Procedure verkoop:
Deze brochure dient als informatieve propositie en zal als uitgangspunt dienen ten behoeve van gegadigden.
Bezichtigingen
Blauwman Bedrijfsmakelaars zal het informatie-, biedings-, koop- en leveringsproces begeleiden en gegadigden, op afspraak, in de gelegenheid stellen het object te bezichtigen.
Biedingen
Graag ontvangen wij biedingen met de eventueel daaraan verbonden voorwaarden schriftelijk, waarna beoordeling en een beslissing vanuit verkoper zal plaatsvinden.
Verkoper behoudt zich het recht voor de procedure tussentijds te wijzigen en zal in dat geval bekende partijen op de hoogte stellen. Dat betekent dat afhankelijk van de uitkomst van het verkoopproces, opdrachtgever ervoor kan kiezen het object (alsnog) openbaar op de markt aan te melden.
Bijzonderheden:
Definitieve gunning eigenaar voorbehouden.
Het koopcontract wordt gemaakt door de notaris, gevestigd in Amsterdam, Amstelveen, Diemen, Uithoorn, Badhoevedorp, Mijdrecht, Abcoude of Aalsmeer. Het koopcontract dat gebruikt wordt is het model Ring Amsterdam. De keuze van het notariskantoor is aan de koper, tenzij anders aangegeven in deze brochure.
Koper dient binnen twee werkdagen na het bereiken van de mondelinge overeenstemming inzake de koopsom en de voorwaarden een notaris aan te wijzen. Indien koper binnen deze periode geen notaris heeft aangewezen heeft verkoper het recht deze aan te wijzen.
Deze informatie is door ons met de nodige zorgvuldigheid samengesteld. Onzerzijds wordt echter geen enkele aansprakelijkheid aanvaard voor enige onvolledigheid, onjuistheid of anderszins, dan wel de gevolgen daarvan.
Alle vermelde omschrijvingen, afmetingen, beschrijvingen van de toestand, vergunningen die eventueel voor gebruik of uitvoering benodigd zijn, en de overige informatie en specificaties zijn te goeder trouw vermeld. Een (aanstaande) koper kan en mag echter niet op de juistheid en volledigheid van die informatie vertrouwen en dient door eigen onderzoek zichzelf ervan te vergewissen dat die vermelde informatie juist en volledig is.
De oppervlakte is met grootst mogelijke zorgvuldigheid gemeten, maar biedt geen garantie en er kunnen geen rechten aan worden ontleend.
Erfdienstbaarheden/bijzondere bepalingen: zoals vermeld in de akte van levering, op aanvraag verkrijgbaar.
Clausules:
Bij verkoop zullen o.a. de navolgende extra bepalingen in de koopakte worden opgenomen.
As-is-where-is
Levering en aanvaarding vindt plaats op basis van ‘as-is-where-is’.
De koper aanvaardt het registergoed in alle opzichten op basis van het ‘as-is-where-is’ principe, waaronder onder meer bedoeld de bouwkundige, juridische, milieukundige, technische en feitelijke toestand waarin het registergoed zich bevindt en de koper heeft terzake van deze staat van het registergoed geen enkele aanspraak, hoe ook genaamd, jegens verkoper. In aanvulling op het vorenstaande geeft verkoper geen garantie en aanvaarden geen aansprakelijkheid omtrent datgene wat zij terzake juistheid en van het registergoed mededelen, of waarvan mededeling achterwege blijft.
Niet zelf-bewoningsclausule
Koper is ermee bekend dat verkoper het verkochte nooit zelf feitelijk heeft gebruikt en dat verkoper derhalve koper niet kan informeren over eigenschappen respectievelijk gebreken aan het verkochte waarvan verkoper op de hoogte zou kunnen zijn geweest als hij het verkochte zelf feitelijk had gebruikt. In verband hiermee zijn partijen, in afwijking van artikel 7:17 lid 1 en 2 BW, overeengekomen dat dergelijke eigenschappen respectievelijk gebreken voor rekening en risico van koper komen en dat hier bij de vaststelling van de koopsom rekening mee is gehouden. Koper vrijwaart verkoper voor alle eventuele aanspraken van derden.
Asbest
In de onroerende zaak kunnen asbesthoudende stoffen en/of materialen aanwezig zijn. Indien deze worden verwijderd dienen door koper maatregelen en voorzieningen te worden getroffen die de wetgeving voorschrijft. Koper verklaart met deze wetgeving bekend te zijn en aanvaardt alle aansprakelijkheid en gevolgen die uit de aanwezigheid van asbest en/of de verwijdering van asbest uit de onroerende zaak kan voortvloeien. Het geheel of ten dele ontbreken van één of meer eigenschappen van de onroe¬rende zaak voor normaal en bijzonder gebruik en het eventueel anderszins niet-beantwoorden van de zaak aan de overeenkomst als gevolg van de aanwezigheid van enig asbest in welke samenstelling en/of op welke plaats dan ook voor rekening en risico van koper. Bij het vaststellen van de koopsom is hier rekening mee gehouden.
Voor meer informatie kunt u contact opnemen met Blauwman Bedrijfsmakelaars, tel.: 020-215 8800.
Map
Map is loading...
Cadastral boundaries
Buildings
Travel time
Gain insight into the reachability of this object, for instance from a public transport station or a home address.