Rapenburg 89-A 1011 TW Amsterdam

€ 9,500 p/mo.

Description

Op een prachtige locatie in het centrum van Amsterdam bieden wij een representatieve kantoorruimte aan op een uitstekende zicht-locatie. Het pand wordt volledig turn-key opgeleverd en direct klaar voor gebruik.

Het kantoor is onderdeel van een nieuwproject op een historische locatie in het verlengde van de Valkenburgerstraat. Dit stijlvolle afwerking en indeling combineert comfort, uitstraling en functionaliteit. Door de grote raampartijen rondom het kantoor en het vele daglicht, is dit een inspirerende werkplek !

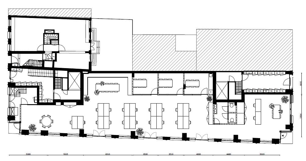
Indeling:

Begane grond: 270 m2
- toiletgroep;
- 3 vergaderruimten;
- lunchruimte incl. luxe keuken;
- 20 werkplekken;

Souterrain: 30m2
- opslagruimte
- technische ruimte

Locatie & bereikbaarheid
Rapenburg is een voormalig eiland gebouwd voor de scheepsbouw in Amsterdam. Op dit moment is Rapenburg een belangrijke verkeersader tussen Amsterdam-Noord en het Centrum van Amsterdam. Door de IJ-tunnel en de Valkenburgerstraat is de locatie uitstekend bereikbaar per auto. Parkeren is mogelijk in parkeergarage Markenhoven.

- Met de auto via de S112 en S116
- Met het openbaar vervoer (Centraal Station op 15 min loopafstand)
- Fietsend binnen 5 minuten van Amsterdam Centraal.

Interesse? Neem contact met ons op voor een bezichtiging of meer informatie.

Bestemming: conform bestemmingsplan, gemengd-4

Opleveringsniveau:
De kantoorruimte wordt in turn-key staat opgeleverd. Het betreft een hoogwaardig afwerkingsniveau, onder andere voorzien van:

- Representatieve entree;
- Drieruime vergaderruimtes;
- Panty voorzien van inbouwapparatuur;
- Lunchruimte
- Toiletgroep;
- Vloerafwerking;
- Gestuukte en geschilderde wanden;
- Akoestisch plafond;
- Verlichtingsarmaturen;

VOORWAARDEN EN CONDITIES
ROZ huurovereenkomst
Er zal gewerkt worden langs de lijnen van een standaard model kantoorruimte, zoals opgesteld door de Raad voor Onroerende Zaken (ROZ) model 2025, zoals gehanteerd door de Nederlandse Vereniging van Makelaars in onroerende goederen (NVM).

Huurtermijn
5 (vijf) jaren met een verlengingsperiode van 5 (vijf) jaren. Afwijkende huurtermijnen in overleg.

Voorschot servicekosten
Nader te bepalen
* huurder dient zelf contracten af te sluiten met de betreffende leveranciers voor de levering van gas/water/elektra en eventuele overige voorzieningen.

Zekerheidsstelling
Waarborgsom ter grootte van een bedrag gelijk aan 3 (drie) maanden huur en servicekosten, te vermeerderen met BTW, afhankelijk van de te verkrijgen kredietinformatie.

Huurprijsindexering
De huurprijs wordt jaarlijks geïndexeerd, op basis van het prijsindexcijfer volgens de consumentenprijsindex (CPI) reeks Alle Huishoudens (2015 = 100) gepubliceerd door het Centraal Bureau voor de Statistiek (CBS).

Opzegtermijn
Beëindiging van deze overeenkomst vindt plaats door opzegging tegen het einde van een huurperiode met inachtneming van een opzegtermijn van tenminste 12 maanden, waarbij verhuurder de wettelijke opzeggingsgronden in acht neemt.

BTW
Er zal geopteerd worden voor BTW belaste verhuur. Huurder dient derhalve voor meer dan 90% BTW belaste leveringen en diensten blijvend te leveren.

Administratiekosten
€ 300,- excl. btw (eenmalig bij totstandkoming van de huurovereenkomst).

DISCLAIMER
Alle gepresenteerde informatie is met de grootst mogelijke zorg samengesteld. Aan deze informatie kunnen geen rechten worden ontleend.

Goedkeuring
Het bovenstaande is onder finaal voorbehoud van de eigenaar.

Disclaimer: Ondanks dat deze publicatie met de grootst mogelijke zorgvuldigheid is samengesteld is de Online Bedrijfsmakelaar BV niet aansprakelijk te stellen voor onjuiste of onvolledige informatie die in deze publicatie vermeld staan. Aan deze gegevens kunnen geen rechten worden ontleend.

====================

Alle beschikbare informatie ontvangen?

Benieuwd naar alle beschikbare informatie over het pand? Vraag dan nu, onder de grote contactbutton, de gratis objectbrochure van de Rapenburg 89 A in Amsterdam aan en ontvang de objectbrochure binnen 5 minuten in uw mailbox. Uiteraard kunt u ook direct een geheel vrijblijvende bezichtiging met de beheerder van het pand inplannen.

Features

Transfer of ownership

Rental price
€ 9,500 per month
First rental price
€ 9,375 per month
Service charges
No service charges known
Listed since
Status
Available
Acceptance
Available in consultation

Construction

Main use
Office
Building type
Resale property
Year of construction
2020

Surface areas

Area
300 m²

Layout

Number of floors
2 floors
Facilities
Built-in fittings, toilet and pantry

Energy

Energy label
Not required

Surroundings

Location
Town center

Map

Map is loading...

Cadastral boundaries Buildings

Travel time

Gain insight into the reachability of this object, for instance from a public transport station or a home address.

Rapenburg 89-A

€ 9,500 p/mo.