Ceintuurbaan 224-H 1072 GE Amsterdam

€ 2,480 p/mo.

Description

SPECIFICATIES
Type: Kantoorruimte, Winkel
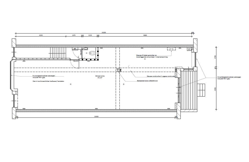
Oppervlakte: 74.7 m² VVO
Huurprijs: € 2.480,- excl. BTW per maand
Servicekosten; N.t.b.
Beschikbaar vanaf: Q3 2026

Aan de populaire Ceintuurbaan komt beschikbaar, deze gerenoveerde winkelruimte van circa 74 m2. De locatie beidt uitstekende zichtbaarheid en een constante stroom passanten, ideaal voor detailhandel of een kantoorruimte. Dankzij de centrale ligging, het diverse winkelaanbod in de omgeving en de goede bereikbaarheid is dit een zeer aantrekkelijke plek voor ondernemers die zichtbaarheid en looptraffic zoeken.

Locatie & bereikbaarheid:

Uitstekende bereikbaarheid dankzij meerdere tram- en bushaltes op loopafstand, terwijl ook Station De Pijp (Noord/Zuidlijn) snel bereikbaar is. De Ceintuurbaan vormt een belangrijke verbindingsroute door de wijk.

Bestemming: conform bestemmingsplan, gemengd-1:

- Detailhandel;
- Dienstverlening;
- Ambachtelijk bedrijf;
- Kantoor.

Opleveringsniveau:
Casco plus oplevering met de volgende voorzieningen:

- Toilet met fonteintje
- Cv-ketel met radiatoren
- Geëgaliseerde vloer
- Gestucte wanden
- Aansluitingen voor pantry (plaatsen van pantry in overleg)

VOORWAARDEN EN CONDITIES
ROZ huurovereenkomst
Er zal gewerkt worden langs de lijnen van een standaard model, zoals opgesteld door de Raad voor Onroerende Zaken (ROZ) model, zoals gehanteerd door de Nederlandse Vereniging van Makelaars in onroerende goederen (NVM).

Huurtermijn
5 (vijf) jaren met een verlengingsperiode van 5 (vijf) jaren. Afwijkende huurtermijnen in overleg.

Voorschot servicekosten
N.t.b. excl. BTW per maand
* huurder dient zelf contracten af te sluiten met de betreffende leveranciers voor de levering van gas/water/elektra en eventuele overige voorzieningen.

Zekerheidsstelling
Er dient een waarborgsom of bankgarantie gesteld te worden ter grootte van een bedrag gelijk aan 3 (drie) maanden huur en servicekosten, te vermeerderen met BTW, afhankelijk van de te verkrijgen kredietinformatie.

Huurprijsindexering
De huurprijs wordt jaarlijks geïndexeerd, op basis van het prijsindexcijfer volgens de consumentenprijsindex (CPI) gepubliceerd door het Centraal Bureau voor de Statistiek (CBS).

Opzegtermijn
Beëindiging van deze overeenkomst vindt plaats door opzegging tegen het einde van een huurperiode met inachtneming van een opzegtermijn van tenminste 12 maanden, waarbij verhuurder de wettelijke opzeggingsgronden in acht neemt.

BTW
Er zal geopteerd worden voor BTW belaste verhuur. Huurder dient derhalve voor meer dan 90% BTW belaste leveringen en diensten blijvend te leveren.

Administratiekosten
€ 300,- excl. btw (eenmalig bij totstandkoming van de huurovereenkomst).

GOEDKEURING
Het bovenstaande is onder finaal voorbehoud van de eigenaar.

Disclaimer: Ondanks dat deze publicatie met de grootst mogelijke zorgvuldigheid is samengesteld is de Online Bedrijfsmakelaar BV niet aansprakelijk te stellen voor onjuiste of onvolledige informatie die in deze publicatie vermeld staan. Aan deze gegevens kunnen geen rechten worden ontleend.

====================

Alle beschikbare informatie ontvangen?

Benieuwd naar alle beschikbare informatie over het pand? Vraag dan nu, onder de grote contactbutton, de gratis objectbrochure van de Ceintuurbaan 224 H in Amsterdam aan en ontvang de objectbrochure binnen 5 minuten in uw mailbox. Uiteraard kunt u ook direct een geheel vrijblijvende bezichtiging met de beheerder van het pand inplannen.

Features

Transfer of ownership

Rental price
€ 2,480 per month
Service charges
No service charges known
Listed since
Status
Available
Acceptance
Available in consultation

Construction

Main use
Office
Alternative use(s)
Retail space
Building type
Resale property
Year of construction
1900

Surface areas

Area
75 m²

Layout

Number of floors
1 floor
Facilities
Toilet and pantry

Energy

Energy label
A

Surroundings

Location
Town center and in residential district

Map

Map is loading...

Cadastral boundaries Buildings

Travel time

Gain insight into the reachability of this object, for instance from a public transport station or a home address.

Ceintuurbaan 224-H

€ 2,480 p/mo.