Binnenkadijk 189 1018 ZE Amsterdam
€ 425,000 k.k.
Description
Binnenkadijk 189
Pakhuys Elburg-Franeker
Unieke koopmogelijkheid voor een kantoorruimte in een historisch pakhuis aan het Entrepotdok aan de oostkant van het centrum van Amsterdam. De kantoorruimte maakt onderdeel uit van een voormalig pakhuizencomplex welke gelegen is in directe nabijheid van Artis, de IJ-tunnel en het Centraal Station. Het pakhuizencomplex is gekenmerkt als rijksmonument.
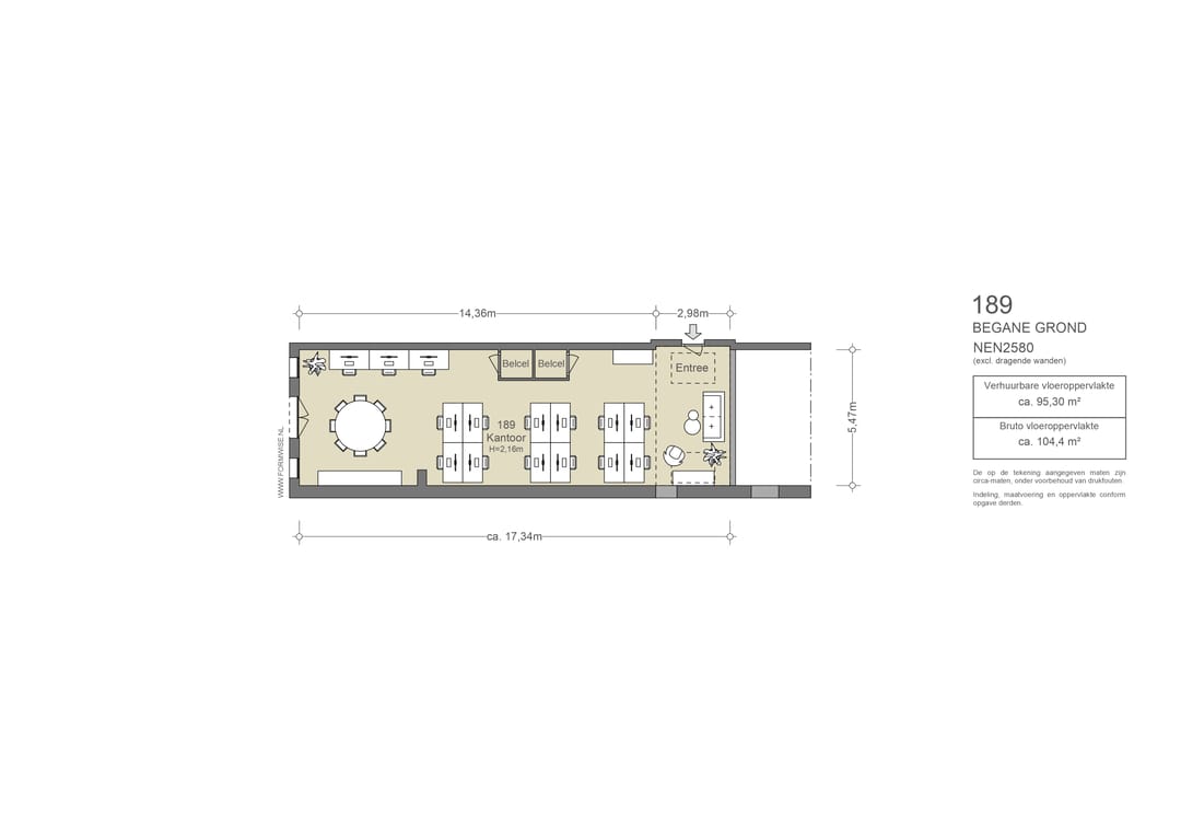
De kantoorruimte is circa 95 m² VVO en gelegen op de begane grond. Het betreft de Binnenkadijk 189 (1 appartementsrecht) welke gelegen is op erfpacht grond en waarvoor de voortdurende erfpacht is afgekocht tot en met 31 oktober 2037.
Gebouw
Het pakhuis is gebouwd als onderdeel van een pakhuizencomplex. Kenmerkend voor het rijksmonument is de tuitgevel. Het Entrepotdok is gebouwd in opdracht van de rijksoverheid. Het dok is aangelegd in 1827, ingevoerde goederen moesten hier worden opgeslagen tot de invoerrechten waren betaald. Het complex bestaat uit magazijnen, kaden en havens. Alle 84 pakhuizen aan het Entrepotdok hebben nu de status 'beschermd monument'.
Buurt + hotspots
Het Entrepotdok is het grootste bewoonde pakhuizencomplex van Amsterdam en betreft een mix tussen wonen en werken. Naast een prestigieus woongebied, kenmerken de Kadijken zich ook als een werkgebied waar diverse creatieve bedrijven en organisaties zijn gevestigd.
Bereikbaarheid
Het Pakhuys is vanwege haar ligging nabij de IJ-tunnel uitstekend bereikbaar met de auto. Via de S-116 is de kantoorruimte vanaf afrit 16 ringweg A-10 (Noord) binnen 10 minuten te bereiken. Op loopafstand aan de Wittenburgergracht is de bushalte van lijn 22 gelegen welke een directe verbindingen met het Centraal Station heeft. Tevens is aan de Sarphatistraat ook de tramhalte van lijn 7 gelegen.
Parkeergelegenheid
Op acht minuten loopafstand is parkeergarage Markenhoven aan de Anne Frankstraat gelegen. Hier zijn verschillende parkeerabonnementen beschikbaar.
Bijzonderheden
• rijksmonument
• kantoorruimte in een pakhuis met authentieke charme
• een appartementsrecht
• erfpacht grond, afgekocht tot en met 31 oktober 2037
• oplevering leeg en vrij van huur
Pakhuys Elburg-Franeker
Unieke koopmogelijkheid voor een kantoorruimte in een historisch pakhuis aan het Entrepotdok aan de oostkant van het centrum van Amsterdam. De kantoorruimte maakt onderdeel uit van een voormalig pakhuizencomplex welke gelegen is in directe nabijheid van Artis, de IJ-tunnel en het Centraal Station. Het pakhuizencomplex is gekenmerkt als rijksmonument.
De kantoorruimte is circa 95 m² VVO en gelegen op de begane grond. Het betreft de Binnenkadijk 189 (1 appartementsrecht) welke gelegen is op erfpacht grond en waarvoor de voortdurende erfpacht is afgekocht tot en met 31 oktober 2037.
Gebouw
Het pakhuis is gebouwd als onderdeel van een pakhuizencomplex. Kenmerkend voor het rijksmonument is de tuitgevel. Het Entrepotdok is gebouwd in opdracht van de rijksoverheid. Het dok is aangelegd in 1827, ingevoerde goederen moesten hier worden opgeslagen tot de invoerrechten waren betaald. Het complex bestaat uit magazijnen, kaden en havens. Alle 84 pakhuizen aan het Entrepotdok hebben nu de status 'beschermd monument'.
Buurt + hotspots
Het Entrepotdok is het grootste bewoonde pakhuizencomplex van Amsterdam en betreft een mix tussen wonen en werken. Naast een prestigieus woongebied, kenmerken de Kadijken zich ook als een werkgebied waar diverse creatieve bedrijven en organisaties zijn gevestigd.
Bereikbaarheid
Het Pakhuys is vanwege haar ligging nabij de IJ-tunnel uitstekend bereikbaar met de auto. Via de S-116 is de kantoorruimte vanaf afrit 16 ringweg A-10 (Noord) binnen 10 minuten te bereiken. Op loopafstand aan de Wittenburgergracht is de bushalte van lijn 22 gelegen welke een directe verbindingen met het Centraal Station heeft. Tevens is aan de Sarphatistraat ook de tramhalte van lijn 7 gelegen.
Parkeergelegenheid
Op acht minuten loopafstand is parkeergarage Markenhoven aan de Anne Frankstraat gelegen. Hier zijn verschillende parkeerabonnementen beschikbaar.
Bijzonderheden
• rijksmonument
• kantoorruimte in een pakhuis met authentieke charme
• een appartementsrecht
• erfpacht grond, afgekocht tot en met 31 oktober 2037
• oplevering leeg en vrij van huur
Features
Transfer of ownership
- Asking price
- € 425,000 kosten koper
- Service charges
- No service charges known
- Listed since
-
- Status
- Available
- Acceptance
- Available in consultation
Construction
- Main use
- Office
- Building type
- Resale property
- Year of construction
- Before 1906
Surface areas
- Area
- 95 m²
Layout
- Number of floors
- 1 floor
- Facilities
- Windows can be opened, toilet, pantry and heating
Energy
- Energy label
- B
Surroundings
- Location
- In residential district and on navigable waterway
NVM real estate agent
Photos