Description
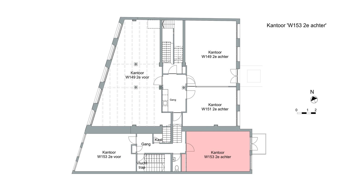
“W153 1e achter”
A renovated office with a clean, modern interior set inside a building that has been around for centuries. The space comes with two large sliding doors that open onto your own private roof terrace of 20m2 — a rare thing in the city, and on a sunny day it changes the whole feel of your workplace.
The office comfortably fits a team of up to five or six people. The building has a shared meeting room available to book by the hour and a shared pantry on the same floor. It draws a creative crowd — startups, independents, small studios — and there's a good amount of energy and inspiration to go around.
FACTS & FIGURES
- Net/gross area: 26 m2 / 33 m2
- Rental price (service costs € 195 included): € 1,950 excl. VAT
- Deposit excl. VAT: € 5,850
- Notice & renewal period: 1 full calendar quarter
FACILITIES
- In the service costs are included: heating, electricity, water, internet, meeting room, small maintenance, digital keys, municipal taxes
- High-speed fiber internet (1000/1000 Mbps) (back-up via Ziggo 1000/100 Mbps)
- 24/7 access with digital lock system
- Two shared meeting rooms available at no extra charge
- Shared pantry with dishwasher and refrigerator
- Toilets shared with other users
- Daily cleaning of toilets/pantry and weekly cleaning of office space
- Furniture (optional): standard table (150x75 cm) € 5 per month excl. VAT; black office chair € 10 per month excl. VAT
LOCATION
The area puts you right in the middle of Amsterdam's oldest and most storied neighbourhood. The streets around Warmoesstraat are full of places to eat and drink, from quiet spots for a working lunch to livelier options for after hours. The waterfront of the Damrak and the Amstel are on your doorstep, and the city's main museums, markets and shopping streets are all within easy reach on foot.
GETTING THERE
Warmoesstraat 149-151 is located in the heart of Amsterdam's city centre, right in the middle of the bustling old town. Amsterdam Centraal Station is within easy walking distance — roughly 8 to 10 minutes on foot, or a short ride on several tram and bus lines that stop nearby.
For more information about options and terms, please contact Downtown Offices at
A renovated office with a clean, modern interior set inside a building that has been around for centuries. The space comes with two large sliding doors that open onto your own private roof terrace of 20m2 — a rare thing in the city, and on a sunny day it changes the whole feel of your workplace.
The office comfortably fits a team of up to five or six people. The building has a shared meeting room available to book by the hour and a shared pantry on the same floor. It draws a creative crowd — startups, independents, small studios — and there's a good amount of energy and inspiration to go around.
FACTS & FIGURES
- Net/gross area: 26 m2 / 33 m2
- Rental price (service costs € 195 included): € 1,950 excl. VAT
- Deposit excl. VAT: € 5,850
- Notice & renewal period: 1 full calendar quarter
FACILITIES
- In the service costs are included: heating, electricity, water, internet, meeting room, small maintenance, digital keys, municipal taxes
- High-speed fiber internet (1000/1000 Mbps) (back-up via Ziggo 1000/100 Mbps)
- 24/7 access with digital lock system
- Two shared meeting rooms available at no extra charge
- Shared pantry with dishwasher and refrigerator
- Toilets shared with other users
- Daily cleaning of toilets/pantry and weekly cleaning of office space
- Furniture (optional): standard table (150x75 cm) € 5 per month excl. VAT; black office chair € 10 per month excl. VAT
LOCATION
The area puts you right in the middle of Amsterdam's oldest and most storied neighbourhood. The streets around Warmoesstraat are full of places to eat and drink, from quiet spots for a working lunch to livelier options for after hours. The waterfront of the Damrak and the Amstel are on your doorstep, and the city's main museums, markets and shopping streets are all within easy reach on foot.
GETTING THERE
Warmoesstraat 149-151 is located in the heart of Amsterdam's city centre, right in the middle of the bustling old town. Amsterdam Centraal Station is within easy walking distance — roughly 8 to 10 minutes on foot, or a short ride on several tram and bus lines that stop nearby.
For more information about options and terms, please contact Downtown Offices at
Map
Map is loading...
Cadastral boundaries
Buildings
Travel time
Gain insight into the reachability of this object, for instance from a public transport station or a home address.