Kabelweg 39-47 1014 BA Amsterdam
€ 235 /m²/year
Description
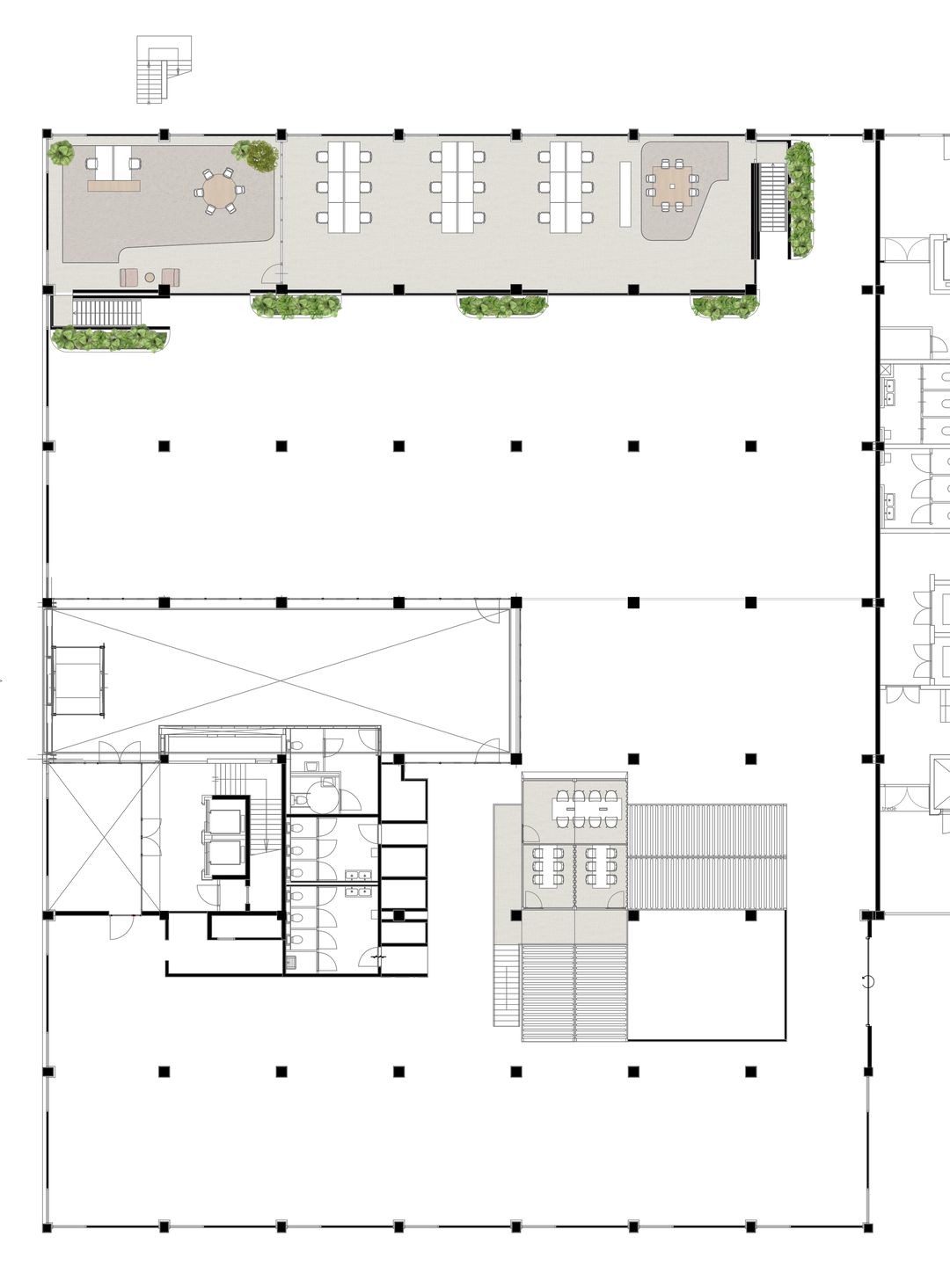
Het object “Go West Building” kent een totaal vloeroppervlakte van circa 17.500 m² v.v.o. kantoorruimte en is voorzien van onder meer een koffiebar, receptie en bedrijfsrestaurant dat wordt geëxploiteerd door WeCanteen. Het bedrijfsrestaurant biedt een gevarieerd aanbod aan eten en drinken en fungeert tevens als ontmoetingsplek voor sociale en zakelijke contacten voor huurders uit de omliggende kantoorgebouwen. Het gebouw is opgedeeld in twee intern verbonden gebouwen met elk 4 bouwlagen. Elk gebouw kent een eigen ingang, waarvan één hoofdentree aan de Kabelweg-zijde (entree gebouw B) en één ingang aan de snelwegzijde vanaf de parkeerplaats (entree gebouw A). Daarnaast ligt het gebouw op een zichtlocatie aan de A5. Er zijn drie ingangen.
Beschikbaarheid
Voor de verhuur is momenteel ca. 6.493,2 m² v.v.o. kantoorruimte beschikbaar in gebouw A, als volgt verdeeld:
- Begane grond 2.151,2 m² v.v.o. turn-key kantoorruimte;
- 2e verdieping 2.173 m² v.v.o. turn-key kantoorruimte;
- 3e verdieping 2.169 m² v.v.o. casco gerenoveerde kantoorruimte.
*Metrages zijn ondervoorbehoud van de nieuwe NEN-staat.
De begane grond en de tweede verdieping beschikken over een hoogwaardig inbouwpakket dat in 2021 is ingebouwd. Beide vloeren zijn voorzien van vloerbedekking, meubilair en meerdere vergaderruimtes. Daarnaast beschikken ze over een industrieel systeemplafond met LED-verlichtingsarmaturen met aanwezigheidsdetectie en een akoestisch spuitplafond.
Krachtstroom
Er is een professionele krachtstroomaansluiting, namelijk een 3-fasen aansluiting, minimale 3x400V met een vermogen van 63A tot 125A.
Opleveringsniveau
De begane grond en de tweede verdieping beschikken over een hoogwaardig inbouwpakket dat in 2021 is opgeleverd en beschikt over o.a.:
- Vloerbedekking;
- Meubilair (in overleg);
- Meerdere vergaderruimtes;
- Industrieel systeemplafond met akoestisch spuitwerk;
- LED-verlichtingsarmaturen met aanwezigheidsdetectie;
- Gerenoveerde sanitaire voorzieningen.
De 3e verdieping wordt in casco+ gerenoveerde staat opgeleverd. Met o.a:
- Led-verlichting;
- Installaties;
- Gesausde wanden;
- Gerenoveerde toiletgroepen;
- Vloerafwerking (in overleg met huurder);
- Pantry (in overleg met huurder).
Huurprijs
Begane grond & 2e verdieping: € 235,- per m² v.v.o. per jaar excl. BTW (ongemeubileerd).
3e verdieping: Op aanvraag
Parkeren: € 2.000,- per parkeerplaats per jaar excl. BTW.
Servicekosten
€ 60,- per m² v.v.o. per jaar, te vermeerderen met BTW als verrekenbaar voorschot.
Duurzaamheid
- Energielabel A+++;
- Het gebouw beschikt over een BREEAM-certificaat;
- Er liggen zonnepanelen op het dak; de opgewekte energie komt ten goede aan het gebouw en de gebruikers;
- Op het parkeerterrein zijn 26 laadpalen beschikbaar voor de gebruikers van het gebouw.
Parkeren
Parkeren kan rondom het gebouw. De parkeernorm is 1:90.
Daarnaast zijn er 26 elektrische laadpalen beschikbaar.
Beschikbaarheid
Voor de verhuur is momenteel ca. 6.493,2 m² v.v.o. kantoorruimte beschikbaar in gebouw A, als volgt verdeeld:
- Begane grond 2.151,2 m² v.v.o. turn-key kantoorruimte;
- 2e verdieping 2.173 m² v.v.o. turn-key kantoorruimte;
- 3e verdieping 2.169 m² v.v.o. casco gerenoveerde kantoorruimte.
*Metrages zijn ondervoorbehoud van de nieuwe NEN-staat.
De begane grond en de tweede verdieping beschikken over een hoogwaardig inbouwpakket dat in 2021 is ingebouwd. Beide vloeren zijn voorzien van vloerbedekking, meubilair en meerdere vergaderruimtes. Daarnaast beschikken ze over een industrieel systeemplafond met LED-verlichtingsarmaturen met aanwezigheidsdetectie en een akoestisch spuitplafond.
Krachtstroom
Er is een professionele krachtstroomaansluiting, namelijk een 3-fasen aansluiting, minimale 3x400V met een vermogen van 63A tot 125A.
Opleveringsniveau
De begane grond en de tweede verdieping beschikken over een hoogwaardig inbouwpakket dat in 2021 is opgeleverd en beschikt over o.a.:
- Vloerbedekking;
- Meubilair (in overleg);
- Meerdere vergaderruimtes;
- Industrieel systeemplafond met akoestisch spuitwerk;
- LED-verlichtingsarmaturen met aanwezigheidsdetectie;
- Gerenoveerde sanitaire voorzieningen.
De 3e verdieping wordt in casco+ gerenoveerde staat opgeleverd. Met o.a:
- Led-verlichting;
- Installaties;
- Gesausde wanden;
- Gerenoveerde toiletgroepen;
- Vloerafwerking (in overleg met huurder);
- Pantry (in overleg met huurder).
Huurprijs
Begane grond & 2e verdieping: € 235,- per m² v.v.o. per jaar excl. BTW (ongemeubileerd).
3e verdieping: Op aanvraag
Parkeren: € 2.000,- per parkeerplaats per jaar excl. BTW.
Servicekosten
€ 60,- per m² v.v.o. per jaar, te vermeerderen met BTW als verrekenbaar voorschot.
Duurzaamheid
- Energielabel A+++;
- Het gebouw beschikt over een BREEAM-certificaat;
- Er liggen zonnepanelen op het dak; de opgewekte energie komt ten goede aan het gebouw en de gebruikers;
- Op het parkeerterrein zijn 26 laadpalen beschikbaar voor de gebruikers van het gebouw.
Parkeren
Parkeren kan rondom het gebouw. De parkeernorm is 1:90.
Daarnaast zijn er 26 elektrische laadpalen beschikbaar.
Features
Transfer of ownership
- Rental price
- € 235 per square meter per year
- Service charges
- € 60 per square meter per year (21% VAT applies)
- Listed since
-
- Status
- Available
- Acceptance
- Available immediately
Construction
- Main use
- Office
- Building type
- Resale property
- Year of construction
- 1971
Surface areas
- Area
- 6,493 m² (units from 2,151 m²)
Layout
- Number of floors
- 3 floors
Energy
- Energy label
- A+++
Photos