Description
Het betreft een kantoor- en bedrijfsruimte gelegen op het bedrijventerrein Rijnpark te Arnhem aan de Mercatorweg 63-65 te Arnhem. Het pand bevindt zich aan de rand van de Arnhemse Binnenstad, wat zorgt voor een goede bereikbaarheid. Het betreft een bedrijfsverzamelgebouw, waarin er momenteel drie kantoorruimtes en één bedrijfsruimte te huur zijn.
Ligging
Het object ligt op bedrijventerrein 'Rijnpark'. Op het bedrijventerrein bevinden zich onder andere vestigingen van Gamma, Toolstation, Securitas en Kwik-Fit.
Bereikbaarheid
Het pand is met eigen vervoer alsmede met openbaar vervoer uitstekend bereikbaar. Met de auto zijn de snelwegen A12, A50 en de A325 binnen enkele minuten te bereiken. Aan de Westervoortsedijk bevindt zich een bushalte met een rechtstreekse verbinding naar NS station Arnhem Centraal.
Vloeroppervlakte
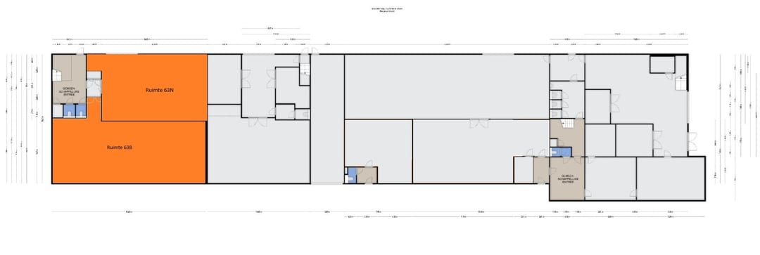
Het object heeft een totale oppervlakte van circa 1.791 m², waarvan circa 290,5 m² beschikbaar is voor de verhuur. De beschikbare oppervlakte is als volgt verdeeld:
Ruimte 63B Bedrijfsruimte Ca. 134,0 m²
Ruimte 63N Bedrijfsruimte Ca. 96,6 m²
Ruimte 63C Kantoorruimte Ca. 59,5 m²
Deelverhuur is mogelijk vanaf ca. 59,9 m².
Bovengenoemde metrage zijn inclusief doorbelasting van een aandeel van de algemene ruimten.
Opleveringsniveau
De kantoorruimte worden opgeleverd in huidige staat, onder andere voorzien van:
- Gemeenschappelijke en/of eigen pantryvoorzieningen;
- Gemeenschappelijke en/of eigen toiletvoorzieningen;
- Deels voorzien van systeemplafond met verlichtingsarmaturen;
- Kabelgoten ten behoeve van data- & elektrabekabeling;
- Centrale verwarming door middel van radiatoren;
- Te openen ramen.
De bedrijfsruimte worden opgeleverd in huidige staat, onder andere voorzien van:
- Pantryvoorziening;
- Gemeenschappelijke toiletvoorzieningen;
- Centrale verwarming door middel van radiatoren;
- Te openen ramen.
Parkeren
Tot het bedrijfsverzamelgebouw behoort vrij parkeren gelegen op eigen terrein.
Huurprijs
Ruimte 63B = € 12.000,- per maand, te vermeerderen met BTW en servicekosten.
Ruimte 63C = € 7.000,- per jaar, te vermeerderen met BTW en servicekosten.
Ruimte 63N = € 10.200,- per jaar, te vermeerderen met BTW en servicekosten.
Servicekosten
Ruimte 63B = een vaste bijdrage ter grootte van € 250,- per maand, te vermeerderen met BTW, voor de volgende leveringen en diensten: levering en vastrecht van gas, water en elektra, glasvezel, schoonmaak van de algemene ruimtes en groenonderhoud buitenterrein.
Ruimte 63C = een vaste bijdrage ter grootte van € 115,- per maand, te vermeerderen met BTW, voor de volgende leveringen en diensten: levering en vastrecht van gas, water en elektra, glasvezel, schoonmaak van de algemene ruimtes en groenonderhoud buitenterrein.
Ruimte 63N = een vaste bijdrage ter grootte van € 200,- per maand, te vermeerderen met BTW, voor de volgende leveringen en diensten: levering en vastrecht van gas, water en elektra, glasvezel, schoonmaak van de algemene ruimtes en groenonderhoud buitenterrein.
Energielabel
Het object beschikt over energielabel A.
Heeft dit pand uw interesse gewekt? Dan nodigen wij u van harte uit het pand eens van binnen te komen bekijken!
BMV Bedrijfsmakelaars
Sweerts de Landasstraat 27
6814 DA Arnhem
026 - 355 21 00
Ligging
Het object ligt op bedrijventerrein 'Rijnpark'. Op het bedrijventerrein bevinden zich onder andere vestigingen van Gamma, Toolstation, Securitas en Kwik-Fit.
Bereikbaarheid
Het pand is met eigen vervoer alsmede met openbaar vervoer uitstekend bereikbaar. Met de auto zijn de snelwegen A12, A50 en de A325 binnen enkele minuten te bereiken. Aan de Westervoortsedijk bevindt zich een bushalte met een rechtstreekse verbinding naar NS station Arnhem Centraal.
Vloeroppervlakte
Het object heeft een totale oppervlakte van circa 1.791 m², waarvan circa 290,5 m² beschikbaar is voor de verhuur. De beschikbare oppervlakte is als volgt verdeeld:
Ruimte 63B Bedrijfsruimte Ca. 134,0 m²
Ruimte 63N Bedrijfsruimte Ca. 96,6 m²
Ruimte 63C Kantoorruimte Ca. 59,5 m²
Deelverhuur is mogelijk vanaf ca. 59,9 m².
Bovengenoemde metrage zijn inclusief doorbelasting van een aandeel van de algemene ruimten.
Opleveringsniveau
De kantoorruimte worden opgeleverd in huidige staat, onder andere voorzien van:
- Gemeenschappelijke en/of eigen pantryvoorzieningen;
- Gemeenschappelijke en/of eigen toiletvoorzieningen;
- Deels voorzien van systeemplafond met verlichtingsarmaturen;
- Kabelgoten ten behoeve van data- & elektrabekabeling;
- Centrale verwarming door middel van radiatoren;
- Te openen ramen.
De bedrijfsruimte worden opgeleverd in huidige staat, onder andere voorzien van:
- Pantryvoorziening;
- Gemeenschappelijke toiletvoorzieningen;
- Centrale verwarming door middel van radiatoren;
- Te openen ramen.
Parkeren
Tot het bedrijfsverzamelgebouw behoort vrij parkeren gelegen op eigen terrein.
Huurprijs
Ruimte 63B = € 12.000,- per maand, te vermeerderen met BTW en servicekosten.
Ruimte 63C = € 7.000,- per jaar, te vermeerderen met BTW en servicekosten.
Ruimte 63N = € 10.200,- per jaar, te vermeerderen met BTW en servicekosten.
Servicekosten
Ruimte 63B = een vaste bijdrage ter grootte van € 250,- per maand, te vermeerderen met BTW, voor de volgende leveringen en diensten: levering en vastrecht van gas, water en elektra, glasvezel, schoonmaak van de algemene ruimtes en groenonderhoud buitenterrein.
Ruimte 63C = een vaste bijdrage ter grootte van € 115,- per maand, te vermeerderen met BTW, voor de volgende leveringen en diensten: levering en vastrecht van gas, water en elektra, glasvezel, schoonmaak van de algemene ruimtes en groenonderhoud buitenterrein.
Ruimte 63N = een vaste bijdrage ter grootte van € 200,- per maand, te vermeerderen met BTW, voor de volgende leveringen en diensten: levering en vastrecht van gas, water en elektra, glasvezel, schoonmaak van de algemene ruimtes en groenonderhoud buitenterrein.
Energielabel
Het object beschikt over energielabel A.
Heeft dit pand uw interesse gewekt? Dan nodigen wij u van harte uit het pand eens van binnen te komen bekijken!
BMV Bedrijfsmakelaars
Sweerts de Landasstraat 27
6814 DA Arnhem
026 - 355 21 00
Map
Map is loading...
Cadastral boundaries
Buildings
Travel time
Gain insight into the reachability of this object, for instance from a public transport station or a home address.