Stockholm 36-42 2993 LM Barendrecht
€ 72,770 /yr
Description
Op een zeer centrale ZICHTlocatie bieden wij een 2-laagse kantoorpand aan met 2 aangrenzende loodsen. Het kantoor-/bedrijfspand ligt op kantoor- en bedrijveneiland “De Compagnie”. Een representatieve omgeving en bovendien zeer goed bereikbaar.
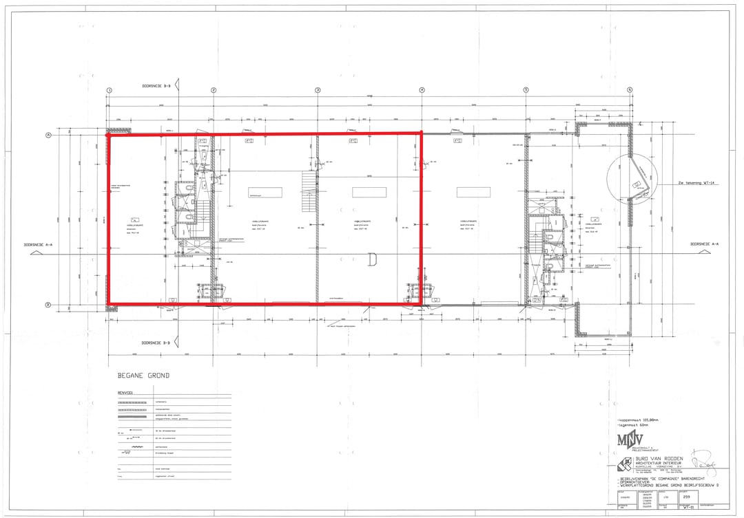
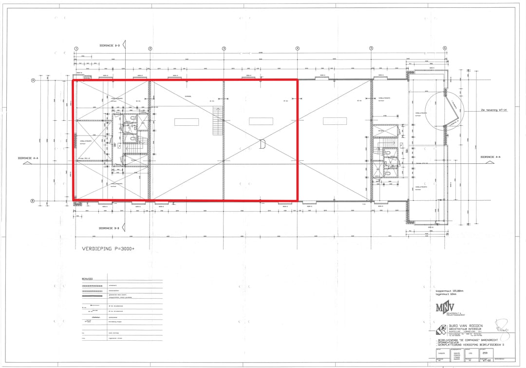
KANTOOR
Het kantoorpand omvat 2 verdiepingen kantoor op de begane grond en de eerste etage, elk ca. 123 m2 groot. De kantoorruimte heeft een eigen entree en beschikt over veel raampartijen waardoor het een plezierige werkomgeving is. Er is uitstekende zichtbaarheid van de Rostock wat onder meer de aanrijroute naar Ikea is. Elke verdieping heeft een nette pantry en toiletgroep.
LOODSEN
Direct grenzend aan het kantoorpand zijn 2 bedrijfsloodsen gelegen welke intern met het kantoor en onderling verbonden zijn. De loodsen omvatten elk ca. 118 m2 bedrijfsruimte op de begane grond en elke loods heeft een entresol van ca. 26 m2. Beide loodsen hebben een eigen handbediende overheaddeur en een separate loopdeur welke vanaf de straat toegang geven tot de bedrijfsruimten.
OPPERVLAKTEN EN PARKEERPLAATSEN
Kantoorpand, Stockholm 40-42
Begane grond: ca. 123 m2 VVO
Eerste verdieping: ca. 123 m2 VVO
6 parkeerplaatsen
Loods, Stockholm 38
Begane grond ca. 118 m2 VVO
Entresol: ca. 26 m2 VVO
1 parkeerplaats
Loods, Stockholm 36
Begane grond ca. 118 m2 VVO
Entresol: ca. 26 m2 VVO
2 parkeerplaatsen
DE LOCATIE
Een kantoor aan de rand van het kantoren- en bedrijveneiland "de Compagnie" betekent gezien worden. Met de doorgaande weg richting de welbekende IKEA welke aan het kantoorpand grenst, bent u niet meer te missen voor vele potentiele relaties. Daarnaast is het kantoorpand goed bereikbaar dankzij de uitvalswegen (o.a. A29) en het openbaar vervoer in de directe omgeving. Op "de Compagnie" wordt parkmanagement toegepast waardoor de goede uitstraling van zowel de gebouwen als het park optimaal blijft.
OPSOMMING BIJZONDERHEDEN
- 2 pantry’s in de kantoorruimten;
- berging;
- 2 toiletruimtgroepen;
- kabelgoten;
- stadsverwarming;
- totaal 9 parkeerplaatsen;
OPLEVERING
Oplevering: in overleg
HUURPRIJS EN SERVICEKOSTEN
Huurprijs: € 72.770,- op jaarbasis, inclusief 9 parkeerplaatsen, exclusief BTW
Voorschot servicekosten:€ 27,-- per m2 per jaar, exclusief BTW o.b.v. nacalculatie (prijspijl 2025)
Inhoud servicekosten:
- Parkmanagement:
o Schoonhouden binnenterrein, binnen- en vluchtwegen en trottoirs;
o Onderhoud bestrating;
o Onderhoud plantsoenen, groenstroken, oeverbekleding;
o Onderhoud lichtmasten en straatverlichting;
o Onderhoud en reiniging straatmeubilair;
o Onderhoud brandkranen en riolering;
o Onderhoud kabels/leidingen warmte/water/elektra;
o Elektra- en waterverbruik gemeenschappelijke voorzieningen gehele bedrijveneiland;
o Sneeuwruimen en sneeuwvrij houden;
o Bedrijfsaansprakelijkheidsverzekering;
o Administratie- en beheerskosten;
- Gebouwonderhoud
o Onderhoud elektrotechnische en werktuigbouwkundige installaties;
o Onderhoud overheaddeuren;
o Schoonmaak puien en glasvliesonderdelen buitengevel;
o Schoonmaak gevelglas binnenzijde en separatieglas;
o Schoonmaak dak, goten en hemelwaterafvoeren;
o Glasverzekering;
o Vuilafvoer;
o Diversen/ verhelpen storingen;’
o Administratie- en beheerkosten.
De servicekosten worden geheven op basis van jaarlijkse nacalculatie.
Met betrekking tot het elektra- en waterverbruik dient rechtstreeks met de energieleverende instanties een contract aangegaan te worden door huurder.
ZEKERHEIDSSTELLING
Een bankgarantie ter grootte van een betalingsverplichting van 3 (drie) maanden, inclusief de servicekosten en BTW.
HUURTERMIJN
5 jaar met 5 optiejaren.
BETALINGSWIJZE
De huurpenningen, servicekosten en BTW dienen te worden voldaan bij vooruitbetaling per maand.
MANDELIGHEID
Op het kantoor- en het bedrijveneiland wordt parkmanagement toegepast middels de mandeligheidsregeling. Huurder is verplicht voor zijn deel bij te dragen aan de kosten voor de leveringen en diensten van parkmanagement. Afrekening van de kosten vindt jaarlijks plaats op basis van nacalculatie tegen de daadwerkelijk gemaakte kosten.
COLLECTIEVE BEVEILIGING
Huurder is verplicht voor zijn rekening deel te nemen aan de collectieve beveiliging bedrijfsterreinen ex artikel 14 van de Algemene Verkoopwaarden Bouwgrond en gemeente Barendrecht.
HUURPRIJSHERZIENING
Jaarlijks, per 1 juli, op basis van de wijziging van het maandindexcijfer volgens de (2015 = 100), consumentenprijs index (CPI) reeks CPI-Alle huishoudens gepubliceerd door het Centraal Bureau voor de Statistiek (CBS), met dien verstande, dat de huurprijs nimmer zal dalen beneden de laatst geldende huurprijs.
BTW-STATUS
Verhuurder wenst te opteren voor B.T.W.-belaste huur en verhuur. Ingeval huurder de B.T.W. niet kan verrekenen, zal de huurprijs in overleg met huurder worden verhoogd ter compensatie van de gevolgen van het vervallen van de mogelijkheid om te opteren voor B.T.W.-belaste huur.
DISLCAIMER
Deze vrijblijvende informatie is met de grootst mogelijke zorgvuldigheid samengesteld. Voor de juistheid van deze informatie kan door Delta NVM Makelaars echter geen aansprakelijkheid worden aanvaard, noch kan aan de vermelde informatie enig recht worden ontleend. Deze informatie is niet bedoeld als aanbod. Door aanvaarding van de vermelde condities of het uitbrengen van een daarvan afwijkend aanbod worden onze opdrachtgevers en wij niet gebonden, ook niet tot het doen van een tegenbod. Een overeenkomst komt slechts tot stand door kennisgeving van een in alle opzichten en daarom op ondergeschikte punten met een aanbod overeenkomende aanvaarding.
KANTOOR
Het kantoorpand omvat 2 verdiepingen kantoor op de begane grond en de eerste etage, elk ca. 123 m2 groot. De kantoorruimte heeft een eigen entree en beschikt over veel raampartijen waardoor het een plezierige werkomgeving is. Er is uitstekende zichtbaarheid van de Rostock wat onder meer de aanrijroute naar Ikea is. Elke verdieping heeft een nette pantry en toiletgroep.
LOODSEN
Direct grenzend aan het kantoorpand zijn 2 bedrijfsloodsen gelegen welke intern met het kantoor en onderling verbonden zijn. De loodsen omvatten elk ca. 118 m2 bedrijfsruimte op de begane grond en elke loods heeft een entresol van ca. 26 m2. Beide loodsen hebben een eigen handbediende overheaddeur en een separate loopdeur welke vanaf de straat toegang geven tot de bedrijfsruimten.
OPPERVLAKTEN EN PARKEERPLAATSEN
Kantoorpand, Stockholm 40-42
Begane grond: ca. 123 m2 VVO
Eerste verdieping: ca. 123 m2 VVO
6 parkeerplaatsen
Loods, Stockholm 38
Begane grond ca. 118 m2 VVO
Entresol: ca. 26 m2 VVO
1 parkeerplaats
Loods, Stockholm 36
Begane grond ca. 118 m2 VVO
Entresol: ca. 26 m2 VVO
2 parkeerplaatsen
DE LOCATIE
Een kantoor aan de rand van het kantoren- en bedrijveneiland "de Compagnie" betekent gezien worden. Met de doorgaande weg richting de welbekende IKEA welke aan het kantoorpand grenst, bent u niet meer te missen voor vele potentiele relaties. Daarnaast is het kantoorpand goed bereikbaar dankzij de uitvalswegen (o.a. A29) en het openbaar vervoer in de directe omgeving. Op "de Compagnie" wordt parkmanagement toegepast waardoor de goede uitstraling van zowel de gebouwen als het park optimaal blijft.
OPSOMMING BIJZONDERHEDEN
- 2 pantry’s in de kantoorruimten;
- berging;
- 2 toiletruimtgroepen;
- kabelgoten;
- stadsverwarming;
- totaal 9 parkeerplaatsen;
OPLEVERING
Oplevering: in overleg
HUURPRIJS EN SERVICEKOSTEN
Huurprijs: € 72.770,- op jaarbasis, inclusief 9 parkeerplaatsen, exclusief BTW
Voorschot servicekosten:€ 27,-- per m2 per jaar, exclusief BTW o.b.v. nacalculatie (prijspijl 2025)
Inhoud servicekosten:
- Parkmanagement:
o Schoonhouden binnenterrein, binnen- en vluchtwegen en trottoirs;
o Onderhoud bestrating;
o Onderhoud plantsoenen, groenstroken, oeverbekleding;
o Onderhoud lichtmasten en straatverlichting;
o Onderhoud en reiniging straatmeubilair;
o Onderhoud brandkranen en riolering;
o Onderhoud kabels/leidingen warmte/water/elektra;
o Elektra- en waterverbruik gemeenschappelijke voorzieningen gehele bedrijveneiland;
o Sneeuwruimen en sneeuwvrij houden;
o Bedrijfsaansprakelijkheidsverzekering;
o Administratie- en beheerskosten;
- Gebouwonderhoud
o Onderhoud elektrotechnische en werktuigbouwkundige installaties;
o Onderhoud overheaddeuren;
o Schoonmaak puien en glasvliesonderdelen buitengevel;
o Schoonmaak gevelglas binnenzijde en separatieglas;
o Schoonmaak dak, goten en hemelwaterafvoeren;
o Glasverzekering;
o Vuilafvoer;
o Diversen/ verhelpen storingen;’
o Administratie- en beheerkosten.
De servicekosten worden geheven op basis van jaarlijkse nacalculatie.
Met betrekking tot het elektra- en waterverbruik dient rechtstreeks met de energieleverende instanties een contract aangegaan te worden door huurder.
ZEKERHEIDSSTELLING
Een bankgarantie ter grootte van een betalingsverplichting van 3 (drie) maanden, inclusief de servicekosten en BTW.
HUURTERMIJN
5 jaar met 5 optiejaren.
BETALINGSWIJZE
De huurpenningen, servicekosten en BTW dienen te worden voldaan bij vooruitbetaling per maand.
MANDELIGHEID
Op het kantoor- en het bedrijveneiland wordt parkmanagement toegepast middels de mandeligheidsregeling. Huurder is verplicht voor zijn deel bij te dragen aan de kosten voor de leveringen en diensten van parkmanagement. Afrekening van de kosten vindt jaarlijks plaats op basis van nacalculatie tegen de daadwerkelijk gemaakte kosten.
COLLECTIEVE BEVEILIGING
Huurder is verplicht voor zijn rekening deel te nemen aan de collectieve beveiliging bedrijfsterreinen ex artikel 14 van de Algemene Verkoopwaarden Bouwgrond en gemeente Barendrecht.
HUURPRIJSHERZIENING
Jaarlijks, per 1 juli, op basis van de wijziging van het maandindexcijfer volgens de (2015 = 100), consumentenprijs index (CPI) reeks CPI-Alle huishoudens gepubliceerd door het Centraal Bureau voor de Statistiek (CBS), met dien verstande, dat de huurprijs nimmer zal dalen beneden de laatst geldende huurprijs.
BTW-STATUS
Verhuurder wenst te opteren voor B.T.W.-belaste huur en verhuur. Ingeval huurder de B.T.W. niet kan verrekenen, zal de huurprijs in overleg met huurder worden verhoogd ter compensatie van de gevolgen van het vervallen van de mogelijkheid om te opteren voor B.T.W.-belaste huur.
DISLCAIMER
Deze vrijblijvende informatie is met de grootst mogelijke zorgvuldigheid samengesteld. Voor de juistheid van deze informatie kan door Delta NVM Makelaars echter geen aansprakelijkheid worden aanvaard, noch kan aan de vermelde informatie enig recht worden ontleend. Deze informatie is niet bedoeld als aanbod. Door aanvaarding van de vermelde condities of het uitbrengen van een daarvan afwijkend aanbod worden onze opdrachtgevers en wij niet gebonden, ook niet tot het doen van een tegenbod. Een overeenkomst komt slechts tot stand door kennisgeving van een in alle opzichten en daarom op ondergeschikte punten met een aanbod overeenkomende aanvaarding.
Features
Transfer of ownership
- Rental price
- € 72,770 per year
- Service charges
- € 27 per square meter per year
- Listed since
-
- Status
- Available
- Acceptance
- Available in consultation
Construction
- Main use
- Office
- Building type
- Resale property
- Year of construction
- 2002
Surface areas
- Area
- 534 m²
Layout
- Number of floors
- 2 floors
- Facilities
- Windows can be opened, cable ducts, modular ceiling, toilet, pantry and heating
Energy
- Energy label
- Not available
Surroundings
- Location
- Business park
Parking
- Parking spaces
- 9 uncovered parking spaces
NVM real estate agent
Photos