Description
Gelegen op het bedrijventerrein Overberkel in Borculo, wordt deze nette kantoorruimte te huur aangeboden. Het pand heeft een uitstekende energieprestatie met het A+++ label. Er is bovendien voldoende parkeergelegenheid op het eigen terrein, wat het gemak voor medewerkers en bezoekers vergroot.
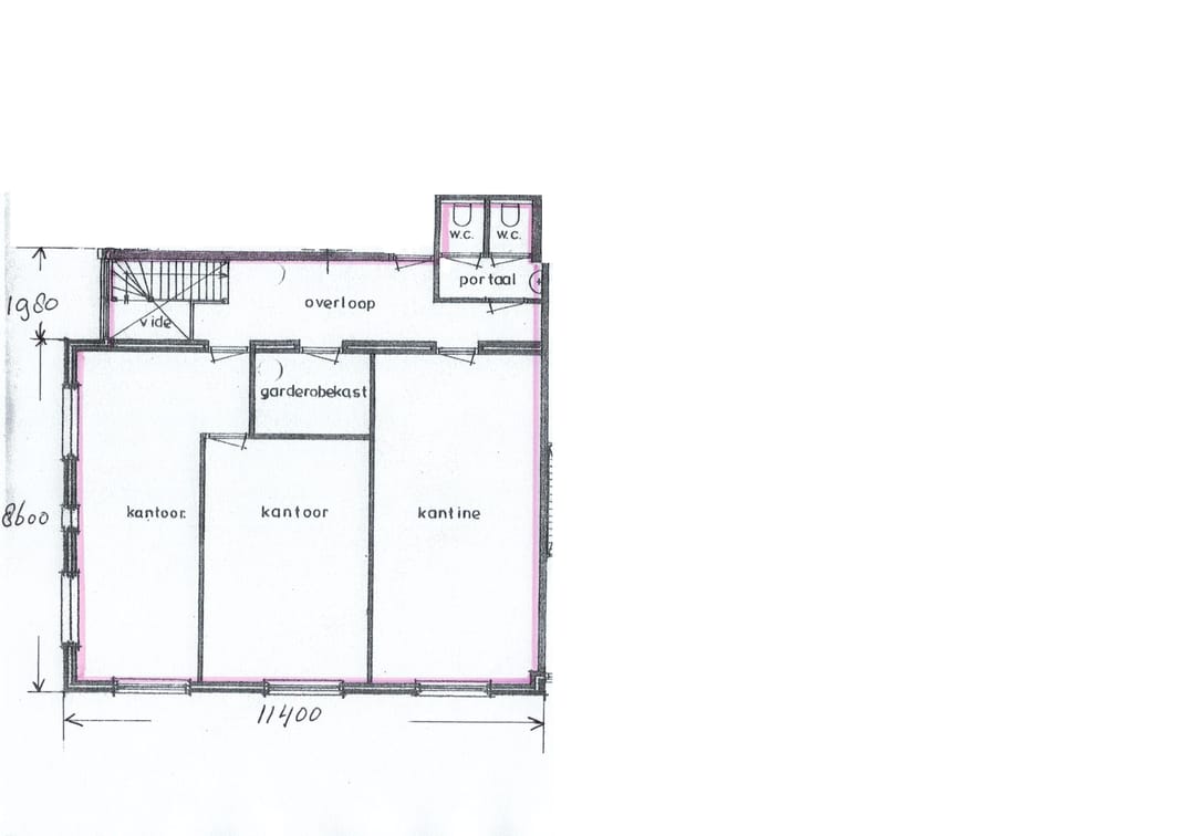
De kantoorruimte is turn-key en bevindt zich op de eerste verdieping. De indeling bestaat uit drie ruime kantoorkamers, een eigen toiletgroep en een magazijn-/opslagruimte, ideaal voor bedrijven die behoefte hebben aan een flexibele en goed uitgeruste werkplek.
Het pand is in 2003 gebouwd en biedt 210 m² vvo kantoorruimte op de eerste verdieping. Er is tevens de mogelijkheid om de ruimte gedeeltelijk te huren, vanaf ongeveer 100 m² vvo, wat flexibiliteit biedt voor verschillende bedrijfsbehoeften.
Er wordt momenteel gebruik gemaakt van een gedeelde entree. In overleg met de verhuurder is het realiseren van een eigen entree bespreekbaar.
Ligging en bereikbaarheid:
De kantoorruimte is gelegen aan de Korenbree, die parallel loopt aan de N825. Dankzij de ligging nabij de N825 en de N315 is er een uitstekende verbinding met de rondweg rondom Borculo, wat zorgt voor een directe doorstroming naar Ruurlo, Haaksbergen en Lochem. Deze strategische locatie biedt snelle en gemakkelijke bereikbaarheid, zowel voor personeel als voor klanten.
Bijzonderheden:
- Energielabel A+++;
- In overleg is het mogelijk om een aparte ingang te maken;
- Er is voldoende parkeerruimte op eigen terrein;
- Voorzien van binnen zonwering;
- Verwarmd middels een Cv-installatie met radiatoren;
De huurtermijn is in overleg, met een voorkeur voor een periode van 5 jaar, gevolgd door 5 verlengingsjaren. De huurprijsindexering vindt jaarlijks plaats, 1 jaar na de ingangsdatum van de huurovereenkomst, volgens de module “Indexering Huren” van het CBS. Betalingen dienen per maand vooruit te worden voldaan. Als zekerheidsstelling wordt 3 maanden huur inclusief BTW gevraagd. Gas/water/elektra wordt verrekend naar gebruik.
Huurprijs:
€ 950,00 per maand excl. BTW, aanvaarding in overleg.
Aan de gegevens die in de brochure staan vermeld kunnen geen rechten worden ontleend. Aanbiedingen kunnen worden gezien als een uitnodiging tot het doen van een bod. De diensten die Scheers & Roes Makelaars verleent, geschieden onder de voorwaarden van de NVM.
De kantoorruimte is turn-key en bevindt zich op de eerste verdieping. De indeling bestaat uit drie ruime kantoorkamers, een eigen toiletgroep en een magazijn-/opslagruimte, ideaal voor bedrijven die behoefte hebben aan een flexibele en goed uitgeruste werkplek.
Het pand is in 2003 gebouwd en biedt 210 m² vvo kantoorruimte op de eerste verdieping. Er is tevens de mogelijkheid om de ruimte gedeeltelijk te huren, vanaf ongeveer 100 m² vvo, wat flexibiliteit biedt voor verschillende bedrijfsbehoeften.
Er wordt momenteel gebruik gemaakt van een gedeelde entree. In overleg met de verhuurder is het realiseren van een eigen entree bespreekbaar.
Ligging en bereikbaarheid:
De kantoorruimte is gelegen aan de Korenbree, die parallel loopt aan de N825. Dankzij de ligging nabij de N825 en de N315 is er een uitstekende verbinding met de rondweg rondom Borculo, wat zorgt voor een directe doorstroming naar Ruurlo, Haaksbergen en Lochem. Deze strategische locatie biedt snelle en gemakkelijke bereikbaarheid, zowel voor personeel als voor klanten.
Bijzonderheden:
- Energielabel A+++;
- In overleg is het mogelijk om een aparte ingang te maken;
- Er is voldoende parkeerruimte op eigen terrein;
- Voorzien van binnen zonwering;
- Verwarmd middels een Cv-installatie met radiatoren;
De huurtermijn is in overleg, met een voorkeur voor een periode van 5 jaar, gevolgd door 5 verlengingsjaren. De huurprijsindexering vindt jaarlijks plaats, 1 jaar na de ingangsdatum van de huurovereenkomst, volgens de module “Indexering Huren” van het CBS. Betalingen dienen per maand vooruit te worden voldaan. Als zekerheidsstelling wordt 3 maanden huur inclusief BTW gevraagd. Gas/water/elektra wordt verrekend naar gebruik.
Huurprijs:
€ 950,00 per maand excl. BTW, aanvaarding in overleg.
Aan de gegevens die in de brochure staan vermeld kunnen geen rechten worden ontleend. Aanbiedingen kunnen worden gezien als een uitnodiging tot het doen van een bod. De diensten die Scheers & Roes Makelaars verleent, geschieden onder de voorwaarden van de NVM.
Map
Map is loading...
Cadastral boundaries
Buildings
Travel time
Gain insight into the reachability of this object, for instance from a public transport station or a home address.