Description
Kantoorruimtes van verschillende oppervlaktes in kantoorverzamelgebouw met gebruik van de gemeenschappelijke voorzieningen, gelegen op zichtlocatie direct aan de A27.
Situering
De kantoorruimtes zijn gesitueerd in het kantoorverzamelgebouw gelegen aan Takkebijsters 57A in Breda op het representatieve bedrijventerrein Moleneind-Oost,
een gebied met een mix van moderne bedrijven, kantoren en commerciële voorzieningen.
De bereikbaarheid is uitstekend dankzij de directe aansluiting op de A27 en de nabijheid van de A16, waardoor verbindingen met o.a. Utrecht, Rotterdam en Antwerpen snel en efficiënt zijn. Ook het openbaar vervoer is goed geregeld met bushaltes op loopafstand en een snelle route naar station Breda.
De omgeving kenmerkt zich als een professioneel en verzorgd werkgebied met voldoende parkeergelegenheid en een actieve ondernemersvereniging die inzet
op veiligheid en kwaliteit van het terrein. Hierdoor biedt deze locatie een praktische en goed bereikbare vestigingsplaats voor uiteenlopende bedrijfsactiviteiten.
Opleveringsniveau
Entree:
- Elektrische schuifdeuren
- Toegang middels druppelsysteem en alarmcode
- Individuele postvakken
- Lift
Lounge/ontvangstruimte:
- Gemeenschappelijke voorziening
- Direct aangrenzend aan de entree
- Koffiemachine
- Meerdere zitplaatsen
Kantoorruimte begane grond:
- Oppervlakte 136 m²
- Indeling van ruimte mogelijk
- Systeemplafond met geïntegreerde verlichting
- Tapijtvloer
- Kabelgoten
- Verwarming middels radiatoren
- Luchtbehandeling
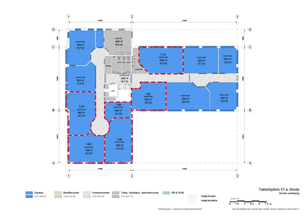
Kantoorruimtes eerste verdieping:
- Kantoorruimtes van verschillende oppervlaktes
- Combineren van kantoorruimtes mogelijk
- Systeemplafond met geïntegreerde verlichting
- Tapijtvloer
- Kabelgoten
- Verwarming middels radiatoren
- Luchtbehandeling
Gemeenschappelijke voorzieningen:
- Gratis parkeren voor de deur voor bezoekers
- Lounge/ontvangstruimte
- Lift
- Toiletten op elke verdieping
- Pantry op elke verdieping (voorzien van koelkast, vaatwasser en magnetron)
- Gemeenschappelijke vergaderruimte gratis beschikbaar onder reservering
- Laadpunten voor elektrische voertuigen
Overige
Parkeerplaatsen: Te huur voor € 30,- per parkeerplaats per maand (excl. BTW)
Reclamevlaggen: Te huur voor € 15,- per reclamevlag per maand (excl. BTW)
Beschikbaar:
Begane grond:
Kantoorruimte 136 m²
Eerste verdieping:
Kantoorruimte 1.03 45,4 m²
Kantoorruimte 1.04 39,3 m²
Kantoorruimte 1.05 44,7 m²
Kantoorruimte 1.06 18,1 m²
Kantoorruimte 1.07 36,2 m²
Kantoorruimte 1.12 44,3 m²
Het combineren/koppelen van kantoorruimtes is mogelijk d.m.v. het verplaatsen van systeemwanden.
Bestemmingsplan
Het object valt binnen het bestemmingsplan van de Gemeente Breda “Bedrijventerrein Moleneind” met de bestemming “Kantoor”.
Levering zaken en diensten
Door of vanwege Verhuurder wordt de levering van de volgende zaken en diensten verzorgd (voor zover van toepassing):
- gas- en/of olieverbruik, inclusief vastrecht;
- elektraverbruik in het gehuurde, waterverbruik, inclusief vastrecht;
- elektraverbruik, inclusief vastrecht, ten behoeve van installaties en verlichting algemene ruimten;
- onderhoud en periodieke controle van installaties van verwarming, luchtbehandeling, lift, hydrofoor, glazenwassen, brandmelding, gebouwbewaking, storingsmelding, noodstroom en sprinkler;
- elektraverbruik in het gehuurde;
- waterverbruik, incl. vastrecht;
- sanitaire voorzieningen, handdoekautomaten etc.;
- schoonmaakkosten van gemeenschappelijke ruimten, liften, beglazing buiten en gemeenschappelijke ruimten, terrassen en buitenterrein;
- afvoer huisvuil, containerhuur etc.;
- assurantiepremie buitenbeglazing;
- nachtveiligheidsdienst, bewaking, huismeesterdiensten, Wifi.
Huurprijzen op aanvraag
Oplevering: Per direct
Servicekosten
De kosten van gas, water, elektra en riool- en reinigingsrechten zijn bij de huurprijs inbegrepen.
Zekerheidsstelling
- Een waarborgsom zal gesteld worden ter grootte van 1 maand huurverplichting;
of;
- Bankgarantie ter hoogte van één maand huurverplichting.
Bijzonderheden
- Verhuurder behoudt zich het recht bepaalde branches om moverende redenen te weigeren;
- Bij opzegging van de huur dient bij oplevering alles in oorspronkelijke staat te worden opgeleverd of in nader overleg;
- Eén maand opzegtermijn.
Deze informatieverstrekking geschiedt geheel vrijblijvend en onder voorbehoud van tussentijdse verhuur c.q. wijzigingen.
Voor nadere informatie en/ of een afspraak voor een bezichtiging kunt u te allen tijde contact opnemen.
Situering
De kantoorruimtes zijn gesitueerd in het kantoorverzamelgebouw gelegen aan Takkebijsters 57A in Breda op het representatieve bedrijventerrein Moleneind-Oost,
een gebied met een mix van moderne bedrijven, kantoren en commerciële voorzieningen.
De bereikbaarheid is uitstekend dankzij de directe aansluiting op de A27 en de nabijheid van de A16, waardoor verbindingen met o.a. Utrecht, Rotterdam en Antwerpen snel en efficiënt zijn. Ook het openbaar vervoer is goed geregeld met bushaltes op loopafstand en een snelle route naar station Breda.
De omgeving kenmerkt zich als een professioneel en verzorgd werkgebied met voldoende parkeergelegenheid en een actieve ondernemersvereniging die inzet
op veiligheid en kwaliteit van het terrein. Hierdoor biedt deze locatie een praktische en goed bereikbare vestigingsplaats voor uiteenlopende bedrijfsactiviteiten.
Opleveringsniveau
Entree:
- Elektrische schuifdeuren
- Toegang middels druppelsysteem en alarmcode
- Individuele postvakken
- Lift
Lounge/ontvangstruimte:
- Gemeenschappelijke voorziening
- Direct aangrenzend aan de entree
- Koffiemachine
- Meerdere zitplaatsen
Kantoorruimte begane grond:
- Oppervlakte 136 m²
- Indeling van ruimte mogelijk
- Systeemplafond met geïntegreerde verlichting
- Tapijtvloer
- Kabelgoten
- Verwarming middels radiatoren
- Luchtbehandeling
Kantoorruimtes eerste verdieping:
- Kantoorruimtes van verschillende oppervlaktes
- Combineren van kantoorruimtes mogelijk
- Systeemplafond met geïntegreerde verlichting
- Tapijtvloer
- Kabelgoten
- Verwarming middels radiatoren
- Luchtbehandeling
Gemeenschappelijke voorzieningen:
- Gratis parkeren voor de deur voor bezoekers
- Lounge/ontvangstruimte
- Lift
- Toiletten op elke verdieping
- Pantry op elke verdieping (voorzien van koelkast, vaatwasser en magnetron)
- Gemeenschappelijke vergaderruimte gratis beschikbaar onder reservering
- Laadpunten voor elektrische voertuigen
Overige
Parkeerplaatsen: Te huur voor € 30,- per parkeerplaats per maand (excl. BTW)
Reclamevlaggen: Te huur voor € 15,- per reclamevlag per maand (excl. BTW)
Beschikbaar:
Begane grond:
Kantoorruimte 136 m²
Eerste verdieping:
Kantoorruimte 1.03 45,4 m²
Kantoorruimte 1.04 39,3 m²
Kantoorruimte 1.05 44,7 m²
Kantoorruimte 1.06 18,1 m²
Kantoorruimte 1.07 36,2 m²
Kantoorruimte 1.12 44,3 m²
Het combineren/koppelen van kantoorruimtes is mogelijk d.m.v. het verplaatsen van systeemwanden.
Bestemmingsplan
Het object valt binnen het bestemmingsplan van de Gemeente Breda “Bedrijventerrein Moleneind” met de bestemming “Kantoor”.
Levering zaken en diensten
Door of vanwege Verhuurder wordt de levering van de volgende zaken en diensten verzorgd (voor zover van toepassing):
- gas- en/of olieverbruik, inclusief vastrecht;
- elektraverbruik in het gehuurde, waterverbruik, inclusief vastrecht;
- elektraverbruik, inclusief vastrecht, ten behoeve van installaties en verlichting algemene ruimten;
- onderhoud en periodieke controle van installaties van verwarming, luchtbehandeling, lift, hydrofoor, glazenwassen, brandmelding, gebouwbewaking, storingsmelding, noodstroom en sprinkler;
- elektraverbruik in het gehuurde;
- waterverbruik, incl. vastrecht;
- sanitaire voorzieningen, handdoekautomaten etc.;
- schoonmaakkosten van gemeenschappelijke ruimten, liften, beglazing buiten en gemeenschappelijke ruimten, terrassen en buitenterrein;
- afvoer huisvuil, containerhuur etc.;
- assurantiepremie buitenbeglazing;
- nachtveiligheidsdienst, bewaking, huismeesterdiensten, Wifi.
Huurprijzen op aanvraag
Oplevering: Per direct
Servicekosten
De kosten van gas, water, elektra en riool- en reinigingsrechten zijn bij de huurprijs inbegrepen.
Zekerheidsstelling
- Een waarborgsom zal gesteld worden ter grootte van 1 maand huurverplichting;
of;
- Bankgarantie ter hoogte van één maand huurverplichting.
Bijzonderheden
- Verhuurder behoudt zich het recht bepaalde branches om moverende redenen te weigeren;
- Bij opzegging van de huur dient bij oplevering alles in oorspronkelijke staat te worden opgeleverd of in nader overleg;
- Eén maand opzegtermijn.
Deze informatieverstrekking geschiedt geheel vrijblijvend en onder voorbehoud van tussentijdse verhuur c.q. wijzigingen.
Voor nadere informatie en/ of een afspraak voor een bezichtiging kunt u te allen tijde contact opnemen.
Map
Map is loading...
Cadastral boundaries
Buildings
Travel time
Gain insight into the reachability of this object, for instance from a public transport station or a home address.