Rivium Boulevard 21-27 2909 LK Capelle aan den IJssel
Rental price on request
Description
Betreft
Op het Capelse kantorenpark “Rivium Business Park” zijn in het object gelegen aan de Rivium Boulevard / Rivium 4e straat diverse turn-key kantoorruimtes beschikbaar vanaf 10 m² tot en met 361 m². De kantoorruimtes beschikken over een energielabel A+. Parkeren is mogelijk op eigen afsluitbaar parkeerterrein.
Locatiegegevens
Het Rivium Business Park is gelegen direct langs en zichtbaar vanaf de Rijksweg A16 (Rotterdam-Breda-Antwerpen). Op dit Business park zijn veel bedrijven gehuisvest alsmede enkele horecagelegenheden zoals het herbouwde historische Zalmhuis met een prachtig uitzicht over de Maas. De bereikbaarheid per auto is uitstekend door de ligging nabij de op- en afritten van de rijksweg A16, met een aansluiting op het Rotterdamse wegennet (de rijkswegen A20, A15 en A13).
De bereikbaarheid per openbaar vervoer is eveneens uitstekend. Direct voor het object bevindt zich een halte van de Park Shuttle lijn 500, met een directe verbinding naar het nabij gelegen metro- & busstation Kralingse Zoom en het bijbehorende transferium.
Voorzieningen
De diverse kantoorruimtes en algemene ruimtes worden opgeleverd met de volgende algemene voorzieningen:
- Systeemplafond voorzien van verlichtingsarmaturen;
- Vloerbedekking;
- Kabelgoten;
- Te openen ramen;
- Lamellen (kantoorunits met uitzicht op Rivium Boulevard en Rivium 4e straat);
- Per vleugel per verdieping een gezamenlijke pantry (voorzien van koelkast);
- Per vleugel per verdieping twee dubbele toiletgroepen;
- Per vleugel per verdieping een intercom.
Elke gebouwvleugel beschikt over:
- Eigen representatieve entree/hal, voorzien van draaideur;
- Toegang vanuit entree/hal naar het kantorengedeelte d.m.v. toegangspas (24/7);
- Personenlift;
- Luchtbehandelingssysteem voorzien van topkoeling;
- Brandmeldinstallatie;
- Toilet voor mindervaliden op de begane grond;
- Afgesloten parkeerterrein voorzien van slagboom;
- Laadpaal aanwezig op het afgesloten parkeerterrein (om de laadpaal te kunnen gebruiken dient de huurder uiteraard een parkeerplaats te huren).
U kunt uw kantoor naar eigen wens indelen. De eigenaar\beheerder van het kantoorgebouw, een gerenommeerd architect, denkt graag met u mee. Dagelijks toezicht en persoonlijke aandacht staan garant voor een prettige werkomgeving.
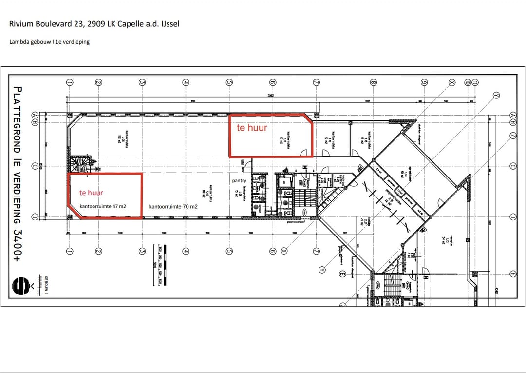
Indeling/beschikbaarheid/huurprijs
Gebouw I / Rivium Boulevard 21
Begane grond
- Ca. 361 m² VVO kantoorruimte (per direct)
De huurprijs bedraagt € 100,= per m² per jaar exclusief BTW en servicekosten.
De (vaste) servicekosten bedragen € 45,= per m² per jaar exclusief BTW.
Voor de actuele beschikbaarheid van de kantoorunits met de bijbehorende huurprijzen verwijzen wij u naar de bijvoegde PDF.
Huurprijs parkeerplaatsen
De huurprijs voor de parkeerplaatsen bedraagt € 35,= per plaats per maand exclusief BTW. De parkeernorm is 1 parkeerplaats per 50 m².
Beveiligde internetaansluiting met eigen IP-adres
- De prijs per aansluiting bedraagt € 50,= per maand exclusief BTW.
- Eenmalige aansluitkosten internet van € 25,- exclusief BTW.
Huurbetaling
Per maand bij vooruitbetaling te voldoen.
Huurtermijn
In overleg, eerste huurperiode van minimaal 1 jaar.
Servicekosten
De servicekosten omvatten het volgende:
• Onderhoud en periodieke controle van:
- Verwarmingsinstallatie;
- Luchtbehandelingsinstallatie;
- Liftinstallatie;
- Hydrofoor;
- Ontruimingsinstallatie;
- Brandhaspels;
- Noodverlichting;
- Draaideur hal;
- Toegangscontrole.
• Elektriciteitsverbruik van de hierboven genoemde installaties inclusief vastrecht;
• Elektriciteitsverbruik in de gemeenschappelijke ruimten, waaronder vernieuwing van lampen en buizen inbegrepen;
• Elektriciteitsverbruik in het gehuurde;
• Gas-/warmteverbruik inclusief vastrecht voor de gehuurde kantoorruimte alsmede de gemeenschappelijke ruimten;
• Waterverbruik inclusief vastrecht voor de gehuurde kantoorruimte alsmede de gemeenschappelijke ruimten;
• Milieuheffing op afvalwater;
• Schoonmaak van de gemeenschappelijke ruimten, liften, beglazing buitenzijde en gemeenschappelijke ruimten;
• 2 x per week schoonmaak van de pantry, toiletten en gang op de desbetreffende verdieping;
• abonnement doorverbinding ontruimingsinstallatie naar de particuliere meldkamer en opvolging brandalarm;
• Dagelijks sluiten van de hoofdingang hal gebouw I (voor de houders van de toegangspasjes is het gebouw 24/7
toegankelijk);
• Onderhoud en reparatie hang- en sluitwerk buitendeuren;
• Onderhoud parkeerterrein en groenvoorziening;
• Lidmaatschap Rivium Parkmanagement;
• Verzorging huisvuil, containerhuur en dergelijke;
• Assurantiepremie buitenbeglazing;
• Andere voorzieningen en diensten, die redelijkerwijze geacht moeten worden in het belang van de Huurders te zijn
getroffen respectievelijk te worden verleend;
• Administratiekosten ad 5% over de hierboven genoemde leveringen en diensten.
Huurovereenkomst
Huurovereenkomst op basis van het standaard model van de Raad voor Onroerende Zaken (ROZ), met de daarbij behorende algemene bepalingen aangevuld met bijzondere bepalingen.
Huurprijsherziening
Jaarlijks, voor het eerst één jaar na huuringangsdatum, op basis van de wijziging van het maandprijsindexcijfer volgens de consumentenprijsindex (CPI) reeks “CPI-Alle Huishoudens”, gepubliceerd door het Centraal Bureau voor de Statistiek (CBS).
Huurgarantie
Huurder dient een bankgarantie te stellen danwel een waarborgsom te storten ter grootte van een betalingsverplichting van 3 maanden huur en servicekosten, te vermeerderen met BTW.
Omzetbelasting
Uitgangspunt bij het tot stand komen van een huurovereenkomst is, dat huurder het gehuurde voor tenminste het bij de wet vastgelegde minimum percentage of meer gebruikt voor met omzetbelasting belaste prestaties. Indien door toedoen van huurder niet geopteerd kan worden voor met omzetbelasting belaste verhuur, of indien op enig moment een situatie aan de zijde van de huurder intreedt waardoor geen recht meer kan worden gedaan aan dit uitgangspunt, is huurder gehouden om het daaruit voor verhuurder voortvloeiende nadeel te vergoeden, en zal de huurprijs met een nader vast te stellen bedrag worden verhoogd.
Algemeen
Ondanks de zorg en aandacht die wordt besteed aan de samenstelling van deze projectinformatie en de hierin opgenomen gegevens, kan Goud Bedrijfshuisvesting niet instaan voor de volledigheid, juistheid of voortdurende actualiteit van de gegevens en wijst iedere vorm van aansprakelijkheid van de hand voor onvolkomenheden, onvolledigheden, dan wel onjuistheden in de weergegeven informatie. Nadrukkelijk is vermeld dat deze informatie niet als een aanbieding of offerte mag worden beschouwd.
Op het Capelse kantorenpark “Rivium Business Park” zijn in het object gelegen aan de Rivium Boulevard / Rivium 4e straat diverse turn-key kantoorruimtes beschikbaar vanaf 10 m² tot en met 361 m². De kantoorruimtes beschikken over een energielabel A+. Parkeren is mogelijk op eigen afsluitbaar parkeerterrein.
Locatiegegevens
Het Rivium Business Park is gelegen direct langs en zichtbaar vanaf de Rijksweg A16 (Rotterdam-Breda-Antwerpen). Op dit Business park zijn veel bedrijven gehuisvest alsmede enkele horecagelegenheden zoals het herbouwde historische Zalmhuis met een prachtig uitzicht over de Maas. De bereikbaarheid per auto is uitstekend door de ligging nabij de op- en afritten van de rijksweg A16, met een aansluiting op het Rotterdamse wegennet (de rijkswegen A20, A15 en A13).
De bereikbaarheid per openbaar vervoer is eveneens uitstekend. Direct voor het object bevindt zich een halte van de Park Shuttle lijn 500, met een directe verbinding naar het nabij gelegen metro- & busstation Kralingse Zoom en het bijbehorende transferium.
Voorzieningen
De diverse kantoorruimtes en algemene ruimtes worden opgeleverd met de volgende algemene voorzieningen:
- Systeemplafond voorzien van verlichtingsarmaturen;
- Vloerbedekking;
- Kabelgoten;
- Te openen ramen;
- Lamellen (kantoorunits met uitzicht op Rivium Boulevard en Rivium 4e straat);
- Per vleugel per verdieping een gezamenlijke pantry (voorzien van koelkast);
- Per vleugel per verdieping twee dubbele toiletgroepen;
- Per vleugel per verdieping een intercom.
Elke gebouwvleugel beschikt over:
- Eigen representatieve entree/hal, voorzien van draaideur;
- Toegang vanuit entree/hal naar het kantorengedeelte d.m.v. toegangspas (24/7);
- Personenlift;
- Luchtbehandelingssysteem voorzien van topkoeling;
- Brandmeldinstallatie;
- Toilet voor mindervaliden op de begane grond;
- Afgesloten parkeerterrein voorzien van slagboom;
- Laadpaal aanwezig op het afgesloten parkeerterrein (om de laadpaal te kunnen gebruiken dient de huurder uiteraard een parkeerplaats te huren).
U kunt uw kantoor naar eigen wens indelen. De eigenaar\beheerder van het kantoorgebouw, een gerenommeerd architect, denkt graag met u mee. Dagelijks toezicht en persoonlijke aandacht staan garant voor een prettige werkomgeving.
Indeling/beschikbaarheid/huurprijs
Gebouw I / Rivium Boulevard 21
Begane grond
- Ca. 361 m² VVO kantoorruimte (per direct)
De huurprijs bedraagt € 100,= per m² per jaar exclusief BTW en servicekosten.
De (vaste) servicekosten bedragen € 45,= per m² per jaar exclusief BTW.
Voor de actuele beschikbaarheid van de kantoorunits met de bijbehorende huurprijzen verwijzen wij u naar de bijvoegde PDF.
Huurprijs parkeerplaatsen
De huurprijs voor de parkeerplaatsen bedraagt € 35,= per plaats per maand exclusief BTW. De parkeernorm is 1 parkeerplaats per 50 m².
Beveiligde internetaansluiting met eigen IP-adres
- De prijs per aansluiting bedraagt € 50,= per maand exclusief BTW.
- Eenmalige aansluitkosten internet van € 25,- exclusief BTW.
Huurbetaling
Per maand bij vooruitbetaling te voldoen.
Huurtermijn
In overleg, eerste huurperiode van minimaal 1 jaar.
Servicekosten
De servicekosten omvatten het volgende:
• Onderhoud en periodieke controle van:
- Verwarmingsinstallatie;
- Luchtbehandelingsinstallatie;
- Liftinstallatie;
- Hydrofoor;
- Ontruimingsinstallatie;
- Brandhaspels;
- Noodverlichting;
- Draaideur hal;
- Toegangscontrole.
• Elektriciteitsverbruik van de hierboven genoemde installaties inclusief vastrecht;
• Elektriciteitsverbruik in de gemeenschappelijke ruimten, waaronder vernieuwing van lampen en buizen inbegrepen;
• Elektriciteitsverbruik in het gehuurde;
• Gas-/warmteverbruik inclusief vastrecht voor de gehuurde kantoorruimte alsmede de gemeenschappelijke ruimten;
• Waterverbruik inclusief vastrecht voor de gehuurde kantoorruimte alsmede de gemeenschappelijke ruimten;
• Milieuheffing op afvalwater;
• Schoonmaak van de gemeenschappelijke ruimten, liften, beglazing buitenzijde en gemeenschappelijke ruimten;
• 2 x per week schoonmaak van de pantry, toiletten en gang op de desbetreffende verdieping;
• abonnement doorverbinding ontruimingsinstallatie naar de particuliere meldkamer en opvolging brandalarm;
• Dagelijks sluiten van de hoofdingang hal gebouw I (voor de houders van de toegangspasjes is het gebouw 24/7
toegankelijk);
• Onderhoud en reparatie hang- en sluitwerk buitendeuren;
• Onderhoud parkeerterrein en groenvoorziening;
• Lidmaatschap Rivium Parkmanagement;
• Verzorging huisvuil, containerhuur en dergelijke;
• Assurantiepremie buitenbeglazing;
• Andere voorzieningen en diensten, die redelijkerwijze geacht moeten worden in het belang van de Huurders te zijn
getroffen respectievelijk te worden verleend;
• Administratiekosten ad 5% over de hierboven genoemde leveringen en diensten.
Huurovereenkomst
Huurovereenkomst op basis van het standaard model van de Raad voor Onroerende Zaken (ROZ), met de daarbij behorende algemene bepalingen aangevuld met bijzondere bepalingen.
Huurprijsherziening
Jaarlijks, voor het eerst één jaar na huuringangsdatum, op basis van de wijziging van het maandprijsindexcijfer volgens de consumentenprijsindex (CPI) reeks “CPI-Alle Huishoudens”, gepubliceerd door het Centraal Bureau voor de Statistiek (CBS).
Huurgarantie
Huurder dient een bankgarantie te stellen danwel een waarborgsom te storten ter grootte van een betalingsverplichting van 3 maanden huur en servicekosten, te vermeerderen met BTW.
Omzetbelasting
Uitgangspunt bij het tot stand komen van een huurovereenkomst is, dat huurder het gehuurde voor tenminste het bij de wet vastgelegde minimum percentage of meer gebruikt voor met omzetbelasting belaste prestaties. Indien door toedoen van huurder niet geopteerd kan worden voor met omzetbelasting belaste verhuur, of indien op enig moment een situatie aan de zijde van de huurder intreedt waardoor geen recht meer kan worden gedaan aan dit uitgangspunt, is huurder gehouden om het daaruit voor verhuurder voortvloeiende nadeel te vergoeden, en zal de huurprijs met een nader vast te stellen bedrag worden verhoogd.
Algemeen
Ondanks de zorg en aandacht die wordt besteed aan de samenstelling van deze projectinformatie en de hierin opgenomen gegevens, kan Goud Bedrijfshuisvesting niet instaan voor de volledigheid, juistheid of voortdurende actualiteit van de gegevens en wijst iedere vorm van aansprakelijkheid van de hand voor onvolkomenheden, onvolledigheden, dan wel onjuistheden in de weergegeven informatie. Nadrukkelijk is vermeld dat deze informatie niet als een aanbieding of offerte mag worden beschouwd.
Features
Transfer of ownership
- Rental price
- Rental price on request
- Service charges
- No service charges known
- Listed since
-
- Status
- Available
- Acceptance
- Available in consultation
Construction
- Main use
- Office
- Building type
- Resale property
- Year of construction
- 1999
Surface areas
- Area
- 761 m² (units from 10 m²)
- Plot size
- 3,405 m²
Layout
- Number of floors
- 3 floors
- Facilities
- Peak cooling, built-in fittings, elevators, windows can be opened, cable ducts, modular ceiling, toilet, pantry, heating and room layout
Energy
- Energy label
- A+
Surroundings
- Location
- Office park
- Accessibility
- Subway station in less than 500 m and motorway exit in less than 500 m
Real estate agent
Photos