Mauritskade 7-17 2514 HD Den Haag
Rental price on request
Description
ALGEMEEN
'The Residency' is gelegen in het bruisende diplomatieke hart van Den Haag waar dit prachtige Rijksmonument staat. Het combineert de charme van vroeger met het comfort van nu - een echt visitekaartje voor ambitieuze huurders. Met vijf verdiepingen biedt het gebouw volop ruimte en flexibiliteit, of je nu het hele pand wilt of slechts een deel.
Aan de voorkant vind je de statige gevel aan de Mauritskade, terwijl de achterkant verrast met 'De Sigaar', een moderne uitbouw uit 1996.
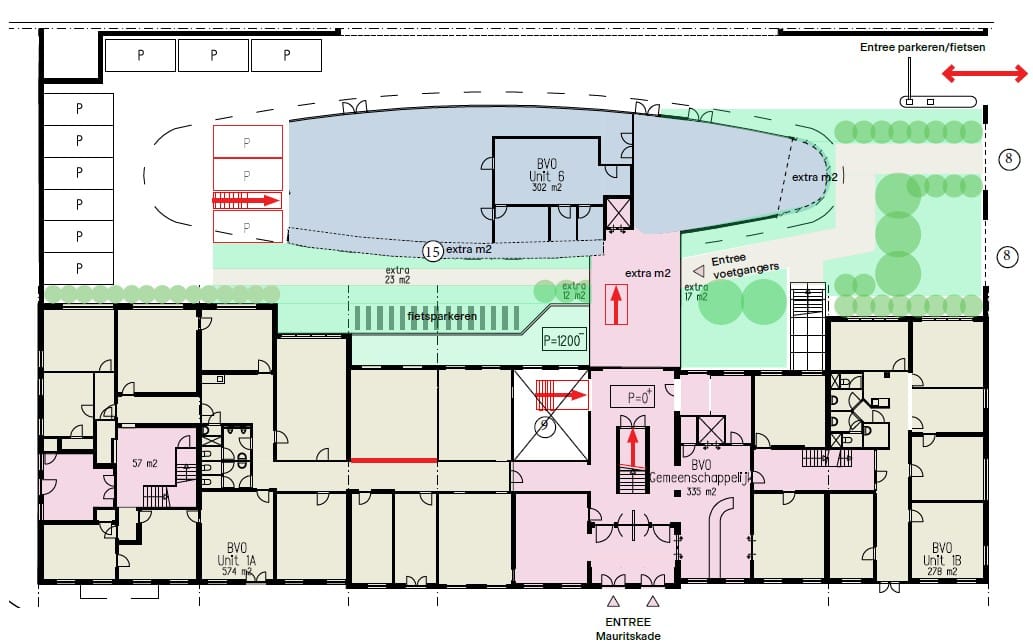
Er zijn 13 eigen parkeerplaatsen achter het gebouw beschikbaar op eigen terrein.
DUURZAAMHEID
Dit historische pand maakt een sprong naar de toekomst. Met een grondige renovatie gericht op duurzaamheid, voldoet het straks aan de strengste ESG-eisen van moderne huurders. Het doel? Een 'Paris Proof' Rijksmonument creëren. Dit betekent niet alleen een kleinere ecologische voetafdruk, maar ook lagere energiekosten voor huurders vergeleken met soortgelijke kantoren. Zo verenigen we zorgvuldig het rijke verleden van het gebouw met de duurzame eisen van morgen, zonder concessies te doen aan de monumentale uitstraling.
LOCATIE
Het kantoor geniet een uitstekende zichtlocatie aan de Mauritskade in het hart van Den Haag. Deze prestigieuze plek bevindt zich in de directe nabijheid van enkele van de meest iconische straten waaronder Het Noordeinde, Het Lange Voorhout, de gezellige Denneweg en de levendige Frederikstraat.
De omgeving wordt gekenmerkt door de aanwezigheid van prominente organisaties, waaronder diverse overheidsinstanties en talrijke ambassades, hetgeen bijdraagt aan het prestigieuze karakter van de locatie.
Er zijn hoogwaardige horecagelegenheden in de nabijheid die zakelijke ontmoetingen faciliteren. Het centrale winkelgebied van Den Haag is gelegen op loopafstand, wat de locatie zowel voor professionele als persoonlijke doeleinden uitermate geschikt maakt.
BEREIKBAARHEID
Eigen vervoer:
Het kantoor beschikt over uitstekende bereikbaarheid, zowel met auto als met het openbaar vervoer. De Mauritskade heeft een directe aansluiting op het rijkswegennet, de A4, A12 en A13.
Openbaar vervoer:
Met het openbaar vervoer is het object eveneens uitstekend bereikbaar, op loopafstand bevinden zich diverse haltes van tramlijn 1, 9 en buslijn 22, 24 en 28. Het Den Haag Centraal Station bevindt zich op ca. 10/15 minuten loopafstand van het kantoor.
BESCHIKBARE VLOEROPPERVLAKTE
De totale vloeroppervlakte van het gebouw bedraagt circa 6.559 m² vvo.
Voor de verhuur is momenteel het volgende metrage beschikbaar, verdeeld als volgt:
Kelder................Archiefruimte.......670 m² vvo
Begane grond....Kantoorruimte...1.444 m² vvo
1e verdieping.....Kantoorruimte...1.566 m² vvo
2e verdieping.....Kantoorruimte...1.483 m² vvo
3e verdieping.....Kantoorruimte...1.393 m² vvo
Totaal___________________ 6.559 m² vvo
Deelverhuur is vanaf ca. 100 m² v.v.o. mogelijk.
HUURPRIJZEN
Kantoorruimte: Nader te bepalen.
Kelder-/archiefruimte: Nader te bepalen.
Parkeerplaatsen: Nader te bepalen.
PARKEREN
Naast de 13 beschikbare parkeerplaatsen op eigen terrein biedt de directe omgeving van Mauritskade 7–17 diverse aanvullende parkeermogelijkheden:
'Q-Park Mauritskade'
Gelegen aan Zeestraat 39, op slechts enkele minuten loopafstand van het pand. Deze moderne parkeergarage beschikt over circa 200 parkeerplaatsen en is 24/7 geopend.
'Parkeergarage Parkstraat'
Gelegen aan de Oranjestraat, nabij de Parkstraat. Deze parkeergarage biedt 164 parkeerplaatsen en is geopend van maandag tot en met vrijdag van 18:00 tot 24:00 uur, op zaterdag van 09:00 tot 24:00 uur en op zondag van 09:30 tot 24:00 uur.
'Parkeergarage Haagsche Hof (ParkBee)'
Gelegen aan de Parkstraat, een zijstraat van de Mauritskade. Deze parkeergarage biedt betaalbare parkeermogelijkheden via vooraf reserveren.
SERVICEKOSTEN
In overleg.
OPLEVERINGSNIVEAU
De kantoorruimte wordt in overleg opgeleverd waarbij een turn-key opleverniveau mogelijk is.
Een op maat gemaakte oplossing die naadloos aansluit bij uw specifieke ruimtebehoefte is mogelijk.
HUURTERMIJN
5 of 10 jaar met verlengingsperioden van telkens 5 jaar.
HUURINGANGSDATUM
In overleg.
'The Residency' is gelegen in het bruisende diplomatieke hart van Den Haag waar dit prachtige Rijksmonument staat. Het combineert de charme van vroeger met het comfort van nu - een echt visitekaartje voor ambitieuze huurders. Met vijf verdiepingen biedt het gebouw volop ruimte en flexibiliteit, of je nu het hele pand wilt of slechts een deel.
Aan de voorkant vind je de statige gevel aan de Mauritskade, terwijl de achterkant verrast met 'De Sigaar', een moderne uitbouw uit 1996.
Er zijn 13 eigen parkeerplaatsen achter het gebouw beschikbaar op eigen terrein.
DUURZAAMHEID
Dit historische pand maakt een sprong naar de toekomst. Met een grondige renovatie gericht op duurzaamheid, voldoet het straks aan de strengste ESG-eisen van moderne huurders. Het doel? Een 'Paris Proof' Rijksmonument creëren. Dit betekent niet alleen een kleinere ecologische voetafdruk, maar ook lagere energiekosten voor huurders vergeleken met soortgelijke kantoren. Zo verenigen we zorgvuldig het rijke verleden van het gebouw met de duurzame eisen van morgen, zonder concessies te doen aan de monumentale uitstraling.
LOCATIE
Het kantoor geniet een uitstekende zichtlocatie aan de Mauritskade in het hart van Den Haag. Deze prestigieuze plek bevindt zich in de directe nabijheid van enkele van de meest iconische straten waaronder Het Noordeinde, Het Lange Voorhout, de gezellige Denneweg en de levendige Frederikstraat.
De omgeving wordt gekenmerkt door de aanwezigheid van prominente organisaties, waaronder diverse overheidsinstanties en talrijke ambassades, hetgeen bijdraagt aan het prestigieuze karakter van de locatie.
Er zijn hoogwaardige horecagelegenheden in de nabijheid die zakelijke ontmoetingen faciliteren. Het centrale winkelgebied van Den Haag is gelegen op loopafstand, wat de locatie zowel voor professionele als persoonlijke doeleinden uitermate geschikt maakt.
BEREIKBAARHEID
Eigen vervoer:
Het kantoor beschikt over uitstekende bereikbaarheid, zowel met auto als met het openbaar vervoer. De Mauritskade heeft een directe aansluiting op het rijkswegennet, de A4, A12 en A13.
Openbaar vervoer:
Met het openbaar vervoer is het object eveneens uitstekend bereikbaar, op loopafstand bevinden zich diverse haltes van tramlijn 1, 9 en buslijn 22, 24 en 28. Het Den Haag Centraal Station bevindt zich op ca. 10/15 minuten loopafstand van het kantoor.
BESCHIKBARE VLOEROPPERVLAKTE
De totale vloeroppervlakte van het gebouw bedraagt circa 6.559 m² vvo.
Voor de verhuur is momenteel het volgende metrage beschikbaar, verdeeld als volgt:
Kelder................Archiefruimte.......670 m² vvo
Begane grond....Kantoorruimte...1.444 m² vvo
1e verdieping.....Kantoorruimte...1.566 m² vvo
2e verdieping.....Kantoorruimte...1.483 m² vvo
3e verdieping.....Kantoorruimte...1.393 m² vvo
Totaal___________________ 6.559 m² vvo
Deelverhuur is vanaf ca. 100 m² v.v.o. mogelijk.
HUURPRIJZEN
Kantoorruimte: Nader te bepalen.
Kelder-/archiefruimte: Nader te bepalen.
Parkeerplaatsen: Nader te bepalen.
PARKEREN
Naast de 13 beschikbare parkeerplaatsen op eigen terrein biedt de directe omgeving van Mauritskade 7–17 diverse aanvullende parkeermogelijkheden:
'Q-Park Mauritskade'
Gelegen aan Zeestraat 39, op slechts enkele minuten loopafstand van het pand. Deze moderne parkeergarage beschikt over circa 200 parkeerplaatsen en is 24/7 geopend.
'Parkeergarage Parkstraat'
Gelegen aan de Oranjestraat, nabij de Parkstraat. Deze parkeergarage biedt 164 parkeerplaatsen en is geopend van maandag tot en met vrijdag van 18:00 tot 24:00 uur, op zaterdag van 09:00 tot 24:00 uur en op zondag van 09:30 tot 24:00 uur.
'Parkeergarage Haagsche Hof (ParkBee)'
Gelegen aan de Parkstraat, een zijstraat van de Mauritskade. Deze parkeergarage biedt betaalbare parkeermogelijkheden via vooraf reserveren.
SERVICEKOSTEN
In overleg.
OPLEVERINGSNIVEAU
De kantoorruimte wordt in overleg opgeleverd waarbij een turn-key opleverniveau mogelijk is.
Een op maat gemaakte oplossing die naadloos aansluit bij uw specifieke ruimtebehoefte is mogelijk.
HUURTERMIJN
5 of 10 jaar met verlengingsperioden van telkens 5 jaar.
HUURINGANGSDATUM
In overleg.
Features
Transfer of ownership
- Rental price
- Rental price on request
- Service charges
- No service charges known
- Listed since
-
- Status
- Available
- Acceptance
- Available in consultation
Construction
- Main use
- Office
- Building type
- Resale property
- Year of construction
- 1920
Surface areas
- Area
- 6,559 m² (units from 100 m²)
Layout
- Number of floors
- 5 floors
- Facilities
- Peak cooling, toilet and heating
Energy
- Energy label
- Not available
Surroundings
- Location
- Town center
Parking
- Parking spaces
- 13 uncovered parking spaces
- Parking costs
- From € 2,000,- per lot per year (21% VAT applies)
NVM real estate agent
Photos