Description
TECHTOWER - EINDHOVEN
The available office space is located in the ''Techtower," an unique tower and the tallest office building in the Flight Forum business park. Flight Forum connects different sectors, companies and ambitions and is located in the middle of the Brainport Region right next to Eindhoven Airport and the A2/N2 motorway.
Techtower currently has approximately 3,928 sqm available on the ground floor, first, second, third, fifth, sevend and ninth floor. The large windows and the open work floor provide a bright and open working environment. The above floor area is determined in accordance with NEN 2580 measurement certificate for lettable areas.
The office is located approximately 3 minutes by car from the A2/N2 (Maastricht-Amsterdam). This makes the office easily accessible by car.
The office is also located at approximately 1 minutes walking distance from a bus stop, from where a direct HOV line will take you to Eindhoven Central Station within approximately 15 minutes. Line 401 is coms on average 6 times per hour. Flight Forum Business Park has shared cars (Amber Mobility), shared scooters (GO Sharing) and shared bicycles.
Building area
The building totals approximately 8,200 sqm.
Availability
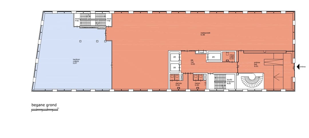
• Approximately 195 sqm l.f.a. office space on the ground floor
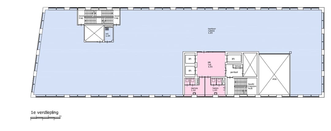
• Approximately 635 sqm l.f.a. office space on the first floor
• Approximately 635 sqm l.f.a. office space on the second floor
• Approximately 675 sqm l.f.a office space on the third floor
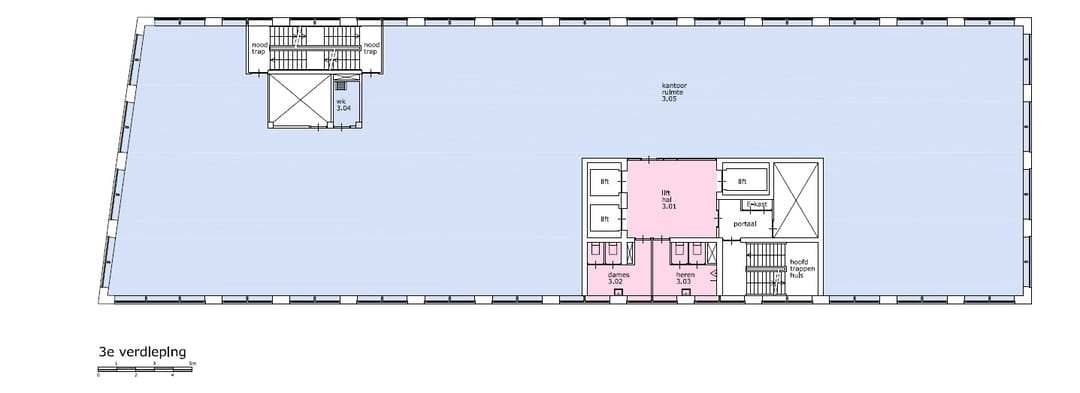
• Approximately 430 sqm l.f.a office space on the fifth floor on the right
• Approximately 677 sqm l.f.a office space on the seventh floor
• Approximately 677 sqm l.f.a office space on the ninth floor
Parking
The available office space includes 4 allocated parking spaces located in the parking garage under the office building. The ''Techtower'' parking garage is equipped with "Licence plate recognition system", a web-based program that uses license plate recognition. Additionally, paid parking is available on an occasional basis in the adjacent Flight Forum public garage.
Bicycles can be parked in the indoor, locked bicycle storage area.
Rent
• Office space: € 135,00 per sqm per year, plus VAT.
• Parking space: € 1.250,00 per parking space per year, plus VAT.
• Company restaurant: € 7,50 per sqm per year, plus VAT.
Service costs
€ 56,00 per sqm per year, plus VAT.
Energy label
The property has an energy label A.
Delivery level
The office space is delivered with the following facilities:
• Indoor parking facilities with licence plate recognition.
• Indoor, enclosed bicycle storage.
• Central entrance on the first floor with restaurant, espresso bar and meeting rooms.
• Shower facility on level -1.
• 3 elevators.
• Rentable boardroom, meeting rooms and sky bar on the 11th floor.
• System ceiling with lighting fixtures.
• Compartmented cable ducts for electricity, data and telephone cabling.
• Mechanical ventilation in combination with top cooling.
• Shared toilets (ladies and gents separated) per floor.
• Pantry connection on several floors.
• Intercom system.
Particular office space already features (in part) the existing built-in package, including the following amenities:
• Pantry equipped with dishwasher and refrigerator.
• Flooring (carpet).
• Meeting room equipped with glass walls and door.
• Horizontal blinds on the sunny side.
• Data cabling (CAT6).
Accessibility
By car
Approximately 2 minutes drive to the A2/N2 motorway.
By public transport
Approximately 15 minutes drive to Central Station.
HOV-line
Circa 1 minute walk to HOV line.
Airport
Circa 5-minute drive by car to terminal.
The available office space is located in the ''Techtower," an unique tower and the tallest office building in the Flight Forum business park. Flight Forum connects different sectors, companies and ambitions and is located in the middle of the Brainport Region right next to Eindhoven Airport and the A2/N2 motorway.
Techtower currently has approximately 3,928 sqm available on the ground floor, first, second, third, fifth, sevend and ninth floor. The large windows and the open work floor provide a bright and open working environment. The above floor area is determined in accordance with NEN 2580 measurement certificate for lettable areas.
The office is located approximately 3 minutes by car from the A2/N2 (Maastricht-Amsterdam). This makes the office easily accessible by car.
The office is also located at approximately 1 minutes walking distance from a bus stop, from where a direct HOV line will take you to Eindhoven Central Station within approximately 15 minutes. Line 401 is coms on average 6 times per hour. Flight Forum Business Park has shared cars (Amber Mobility), shared scooters (GO Sharing) and shared bicycles.
Building area
The building totals approximately 8,200 sqm.
Availability
• Approximately 195 sqm l.f.a. office space on the ground floor
• Approximately 635 sqm l.f.a. office space on the first floor
• Approximately 635 sqm l.f.a. office space on the second floor
• Approximately 675 sqm l.f.a office space on the third floor
• Approximately 430 sqm l.f.a office space on the fifth floor on the right
• Approximately 677 sqm l.f.a office space on the seventh floor
• Approximately 677 sqm l.f.a office space on the ninth floor
Parking
The available office space includes 4 allocated parking spaces located in the parking garage under the office building. The ''Techtower'' parking garage is equipped with "Licence plate recognition system", a web-based program that uses license plate recognition. Additionally, paid parking is available on an occasional basis in the adjacent Flight Forum public garage.
Bicycles can be parked in the indoor, locked bicycle storage area.
Rent
• Office space: € 135,00 per sqm per year, plus VAT.
• Parking space: € 1.250,00 per parking space per year, plus VAT.
• Company restaurant: € 7,50 per sqm per year, plus VAT.
Service costs
€ 56,00 per sqm per year, plus VAT.
Energy label
The property has an energy label A.
Delivery level
The office space is delivered with the following facilities:
• Indoor parking facilities with licence plate recognition.
• Indoor, enclosed bicycle storage.
• Central entrance on the first floor with restaurant, espresso bar and meeting rooms.
• Shower facility on level -1.
• 3 elevators.
• Rentable boardroom, meeting rooms and sky bar on the 11th floor.
• System ceiling with lighting fixtures.
• Compartmented cable ducts for electricity, data and telephone cabling.
• Mechanical ventilation in combination with top cooling.
• Shared toilets (ladies and gents separated) per floor.
• Pantry connection on several floors.
• Intercom system.
Particular office space already features (in part) the existing built-in package, including the following amenities:
• Pantry equipped with dishwasher and refrigerator.
• Flooring (carpet).
• Meeting room equipped with glass walls and door.
• Horizontal blinds on the sunny side.
• Data cabling (CAT6).
Accessibility
By car
Approximately 2 minutes drive to the A2/N2 motorway.
By public transport
Approximately 15 minutes drive to Central Station.
HOV-line
Circa 1 minute walk to HOV line.
Airport
Circa 5-minute drive by car to terminal.
Map
Map is loading...
Cadastral boundaries
Buildings
Travel time
Gain insight into the reachability of this object, for instance from a public transport station or a home address.